|
Студия «Завод 11» разработала интерьер небольшого бабл-кафе Milu в Новосибирске, соединив новосибирский конструктивизм, стилистику азиатской поп-культуры, смелую колористику и арт-объекты. Получилось очень необычное, но очень доброжелательное пространство для молодежи и не только.
От редакции В постиндустриальную эпоху, после многочисленных социальных и этических пертурбаций, начала складываться новая поведенческая модель, в которой с каждым следующим поколением все активнее формируется запрос на софт-скилз или мягкие, позитивные коммуникационные навыки. Не быть «токсичным» или «душнилой» – это то, без чего сейчас невозможно выстраивать отношения. На место лидерства, настойчивости и навыков выживания у поколения «Х», или сбалансированности и плюс-минус здорового эгоцентризма у миллениалов, пришла потребность в максимальной защите внутреннего мира и комфорта на психологическом уровне у зумеров.
В интернете множество смешных роликов на тему того, как пытаются договориться между собой представители разных поколений, но факт остается фактом – каждое следующее предъявляет свои собственные требования к коммуникации и качеству окружающего пространства. Появляется дизайн, в котором на первый план выходит его мягкость, минимальная агрессивность и позитивность для зрителя и особенно для пользователя.
Если вы не очень ориентируетесь в нюансах актуального дизайна, предлагаем вместе с нами внимательно познакомиться с интерьером бабл-кафе Milu в Новосибирске, разработанным студией «Завод 11» для 23-летних владельцев. Давайте вместе попробуем разобраться, какой коктейль из каких дизайнерских ингредиентов использовали авторы, чтобы создать новую модную точку на карте города, а заодно и заложить основу для оформления будущей сети кафе.
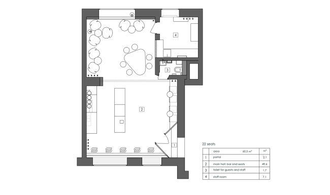
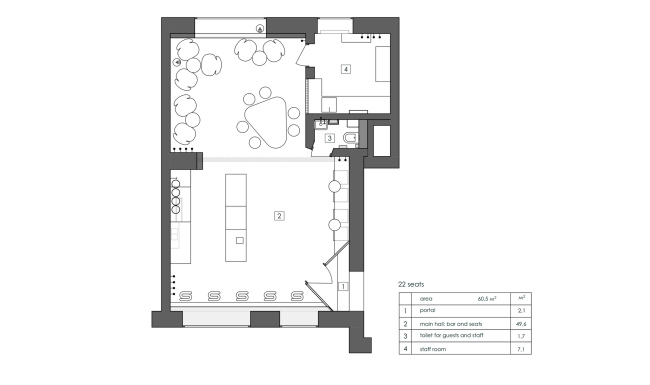
 В маленьком помещении площадью всего 60 квадратных метров архитекторы расположили около 20 посадочных мест. Помещение делится на две части – первая представляет собой зал с массивной стойкой бариста. Это место для торопливых посетителей, которым нужно быстро сделать заказ, расплатиться и уже в чуть более спокойном темпе насладиться своим напитком за длинными столиками, выстроившимися вдоль окна, сидя на одном из смешных, похожих на пухлые скрепки, табуретов.
 Вторая часть помещения предназначена для тех, кто пришел не только выпить авторский чай или кофе, но и потусоваться с друзьями. Тут царят разноформатные столики и стулья, кресла и табуреты. Часть столов компактны и мобильны, а один – как ответ стойке бариста – большой и массивный, уверенно стоящий на трех «слоновьих» ногах.
 В интерьере царит светло-оливковый, сложно намешанный и очаровательный оттенок. Он обволакивает своей мягкостью посетителя, одинаково неотразимый как в формате крашеных стен, так и, что особенно неожиданно, в виде мелкой квадратной кафельной плитки. Плитка – это последнее, что ожидаешь увидеть в кафе, главная идея которого – создать комфортную и расслабленную атмосферу, а вот пожалуйста. И сразу же белые матовые стеклоблоки кажутся вполне уместным и даже необходимым дополнением.
 Очень интересно, как дизайнеры вводят в «зеленую» дымку дополнительные цветовые акценты – оранжевый, изумрудный и ярко-синий цвета. Вроде бы должна была возникнуть какофония, но вместо этого возникает немного мультяшный и милый эффект нереальности. Как будто тебя поместили в среду, у которой свои собственные и вполне гармоничные по-своему представления о красоте.
Сами авторы утверждают, что интерьер стал результатом сплава конструктивизма и поп-ап-культуры, но каких-то прямых и очевидных цитат здесь крайне мало, что хочется отметить как позитивное качество дизайна, подтверждающее, что авторы в поисках образа будущего интерьера достаточно глубоко и творчески переработали изначальные референсы, создав свое собственное прочтение актуального дизайна для тех, кто превыше всего ценит мягкость и умную иронию.
 Описание предоставлено архитекторами
Владельцы Milu – молодые друзья из Сибири, которым еще нет 23 лет. Они провели полгода в Китае, вдохновились местной молодежной культурой напитков баблти и решили привезти этот продукт в свой город. До Milu у команды уже был успешный опыт – они развивали продажу мягкого мороженого в регионах Сибири. Этот успех стал импульсом для открытия полноценного кафе с технологичным приготовлением напитков и азиатскими десертами.  В процессе работы над проектом команда студии «Завод 11» совмещала ассоциации с продуктом и образом персонажа Milu, разработанного брендинговой командой. Концепт получился чистым, лаконичным и ярким, с прогрессивным и игривым характером, что отразилось в визуальном образе кафе. Также архитекторы учитывали контекст – авангардное здание, комплекс жилищного кооператива «Кузбассуголь» (1931–1933 годы), в котором расположилось кафе.  Вход в кафе общий с другими арендаторами, в том числе офисами, и выделен козырьком со ступенями, ведущими вниз. Из тамбура посетители попадают в треугольную входную группу, ведущую вверх. Геометрия зала и сам треугольный вход показались выразительными – они добавляют пространству динамики и задают характер будущего интерьера.  Первая часть зала – динамичная посадка для ожидания заказа: гости могут наблюдать за главной улицей, ожидая свой напиток или десерт. Бар выделен в центре, что улучшает логику работы бариста, создавая удобное круговое движение. Это снижает барьер общения с гостями, подчеркивая дружелюбный характер Milu. Открыв вторую часть зала и заменив окно во двор на панорамное, архитекторы добавили больше света и воздуха в пространство. Этот участок сделали зоной отдыха с креслами и большим коммунальным столом.  В интерьере используются арт-объекты: кинетическая скульптура-мобиль с шариками из переработанного пластика, которую под заказ изготовила художница из Москвы. Шарики по концепции совпадают с баблти – так в напитках используются всем известные шарики тапиоки. Также здесь использовали диджитал-арт, что добавляет динамики пространству и отсылает к азиатскому дизайну.  Баблти MILU в НовосибирскеФотография © Валерий Немиров / предоставлена «Завод11»
Баблти MILU в Новосибирске© «Завод11»
Баблти MILU в НовосибирскеФотография © Валерий Немиров / предоставлена «Завод11»
Баблти MILU в НовосибирскеФотография © Валерий Немиров / предоставлена «Завод11»Баблти MILU в НовосибирскеФотография © Валерий Немиров / предоставлена «Завод11»Баблти MILU в НовосибирскеФотография © Валерий Немиров / предоставлена «Завод11»Баблти MILU в НовосибирскеФотография © Валерий Немиров / предоставлена «Завод11»Баблти MILU в НовосибирскеФотография © Валерий Немиров / предоставлена «Завод11»Баблти MILU в НовосибирскеФотография © Валерий Немиров / предоставлена «Завод11»Персонаж MILUПредоставлено «Завод 11»
Баблти MILU в НовосибирскеФотография © Валерий Немиров / предоставлена «Завод11»Баблти MILU в НовосибирскеФотография © Валерий Немиров / предоставлена «Завод11»Баблти MILU в НовосибирскеФотография © Валерий Немиров / предоставлена «Завод11»
Баблти MILU в НовосибирскеФотография © Валерий Немиров / предоставлена «Завод11»Баблти MILU в НовосибирскеФотография © Валерий Немиров / предоставлена «Завод11»
|