|
Студия дизайна MODGI Group радикально обновила не только интерьер расположенного в самом центре Санкт-Петербурга кафе, входящего в сеть «На парах», но, кажется, перепрограммировала и его концепцию, объединив в одном пространстве все, за что так любят питерские заведения: исторический антураж, стильный дизайн, возможность никуда не бежать и достойную кухню.
От редакции Есть различные рецепты гармоничного интерьера. Более того, множество книг написано только о том, как и что нужно сочетать, а чего нужно категорически избегать, чтобы получился стильный дизайн. Школы дизайна специализируются на этом сокровенном знании. Именитым дизайнерам платят огромные гонорары за то, чтобы из бесконечного разнообразия и множества материалов, цветов, фактур они выбрали очень ограниченный набор тех, что будут использованы для их очередного шедевра. И эта прекрасная и удивительная наука эстетического самоограничения, как правило, гарантирует отличный результат. Но… Иногда бывают счастливые исключения из любого правила. И эта исключительность делает их особенно интересными для исследования.
 На первый взгляд новый интерьер одного из кафе сети «На парах» представляет собой интересное и креативное развитие многих характерных для питерского дизайна тенденций: вариабельность рассадки, акцент на открытой кухне, тонкая работа со светом и колористикой, мягкая пластика и перетекание пространств. Все это есть и выполнено на высоком профессиональном уровне, но подкупает этот интерьер другим – тем, что замечаешь на фотографиях во вторую очередь, но, скорее всего, чувствуешь сразу же, как только оказываешься в этом интерьере вживую: речь о разнообразии материалов и текстур, которые собраны здесь.
Как в хорошей опере, у каждого материала здесь своя роль и своя партия. Светло-кремовые штукатурные стены создают общее рассеянное свечение и размытость границ. На их фоне то тут, то там проглядывающие разрывы в стеновых поверхностях, обнажающие грубую колотую фактуру, видимо, символизирующую присутствие глубинного исторического слоя архитектуры, выглядят особенно интригующе.
 Общее свечение продолжается и на полу благодаря крупноформатному керамограниту под светлый камень. На этом фоне неожиданно гармонично выглядит интервенция сразу нескольких дополнительных материалов.
Натуральный камень – мрамор с очень эффектным рисунком – появляется на полу как маркер границы между залами и на столешницах островной барной стойки и нескольких столиков, чем-то заслуживших эту привилегию. Остальные столики, как и некоторые стулья и стеновые панели в части залов, выполнены из дерева с подчеркнутой текстурой. Еще здесь есть облицовка керамической плиткой двух типоразмеров: квадратной глазурованной плиткой на фартуке бара и матовыми «карандашами» на скругленных основаниях стойки бара и стойки хостес на входе.
 Но и это еще не все. Здесь есть матовое белое стекло на перегородках и в качестве бонуса – полированная сталь, которая используется для отделки арочных проемов между залами.
Казалось бы, используя такое количество очень характерных, очень различных материалов, в принципе невозможно добиться гармонии. Но вот перед нами опровержение. Оказывается, можно. Главное – соблюдать колористический баланс и не форсировать фактуры, оставляя посетителям кафе возможность разнообразить удовольствие от местной гастрономии пиршеством тактильных ощущений.
 Описание предоставлено архитекторами Очарование старого фонда, почтение перед эстетикой минимализма и форменный неомодерн – такой концепции придерживалась команда студии дизайна MODGI Group при стилизации ресторана в самом сердце Петербурга, на пересечении Литейного и Невского проспектов. Дух нового и старого времени, футуристичные акценты превращают заведение сети «На парах» в аутентичное место с собственным характером.
Атмосфера и освещение Входя в ресторан, гость оказывается в расслабляющей и камерной атмосфере. Светлый и погруженный в полумрак зал, тепло рассеянного света от настенных бра и точечная подсветка, почти утопленная в потолке, создают ощущение уюта и комфорта. Пространство словно обволакивает и приглашает забыть о времени в своих стенах.
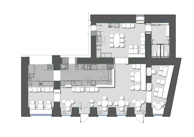
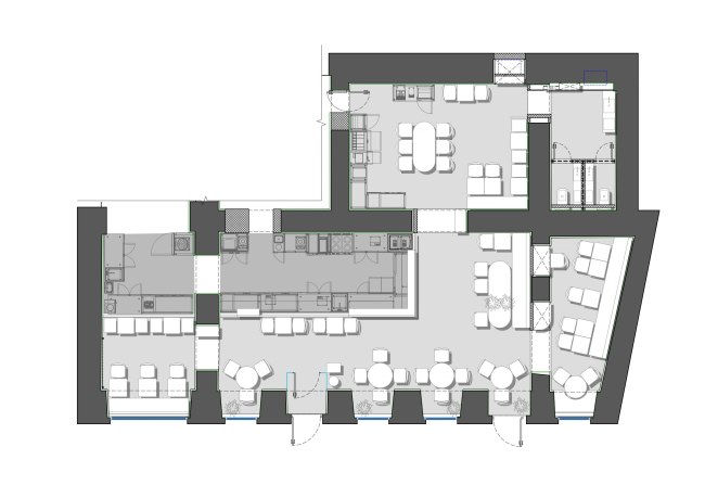
 Зонирование Гастрономическим сердцем главного зала сделали кухню с открытой зоной выдачи. Обособить ее от посетителей решили при помощи эффектного подиума с глянцевой фактурой стали и контурной подсветкой по низу. Стеклянные перегородки с матовым напылением служат завершающим звеном композиции – и кухонный цех уже кажется невесомой лабораторией вкуса из эпохи неомодерна. Второй зал, окутанный полумраком, настраивает на более интимную обстановку, когда голоса становятся тише, а разговоры – деликатнее и откровеннее. Его доминанта – барная зона с монолитным столом-островом. Присмотритесь к его столешнице: тончайшие прожилки камня и уникальный паттерн, подсвеченный кристаллическим сиянием изнутри, буквально завораживают. «Сцена» для авангардных коктейлей, «подиум» для модных сортов кофе и чая – эта точка притяжения предназначена для тех, кто любит быть в центре внимания.
 Посадка Остальные посадочные зоны в ресторане привычны для большинства посетителей. Посадка делится на два основных типа: для больших и малочисленных компаний. Уютные столики на двоих рассредоточены в полумраке по периметру зала. Вдоль некоторых стен в ресторане предусмотрены диванные группы. За ними – у вытянутых овальных столов – удобно разместиться группой от шести человек. Круглые и прямоугольные столы со смягченными углами рассчитаны на четверых. Особое внимание привлекают круглые столы вдоль окон. Из какой точки пространства вы бы ни взглянули, они подчиняются закону центральной симметрии и выстраиваются в линейную композицию.
Сценариев взаимодействия с каждой зоной много: здесь можно уединенно поработать за ноутбуком, организовать встречу книжного клуба за чашкой чая, собраться с друзьями, встретиться с партнером, создать традицию воскресных обедов с детьми вне дома.
 Детали и декор Интерьер и атмосфера ресторана не были бы завершенными без гармонии связующих акцентов.
Самый нетипичный из них – оформление арочных проемов между залами. Глянец стали, в которую также облачена зона кухни, и гибкая светодиодная подсветка не создают здесь впечатления холодности.
Их уравновешивает нейтральная палитра материалов и фактур. Дерево и микровелюр делают интерьер более тактильным, декоративная штукатурка и плитка подчеркивают его собранность, а камень столешниц под мрамор раскрывает силу современной органики.
И даже светильники подобраны здесь так, чтобы звучать в едином ритме с пространством. Обтекаемые и рельефные, в матовом стекле и металле, они перекликаются с контурами мебели и линейностью самих залов. За изысканность и уют в интерьере отвечают финальные штрихи в виде настенных панно и растительного декора. ********************* P.S. Для того, чтобы читатели смогли в полной мере оценить революционность обновленного дизайна этого кафе, мы взяли на себя смелость собрать несколько фотографий остальных заведений сети «На парах», чтобы было наглядно видно, как дизайн влияет на восприятие пространства и как он может изменить уровень и класс ресторана.
 Ресторан На ПарахФотография @ Дмитрий Суворов / предоставлена Студия дизайна MODGI Group
Ресторан На ПарахФотография @ Дмитрий Суворов / предоставлена Студия дизайна MODGI GroupРесторан На ПарахФотография @ Дмитрий Суворов / предоставлена Студия дизайна MODGI GroupРесторан На ПарахФотография @ Дмитрий Суворов / предоставлена Студия дизайна MODGI GroupРесторан На ПарахФотография @ Дмитрий Суворов / предоставлена Студия дизайна MODGI GroupРесторан На ПарахФотография @ Дмитрий Суворов / предоставлена Студия дизайна MODGI GroupРесторан На ПарахФотография @ Дмитрий Суворов / предоставлена Студия дизайна MODGI GroupРесторан На ПарахФотография @ Дмитрий Суворов / предоставлена Студия дизайна MODGI GroupРесторан На ПарахФотография @ Дмитрий Суворов / предоставлена Студия дизайна MODGI GroupРесторан На ПарахФотография @ Дмитрий Суворов / предоставлена Студия дизайна MODGI GroupРесторан На ПарахФотография @ Дмитрий Суворов / предоставлена Студия дизайна MODGI GroupРесторан На ПарахФотография @ Дмитрий Суворов / предоставлена Студия дизайна MODGI GroupРесторан На ПарахФотография @ Дмитрий Суворов / предоставлена Студия дизайна MODGI GroupРесторан На ПарахФотография @ Дмитрий Суворов / предоставлена Студия дизайна MODGI GroupРесторан На ПарахФотография @ Дмитрий Суворов / предоставлена Студия дизайна MODGI GroupРесторан На ПарахФотография @ Дмитрий Суворов / предоставлена Студия дизайна MODGI GroupРесторан На ПарахФотография @ Дмитрий Суворов / предоставлена Студия дизайна MODGI GroupРесторан На ПарахФотография @ Дмитрий Суворов / предоставлена Студия дизайна MODGI GroupРесторан На ПарахФотография @ Дмитрий Суворов / предоставлена Студия дизайна MODGI GroupРесторан На Парах. План@ Студия дизайна MODGI Group
Ресторан На ПарахФотография @ Дмитрий Суворов / предоставлена Студия дизайна MODGI GroupРесторан На ПарахФотография @ Дмитрий Суворов / предоставлена Студия дизайна MODGI GroupРесторан На ПарахФотография @ Дмитрий Суворов / предоставлена Студия дизайна MODGI GroupРесторан На ПарахФотография @ Дмитрий Суворов / предоставлена Студия дизайна MODGI GroupРесторан На ПарахФотография @ Дмитрий Суворов / предоставлена Студия дизайна MODGI GroupКафе «На парах» на Бульваре Новаторов, 11к2@ «На парах»/ https://xn–80aaa3clh0b.xn–p1ai/Кафе «На парах» на Колымяжском проспекте, 15к1@ «На парах»/ https://xn–80aaa3clh0b.xn–p1ai/Кафе «На парах» на ул. Марата, 16@ «На парах»/ https://xn–80aaa3clh0b.xn–p1ai/кафе «На парах» на 7 линии Васильевского острова, 24@ «На парах»/ https://xn–80aaa3clh0b.xn–p1ai/Кафе «На парах» на ул. Садовой, 26 кБ@ «На парах»/ https://xn–80aaa3clh0b.xn–p1ai/
|