|
Одним из элементов бренда сети медицинских клиник «Атлас» выступают интерьеры, созданные бюро Justbureau с учетом дизайн-кода и современных подходов к оформлению оздоровительных пространств, которые должны обеспечивать комфорт и позитивную атмосферу.
От редакции Есть только два пути, чтобы дизайнерски осмыслить какую-то типологию или объект, имеющий устоявшийся ассоциативный шлейф: либо пойти по пути эксплуатации и переработки стереотипов, либо – категорически нарушить их. Для наглядности сложности выбора представьте, что вам нужно нарисовать логотип для стоматологической клиники. По какому пути вы пойдете? Нарисуете логотип в виде улыбающегося зуба или сделаете модный абстрактный знак, который будет круто смотреться на подарочных стаканчиках для зубных щеток? Оба пути вполне легитимны и имеют своих истовых сторонников.
Аналогичная ситуация имеет место в сфере дизайна интерьеров медицинских учреждений, владельцы которых делятся на тех, кто считает, что преобладание белого цвета и легко моющихся поверхностей – это необходимость и часть образа места для битвы с любыми болезнями, и тех, кто предпочитает стерильности респектабельность. Рискнем предположить, что вторые предоставляют более дорогостоящие услуги.
С недавних пор к этим двум подходам добавились еще два, которые мы можем условно обозначить как «психосоматические» и «технократические». Дизайн первых подчеркнуто жизнерадостен и излучает веру в позитивное воздействие среды на психику, а значит, и здоровье человека. Дизайн вторых транслирует посетителям уверенность в том, что они находятся в точке сосредоточения самых новых и самых совершенных медицинских технологий.
При всей популярности всех четырех подходов в чистом виде их крайне сложно встретить. Чаще всего заказчики и дизайнеры интерьеров медицинских клиник идут по пути комбинаторики. И итоговый результат очень интересно анализировать с точки зрения преобладания тех или иных веяний. Это интересно и в плане тенденций современного дизайна, и на перспективу – как потенциальным клиентам таких учреждений, ведь по особенностям дизайна мы сможем судить о ее ценовой категории и приоритетах в работе клиники.
 Если подходить с этой точки зрения к интерьеру филиала сети клиник «Атлас», можно с уверенностью сказать, что здесь с первого взгляда читаются внимание и забота о клиентах, их эмоциональном и физическом комфорте, соблюдение профессиональных стандартов и ориентация на самые передовые технологии. Услуги этой клиники точно не будут дешевы, но можно рассчитывать на их качество. Обо всем этом говорит дизайн интерьера. Нужно только видеть знаки и научиться их расшифровывать.
 Описание предоставлено архитекторами После создания интерьера для первой клиники «Атлас» на Кутузовском проспекте в Москве и смены собственника была пересмотрена стратегия развития бренда, что привело к полному обновлению концепции и разработке нового визуального кода. Так появился масштабный сетевой проект с обновленной философией и узнаваемым дизайном.
 Многопрофильный медицинский центр на Кременчугской улице спроектирован как пространство, в котором технологии не подавляют человека, а поддерживают его эмоциональный комфорт. В основе архитектурного решения – принцип снижения тревожности пациента: спокойные цветовые сочетания, мягкие линии, продуманная навигация и четкие сценарии перемещения внутри здания.
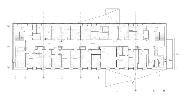
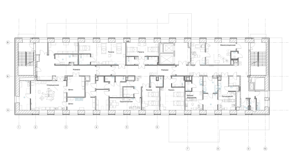
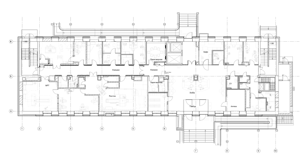
 Планировочная структура организована вокруг центрального ресепшн-узла: от него расходятся направления к диагностическому блоку, стационару и отделению превентивной медицины. Такое решение обеспечивает интуитивно понятный маршрут, сводит к минимуму пересечения потоков и создает логичный, ориентируемый «скелет» пространства. Внутри формируются ясные перспективы и выразительные визуальные ориентиры, что упрощает ориентацию в большом комплексе.
 Интерьер стремится к балансу технологичности и человеческого масштаба. Светлые нейтральные поверхности сочетаются с теплыми фактурами и мягким, рассеянным светом. В палатах стационара предусмотрены «домашние» зоны отдыха с лаунж-мебелью и вариативными световыми сценариями – так пребывание воспринимается не как госпитализация, а как заботливое сопровождение.
 На наш взгляд, в работе над проектом нам удалось по-новому интерпретировать ключевые зоны медицинского центра и сделать их максимально комфортными, избавляя пациента от ощущения формальности и подчеркивая человеческую сторону медицинской среды.
 Клиника Атлас КременчугскаяФотография © Даша Суббота / предоставлена Justbureau
Клиника Атлас КременчугскаяФотография © Даша Суббота / предоставлена Justbureau
Клиника Атлас КременчугскаяФотография © Даша Суббота / предоставлена JustbureauКлиника Атлас КременчугскаяФотография © Даша Суббота / предоставлена JustbureauКлиника Атлас КременчугскаяФотография © Даша Суббота / предоставлена JustbureauКлиника Атлас КременчугскаяФотография © Даша Суббота / предоставлена JustbureauКлиника Атлас КременчугскаяФотография © Даша Суббота / предоставлена JustbureauКлиника Атлас КременчугскаяФотография © Даша Суббота / предоставлена JustbureauКлиника Атлас КременчугскаяФотография © Даша Суббота / предоставлена JustbureauКлиника Атлас КременчугскаяФотография © Даша Суббота / предоставлена JustbureauКлиника Атлас КременчугскаяФотография © Даша Суббота / предоставлена JustbureauКлиника Атлас КременчугскаяФотография © Даша Суббота / предоставлена JustbureauКлиника Атлас КременчугскаяФотография © Даша Суббота / предоставлена JustbureauКлиника Атлас КременчугскаяФотография © Даша Суббота / предоставлена JustbureauКлиника Атлас КременчугскаяФотография © Даша Суббота / предоставлена JustbureauКлиника Атлас КременчугскаяФотография © Даша Суббота / предоставлена JustbureauКлиника Атлас Кременчугская. План 1 этажа© JustbureauКлиника Атлас Кременчугская. План 2 этажа© JustbureauКлиника Атлас Кременчугская. План 3 этажа© JustbureauКлиника Атлас Кременчугская. План 4 этажа© Justbureau
|