|
Студия ELENA LOKASTOVA вдохновлялась барочной эстетикой при создании интерьера бутика Choux, в котором нарочитая декоративность деталей сочетается с общим лаконизмом и даже футуристичностью пространства.
Глядя на величественные и прекрасные памятники античности, экспрессивные и феерические готические соборы или пышные и «оживающие» барочные церкви, невольно задаешь себе вопрос: как их создатели ухитрялись создавать цельное и гармоничное произведение, сочетая такое количество гиперсложных элементов, контрастирующих друг с другом? Как они могли контролировать их и добиваться баланса? В современной архитектуре достижение гармонии оказалось возможным только за счет самоограничения, минимизации и упрощения объемов элементов, их пластики и степени детализации. Там, где необходима экспрессия и драматизм, современная архитектура может позволить себе роскошь ввести лишь один или два доминантных элемента, чья сложность будет уравновешиваться лаконизмом всех остальных частей здания. Вершины архитектурной полифонии, сочетающие множество тем и форм в единую композицию, покоряются лишь немногим, но тем интереснее следить за тем, как новые поколения архитекторов и дизайнеров штурмуют их, вдохновляясь опытом и примерами из прошлого, ища собственный рецепт гармонии и взвешивая на внутренних весах меру лаконизма и декоративности.
 Авторы интерьера бутика Choux, дизайнеры студии ELENA LOKASTOVA, не скрывают источник своего вдохновения – барокко во всей его изощренности, но они использовали характерные для этого стиля приемы и темы выборочно и взвешенно, вводя их в пространство, которое по сути решено скорее в минималистичном или даже футуристичном ключе, с поправкой на орнаментальную макрографику на потолке, эпатажные объемные и цветовые интервенции в виде розовых шкафов, зеленых стен и, конечно, доминанты интерьера – огромной золотой сферической формы, зажатой между полом и потолком на первом этаже, а также в ее продолжении – антитезе – сверкающем белом не то столе, не то фигурной колонне, похожей на фонтан и подсвечник одновременно, на нижнем этаже.
 Интересно, что соединение в одном интерьере столь контрастных элементов, пусть и относящихся к разным стилистическим канонам, вполне соответствует духу барокко. Не его букве, а именно духу, с его тенденцией к усложнению, драматизации и даже театральности. При этом стоит отметить изрядную долю иронии, опосредованной, но легко считываемой при желании, с которой архитекторы используют барочную эстетику и цитаты для создания атмосферы роскоши, не переходя тонкую грань, отделяющую респектабельность от китча и безвкусицы.
 Нужно отметить качество исполнения всех элементов интерьера, включая сложные макроформы, для создания которых использовались достаточно простые технологии, что нередко приводит к вульгаризации результата. Но не здесь. В интерьере бутика Choux авторы смогли добиться эффекта «пиршества для глаз», характерного для барочных произведений искусства, не прибегая к использованию аутентичных материалов и технологий, изобретательно находя среди их современных аналогов те, которые обеспечивают максимальную выразительность при сравнительно небольших трудозатратах.
 Также нужно упомянуть работу архитекторов со светом и зеркальными поверхностями. И та, и другая «материя», при кажущейся простоте применения, легко могли бы перечеркнуть всю сценографию и нарушить тонко выстроенный баланс. Но достаточно изучить детали интерьера, чтобы увидеть, как внедрение зеркал и встроенной подсветки решает здесь сложнейшие задачи: расширение пространства, навигации, мерчендайзинга и, конечно, создания дополнительных стилистических перекличек. В частности, именно благодаря подсвеченным стыкам в стеновых и потолочных панелях возникает ощущение, что вы не в модном бутике на Патриарших прудах, а в модном бутике на космической станции, создатели которой увлекались творчеством Джанлоренцо Бернини.
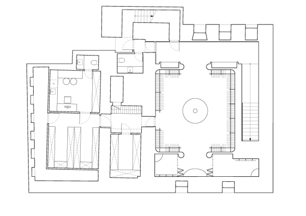
 Описание предоставлено архитекторами В магазине два уровня, различающихся цветовой гаммой и материалами, но организованных по единому пространственному принципу. В центре каждого этажа размещена скульптурная форма, которая одновременно служит визуальным акцентом и выполняет практическую функцию.
 На верхнем уровне таким объектом стал гигантский золотой «боб», словно зажатый между полом и потолком. Благодаря витринным окнам он заметен даже с противоположного берега Патриаршего пруда. Форма «боба» появилась в процессе экспериментов с бионической эстетикой. Название бренда Choux переводится с французского как «капуста», что подчеркивает его ботаническую связь. В интерьере это проявляется в виде барочного растительного орнамента на потолке и зеленых текстильных панелей нижнего этажа. «Боб» изготовлен из фанеры и покрыт золотым хромом. Внутри него скрывается полость с рейлом для одежды и большим диваном. Золотая поверхность отражает рисунок потолка, созданный нейросетью: в пышную барочную листву вплетен логотип бренда.
 На первом этаже расположены касса, примерочные и секретная комната. Секретная комната представляет собой камерное пространство, полностью заполненное маленькими ячейками. Каждый покупатель получает на кассе ключ от одной из них и может оставить подарок и письмо для следующего посетителя.
 Пол первого этажа выполнен из светлого терраццо с цветными мраморными вставками правильной формы – словно тетрис, разбежавшийся в разные стороны. Зеркала в примерочных расположены таким образом, что визуально увеличивают пространство в четыре раза.
 Лестница, ведущая на нижний этаж, оформлена как тоннель, выложенный мраморной плиткой. Зеркальная стена превращает ее в фотогеничный каменный портал. В подземном зале стены покрыты изумрудными бархатными панелями, напоминающими мох, а между полом и потолком растянута гигантская белая «капля», символически питающая золотой проросток на верхнем уровне.
 Сложная форма капли облицована белым пластиком. Пол и потолок покрыты глянцевым белым материалом, который контрастирует с бархатной текстурой стен. Между белыми зеркальными примерочными расположена ниша с диваном. Если открыть двери-ширмы в обеих комнатах, образуется единое, бесшовное пространство – идеальное для съемок.
 Бутик ChouxФотография © Сергей Красюк / предоставлена архитектурной студией ELENA LOKASTOVA
Бутик ChouxФотография © Сергей Красюк / предоставлена архитектурной студией ELENA LOKASTOVAБутик ChouxФотография © Сергей Красюк / предоставлена архитектурной студией ELENA LOKASTOVAБутик ChouxФотография © Сергей Красюк / предоставлена архитектурной студией ELENA LOKASTOVAБутик ChouxФотография © Сергей Красюк / предоставлена архитектурной студией ELENA LOKASTOVAБутик ChouxФотография © Сергей Красюк / предоставлена архитектурной студией ELENA LOKASTOVA
Бутик ChouxФотография © Сергей Красюк / предоставлена архитектурной студией ELENA LOKASTOVAБутик ChouxФотография © Сергей Красюк / предоставлена архитектурной студией ELENA LOKASTOVAБутик ChouxФотография © Сергей Красюк / предоставлена архитектурной студией ELENA LOKASTOVAБутик ChouxФотография © Сергей Красюк / предоставлена архитектурной студией ELENA LOKASTOVAБутик ChouxФотография © Сергей Красюк / предоставлена архитектурной студией ELENA LOKASTOVAБутик ChouxФотография © Сергей Красюк / предоставлена архитектурной студией ELENA LOKASTOVAБутик ChouxФотография © Сергей Красюк / предоставлена архитектурной студией ELENA LOKASTOVAБутик ChouxФотография © Сергей Красюк / предоставлена архитектурной студией ELENA LOKASTOVAБутик ChouxФотография © Сергей Красюк / предоставлена архитектурной студией ELENA LOKASTOVAБутик ChouxФотография © Сергей Красюк / предоставлена архитектурной студией ELENA LOKASTOVAБутик ChouxФотография © Сергей Красюк / предоставлена архитектурной студией ELENA LOKASTOVAБутик ChouxФотография © Сергей Красюк / предоставлена архитектурной студией ELENA LOKASTOVAБутик ChouxФотография © Сергей Красюк / предоставлена архитектурной студией ELENA LOKASTOVAБутик ChouxФотография © Сергей Красюк / предоставлена архитектурной студией ELENA LOKASTOVAБутик ChouxФотография © Сергей Красюк / предоставлена архитектурной студией ELENA LOKASTOVAБутик ChouxФотография © Сергей Красюк / предоставлена архитектурной студией ELENA LOKASTOVAБутик ChouxФотография © Сергей Красюк / предоставлена архитектурной студией ELENA LOKASTOVAБутик ChouxФотография © Сергей Красюк / предоставлена архитектурной студией ELENA LOKASTOVAБутик ChouxФотография © Сергей Красюк / предоставлена архитектурной студией ELENA LOKASTOVAБутик ChouxФотография © Сергей Красюк / предоставлена архитектурной студией ELENA LOKASTOVAБутик ChouxФотография © Сергей Красюк / предоставлена архитектурной студией ELENA LOKASTOVAБутик ChouxФотография © Сергей Красюк / предоставлена архитектурной студией ELENA LOKASTOVAБутик ChouxФотография © Сергей Красюк / предоставлена архитектурной студией ELENA LOKASTOVAБутик ChouxФотография © Сергей Красюк / предоставлена архитектурной студией ELENA LOKASTOVAБутик ChouxФотография © Сергей Красюк / предоставлена архитектурной студией ELENA LOKASTOVAБутик ChouxФотография © Сергей Красюк / предоставлена архитектурной студией ELENA LOKASTOVAБутик ChouxФотография © Сергей Красюк / предоставлена архитектурной студией ELENA LOKASTOVAБутик ChouxФотография © Сергей Красюк / предоставлена архитектурной студией ELENA LOKASTOVAБутик ChouxФотография © Сергей Красюк / предоставлена архитектурной студией ELENA LOKASTOVAБутик ChouxФотография © Сергей Красюк / предоставлена архитектурной студией ELENA LOKASTOVAБутик ChouxФотография © Сергей Красюк / предоставлена архитектурной студией ELENA LOKASTOVAБутик ChouxФотография © Сергей Красюк / предоставлена архитектурной студией ELENA LOKASTOVAБутик ChouxФотография © Сергей Красюк / предоставлена архитектурной студией ELENA LOKASTOVAБутик ChouxФотография © Сергей Красюк / предоставлена архитектурной студией ELENA LOKASTOVAБутик Choux. План 1 этажа© Архитектурная студия ELENA LOKASTOVAБутик Choux. План -1 этажа© Архитектурная студия ELENA LOKASTOVA
|