|
Бюро SUSHKOVA DESIGN создало интерьер цветочной студии в Перми, с тактом и деликатностью подойдя к пространству, чья главная ценность заключалась в обилии света и эффектности старинной кладки. Эти достоинства были бережно сохранены и даже подчеркнуты при помощи точно найденных современных акцентов.
От редакции Есть разные виды дизайна интерьеров. Кто-то из заказчиков и архитекторов предпочитает насыщать пространство, концентрируя выразительные средства, смешивая стили, цвета, фактуры. И вершиной мастерства авторов подобных пространств является достижение баланса в этом калейдоскопе. Это сложнейшее искусство, и крайне мало специалистов в мире владеют им.
Но было бы ошибочно считать, что минималистичные интерьеры создавать намного легче и их авторам не требуется никаких особых талантов. Напротив, чем меньше выразительных средств, чем лаконичнее детали и элементы обстановки, тем больше усилий, вкуса и таланта требуется, чтобы найти то уникальное решение, которое точно впишется и органично дополнит тщательно выстраиваемую «пустоту». Особенно если это не чистый минимализм, а фьюжн, в котором базовая минималистичная фактура дополняется более сложными в плане стилистики и формы элементами. В этом случае архитектору и дизайнеру требуется особая чуткость и деликатность в работе. Нужна самодисциплина и чувство цельности, благодаря которым лишь крайне немногие предметы или приемы получают право занять место в выстраиваемом интерьерном ансамбле.
 Именно такие тонкие, выверенные решения отличают интерьер цветочного салона в Перми, созданного бюро SUSHKOVA DESIGN и ставшего настоящим центром местного креативного сообщества. В залитом светом пространстве с грубыми кирпичными стенами и модернистской мебелью красота настоящих живых цветов кажется особенно хрупкой, а сами растения приобретают особую ценность. А что еще нужно для интерьера, где все пространство создано для и вместе с людьми, чья работа делится с миром красотой цветов.
 Описание предоставлено архитекторами Цветочный магазин расположен в центре Перми в здании дореволюционной постройки. Еще в XIX веке он принадлежал члену Государственной думы от Пермской губернии. История этого здания вдохновила дизайнеров на создание интерьера, в котором дух места сочетается с современным дизайном.
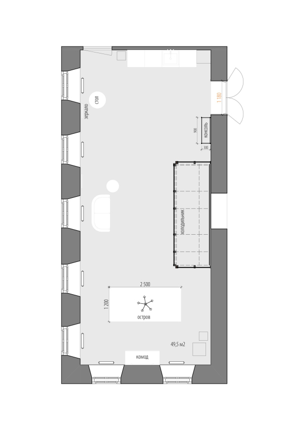
 Семь больших окон, расположенных на двух стенах, заливают пространство дневным светом – благодаря чему здесь складываются идеальные условия для работы флористов и фотосъемки готовых композиций.
Одним из ключевых пожеланий заказчицы было сделать интерьер трансформируемым, легко приспосабливаемым для проведения мероприятий. Для этого дизайнеры использовали минимальное количество стационарных элементов обстановки.
 Большой блок холодильника для цветов из металлических конструкций с заполнением из стеклопакетов, защищающий нежные растения от увядания, расположен в центре помещения возле одной из глухих стен. Все растения хорошо видны, благодаря чему и покупателям, и флористам легко выбрать из них цветы, нужные для букета.
Рядом с торцевой стеной с окнами, как с самым хорошо освещенным местом в студии, установлен большой рабочий остров, облицованный нержавеющей сталью.
 У противоположного глухого торца сделана кухня с мокрой зоной, и рядом с ней находится дверь в гостевой санузел. Дверь деликатно врезана в декоративные стеновые панели, и ее не сразу можно заметить. Вся остальная мебель в помещении – мобильная: ее можно переставлять, меняя экспозицию декора и ваз или освобождая место для встреч и вечеринок.
 Кухня в этом пространстве сочетает утилитарность и декоративность: в зеркальном фартуке отражается естественный свет, а лепнина на стене служит фоном для съемки свежих цветочных поставок.
 В процессе работы над интерьером студии было решено сохранить и подчеркнуть историческую кирпичную кладку, которую очистили и покрасили в белый цвет. Ее выразительную фактуру подчеркивают классические оконные ручки и бетонные подоконники, идеально подходящие для сложных проемов.
Интерьер получился живым и гибким, рабочим и праздничным одновременно – как сама идея этой цветочной студии.
 Flower shop UTROMФотография © Виталий Жданов / предоставлена SUSHKOVADESIGN
Flower shop UTROMФотография © Виталий Жданов / предоставлена SUSHKOVADESIGN
Flower shop UTROMФотография © Виталий Жданов / предоставлена SUSHKOVADESIGNFlower shop UTROMФотография © Виталий Жданов / предоставлена SUSHKOVADESIGNFlower shop UTROMФотография © Виталий Жданов / предоставлена SUSHKOVADESIGNFlower shop UTROMФотография © Виталий Жданов / предоставлена SUSHKOVADESIGNFlower shop UTROMФотография © Виталий Жданов / предоставлена SUSHKOVADESIGNFlower shop UTROMФотография © Виталий Жданов / предоставлена SUSHKOVADESIGNFlower shop UTROMФотография © Виталий Жданов / предоставлена SUSHKOVADESIGNFlower shop UTROMФотография © Виталий Жданов / предоставлена SUSHKOVADESIGNFlower shop UTROMФотография © Виталий Жданов / предоставлена SUSHKOVADESIGNFlower shop UTROMФотография © Виталий Жданов / предоставлена SUSHKOVADESIGNFlower shop UTROMФотография © Виталий Жданов / предоставлена SUSHKOVADESIGNFlower shop UTROMФотография © Виталий Жданов / предоставлена SUSHKOVADESIGNFlower shop UTROMФотография © Виталий Жданов / предоставлена SUSHKOVADESIGNFlower shop UTROMФотография © Виталий Жданов / предоставлена SUSHKOVADESIGNFlower shop UTROMФотография © Виталий Жданов / предоставлена SUSHKOVADESIGNFlower shop UTROMФотография © Виталий Жданов / предоставлена SUSHKOVADESIGNFlower shop UTROMФотография © Виталий Жданов / предоставлена SUSHKOVADESIGNFlower shop UTROMФотография © Виталий Жданов / предоставлена SUSHKOVADESIGNFlower shop UTROMФотография © Виталий Жданов / предоставлена SUSHKOVADESIGNFlower shop UTROMФотография © Виталий Жданов / предоставлена SUSHKOVADESIGNFlower shop UTROMФотография © Виталий Жданов / предоставлена SUSHKOVADESIGNFlower shop UTROMФотография © Виталий Жданов / предоставлена SUSHKOVADESIGNFlower shop UTROMФотография © Виталий Жданов / предоставлена SUSHKOVADESIGNFlower shop UTROMФотография © Виталий Жданов / предоставлена SUSHKOVADESIGNFlower shop UTROMФотография © Виталий Жданов / предоставлена SUSHKOVADESIGNFlower shop UTROMФотография © Виталий Жданов / предоставлена SUSHKOVADESIGNFlower shop UTROM© SUSHKOVADESIGNFlower shop UTROM© SUSHKOVADESIGNFlower shop UTROMФотография © Виталий Жданов / предоставлена SUSHKOVADESIGN
|