Размещено на портале Архи.ру (www.archi.ru)

26.01.2026

Палитра возможностей. Часть 2

Мария Лындина
Объект:
Бизнес-инкубатор в городе Арчена
Адрес:
Испания, None, Арчена.
Детский ресторан Aranya
Адрес:
Китай, None, Циньхуандао.
Кофешоп и пространство для чтения PRISM
Адрес:
Китай, None, Шанхай.
Мастерская:
Amaa Architects
Wutopia Lab
ПАО "СИБУР Холдинг"
HCCH Studio
Associated Architects

В каких проектах и почему современные архитекторы используют такой технологичный, экономичный и выразительный материал, как панели поликарбоната? Продолжаем мини-исследование и во второй части обзора анализируем мировой опыт.

Поликарбонат можно без преувеличения назвать универсальным, даже нарочито простым материалом. Он в равной степени активно используется как во внешней, так и во внутренней отделке, предоставляя широкий спектр возможностей при относительной экономичности и высокой скорости монтажа. Поликарбонат создает четкие, легко читаемые объемы, а важнейшим элементом при работе с ним становится свет.

Во второй части обзора в рамках спецпроекта «От молекулы до здания» мы собрали шесть необычных проектов со всего мира, в которых поликарбонат становится не только рациональным и функциональным выбором, но и важнейшим средством эмоционального воздействия. Он добавляет объектам столь необходимую человечность и позволяет архитекторам минимальными усилиями создавать яркие, запоминающиеся образы.

Детский ресторан Aranya
Проект: Wutopia Lab (Китай)

Циньхуандао, Китай
Заказчик: Aranya
Окончание строительства: 2018
Площадь: 1000 кв. м.


Усилиями девелоперской компании Aranya одноименный район морского курорта Циньхуандао на северо-востоке Китая стал известен и как Мекка современного искусства и архитектуры, где активно экспериментируют с материалами, в частности с поликарбонатом. Здесь работают арт-центр по проекту студии Neri&Hu, музей в дюнах бюро OPEN Architecture, библиотека на пляже от Vector Architects, свой «Облачный арт-центр» строит Ма Яньсун. Также в Аранье проходит значимый театральный фестиваль, привлекающий самых известных художников.

Основателю бюро Wutopia Lab Юй Тину доверили в этом активно развивающемся живом организме трансформировать часть так называемого клубного дома (под типологией обычно скрывается общественный центр, который в процессе строительства жилого комплекса может использоваться и как шоу-рум) в специальный детский ресторан. Проект получил условное название «Небывалая страна поликарбоната». В нем, как и во многих других работах китайской звезды, из простых материалов и сдержанных минималистичных решений собирается иллюзорный мир сказок и снов, наполненный символами и фантастическими образами. В данном случае волшебство помог сотворить именно поликарбонат. Изначально довольно скучный прямоугольный объем получил новый внешний слой из полупрозрачных, светящихся в темное время панелей. За ними проглядывают лестницы и озеленение.

По ярко-желтой лестнице можно попасть сразу на второй этаж, в основное пространство, которое решено как круглый обеденный зал, ограниченный трубками ПВХ, и еще два отдельных округлых зала, тоже выполненных из полупрозрачного поликарбоната. Благодаря мягкому верхнему освещению, текстура материала исчезает, остается только загадочный, непредсказуемый свет, так что маленький посетитель теряет ориентацию в этом волшебном пространстве. Лестница же ведет дальше, мимо удивительного пузырчатого дерева, на самую высокую точку кровли, в небольшой красный домик из перфорированных алюминиевых панелей. На нижнем уровне архитекторы устроили необычную игровую площадку с большими прозрачными шарами из ПВХ и потолком в виде звездного неба.
Бизнес-инкубатор
Проект: AMAA Arquitectos (Испания)

Арчена, Испания
Заказчик: Городской совет Арчены
Окончание строительства: 2017
Площадь: 346 кв. м.


Небольшой городок Арчена на юго-востоке Испании известен как бальнеологический курорт. На самой его окраине, на границе жилого квартала и сельской местности мэрией был выделен участок под строительство здания бизнес-инкубатора для перспективных стартапов. Задача перед архитекторами местного бюро AMAA стояла совсем непростая: необходимо было создать активный, заметный объект для амбициозных молодых людей, который органично впишется в разноплановое окружение, сразу привлечет внимание и задаст вектор развития всему району, общая планировка которого еще только формируется. При этом бюджет проекта был более чем скромен, и времени на реализацию было также совсем немного. Ответить на все эти ограничения и вызовы помогли полупрозрачные панели поликарбоната.

Скульптурный и очень динамичный объем вырастает из земли и взлетает в направлении полей резкой консолью с панорамным остеклении на торце, а перед его низкой частью с северной стороны обустроено небольшое общественное пространство, связывающее с городом. Все грани заполнены двумя слоями полупрозрачного поликарбоната, который акцентирует рисунок конструкций и приоткрывает происходящие в инкубаторе процессы вовне, оставляя тем не менее некий ареол загадочности (особенно эффект заметен в темное время). Все фасады таким образом оказываются разными, а восприятие здания постоянно меняется при движении.

Внутри все продумано так, чтобы максимально стимулировать коммуникацию и обмен перспективными идеями между участниками. Единое пространство организовано ступенчато, так что часть его образует амфитеатр. В интерьере поликарбонат тоже становится ключевым элементом, создавая рассеянный, несколько футуристичный световой фон. Более того, это освещение меняется в зависимости от времени дня и погоды, добавляя динамики и позволяя постоянно сохранять связь с внешним миром. Бюджет проекта составил всего €385 тыс.
Кофешоп и пространство для чтения PRISM
Проект: HCCH Studio (Китай)

Шанхай, Китай
Окончание строительства: 2021
Площадь: 300 кв. м.


В одном из вполне обычных офисно-складских корпусов технологического кампуса в пригородном районе Шанхая Миньхан бюро HCCH Studio попросили разместить привлекательную зону, в которой можно было бы с комфортом устроиться с чашкой кофе и книжкой, детям тоже бы нашлось место. Обратив внимание, что высокий двухуровневый атриум с выходящими в него помещениями лишен вертикальной коммуникации и каких бы то ни было эффектных элементов, архитекторы решились на смелое решение. В пространстве атриума были установлены четыре опоры, каждая из которых поддерживает огороженную платформу в виде перевернутой призмы. Они отличаются высотой и размерами, что дало возможность, соединив их переходами, организовать целый маршрут, связывающий множество разнообразных зон. При этом новые объекты полностью независимы от конструкций самого здания.

В качестве основного средства достижения необходимого вау-эффекта применили панели полупрозрачного поликарбоната. Именно они формируют опоры и призмы платформ. Листы используются нестандартно – не в качестве вертикальной обшивки, а укладываются горизонтально, подобно кладке, что подчеркивает текстуру и создает необычный светопропускающий эффект. Кроме того, ряды немного сдвинуты друг относительно друга, чтобы эта условная «кладка» своей неровной поверхностью действительно напоминала каменную или кирпичную.

И, конечно, все конструкции получили яркую внутреннюю подсветку, дематериализовавшую в конечном итоге полупрозрачный пластик и превратившую вывернутые на ветру «зонтики» опор платформ в сильные, футуристичные объекты, выглядящие еще более контрастно благодаря преимущественно черной отделке окружения. Именно они определяют настроение и, в конечном итоге, качество создаваемого пространства для чтения. Из такого же полупрозрачного поликарбоната выполнены и многочисленные стеллажи для книг, которые являются идеальным нейтральным фоном для ярких изданий.
Крематорий для животных
Проект: Petr Hajek Architekti (Чехия)

Дрнов, Чехия
Окончание строительства: 2020
Площадь: 250 кв. м.


В 1985 году под деревней Дрнов, примерно в часе езды от Праги, был построен крупный военный бункер и размещена база противовоздушной обороны для защиты столицы. В 2009-м потерявший актуальность военный объект был трансформировали в Музей эпохи Холодной войны, который в конечном итоге стал довольно популярным местом проведения досуга. Но кроме основного бункера с собственно экспозицией, на территории сохранилось еще несколько меньших, сервисных построек. Одну из них архитекторы местного бюро Petr Hajek Architekti превратили в крематорий для животных. Свой проект они назвали очень поэтично и даже высокопарно: «Вечные охотничьи угодья». Одной из причин такого названия стала буйная окружающая природа и сильно разросшиеся на охраняемой территории (из-за своего статуса фактически лишенной вмешательства человека) кустарники и деревья. Удивительно, но поликарбонат в этой среде оказался не просто уместным, а идеальным материалом для реализации концепции.

В попытке не только сохранить, но и подчеркнуть обилие зелени, архитекторы превратили свой объект в гигантское зеркало, за которым полностью скрыт сам крематорий. На смелое решение, близкое миру современного искусства, их вдохновили работы скульпторов Аниша Капура и Ричарда Серры. Огромная зеркальная стена длиной 11 м и высотой 6 м отражает всю окружающую растительность, но при этом немного искажает реальность и потому запутывает посетителя. В результате возникает ощущение неких ворот в иной мир.

Поверхность стены собрана из небольших шестигранных пластин поликарбоната с металлизированным покрытием, которые вручную наклеивались на кирпичную стену. Чтобы птицы не врезались в зеркальную поверхность и не гибли, нанесено дополнительное прозрачное покрытие, видимое только в ультрафиолетовом спектре. Кроме этого необычного элемента и довольно сложно замаскированной входной двери, все остальное пространство предельно утилитарно и нейтрально: бетонные оштукатуренные блоки, дерево, белые стены. Важную роль играет верхний световой фонарь, который тоже выполнен из полупрозрачного поликарбоната.
Спортивный центр в районе Монери 
Проект: Gbau (Франция)

Румийи, Франция
Заказчик: Муниципалитет коммуны Румийи
Окончание строительства: 2010
Площадь: 2750 кв. м.


Промышленный район Монери рядом с вокзалом и железной дорогой в небольшой французской коммуне Румийи в последние годы активно трансформируется в комфортный жилой кластер. Первыми объектами новой инфраструктуры вполне предсказуемо стали здания общественного назначения. Одно из них – спортивный центр – занимает участок вплотную примыкающий к железнодорожным путям. Две довольно простых прямоугольных «коробки» размером 46 х 26 м и 46 х 17 м вмещают большой основной зал для проведения соревнований и две тренировочные площадки. Неожиданно оба объема оказываются заглублены на 3,5 метра и попасть внутрь можно лишь по специально оборудованной рампе. Вторая такая же рампа используется для технического обслуживания. Решение позволило архитекторам бюро Gbau, занимавшимся проектом, скрыть под землей все раздевалки, туалеты, складские помещения и зоны общего пользования.

Тем не менее, оба корпуса, возвышающиеся над землей на целых 7 м, оказываются хорошо заметны в пространстве города и, более того, активно взаимодействуют с окружением. Главную роль в этом играют листы цветного полупрозрачного поликарбоната, которыми выложены их ровные прямоугольные грани. Благодаря им спортивный центр сохраняет органическую связь с железнодорожными складами и промышленной эстетикой в целом, но приобретает живой, молодежный настрой.

Единственными пластически активными элементами стали два мощных объемных навеса с юго-западной и юго-восточной стороны обеих построек, которые защищают внутренние помещения от перегрева. Полностью лишив свою постройку какого бы то ни было декора, архитекторы выбрали яркие и смелые оттенки: лилово-розовый и лаймово-фисташковый. Сочетания плоских цветных пятен правильной геометрии в конечном счете рождает абстрактные «полотна», которые несут не только и не столько декоративную нагрузку, но и сильно воздействуют эмоционально.
Молодежный центр «Маяк»
Проект: Associated Architects (Великобритания)

Бирмингем, Великобритания
Заказчик: Городской совет Бирмингема
Окончание строительства: 2014
Площадь: 1930 кв. м.


Проект нового общественного центра для подростков 13-19 лет строился на деньги государственной программы поддержки молодежи из неблагополучных районов myplace («мое место»). Он расположен прямо на многополосной магистрали, ведущей в центр, и потому отлично заметен в пространстве города. По задумке новое здание должно действительно стать маяком надежды, освещающим путь в будущее подросткам из сразу трех близлежащих районов Бирмингема: Астон, Лозеллс и Ньютаун. Чтобы наиболее точно ответить на запросы местных тинейждеров, им предоставили возможность поучаствовать в многочисленных воркшопах, а также организовали посещение других успешных объектов подобного назначения в Британии.

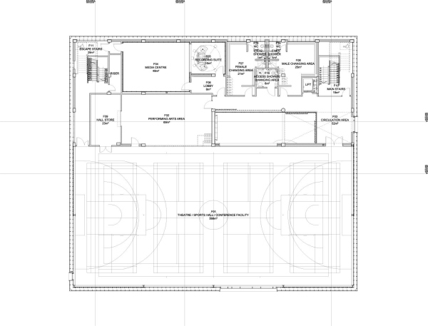
Визуализировать образ спасительного маяка как раз и помог полупрозрачный цветной поликарбонат. Вертикальные панели разных оттенков – от белого до насыщенного сине-голубого – почти полностью покрывают приподнятый над землей основной объем центра. Внутри устроены гибкие общественные и специализированные пространства, дающие возможность встречаться и реализовать самые разные идеи. В нижней части находятся кафе, общественные зоны, консультационный центр и оборудованные компьютерные классы. На верхних этажах размещены сразу 4 спортивные площадки (зал можно также использовать для конференций и других мероприятий), танцевальная студия, студия звукозаписи, отдельные комнаты для занятий музыкой и что-то вроде бизнес-инкубатора. Благодаря поликарбонату в дневное время все пространства имеют хороший уровень естественного освещения, при этом происходящее в центре не скрыто за дверями, а становится частью жизни города, привлекая все больше и больше ребят. Вечером, благодаря специальной светодиодной подсветке, возникает яркий городской маяк, причем внушительный спортивный зал оказывается особенно выделен.

***

Очевидно, что поликарбонат в современной архитектуре перестает быть «временным», утилитарным материалом, привлекающим относительной ценовой доступностью и скоростью монтажа. Именно поликарбонат позволяет показать и выделить столь востребованные сегодня легкость, наполненность светом, многослойность и изменчивость. Во всех рассмотренных проектах эффективная оболочка из полупрозрачных панелей становится активным и очень важным элементом формирования образа, причем весьма эмоционального, даже при внешней сдержанности. За счет этого получается добиться еще одной важной цели – интегрировать объект практически в любую среду и установить диалог с любым окружением. 

Больше информации о технологиях работы с полимерными материалами в архитектуре на сайте СИБУР.
Детский ресторан Aranya на курорте Циньхуандао в Китае Фотография © CreatAR Images
Детский ресторан Aranya на курорте Циньхуандао в Китае
Фотография © CreatAR Images
Детский ресторан Aranya на курорте Циньхуандао в Китае Фотография © CreatAR Images
Детский ресторан Aranya на курорте Циньхуандао в Китае
Фотография © CreatAR Images
Детский ресторан Aranya на курорте Циньхуандао в Китае Фотография © CreatAR Images
Детский ресторан Aranya на курорте Циньхуандао в Китае
Фотография © CreatAR Images
Детский ресторан Aranya на курорте Циньхуандао в Китае Фотография © CreatAR Images
Детский ресторан Aranya на курорте Циньхуандао в Китае
Фотография © CreatAR Images
Детский ресторан Aranya на курорте Циньхуандао в Китае Фотография © CreatAR Images
Детский ресторан Aranya на курорте Циньхуандао в Китае
Фотография © CreatAR Images
Детский ресторан Aranya на курорте Циньхуандао в Китае Фотография © CreatAR Images
Детский ресторан Aranya на курорте Циньхуандао в Китае
Фотография © CreatAR Images
Детский ресторан Aranya на курорте Циньхуандао в Китае Фотография © CreatAR Images
Детский ресторан Aranya на курорте Циньхуандао в Китае
Фотография © CreatAR Images
Детский ресторан Aranya на курорте Циньхуандао в Китае Фотография © CreatAR Images
Детский ресторан Aranya на курорте Циньхуандао в Китае
Фотография © CreatAR Images
Детский ресторан Aranya на курорте Циньхуандао в Китае Фотография © CreatAR Images
Детский ресторан Aranya на курорте Циньхуандао в Китае
Фотография © CreatAR Images
Детский ресторан Aranya на курорте Циньхуандао в Китае Фотография © CreatAR Images
Детский ресторан Aranya на курорте Циньхуандао в Китае
Фотография © CreatAR Images
Детский ресторан Aranya на курорте Циньхуандао в Китае Фотография © CreatAR Images
Детский ресторан Aranya на курорте Циньхуандао в Китае
Фотография © CreatAR Images
Детский ресторан Aranya на курорте Циньхуандао в Китае © Wutopia Lab
Детский ресторан Aranya на курорте Циньхуандао в Китае
© Wutopia Lab
Детский ресторан Aranya на курорте Циньхуандао в Китае © Wutopia Lab
Детский ресторан Aranya на курорте Циньхуандао в Китае
© Wutopia Lab
Детский ресторан Aranya на курорте Циньхуандао в Китае © Wutopia Lab
Детский ресторан Aranya на курорте Циньхуандао в Китае
© Wutopia Lab
Детский ресторан Aranya на курорте Циньхуандао в Китае © Wutopia Lab
Детский ресторан Aranya на курорте Циньхуандао в Китае
© Wutopia Lab
Бизнес-инкубатор в городе Арчена в Испании Фотография © David Frutos
Бизнес-инкубатор в городе Арчена в Испании
Фотография © David Frutos
Бизнес-инкубатор в городе Арчена в Испании Фотография © David Frutos
Бизнес-инкубатор в городе Арчена в Испании
Фотография © David Frutos
Бизнес-инкубатор в городе Арчена в Испании Фотография © David Frutos
Бизнес-инкубатор в городе Арчена в Испании
Фотография © David Frutos
Бизнес-инкубатор в городе Арчена в Испании Фотография © David Frutos
Бизнес-инкубатор в городе Арчена в Испании
Фотография © David Frutos
Бизнес-инкубатор в городе Арчена в Испании Фотография © David Frutos
Бизнес-инкубатор в городе Арчена в Испании
Фотография © David Frutos
Бизнес-инкубатор в городе Арчена в Испании Фотография © David Frutos
Бизнес-инкубатор в городе Арчена в Испании
Фотография © David Frutos
Бизнес-инкубатор в городе Арчена в Испании Фотография © David Frutos
Бизнес-инкубатор в городе Арчена в Испании
Фотография © David Frutos
Бизнес-инкубатор в городе Арчена в Испании Фотография © David Frutos
Бизнес-инкубатор в городе Арчена в Испании
Фотография © David Frutos
Бизнес-инкубатор в городе Арчена в Испании Фотография © David Frutos
Бизнес-инкубатор в городе Арчена в Испании
Фотография © David Frutos
Бизнес-инкубатор в городе Арчена в Испании Фотография © David Frutos
Бизнес-инкубатор в городе Арчена в Испании
Фотография © David Frutos
Бизнес-инкубатор в городе Арчена в Испании Фотография © David Frutos
Бизнес-инкубатор в городе Арчена в Испании
Фотография © David Frutos
Бизнес-инкубатор в городе Арчена в Испании Фотография © David Frutos
Бизнес-инкубатор в городе Арчена в Испании
Фотография © David Frutos
Бизнес-инкубатор в городе Арчена в Испании Фотография © David Frutos
Бизнес-инкубатор в городе Арчена в Испании
Фотография © David Frutos
Бизнес-инкубатор в городе Арчена в Испании Фотография © David Frutos
Бизнес-инкубатор в городе Арчена в Испании
Фотография © David Frutos
Бизнес-инкубатор в городе Арчена в Испании Фотография © David Frutos
Бизнес-инкубатор в городе Арчена в Испании
Фотография © David Frutos
Бизнес-инкубатор в городе Арчена в Испании © AMAA Arquitectos
Бизнес-инкубатор в городе Арчена в Испании
© AMAA Arquitectos
Бизнес-инкубатор в городе Арчена в Испании © AMAA Arquitectos
Бизнес-инкубатор в городе Арчена в Испании
© AMAA Arquitectos
Кофешоп и пространство для чтения PRISM в Шанхае Фотография © Qingyan Zhu
Кофешоп и пространство для чтения PRISM в Шанхае
Фотография © Qingyan Zhu
Кофешоп и пространство для чтения PRISM в Шанхае Фотография © Qingyan Zhu
Кофешоп и пространство для чтения PRISM в Шанхае
Фотография © Qingyan Zhu
Кофешоп и пространство для чтения PRISM в Шанхае Фотография © Qingyan Zhu
Кофешоп и пространство для чтения PRISM в Шанхае
Фотография © Qingyan Zhu
Кофешоп и пространство для чтения PRISM в Шанхае Фотография © Qingyan Zhu
Кофешоп и пространство для чтения PRISM в Шанхае
Фотография © Qingyan Zhu
Кофешоп и пространство для чтения PRISM в Шанхае Фотография © Qingyan Zhu
Кофешоп и пространство для чтения PRISM в Шанхае
Фотография © Qingyan Zhu
Кофешоп и пространство для чтения PRISM в Шанхае © HCCH Studio
Кофешоп и пространство для чтения PRISM в Шанхае
© HCCH Studio
Кофешоп и пространство для чтения PRISM в Шанхае © HCCH Studio
Кофешоп и пространство для чтения PRISM в Шанхае
© HCCH Studio
Кофешоп и пространство для чтения PRISM в Шанхае © HCCH Studio
Кофешоп и пространство для чтения PRISM в Шанхае
© HCCH Studio
Кофешоп и пространство для чтения PRISM в Шанхае © HCCH Studio
Кофешоп и пространство для чтения PRISM в Шанхае
© HCCH Studio
Кофешоп и пространство для чтения PRISM в Шанхае Фотография © Qingyan Zhu
Кофешоп и пространство для чтения PRISM в Шанхае
Фотография © Qingyan Zhu
Кофешоп и пространство для чтения PRISM в Шанхае Фотография © Qingyan Zhu
Кофешоп и пространство для чтения PRISM в Шанхае
Фотография © Qingyan Zhu
Крематорий для животных в деревне Дрнов в Чехии Фотография © Radek Úlehla
Крематорий для животных в деревне Дрнов в Чехии
Фотография © Radek Úlehla
Крематорий для животных в деревне Дрнов в Чехии Фотография © Radek Úlehla
Крематорий для животных в деревне Дрнов в Чехии
Фотография © Radek Úlehla
Крематорий для животных в деревне Дрнов в Чехии Фотография © Radek Úlehla
Крематорий для животных в деревне Дрнов в Чехии
Фотография © Radek Úlehla
Крематорий для животных в деревне Дрнов в Чехии Фотография © Radek Úlehla
Крематорий для животных в деревне Дрнов в Чехии
Фотография © Radek Úlehla
Крематорий для животных в деревне Дрнов в Чехии Фотография © Radek Úlehla
Крематорий для животных в деревне Дрнов в Чехии
Фотография © Radek Úlehla
Крематорий для животных в деревне Дрнов в Чехии Фотография © Radek Úlehla
Крематорий для животных в деревне Дрнов в Чехии
Фотография © Radek Úlehla
Крематорий для животных в деревне Дрнов в Чехии Фотография © Radek Úlehla
Крематорий для животных в деревне Дрнов в Чехии
Фотография © Radek Úlehla
Крематорий для животных в деревне Дрнов в Чехии Фотография © Radek Úlehla
Крематорий для животных в деревне Дрнов в Чехии
Фотография © Radek Úlehla
Крематорий для животных в деревне Дрнов в Чехии Фотография © Radek Úlehla
Крематорий для животных в деревне Дрнов в Чехии
Фотография © Radek Úlehla
Крематорий для животных в деревне Дрнов в Чехии Фотография © Radek Úlehla
Крематорий для животных в деревне Дрнов в Чехии
Фотография © Radek Úlehla
Крематорий для животных в деревне Дрнов в Чехии Фотография © Radek Úlehla
Крематорий для животных в деревне Дрнов в Чехии
Фотография © Radek Úlehla
Крематорий для животных в деревне Дрнов в Чехии Фотография © Radek Úlehla
Крематорий для животных в деревне Дрнов в Чехии
Фотография © Radek Úlehla
Крематорий для животных в деревне Дрнов в Чехии © Petr Hajek Architekti
Крематорий для животных в деревне Дрнов в Чехии
© Petr Hajek Architekti
Крематорий для животных в деревне Дрнов в Чехии © Petr Hajek Architekti
Крематорий для животных в деревне Дрнов в Чехии
© Petr Hajek Architekti
Спортивный центр в районе Монери коммуны Румийи во Франция Фотография © Philippe Ruault
Спортивный центр в районе Монери коммуны Румийи во Франция
Фотография © Philippe Ruault
Спортивный центр в районе Монери коммуны Румийи во Франция Фотография © Philippe Ruault
Спортивный центр в районе Монери коммуны Румийи во Франция
Фотография © Philippe Ruault
Спортивный центр в районе Монери коммуны Румийи во Франция Фотография © Pierre Vallet
Спортивный центр в районе Монери коммуны Румийи во Франция
Фотография © Pierre Vallet
Спортивный центр в районе Монери коммуны Румийи во Франция Фотография © Philippe Ruault
Спортивный центр в районе Монери коммуны Румийи во Франция
Фотография © Philippe Ruault
Спортивный центр в районе Монери коммуны Румийи во Франция Фотография © Philippe Ruault
Спортивный центр в районе Монери коммуны Румийи во Франция
Фотография © Philippe Ruault
Спортивный центр в районе Монери коммуны Румийи во Франция Фотография © Philippe Ruault
Спортивный центр в районе Монери коммуны Румийи во Франция
Фотография © Philippe Ruault
Спортивный центр в районе Монери коммуны Румийи во Франция Фотография © Emmanuelle Blanc
Спортивный центр в районе Монери коммуны Румийи во Франция
Фотография © Emmanuelle Blanc
Спортивный центр в районе Монери коммуны Румийи во Франция Фотография © Emmanuelle Blanc
Спортивный центр в районе Монери коммуны Румийи во Франция
Фотография © Emmanuelle Blanc
Спортивный центр в районе Монери коммуны Румийи во Франция Фотография © Philippe Ruault
Спортивный центр в районе Монери коммуны Румийи во Франция
Фотография © Philippe Ruault
Спортивный центр в районе Монери коммуны Румийи во Франция © Guyard Bregman Architectes Urbanistes (GBAU)
Спортивный центр в районе Монери коммуны Румийи во Франция
© Guyard Bregman Architectes Urbanistes (GBAU)
Спортивный центр в районе Монери коммуны Румийи во Франция © Guyard Bregman Architectes Urbanistes (GBAU)
Спортивный центр в районе Монери коммуны Румийи во Франция
© Guyard Bregman Architectes Urbanistes (GBAU)
Молодежный центр «Маяк» в Бирмингеме Фотография © Craig Holmes
Молодежный центр «Маяк» в Бирмингеме
Фотография © Craig Holmes
Молодежный центр «Маяк» в Бирмингеме Фотография © Craig Holmes
Молодежный центр «Маяк» в Бирмингеме
Фотография © Craig Holmes
Молодежный центр «Маяк» в Бирмингеме Фотография © Craig Holmes
Молодежный центр «Маяк» в Бирмингеме
Фотография © Craig Holmes
Молодежный центр «Маяк» в Бирмингеме Фотография © Craig Holmes
Молодежный центр «Маяк» в Бирмингеме
Фотография © Craig Holmes
Молодежный центр «Маяк» в Бирмингеме Фотография © Craig Holmes
Молодежный центр «Маяк» в Бирмингеме
Фотография © Craig Holmes
Молодежный центр «Маяк» в Бирмингеме Фотография © Craig Holmes
Молодежный центр «Маяк» в Бирмингеме
Фотография © Craig Holmes
Молодежный центр «Маяк» в Бирмингеме Фотография © Craig Holmes
Молодежный центр «Маяк» в Бирмингеме
Фотография © Craig Holmes
Молодежный центр «Маяк» в Бирмингеме Фотография © Craig Holmes
Молодежный центр «Маяк» в Бирмингеме
Фотография © Craig Holmes
Молодежный центр «Маяк» в Бирмингеме Фотография © Craig Holmes
Молодежный центр «Маяк» в Бирмингеме
Фотография © Craig Holmes
Молодежный центр «Маяк» в Бирмингеме © Associated Architects
Молодежный центр «Маяк» в Бирмингеме
© Associated Architects
Молодежный центр «Маяк» в Бирмингеме © Associated Architects
Молодежный центр «Маяк» в Бирмингеме
© Associated Architects
Молодежный центр «Маяк» в Бирмингеме © Associated Architects
Молодежный центр «Маяк» в Бирмингеме
© Associated Architects
Молодежный центр «Маяк» в Бирмингеме © Associated Architects
Молодежный центр «Маяк» в Бирмингеме
© Associated Architects
Молодежный центр «Маяк» в Бирмингеме © Associated Architects
Молодежный центр «Маяк» в Бирмингеме
© Associated Architects
Молодежный центр «Маяк» в Бирмингеме © Associated Architects
Молодежный центр «Маяк» в Бирмингеме
© Associated Architects
Молодежный центр «Маяк» в Бирмингеме © Associated Architects
Молодежный центр «Маяк» в Бирмингеме
© Associated Architects