Размещено на портале Архи.ру (www.archi.ru)

19.12.2025

Полки с квартирами

Анна Старостина
Объект:
Многоквартирный дом на озере Лиси
Адрес:
Грузия, None, Тбилиси.
Мастерская:
Architects of Invention

При разработке проекта многоквартирного дома на озере Лиси под Тбилиси Architects of Invention вдохновлялись теоретической работой студии SITE и офортом Александра Бродского и Ильи Уткина.

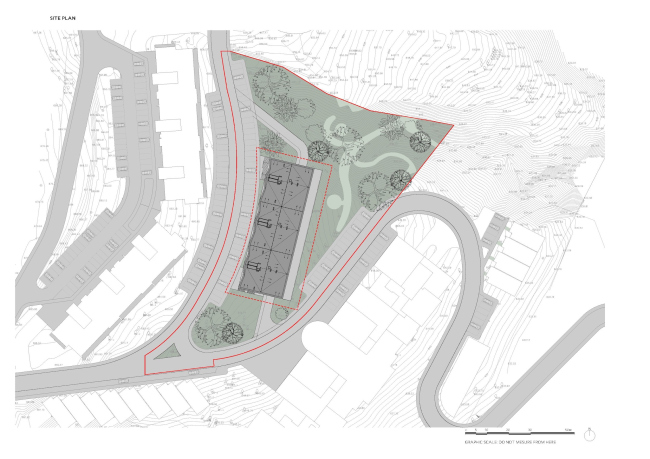
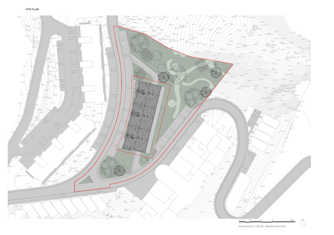
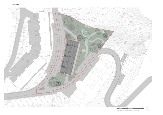
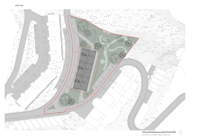
Территория на северо-западе от Тбилиси, в районе Сабуртало, застраивается с 2010: здесь, рядом с озером Лиси, девелоперы хотят сформировать современный и даже передовой квартал для повседневной жизни и отдыха. К работе над этим амбициозным планом привлекли известных архитекторов: свои проекты в «Зеленом городе» уже реализовали бюро UNS и Bofill Taller de Arquitectura, а самым свежим зданием здесь стал многоквартирный дом авторства британско-грузинского бюро Architects of Invention.

Семиэтажный объем расположен высоко на склоне холма и поставлен так, чтобы из квартир открывались виды в обе стороны: и на город, и на озеро. В основе проекта – модульность и использование сборных элементов, что позволило снизить затраты строительных материалов, ускорить и удешевить строительство. Бюджет проекта составил $25 млн.

В подземной части размещена парковка, на первом ярусе – коммерческие помещения, а остальные этажи занимают 42 квартиры, в том числе двухуровневые апартаменты на самом верху. Все они разбиты на три вертикальных блока, каждый со своей лестницей и всего двумя квартирами на этаж, что позволило обеспечить высокий уровень приватности и соблюсти жесткие противопожарные требования. И, конечно, двойная ориентация почти всех жилых ячеек обеспечивает хорошее освещение и естественную вентиляцию.

Четко следуя разработанному для всего квартала дизайн-коду и ограничениям по высоте, бюро Architects of Invention смогло при этом добиться индивидуальности образа здания. Изюминкой проекта стали просторные, отделанные белым мрамором террасы, обращенные на восток, в сторону Тбилиси.

Идею подсказали сразу две концептуальные работы: в своем теоретическом проекте 1981 года «Небоскреб домов» Джеймс Вайнс из авангардной студии SITE представил «стеллаж», на полках которого расставлены утопающие в зелени домики, а в 1989 «бумажные» в тот момент архитекторы Александр Бродский и Илья Уткин создали офорт «Обитаемый колумбарий», в ячейках которого сохраняются старые дома.

Внимание Николоза Джапаридзе и его коллег из Architects of Invention привлекла предложенная авторами этих графических листов схема со свободным пространством вокруг «складированных» ярусами жилых объемов. Им удалось убедить заказчика, и так на террасах с востока дома появились просторные остекленные «комнаты», переходное пространство между интерьером и окружающей средой. Западный же фасад, обращенный в сторону холма и озера, получил объемное, пластически активное ленточное остекление.

Многоквартирный дом на озере Лиси
Многоквартирный дом на озере Лиси
Фотография © Grigorii Sokolinskii / предоставлена Architects of Invention
Многоквартирный дом на озере Лиси
Многоквартирный дом на озере Лиси
Фотография © Grigorii Sokolinskii / предоставлена Architects of Invention
Многоквартирный дом на озере Лиси Фотография © Grigorii Sokolinskii / предоставлена Architects of Invention
Многоквартирный дом на озере Лиси
Фотография © Grigorii Sokolinskii / предоставлена Architects of Invention
Многоквартирный дом на озере Лиси Фотография © Grigorii Sokolinskii / предоставлена Architects of Invention
Многоквартирный дом на озере Лиси
Фотография © Grigorii Sokolinskii / предоставлена Architects of Invention
Многоквартирный дом на озере Лиси
Многоквартирный дом на озере Лиси
Фотография © Grigorii Sokolinskii / предоставлена Architects of Invention
Многоквартирный дом на озере Лиси
Многоквартирный дом на озере Лиси
Фотография © Grigorii Sokolinskii / предоставлена Architects of Invention
Многоквартирный дом на озере Лиси
Многоквартирный дом на озере Лиси
Фотография © Grigorii Sokolinskii / предоставлена Architects of Invention
Многоквартирный дом на озере Лиси
Многоквартирный дом на озере Лиси
Фотография © Grigorii Sokolinskii / предоставлена Architects of Invention
Многоквартирный дом на озере Лиси
Многоквартирный дом на озере Лиси
Фотография © Grigorii Sokolinskii / предоставлена Architects of Invention
Многоквартирный дом на озере Лиси Фотография © Grigorii Sokolinskii / предоставлена Architects of Invention
Многоквартирный дом на озере Лиси
Фотография © Grigorii Sokolinskii / предоставлена Architects of Invention
Многоквартирный дом на озере Лиси Фотография © Grigorii Sokolinskii / предоставлена Architects of Invention
Многоквартирный дом на озере Лиси
Фотография © Grigorii Sokolinskii / предоставлена Architects of Invention
Многоквартирный дом на озере Лиси
Многоквартирный дом на озере Лиси
Фотография © Grigorii Sokolinskii / предоставлена Architects of Invention
Многоквартирный дом на озере Лиси
Многоквартирный дом на озере Лиси
Фотография © Grigorii Sokolinskii / предоставлена Architects of Invention
Многоквартирный дом на озере Лиси Фотография © Grigorii Sokolinskii / предоставлена Architects of Invention
Многоквартирный дом на озере Лиси
Фотография © Grigorii Sokolinskii / предоставлена Architects of Invention
Многоквартирный дом на озере Лиси Фотография © Grigorii Sokolinskii / предоставлена Architects of Invention
Многоквартирный дом на озере Лиси
Фотография © Grigorii Sokolinskii / предоставлена Architects of Invention
Многоквартирный дом на озере Лиси Фотография © Grigorii Sokolinskii / предоставлена Architects of Invention
Многоквартирный дом на озере Лиси
Фотография © Grigorii Sokolinskii / предоставлена Architects of Invention
Многоквартирный дом на озере Лиси Фотография © Grigorii Sokolinskii / предоставлена Architects of Invention
Многоквартирный дом на озере Лиси
Фотография © Grigorii Sokolinskii / предоставлена Architects of Invention
Многоквартирный дом на озере Лиси Фотография © Grigorii Sokolinskii / предоставлена Architects of Invention
Многоквартирный дом на озере Лиси
Фотография © Grigorii Sokolinskii / предоставлена Architects of Invention
Многоквартирный дом на озере Лиси Фотография © Grigorii Sokolinskii / предоставлена Architects of Invention
Многоквартирный дом на озере Лиси
Фотография © Grigorii Sokolinskii / предоставлена Architects of Invention
Многоквартирный дом на озере Лиси Фотография © Grigorii Sokolinskii / предоставлена Architects of Invention
Многоквартирный дом на озере Лиси
Фотография © Grigorii Sokolinskii / предоставлена Architects of Invention
Многоквартирный дом на озере Лиси Фотография © Grigorii Sokolinskii / предоставлена Architects of Invention
Многоквартирный дом на озере Лиси
Фотография © Grigorii Sokolinskii / предоставлена Architects of Invention
Многоквартирный дом на озере Лиси
Многоквартирный дом на озере Лиси
© Architects of Invention
Многоквартирный дом на озере Лиси © Architects of Invention
Многоквартирный дом на озере Лиси
© Architects of Invention
Многоквартирный дом на озере Лиси © Architects of Invention
Многоквартирный дом на озере Лиси
© Architects of Invention
Многоквартирный дом на озере Лиси © Architects of Invention
Многоквартирный дом на озере Лиси
© Architects of Invention
Многоквартирный дом на озере Лиси © Architects of Invention
Многоквартирный дом на озере Лиси
© Architects of Invention
Многоквартирный дом на озере Лиси © Architects of Invention
Многоквартирный дом на озере Лиси
© Architects of Invention
Многоквартирный дом на озере Лиси © Architects of Invention
Многоквартирный дом на озере Лиси
© Architects of Invention
Многоквартирный дом на озере Лиси © Architects of Invention
Многоквартирный дом на озере Лиси
© Architects of Invention
Многоквартирный дом на озере Лиси © Architects of Invention
Многоквартирный дом на озере Лиси
© Architects of Invention
Многоквартирный дом на озере Лиси © Architects of Invention
Многоквартирный дом на озере Лиси
© Architects of Invention
Многоквартирный дом на озере Лиси © Architects of Invention
Многоквартирный дом на озере Лиси
© Architects of Invention
Многоквартирный дом на озере Лиси © Architects of Invention
Многоквартирный дом на озере Лиси
© Architects of Invention
Многоквартирный дом на озере Лиси © Architects of Invention
Многоквартирный дом на озере Лиси
© Architects of Invention
Многоквартирный дом на озере Лиси © Architects of Invention
Многоквартирный дом на озере Лиси
© Architects of Invention
Многоквартирный дом на озере Лиси © Architects of Invention
Многоквартирный дом на озере Лиси
© Architects of Invention
Многоквартирный дом на озере Лиси © Architects of Invention
Многоквартирный дом на озере Лиси
© Architects of Invention
Многоквартирный дом на озере Лиси © Architects of Invention
Многоквартирный дом на озере Лиси
© Architects of Invention
Многоквартирный дом на озере Лиси © Architects of Invention
Многоквартирный дом на озере Лиси
© Architects of Invention
Многоквартирный дом на озере Лиси © Architects of Invention
Многоквартирный дом на озере Лиси
© Architects of Invention
Многоквартирный дом на озере Лиси © Architects of Invention
Многоквартирный дом на озере Лиси
© Architects of Invention
Многоквартирный дом на озере Лиси © Architects of Invention
Многоквартирный дом на озере Лиси
© Architects of Invention
Многоквартирный дом на озере Лиси © Architects of Invention
Многоквартирный дом на озере Лиси
© Architects of Invention
Многоквартирный дом на озере Лиси © Architects of Invention
Многоквартирный дом на озере Лиси
© Architects of Invention