Размещено на портале Архи.ру (www.archi.ru)

15.12.2025

Стремление к истокам

Елена Петухова
Объект:
Горные Пороги
Адрес:
Россия, Бирюзовая Катунь, территория 99, Айский трак
Мастерская:
New Design
Авторский коллектив:
Вольхина Ирина – автор идеи, проектная документация и авторский надзор совместно с командой New Design
Проект здания: архитекторы  Деринг Александр, Тисленко Сергей

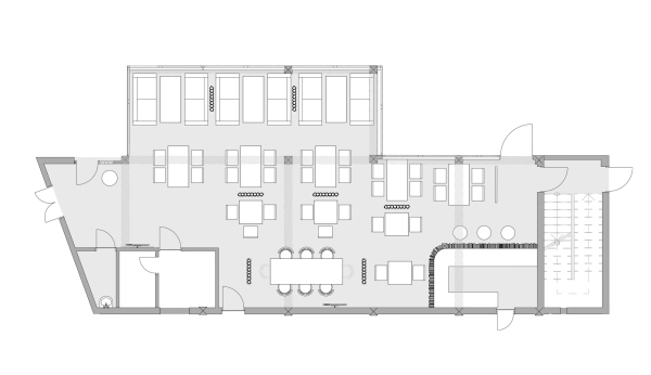
В интерьере ресторана «Горные пороги» при гостиничном комплексе «Хвоя в горах» в долине реки Катунь архитекторы бюро New Design постарались передать удивительную красоту и мощь природы Алтая, художественно переосмыслив ее наиболее характерные образы.

От редакции
Каждый, кому посчастливилось побывать на Алтае, мечтает туда вернуться, желательно не один раз. Невозможно не влюбиться в этот край с его фантастической природой и завораживающими пейзажами, производящими ошеломляющее, почти гипнотическое впечатление, благодаря которому можно часами сидеть где-то над обрывом, над какой-нибудь рекой, и следить за ее бурным течением, проходящим через то залитые солнцем участки, то снова погружающимся в тень ближайшей горы, из-за чего цвет воды меняется со светло-бирюзового до почти черного.

Раньше люди приезжали на Алтай именно за возможностью окунуться в природное окружение, не слишком обращая внимание на уровень комфорта и эстетику тех немногочисленных мест для ночевки, которые могла предложить только развивающаяся туристическая инфраструктура. Сегодня ситуация изменилась и изменилась радикально. Все возрастающий поток туристов вызвал не менее стремительный, как течение горных рек, рост инвестиций в строительство гостиниц, зон отдыха, спа-комплексов и глэмпингов. Нужно отметить, что большая часть инфраструктуры строится по проектам, выполненным профессионалами, и выглядит вполне достойно. Есть даже объекты, уже получившие или заслуживающие наград за архитектуру и дизайн.

Одним из таких объектов является пятизвездочный комплекс «Хвоя в горах», спроектированный известным барнаульским архитектором Александром Дерингом в стилистике эко-лофт, с простыми по форме, но хорошими по пропорциям корпусами, отделанными черным крашеным металлом и сайдингом из лиственницы. Благодаря лаконичности архитектуры здания органично вписаны в природу и не перетягивают на себя внимание гостей, приехавших насладиться замечательными видами на реку Катунь.

Один из корпусов комплекса занимает ресторан «Горные пороги», интерьер которого, как и всех остальных жилых и общественных помещений, выполнен командой бюро New Design под руководством дизайнера Ирины Вольхиной. В оформлении ресторана сделан акцент на мотивы и темы, почерпнутые из алтайской природы: темно- и светло-серый натуральный и искусственный камень с фактурной поверхностью, деревянная, массивная и лаконичная по форме мебель из массива, различные аксессуары и детали с этническими мотивами – все это создает особую атмосферу и помогает гостям сделать следующий шаг к пониманию сути Алтая: от визуального восприятия природной красоты – к ощущению ее истоков, кроющихся в суровом климате и постоянной борьбе за выживание многих поколений алтайцев.
Описание предоставлено архитекторами
Перед командой была поставлена задача создать интерьер, пропитанный духом Алтая в современном прочтении.

Ресторан «Горные пороги» расположен в самом сердце комплекса «Хвоя в горах» на уникальной территории Манжерокских порогов. Энергия этого места – мощь и стремительность Катуни – стала основой всей концепции.

Квинтэссенция идеи отражена в центральной композиции ресторана – в большом зале, главное место в котором занимает завораживающий стеклянный стол и стулья, изготовленные из эпоксидной смолы, с оригинальной текстурой, напоминающей толщу льда. Оригинальная мебель напоминает горную реку: в ее прозрачной глубине мерцают нежные листочки, изящные ветви, массивные каменные глыбы, словно сопротивляющиеся бурному потоку.

В основном зале будто сама природа расплескала свою палитру: рыжий, хвойный, умбра, изумрудный, серый, белый и графит – оттенки, рожденные ветром, солнцем и водой, сливаются в гармоничное единство. Могучие колонны с петроглифами излучают положительную энергию, наполняя пространство умиротворением и покоем.

Атмосферу дополняют эксклюзивные предметы декора, созданные на заказ, такие как уникальные люстры в этническом стиле. Особый акцент – фактурная стена, созданная прямо на площадке без предварительных эскизов, напоминающая величественную скалу, изрезанную временем и стихиями.

На втором этаже располагается винный зал. Он продолжает общую идею ресторана – в нем вновь появляются элементы и приемы, использованные в основном зале, в том числе массивные колонны, фактурная отделка бара, необычные люстры, но интерьер зала более камерный и интимный. Здесь нет места громким разговорам – приватная атмосфера располагает к спокойным беседам и наслаждению оттенками вкусов и ароматов вин, собранных в коллекции ресторана.

«Горные пороги» – место для истинных гедонистов, где природа и искусство сливаются воедино.
Горные Пороги. Ресторан
Горные Пороги. Ресторан
Фотография © Виталий Иванов / предоставлена New Desig
Горные Пороги. Ресторан
Горные Пороги. Ресторан
Фотография © Виталий Иванов / предоставлена New Desig
Гостиница «Хвоя в горах» © «Хвоя в горах» /https://xvoya-hotel.ru
Гостиница «Хвоя в горах»
© «Хвоя в горах» /https://xvoya-hotel.ru
Гостиница «Хвоя в горах» © «Хвоя в горах» /https://xvoya-hotel.ru
Гостиница «Хвоя в горах»
© «Хвоя в горах» /https://xvoya-hotel.ru
Гостиница «Хвоя в горах» © «Хвоя в горах» /https://xvoya-hotel.ru
Гостиница «Хвоя в горах»
© «Хвоя в горах» /https://xvoya-hotel.ru
Горные Пороги. Ресторан
Горные Пороги. Ресторан
Фотография © Виталий Иванов / предоставлена New Desig
Горные Пороги. Ресторан Фотография © Виталий Иванов / предоставлена New Desig
Горные Пороги. Ресторан
Фотография © Виталий Иванов / предоставлена New Desig
Горные Пороги. Ресторан Фотография © Виталий Иванов / предоставлена New Desig
Горные Пороги. Ресторан
Фотография © Виталий Иванов / предоставлена New Desig
Горные Пороги. Ресторан Фотография © Виталий Иванов / предоставлена New Desig
Горные Пороги. Ресторан
Фотография © Виталий Иванов / предоставлена New Desig
Горные Пороги. Ресторан Фотография © Виталий Иванов / предоставлена New Desig
Горные Пороги. Ресторан
Фотография © Виталий Иванов / предоставлена New Desig
Горные Пороги. Ресторан Фотография © Виталий Иванов / предоставлена New Desig
Горные Пороги. Ресторан
Фотография © Виталий Иванов / предоставлена New Desig
Горные Пороги. Ресторан
Горные Пороги. Ресторан
Фотография © Виталий Иванов / предоставлена New Desig
Горные Пороги. Ресторан Фотография © Виталий Иванов / предоставлена New Desig
Горные Пороги. Ресторан
Фотография © Виталий Иванов / предоставлена New Desig
Горные Пороги. Ресторан Фотография © Виталий Иванов / предоставлена New Desig
Горные Пороги. Ресторан
Фотография © Виталий Иванов / предоставлена New Desig
Горные Пороги. Винный зал Фотография © Виталий Иванов / предоставлена New Desig
Горные Пороги. Винный зал
Фотография © Виталий Иванов / предоставлена New Desig
Горные Пороги. Ресторан Фотография © Виталий Иванов / предоставлена New Desig
Горные Пороги. Ресторан
Фотография © Виталий Иванов / предоставлена New Desig
Горные Пороги. Ресторан Фотография © Виталий Иванов / предоставлена New Desig
Горные Пороги. Ресторан
Фотография © Виталий Иванов / предоставлена New Desig
Горные Пороги. Ресторан Фотография © Виталий Иванов / предоставлена New Desig
Горные Пороги. Ресторан
Фотография © Виталий Иванов / предоставлена New Desig
Горные Пороги. Ресторан Фотография © Виталий Иванов / предоставлена New Desig
Горные Пороги. Ресторан
Фотография © Виталий Иванов / предоставлена New Desig
Горные Пороги. Ресторан Фотография © Виталий Иванов / предоставлена New Desig
Горные Пороги. Ресторан
Фотография © Виталий Иванов / предоставлена New Desig
Горные Пороги. Винный зал
Горные Пороги. Винный зал
Фотография © Виталий Иванов / предоставлена New Desig
Горные Пороги. Винный зал Фотография © Виталий Иванов / предоставлена New Desig
Горные Пороги. Винный зал
Фотография © Виталий Иванов / предоставлена New Desig
Горные Пороги. Винный зал Фотография © Виталий Иванов / предоставлена New Desig
Горные Пороги. Винный зал
Фотография © Виталий Иванов / предоставлена New Desig
Горные Пороги. Ресторан Фотография © Виталий Иванов / предоставлена New Desig
Горные Пороги. Ресторан
Фотография © Виталий Иванов / предоставлена New Desig
Горные Пороги. Винный зал Фотография © Виталий Иванов / предоставлена New Desig
Горные Пороги. Винный зал
Фотография © Виталий Иванов / предоставлена New Desig
Горные Пороги. Винный зал Фотография © Виталий Иванов / предоставлена New Desig
Горные Пороги. Винный зал
Фотография © Виталий Иванов / предоставлена New Desig
Горные Пороги. Ресторан Фотография © Виталий Иванов / предоставлена New Desig
Горные Пороги. Ресторан
Фотография © Виталий Иванов / предоставлена New Desig
Горные Пороги. Винный зал Фотография © Виталий Иванов / предоставлена New Desig
Горные Пороги. Винный зал
Фотография © Виталий Иванов / предоставлена New Desig
Горные Пороги. Ресторан Фотография © Виталий Иванов / предоставлена New Desig
Горные Пороги. Ресторан
Фотография © Виталий Иванов / предоставлена New Desig
Горные Пороги. Ресторан Фотография © Виталий Иванов / предоставлена New Desig
Горные Пороги. Ресторан
Фотография © Виталий Иванов / предоставлена New Desig
Горные Пороги. Ресторан Фотография © Виталий Иванов / предоставлена New Desig
Горные Пороги. Ресторан
Фотография © Виталий Иванов / предоставлена New Desig
Горные Пороги. Ресторан Фотография © Виталий Иванов / предоставлена New Desig
Горные Пороги. Ресторан
Фотография © Виталий Иванов / предоставлена New Desig
Горные Пороги. Ресторан Фотография © Виталий Иванов / предоставлена New Desig
Горные Пороги. Ресторан
Фотография © Виталий Иванов / предоставлена New Desig
Горные Пороги. Ресторан Фотография © Виталий Иванов / предоставлена New Desig
Горные Пороги. Ресторан
Фотография © Виталий Иванов / предоставлена New Desig
Горные Пороги Фотография © Виталий Иванов / предоставлена New Desig
Горные Пороги
Фотография © Виталий Иванов / предоставлена New Desig
Горные Пороги Фотография © Виталий Иванов / предоставлена New Desig
Горные Пороги
Фотография © Виталий Иванов / предоставлена New Desig