Размещено на портале Архи.ру (www.archi.ru)

12.12.2025

История с тополями

Анна Старостина
Объект:
«Дом под тополями»
Адрес:
Словения, None, Любляна.
Мастерская:
Ofis

Архитекторы Ofis перестроили частный дом в люблянском районе Мургл 1960-1980-х годов. Их подход позволил сохранить характерные планировочные решения, целостность и саму ДНК района.

Район Мургл на южной окраине Любляны – любопытный градостроительный эксперимент. Он застраивался с 1965 по 1982 в несколько очередей, но остался не реализован до конца, хотя работы продолжаются до сих пор. Архитекторы Франц и Марта Иваншек разработали малоэтажную строчную застройку из сборных домов, где был либо атриум, либо терраса. Иногда типовой проект изменяли, если требовалось сохранить растущие на участке большие деревья – связи с природой, покою и безопасности архитекторы уделили очень много внимания. Район был задуман для семей рабочих и демонстрирует простую, минималистичную архитектуру в скандинавском духе (супруги Иваншек учились в Швеции). Но качество среды сделало свое дело, и довольно быстро Мургл приобрел репутацию престижного поселка.

Идиллическая, но болотистая местность определила необходимость регулярной, но неочевидной планировки с искусственными ручьями, для укрепления русла обсаженными деревьями разных видов. Так появились улицы «Под дубами», «Под ивами», «Под каштанами», «Под акациями», «Под буками» и так далее. Эти улицы окружают с трех сторон блоки из порядка 35 одноэтажных домов, причем внутри блоков проложены лишь пешеходные дорожки.

Улица с романтическим названием «Под тополями» считается одной из образцовых. Именно на ней, чуть выбиваясь из общей линии застройки, расположен дом, который реконструировали архитекторы Ofis. Основатели этой мастерской, Рок Оман и Шпела Видечник, считают, что сложившийся во время работы их подход к реконструкции может стать прообразом будущего для всего района.

«Дом под тополями» стоит в глубине блока и обращен зеленым двором в сторону школьного комплекса. Он построен в ходе третьей очереди – уже в 1980-х. Как и все дома здесь, он приподнят на ленточном фундаменте для защиты от влаги (архитекторы с интересом отмечают, что никакой гидроизоляции устроено не было, тем не менее абсолютное большинство построек от воды не пострадало). Он также имеет вентилируемую кровлю, что позволяет поддерживать комфортный микроклимат внутри. Проблема скрывалась в использовании асбеста при изготовлении черепицы для крыши и панелей для стен. Избавиться от него оказалось невозможно, и иного выхода, кроме фактического сноса и полной перестройки, не оставалось. Новый дом повторяет объемные и конструктивные решения предшественника, только на стенах уже экологичные и ресурсоэффективные панели из поперечно-клееной древесины, а внутри используются все обязательные сегодня технологии.

Как и в некоторых других своих трансформационных проектах, Оман и Видечник выстроили отношения с зеленым двором-садом, оставляя именно в природной среде место для экспериментов. С его стороны была сделана почти прозрачная пристройка, которая одновременно принадлежит и внешнему, и внутреннему пространству. Ее тонкие, скорее напоминающие пластины кирпичные опоры отсылают к основному фасаду, а остекление обеспечивает максимальную открытость: это то ли рабочая теплица, то ли усадебный парковый павильон, то ли буржуазный зимний сад. Желание соблюсти принципы застройки Мургля у архитекторов Ofis было настолько сильным, что они расположили пристройку так, чтобы сохранить росшую слишком близко березу и ни в коем случае не повредить ее корни.

«Дом под тополями» в районе Мургл
«Дом под тополями» в районе Мургл
Фотография © Tomaz Gregoric / предоставлена Ofis Arhitekti
«Дом под тополями» в районе Мургл
«Дом под тополями» в районе Мургл
Фотография © Tomaz Gregoric / предоставлена Ofis Arhitekti
«Дом под тополями» в районе Мургл Фотография © Tomaz Gregoric / предоставлена Ofis Arhitekti
«Дом под тополями» в районе Мургл
Фотография © Tomaz Gregoric / предоставлена Ofis Arhitekti
«Дом под тополями» в районе Мургл Фотография © Tomaz Gregoric / предоставлена Ofis Arhitekti
«Дом под тополями» в районе Мургл
Фотография © Tomaz Gregoric / предоставлена Ofis Arhitekti
«Дом под тополями» в районе Мургл
«Дом под тополями» в районе Мургл
Фотография © Tomaz Gregoric / предоставлена Ofis Arhitekti
«Дом под тополями» в районе Мургл Фотография © Tomaz Gregoric / предоставлена Ofis Arhitekti
«Дом под тополями» в районе Мургл
Фотография © Tomaz Gregoric / предоставлена Ofis Arhitekti
«Дом под тополями» в районе Мургл Фотография © Tomaz Gregoric / предоставлена Ofis Arhitekti
«Дом под тополями» в районе Мургл
Фотография © Tomaz Gregoric / предоставлена Ofis Arhitekti
«Дом под тополями» в районе Мургл Фотография © Tomaz Gregoric / предоставлена Ofis Arhitekti
«Дом под тополями» в районе Мургл
Фотография © Tomaz Gregoric / предоставлена Ofis Arhitekti
«Дом под тополями» в районе Мургл Фотография © Tomaz Gregoric / предоставлена Ofis Arhitekti
«Дом под тополями» в районе Мургл
Фотография © Tomaz Gregoric / предоставлена Ofis Arhitekti
«Дом под тополями» в районе Мургл
«Дом под тополями» в районе Мургл
Фотография © Tomaz Gregoric / предоставлена Ofis Arhitekti
«Дом под тополями» в районе Мургл Фотография © Tomaz Gregoric / предоставлена Ofis Arhitekti
«Дом под тополями» в районе Мургл
Фотография © Tomaz Gregoric / предоставлена Ofis Arhitekti
«Дом под тополями» в районе Мургл Фотография © Tomaz Gregoric / предоставлена Ofis Arhitekti
«Дом под тополями» в районе Мургл
Фотография © Tomaz Gregoric / предоставлена Ofis Arhitekti
«Дом под тополями» в районе Мургл Фотография © Tomaz Gregoric / предоставлена Ofis Arhitekti
«Дом под тополями» в районе Мургл
Фотография © Tomaz Gregoric / предоставлена Ofis Arhitekti
«Дом под тополями» в районе Мургл Фотография © Tomaz Gregoric / предоставлена Ofis Arhitekti
«Дом под тополями» в районе Мургл
Фотография © Tomaz Gregoric / предоставлена Ofis Arhitekti
«Дом под тополями» в районе Мургл Фотография © Tomaz Gregoric / предоставлена Ofis Arhitekti
«Дом под тополями» в районе Мургл
Фотография © Tomaz Gregoric / предоставлена Ofis Arhitekti
«Дом под тополями» в районе Мургл Фотография © Tomaz Gregoric / предоставлена Ofis Arhitekti
«Дом под тополями» в районе Мургл
Фотография © Tomaz Gregoric / предоставлена Ofis Arhitekti
«Дом под тополями» в районе Мургл Фотография © Tomaz Gregoric / предоставлена Ofis Arhitekti
«Дом под тополями» в районе Мургл
Фотография © Tomaz Gregoric / предоставлена Ofis Arhitekti
«Дом под тополями» в районе Мургл Фотография © Tomaz Gregoric / предоставлена Ofis Arhitekti
«Дом под тополями» в районе Мургл
Фотография © Tomaz Gregoric / предоставлена Ofis Arhitekti
«Дом под тополями» в районе Мургл Фотография © Tomaz Gregoric / предоставлена Ofis Arhitekti
«Дом под тополями» в районе Мургл
Фотография © Tomaz Gregoric / предоставлена Ofis Arhitekti
«Дом под тополями» в районе Мургл Фотография © Tomaz Gregoric / предоставлена Ofis Arhitekti
«Дом под тополями» в районе Мургл
Фотография © Tomaz Gregoric / предоставлена Ofis Arhitekti
«Дом под тополями» в районе Мургл Фотография © Tomaz Gregoric / предоставлена Ofis Arhitekti
«Дом под тополями» в районе Мургл
Фотография © Tomaz Gregoric / предоставлена Ofis Arhitekti
«Дом под тополями» в районе Мургл
«Дом под тополями» в районе Мургл
Фотография © Tomaz Gregoric / предоставлена Ofis Arhitekti
«Дом под тополями» в районе Мургл
«Дом под тополями» в районе Мургл
Фотография © Tomaz Gregoric / предоставлена Ofis Arhitekti
«Дом под тополями» в районе Мургл
«Дом под тополями» в районе Мургл
© Ofis Arhitekti
«Дом под тополями» в районе Мургл
«Дом под тополями» в районе Мургл
© Ofis Arhitekti
«Дом под тополями» в районе Мургл © Ofis Arhitekti
«Дом под тополями» в районе Мургл
© Ofis Arhitekti
«Дом под тополями» в районе Мургл © Ofis Arhitekti
«Дом под тополями» в районе Мургл
© Ofis Arhitekti
«Дом под тополями» в районе Мургл © Ofis Arhitekti
«Дом под тополями» в районе Мургл
© Ofis Arhitekti
«Дом под тополями» в районе Мургл © Ofis Arhitekti
«Дом под тополями» в районе Мургл
© Ofis Arhitekti
«Дом под тополями» в районе Мургл © Ofis Arhitekti
«Дом под тополями» в районе Мургл
© Ofis Arhitekti
«Дом под тополями» в районе Мургл – историческая фотография Фотография © Marta and France Ivanšek Foundation / предоставлена Ofis Arhitekti
«Дом под тополями» в районе Мургл – историческая фотография
Фотография © Marta and France Ivanšek Foundation / предоставлена Ofis Arhitekti
«Дом под тополями» в районе Мургл – историческая фотография Фотография © Marta and France Ivanšek Foundation / предоставлена Ofis Arhitekti
«Дом под тополями» в районе Мургл – историческая фотография
Фотография © Marta and France Ivanšek Foundation / предоставлена Ofis Arhitekti
«Дом под тополями» в районе Мургл – историческая фотография Фотография © Marta and France Ivanšek Foundation / предоставлена Ofis Arhitekti
«Дом под тополями» в районе Мургл – историческая фотография
Фотография © Marta and France Ivanšek Foundation / предоставлена Ofis Arhitekti
«Дом под тополями» в районе Мургл – историческая фотография Фотография © Marta and France Ivanšek Foundation / предоставлена Ofis Arhitekti
«Дом под тополями» в районе Мургл – историческая фотография
Фотография © Marta and France Ivanšek Foundation / предоставлена Ofis Arhitekti
«Дом под тополями» в районе Мургл – историческая фотография Фотография © Marta and France Ivanšek Foundation / предоставлена Ofis Arhitekti
«Дом под тополями» в районе Мургл – историческая фотография
Фотография © Marta and France Ivanšek Foundation / предоставлена Ofis Arhitekti
«Дом под тополями» в районе Мургл – историческая фотография Фотография © Marta and France Ivanšek Foundation / предоставлена Ofis Arhitekti
«Дом под тополями» в районе Мургл – историческая фотография
Фотография © Marta and France Ivanšek Foundation / предоставлена Ofis Arhitekti
«Дом под тополями» в районе Мургл – историческая фотография Фотография © Marta and France Ivanšek Foundation / предоставлена Ofis Arhitekti
«Дом под тополями» в районе Мургл – историческая фотография
Фотография © Marta and France Ivanšek Foundation / предоставлена Ofis Arhitekti
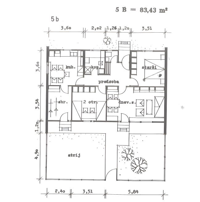
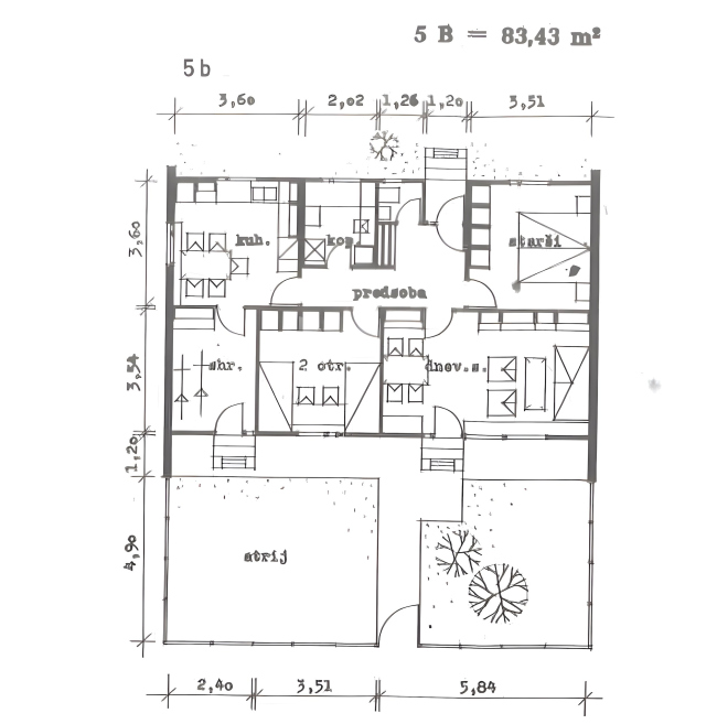
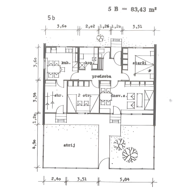
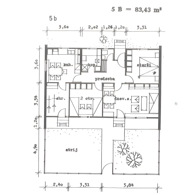
«Дом под тополями» в районе Мургл – историческая планировк
«Дом под тополями» в районе Мургл – историческая планировк
Фотография © Marta and France Ivanšek Foundation / предоставлена Ofis Arhitekti
«Дом под тополями» в районе Мургл – историческая планировка
«Дом под тополями» в районе Мургл – историческая планировка
Фотография © Marta and France Ivanšek Foundation / предоставлена Ofis Arhitekti