Размещено на портале Архи.ру (www.archi.ru)

09.12.2025

Крыша-головоломка

Нина Фролова
Объект:
Дом «Танграм»
Адрес:
Бразилия, None, Белу-Оризонти.
Мастерская:
Tetro

У треугольного в плане дома по проекту бюро Tetro в агломерации Белу-Оризонти крыша тоже составлена из треугольников – сплошных и остекленных.

Дом в Лагоа-Санта получил название «Танграм» в честь известной головоломки, где надо составлять фигуры из преимущественно треугольных пластинок. Почти таким образом спроектирована его крыша из клееной древесины: ее большой вынос помогает защитить интерьеры и веранды от тропического солнца.
 
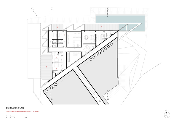
Аналогично решены перекрытия первого этажа – здесь крыше вторят веранды или же ажурный угловой выступ, также деревянный и поделенный на треугольники. В интерьере, напротив, преобладает бетон.
 
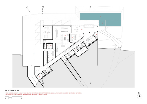
Расположение на самой высокой точке участка, спускающегося к озеру, позволило защитить дом от посторонних взглядов: из-за ракурса снизу-вверх, обращенных к дороге подпорных стенок из грубого камня и озелененных насыпей постройка практически не видна пешеходам и автомобилистам. В то же время к озеру и пейзажу за ним дом раскрывается панорамным остеклением, верандами и террасой с бассейном, который как будто продолжается озерной гладью.
 
Именно в эту сторону обращены помещения первого этажа – гостиная, кухня, столовая. Там же расположены хозяйственная кузня, санузел и винный погреб – но они сдвинуты назад, почти в толщу грунта.
 
Второй этаж занят общей комнатой для членов семьи, спальней хозяев, двумя детскими и двумя гостевыми. Они тоже выходят на озеро, но более «точечно».

Дом «Танграм»
Дом «Танграм»
Фото © Manuel Sá
Дом «Танграм»
Дом «Танграм»
Фото © Manuel Sá
Дом «Танграм»
Дом «Танграм»
Фото © Manuel Sá
Дом «Танграм» Фото © Manuel Sá
Дом «Танграм»
Фото © Manuel Sá
Дом «Танграм» Фото © Manuel Sá
Дом «Танграм»
Фото © Manuel Sá
Дом «Танграм» Фото © Manuel Sá
Дом «Танграм»
Фото © Manuel Sá
Дом «Танграм» Фото © Manuel Sá
Дом «Танграм»
Фото © Manuel Sá
Дом «Танграм» Фото © Manuel Sá
Дом «Танграм»
Фото © Manuel Sá
Дом «Танграм» Фото © Manuel Sá
Дом «Танграм»
Фото © Manuel Sá
Дом «Танграм» Фото © Manuel Sá
Дом «Танграм»
Фото © Manuel Sá
Дом «Танграм» Фото © Manuel Sá
Дом «Танграм»
Фото © Manuel Sá
Дом «Танграм» Фото © Manuel Sá
Дом «Танграм»
Фото © Manuel Sá
Дом «Танграм» Фото © Manuel Sá
Дом «Танграм»
Фото © Manuel Sá
Дом «Танграм» Фото © Manuel Sá
Дом «Танграм»
Фото © Manuel Sá
Дом «Танграм» Фото © Manuel Sá
Дом «Танграм»
Фото © Manuel Sá
Дом «Танграм»
Дом «Танграм»
Фото © Manuel Sá
Дом «Танграм» Фото © Manuel Sá
Дом «Танграм»
Фото © Manuel Sá
Дом «Танграм» Фото © Manuel Sá
Дом «Танграм»
Фото © Manuel Sá
Дом «Танграм» Фото © Manuel Sá
Дом «Танграм»
Фото © Manuel Sá
Дом «Танграм» Фото © Manuel Sá
Дом «Танграм»
Фото © Manuel Sá
Дом «Танграм» Фото © Manuel Sá
Дом «Танграм»
Фото © Manuel Sá
Дом «Танграм» Фото © Manuel Sá
Дом «Танграм»
Фото © Manuel Sá
Дом «Танграм» © TETRO
Дом «Танграм»
© TETRO
Дом «Танграм» © TETRO
Дом «Танграм»
© TETRO
Дом «Танграм» © TETRO
Дом «Танграм»
© TETRO
Дом «Танграм» © TETRO
Дом «Танграм»
© TETRO
Дом «Танграм» © TETRO
Дом «Танграм»
© TETRO
Дом «Танграм» © TETRO
Дом «Танграм»
© TETRO
Дом «Танграм» © TETRO
Дом «Танграм»
© TETRO