|
В Рязани на территории обновленной ВДНХ в павильоне «Животноводство» планируется открыть городскую гостиную – новое общественное пространство и филиал библиотеки им. Горького. Проект реконструкции и современной пристройки разработало архитектурное бюро «Апрель», которое курирует комплексное преобразование этой знаковой территории с 2021 года.
Описание предоставлено архитекторами На территории перезапущенного Рязанского ВДНХ заканчивается реконструкция павильона «Животноводство» по проекту архитектурного бюро «Апрель». В павильоне должна открыться городская гостиная – филиал областной Библиотеки им. Горького.
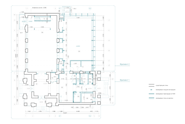
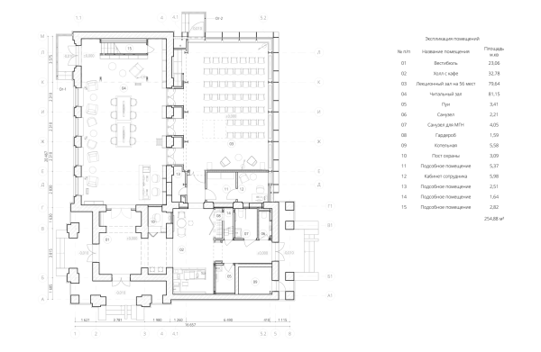
Бюро «Апрель» занимается территорией с 2021 года, с самого начала преобразований – по заказу правительства Рязанской области архитекторы подготовили мастер-план редевелопмента, реализовали проект благоустройства, дизайн-код и проекты реконструкции нескольких павильонов.   Павильон «Животноводство» – финальный этап этой работы. В нем удалось бережно отреставрировать исторический объем, а на месте позднесоветской пристройки сделать новую, показав как современная архитектура может взаимодействовать и дополнять ансамбль 1950-х годов. Павильон «Животноводство» 1954 года постройки является ценным градоформирующим объектом в рамках предмета охраны достопримечательного места. Объект имел позднюю пристройку со стороны второстепенной аллеи (юго-западная сторона). Она появилась «хозспособом» и являлась диссонирующем элементом среды, по регламентам и мастер-плану развития Рязанской ВДНХ (Торгового городка) такие пристройки предписано санировать или заменять на новые с сохранением объемно-пространственных параметров.  По проекту была проведена реставрация исторического объема с санированием поздних наслоений: пристройка сзади, пристройка котельной на главном портике; раскрытием заложенных оконных и дверных проемов. Проведены работы по восстановлению аварийного деревянного шатра, а также двух антресолей в исторических залах и новой пристройки. Функциональная программа была нацелена на создание гибкого универсального компактного пространства городской гостиной – третьего места. Она состоит из двух залов: читальный зал – пространство коворкинга, и универсальный зал – пространство для мероприятий, лекций, кинопоказов и мастер-классов; пространства кафе и сопутствующих функций: туалеты, гардероб, подсобные помещения; комнаты сотрудников и технических помещений: газовой котельной, пуи, венткамера.  Важной уникальной составляющей проекта стала новая пристройка со стеклянным фасадом и металлическими ламелями, в которой расположился универсальный зал. Ритм нового фасада, вертикальные и горизонтальные членения были взяты с фасада исторического павильона и наследуют их основные пропорции и оси в новом прочтении. Объем пристройки используется под универсальный трансформируемый зал с максимальной вместимостью 54 человека в режиме лекции/ кинопросмотра. Зал предусматривает возможность проведения выставок, а также воркшопов и групповых занятий. Запроектированы места для временного хранения мебели и стульев. Зал имеет три проема (на месте исторических оконных проемов) в читальный зал, что дает возможность смежного использования при необходимости.  Новый объем тонко и внимательно взаимодействует с историческим. При этом новая архитектура проницаемая и эффектно раскрывается вовне, работая на окружающую территорию. Витражи позволяют сделать видимым то, что происходит в зале, приглашая и завлекая всех внутрь пространства.  В главном зале павильона с окнами, которые выходят на главную аллею, располагается читальный зал и пространство коворкинга. Имея большую высоту, проектом предусмотрена антресоль в торце зала, что дает дополнительные места и обогащает пространство. Здесь сохранены и бережно отреставрированы исторические люстры, восстановлен потолочный карниз. В зале формируются разные зоны, а по его длинной стороне выстраивается единый стеллаж с книгами. Стол на 6 рабочих мест, места для работы за ноутбуками, кресла для чтения/работы за ноутбуками у окон.  Городская гостиная на территории Рязанской ВДНХ© APRELarchitects
Городская гостиная на территории Рязанской ВДНХ© APRELarchitects
Историческая фотография. Центральная аллея областной сельскохозяйственной, промышленной и строительной выставкиФотография предоставлена APRELarchitectsИсторическая фотография. Расстановка молокаФотография предоставлена APRELarchitectsИсторическая фотография.Фотография предоставлена APRELarchitectsГородская гостиная на территории Рязанской ВДНХФотография © Полина Полудкина / предоставлена APRELarchitectsГородская гостиная на территории Рязанской ВДНХФотография © Полина Полудкина / предоставлена APRELarchitectsГородская гостиная на территории Рязанской ВДНХФотография © Полина Полудкина / предоставлена APRELarchitectsГородская гостиная на территории Рязанской ВДНХ© APRELarchitectsГородская гостиная на территории Рязанской ВДНХ© APRELarchitectsГородская гостиная на территории Рязанской ВДНХ© APRELarchitectsГородская гостиная на территории Рязанской ВДНХ© APRELarchitectsГородская гостиная на территории Рязанской ВДНХФотография © Полина Полудкина / предоставлена APRELarchitectsГородская гостиная на территории Рязанской ВДНХФотография © Полина Полудкина / предоставлена APRELarchitectsГородская гостиная на территории Рязанской ВДНХФотография © Полина Полудкина / предоставлена APRELarchitectsГородская гостиная на территории Рязанской ВДНХФотография © Полина Полудкина / предоставлена APRELarchitectsГородская гостиная на территории Рязанской ВДНХФотография © Полина Полудкина / предоставлена APRELarchitectsГородская гостиная на территории Рязанской ВДНХ. Главный фасад© APRELarchitectsГородская гостиная на территории Рязанской ВДНХ. Боковой фасад© APRELarchitectsГородская гостиная на территории Рязанской ВДНХ. Южный фасад© APRELarchitectsГородская гостиная на территории Рязанской ВДНХ. План монтажа© APRELarchitectsГородская гостиная на территории Рязанской ВДНХ. План расстановки мебели© APRELarchitects
|