|
Дом Casa Lua, построенный на окраине бразильского мегаполиса Белу-Оризонти по проекту мастерской Tetro, вобрал в себя не только захватывающие виды на город и горы, но и лунный свет.
Как можно догадаться, с португальского Белу-Оризонти можно перевести как «красивый горизонт». «Виновник» прекрасных видов – горный массив Серра-ду-Эспиньясу, ограничивающий город с юга. Дом Casa Lua, построенный по проекту местного бюро Tetro для семьи Фонтес-де-Азеведу, в высшей степени оправдывает название города, в котором находится, и отражает самую его суть. Четырехъярусный объем размещен на крутом скалистом склоне, обращенном в сторону хребта Серра-ду-Куррал, так что все его уровни стали идеальным местом для наслаждения видами.
   
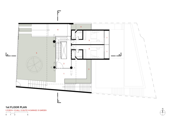
На улицу постройка выходит как бы парящим прямоугольным объемом, приподнятом на четырех древовидных опорах из бетона, будто проросших сквозь склон и весь дом. Этот, самый верхний, ярус занимает частная зона с тремя спальнями, ванной, гардеробной, небольшим пространством для семейного общения и террасой. От чужих взглядов они надежно закрыты металлическими солнцезащитными панелями, создающими плотный рисунок снаружи, но проницаемыми изнутри. Первый этаж обращен к улице зеленым двором и остекленным входным атриумом, создающим эффект парения прямоугольного верха и открывающим неожиданный просвет в плотной застройке красной линии. За ним, в вытянутой консоли, размещены еще две гостевые спальни, каждая со своей видовой верандой.
   
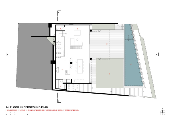
Основной общественный уровень – фактически подземный, он практически встроен в склон. Открытая зона объединяет кухню, столовую и гостиную, а также ведет на частично озелененную террасу и к открытому бассейну у самой кромки. Внутреннее и внешнее здесь, как и положено, разделены очень условно, образуя цельное пространство, открытое городу и природе. Еще этажом ниже спрятаны технические помещения, прачечная, винный погреб и отдельный рабочий кабинет, тоже с панорамным видом.
   
У дома есть еще одна, весьма романтическая особенность. Когда луна восходит над горным хребтом, ее свет становится неотъемлемой частью архитектурного решения, добавляя новые смыслы и образы. Собственно, это и определило говорящее, как почти всегда у Tetro, название: Casa Lua и означает «Лунный дом». Более того, для хозяев наблюдение за светилом тоже стало важнейшим, почти ежедневным ритуалом. Частный дом Casa Lua в Белу-ОризонтиФотография © Luisa Lage / предоставлена Tetro Arquitetura
Частный дом Casa Lua в Белу-ОризонтиФотография © Luisa Lage / предоставлена Tetro Arquitetura
Частный дом Casa Lua в Белу-ОризонтиФотография © Luisa Lage / предоставлена Tetro Arquitetura
Частный дом Casa Lua в Белу-ОризонтиФотография © Luisa Lage / предоставлена Tetro Arquitetura
Частный дом Casa Lua в Белу-ОризонтиФотография © Luisa Lage / предоставлена Tetro ArquiteturaЧастный дом Casa Lua в Белу-ОризонтиФотография © Luisa Lage / предоставлена Tetro ArquiteturaЧастный дом Casa Lua в Белу-ОризонтиФотография © Luisa Lage / предоставлена Tetro ArquiteturaЧастный дом Casa Lua в Белу-ОризонтиФотография © Luisa Lage / предоставлена Tetro ArquiteturaЧастный дом Casa Lua в Белу-ОризонтиФотография © Luisa Lage / предоставлена Tetro ArquiteturaЧастный дом Casa Lua в Белу-ОризонтиФотография © Luisa Lage / предоставлена Tetro ArquiteturaЧастный дом Casa Lua в Белу-ОризонтиФотография © Luisa Lage / предоставлена Tetro ArquiteturaЧастный дом Casa Lua в Белу-ОризонтиФотография © Luisa Lage / предоставлена Tetro Arquitetura
Частный дом Casa Lua в Белу-ОризонтиФотография © Luisa Lage / предоставлена Tetro ArquiteturaЧастный дом Casa Lua в Белу-ОризонтиФотография © Luisa Lage / предоставлена Tetro ArquiteturaЧастный дом Casa Lua в Белу-ОризонтиФотография © Luisa Lage / предоставлена Tetro Arquitetura
Частный дом Casa Lua в Белу-ОризонтиФотография © Luisa Lage / предоставлена Tetro Arquitetura
Частный дом Casa Lua в Белу-ОризонтиФотография © Luisa Lage / предоставлена Tetro Arquitetura
Частный дом Casa Lua в Белу-ОризонтиФотография © Luisa Lage / предоставлена Tetro Arquitetura
Частный дом Casa Lua в Белу-Оризонти© Tetro ArquiteturaЧастный дом Casa Lua в Белу-Оризонти© Tetro ArquiteturaЧастный дом Casa Lua в Белу-Оризонти© Tetro ArquiteturaЧастный дом Casa Lua в Белу-Оризонти© Tetro ArquiteturaЧастный дом Casa Lua в Белу-Оризонти© Tetro ArquiteturaЧастный дом Casa Lua в Белу-Оризонти© Tetro ArquiteturaЧастный дом Casa Lua в Белу-Оризонти© Tetro ArquiteturaЧастный дом Casa Lua в Белу-Оризонти© Tetro Arquitetura
|