|
По проекту Parallel architects проведена частичная реновация зданий Международного аграрного университета в Ташкенте. Точечное обновление трех разрозненных блоков сформировало современный облик университетского кампуса, которому очень идет модернизм. Лаконичный мост-переход, динамичный фасад из натурального кирпича и новый входной портал создают среду, по уровню и эстетике сравнимую с международными университетскими центрами.
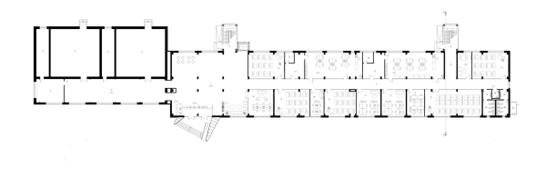
Описание предоставлено архитекторами «Образование нужно не для того, чтобы наполнить ведро, а для того, чтобы разжечь костер». В ходе этого проекта мы реализовали план реконструкции части здания Ташкентского аграрного университета, эксплуатируемого уже много лет. На территории имеются три строительных блока с разными функциями, и необходимо было соединить их и создать благоприятные условия для научных исследований студенческой молодежи.   Старое лабораторное здание в южной части территории приспособлено под требования коворкинга и косвенно соединено с учебным корпусом стеклянным мостом. С первых процессов мы стремились оставить существующие окна здания, их контрастную гармонию с призматическими формами.  Прилегающие учебные корпуса в северной части состояли из типичного фасада, ряда ритмичных окон и учебных кабинетов. Мы нацелились показать фасадную часть интересной за счет натурального кирпича и ряда динамичных окон. Мы также спроектировали портал у главного входа, чтобы дарить первое позитивное настроение посетителям.   Международный аграрный университет в ТашкентеФотогрфаия © Миркамол Шукуров / предоставлена Parallel architectsМеждународный аграрный университет в ТашкентеФотогрфаия © Миркамол Шукуров / предоставлена Parallel architectsМеждународный аграрный университет в Ташкенте@ Parallel architectsМеждународный аграрный университет в Ташкенте@ Parallel architectsМеждународный аграрный университет в ТашкентеФотогрфаия © Миркамол Шукуров / предоставлена Parallel architectsМеждународный аграрный университет в ТашкентеФотогрфаия © Миркамол Шукуров / предоставлена Parallel architectsМеждународный аграрный университет в Ташкенте@ Parallel architects
Международный аграрный университет в ТашкентеФотогрфаия © Миркамол Шукуров / предоставлена Parallel architectsМеждународный аграрный университет в ТашкентеФотогрфаия © Миркамол Шукуров / предоставлена Parallel architectsМеждународный аграрный университет в ТашкентеФотогрфаия © Миркамол Шукуров / предоставлена Parallel architectsМеждународный аграрный университет в ТашкентеФотогрфаия © Миркамол Шукуров / предоставлена Parallel architectsМеждународный аграрный университет в ТашкентеФотогрфаия © Миркамол Шукуров / предоставлена Parallel architectsМеждународный аграрный университет в ТашкентеФотогрфаия © Миркамол Шукуров / предоставлена Parallel architectsМеждународный аграрный университет в Ташкенте. Ковркинг@ Parallel architectsМеждународный аграрный университет в Ташкенте. Ковркинг@ Parallel architectsМеждународный аграрный университет в Ташкенте. Ковркинг@ Parallel architectsМеждународный аграрный университет в Ташкенте. Ковркинг@ Parallel architectsМеждународный аграрный университет в Ташкенте. Ковркинг@ Parallel architects
|