|
Конструкция дома, построенного в Ленинградской области по проекту бюро SOLOarch, представляет собой силовой каркас из клееной древесины. Акцентом выступила остекленная наклонная стена, которая открывает из двусветной гостиной панорамный обзор на лес. Динамику этого элемента продолжает обратный уклон кровли, а рейки разного сечения на фасадах связывают разные корпуса в единый комплекс.
Описание предоставлено архитекторами Заказчик обратился к бюро SOLOarch с уже существующим проектом типового фахверкового дома с двухскатной кровлей, под который были проведены подготовительные работы нулевого цикла и инженерные сети по участку. Была поставлена задача сделать дом более «современным, креативным и нестандартным».
 Силовой стоечно-балочный каркас из клееной древесины позволил акцентировать главный фасад наклонной плоскостью с локальным панорамным остеклением, которое раскрыло вид из двухсветной гостиной на лес более широко, а также увеличило просматриваемость неба. Наклон фасадной стены усиливает уклон обратной кровли в виде «птички», придавая монументальному объему дома динамизм.   Детали в виде подпорной косой колонны террасы над входной группой и «вибрирующих» фасадов, формирующихся за счет игры разных по формату окон и трапециевидной рейки, добавляют сложности в восприятии объекта и увязывают главенствующий объем дома и вспомогательные постройки.  Локальное остекление гостиной ориентировано на лес, а также на солнечную сторону. Чтобы появилась возможность регулировать солнечный свет и видимость, по фасаду, в деревянный каркас снаружи, смонтированы раф-шторы. Помимо своей прямой функции, фасадные алюминиевые жалюзи подчеркивают металлические декоративные элементы – оформление фальцем карниза, вставки на простенках между оконными проемами и обрамление стеклянного наклонного объема. Фахверк Grey RockФотография © Максим Крутиков / предоставлена SOLOarch
Фахверк Grey RockФотография © Максим Крутиков / предоставлена SOLOarch
Фахверк Grey RockФотография © Максим Крутиков / предоставлена SOLOarch
Фахверк Grey RockФотография © Максим Крутиков / предоставлена SOLOarch
Фахверк Grey RockФотография © Максим Крутиков / предоставлена SOLOarch
Фахверк Grey RockФотография © Максим Крутиков / предоставлена SOLOarch
Фахверк Grey RockФотография © Максим Крутиков / предоставлена SOLOarch
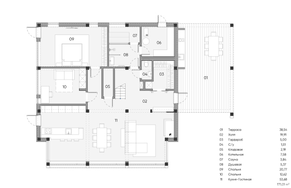
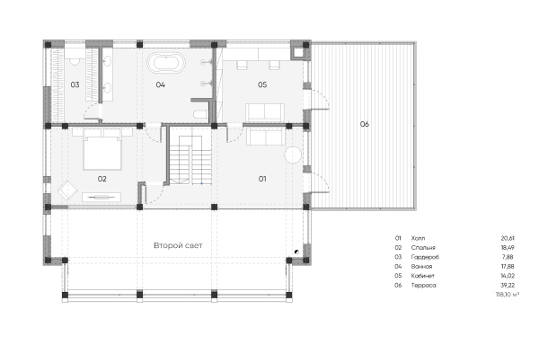
Фахверк Grey Rock© SOLOarchФахверк Grey Rock. План 1 этажа© SOLOarchФахверк Grey Rock. План 2 этажа© SOLOarch
|