|
Бюро MAST, вдохновляясь атмосферой Тбилиси, превратило интерьер грузинского ресторана NENE в диалог культур, которым, на самом деле, и является этот прекрасный город.
От редакции Открывшийся в этом году на Большой Грузинской улице в Москве грузинский ресторан NENE ломает стереотипы. Архитекторы бюро MAST сознательно отказались от китчевого антуража и постарались передать личное восприятие Тбилиси – жизнерадостного, гедонистичного, объединяющего в себе европейские и восточные традиции, но при этом, ни на секунду, не теряющего своей индивидуальности и атмосферности.
 В этом подходе – отказе от стереотипов и поиске идентичности через субъективные ассоциации – видится огромный потенциал и бесконечные возможности для экспериментов и открытий, которых так не хватает всей типологии интерьеров этнических ресторанов.
Это как знакомиться со страной или городом при помощи авторского путеводителя или на экскурсии от местного жителя, способного вместо открыточных достопримечательностей показать настоящий город и те места в нем, которые особенно любимы и связаны с жизненными ситуациями и историями живых людей. В результате, вместо формального набора отметок о посещении есть шанс по-настоящему влюбиться в город и получить целую коллекцию впечатлений и эмоций, которые никогда не забудутся.
В ресторане NENE вы не найдете картин Пиросмани или глиняных кувшинов с пестрыми коврами, но вы точно почувствуете воспоминания о них, которые архитекторы, живущие и творящие сто лет спустя, сохраняют в себе как базовый культурный код, поверх которого наслаиваются все новые и новые традиции, привычки, увлечения, образ жизни современного горожанина, не мыслящего себя без хорошего кофе по утрам, рабочего дня в офисе и классного рейва вечером. Тбилиси, Берлин, Париж и десятки других мировых столиц живут примерно одними заботами. Меняется только атмосфера, ритм жизни, который каждый выбирает для себя. Как и ресторан, в котором хочется вновь и вновь встречаться с друзьями или просто проводить время, вспоминая о предыдущей поездке в Грузию или планируя будущую.ЕП  Описание предоставлено архитекторами Бюро MAST спроектировало не просто грузинский ресторан. Архитекторы создавали Тбилиси – свободный, шумный, интеллигентный, уличный – прямо в центре Москвы. Заказчики пришли с запросом не на привычный «грузинский ресторан», который обычно ассоциируется с классическими имперскими интерьерами или этническим колоритом, а на пространство, противопоставленное этим шаблонам. Лучшей отправной точкой для нас стал фильм «Рейв у парламента».
Архитекторы отказались от стандартной «грузинской красоты» и сделали интерьер как повествование о городе, в который сами отправились в начале работы над проектом. Парламент и центральные улицы, выложенные натуральным камнем, они перенесли в центр зала. Деревянные постройки, балконы, балки – на потолке и колоннах. Тбилиси – очень зеленый город, и в нашем проекте зелень появляется в полу и в части кухни. Ведь Тбилиси – это еще и влияние Парижа и Берлина. Поэтому в центре зала стоят классические деревянные стулья и столы со скатертями – отсылка к французской традиции. Вдоль окон – стулья из нержавейки и старые немецкие индустриальные светильники, которые мы привезли из Германии, – привет уличному Берлину.
Санузлы расположены в подвале, и эта часть проекта отвечает за андеграунд. Спускаясь вниз, гость оказывается в ночном клубе, на рейве. Тбилиси и Берлин – это и про это тоже. Архитекторы оставили этот переход, трактовав его как портал – туда, где город не спит. Все это – не просто интерьер. Это попытка передать дух свободной, уличной, настоящей Грузии.
 Ресторан грузинской кухни NENEФотография © Михаил Лоскутов, Даниил Аненков / предоставлена Арихектурное бюро MAST
Ресторан грузинской кухни NENEФотография © Михаил Лоскутов, Даниил Аненков / предоставлена Арихектурное бюро MAST
Ресторан грузинской кухни NENEФотография © Михаил Лоскутов, Даниил Аненков / предоставлена Арихектурное бюро MAST
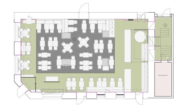
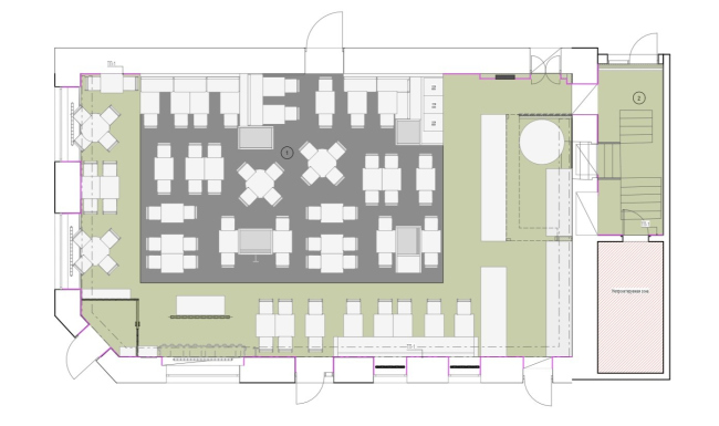
Ресторан грузинской кухни NENEФотография © Михаил Лоскутов, Даниил Аненков / предоставлена Арихектурное бюро MASTРесторан грузинской кухни NENEФотография © Михаил Лоскутов, Даниил Аненков / предоставлена Арихектурное бюро MASTРесторан грузинской кухни NENEФотография © Михаил Лоскутов, Даниил Аненков / предоставлена Арихектурное бюро MASTРесторан грузинской кухни NENEФотография © Михаил Лоскутов, Даниил Аненков / предоставлена Арихектурное бюро MASTРесторан грузинской кухни NENEФотография © Михаил Лоскутов, Даниил Аненков / предоставлена Арихектурное бюро MASTРесторан грузинской кухни NENEФотография © Михаил Лоскутов, Даниил Аненков / предоставлена Арихектурное бюро MASTРесторан грузинской кухни NENEФотография © Михаил Лоскутов, Даниил Аненков / предоставлена Арихектурное бюро MASTРесторан грузинской кухни NENEФотография © Михаил Лоскутов, Даниил Аненков / предоставлена Арихектурное бюро MASTРесторан грузинской кухни NENEФотография © Михаил Лоскутов, Даниил Аненков / предоставлена Арихектурное бюро MASTРесторан грузинской кухни NENEФотография © Михаил Лоскутов, Даниил Аненков / предоставлена Арихектурное бюро MASTРесторан грузинской кухни NENE© Арихектурное бюро MAST
|