|
Недавно построенный в Москве музей «Коллекция» интересен не только своей концепцией, архитектурой от бюро СПИЧ и впечатляющей программой выставок, но и интерьером офиса, созданного бюро .dpt, вдохновлявшегося произведениями искусства.
От редакции Кто-то сравнивает архитектуру с музыкой, кому-то ближе ассоциации с произведениями скульптуры или графики – в зависимости от того, насколько пластично или лаконично построено здание. С живописью архитектуру сравнивают редко и еще реже вдохновляются ею при создании архитектурных или дизайнерских объектов. А зря. В живописи всегда заложены эмоции, выражаемые не только через сюжет и технику письма, но и через колористическую гамму, которая может дать толчок к созданию, например, уникального интерьера – как это произошло в случае с офисом музея «Коллекция» в Москве.
 Благородные бежевый и серый цвета здесь ведут бесконечный диалог. То серый (пол, потолок и бетонные стены) отступает на второй план, становясь выигрышным фоном для бежевых пространственных элементов – функциональных блоков, шкафов и предметов мебели, – то цвета неожиданно меняются ролями, и уже серый металлический стеллаж царит в залитом солнечным светом пространстве, упорядочивая и структурируя его. Богатство колористического диалога усиливается чередованием фактур и текстур различных материалов, из которых выполнены те или иные элементы интерьера. Здесь есть и шероховатая поверхность венткороба с эффектными «заклепками» воздухозаборов, и глянцевая текучесть перегородок, окружающих комнату отдыха, и мягкие драпировки, и бетон. Каждая тема, каждая фактура вплетается в общую интерьерную мелодию – слегка меланхоличную, но очень запоминающуюся.ЕП 
 Ксения Караваева, сооснователь бюро .dpt В своих проектах мы стремимся подходить к интерьеру не как к набору отдельных помещений, а как к цельной среде с перетекающими одно в другое пространствами.
Ключевым элементом дизайна для нас является форма объектов. Важно сначала собрать функциональную объемно-пространственную композицию – своего рода «архитектуру внутри пространства», – а затем акцентировать ее различные элементы с помощью цвета и фактуры. Нам кажется, что это удалось реализовать и в интерьере офиса музея «Коллекция».
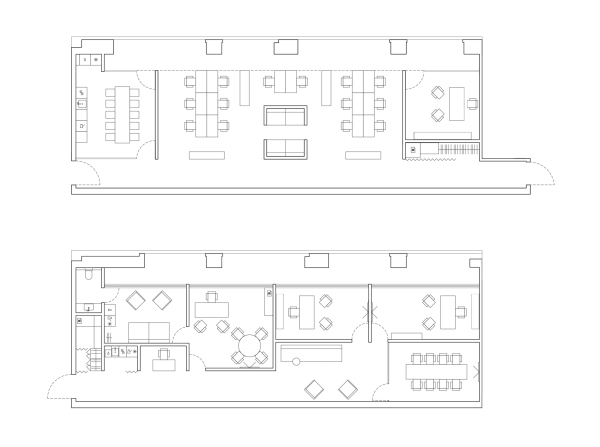
В данном случае под офис было выделено достаточно компактное пространство. До плиты перекрытия – всего 2,9 метра. Если бы в соответствии с рабочим проектом был выполнен подвесной потолок, высота сократилась бы до 2,4 метра, что для офиса с двумя этажами площадью по 150 квадратных метров стало бы катастрофой.
Мы предложили собрать основную часть коммуникаций в широкий короб, проходящий через оба этажа вдоль глухой задней стены – на таком расстоянии, чтобы сохранить оптимальный коридор и весь световой фронт с максимальной высотой. Это решение позволило создать визуальный эффект более просторного помещения. В этой части офиса расположены рабочие места сотрудников дирекции на первом этаже и кабинеты руководителей – на втором. Таким образом, сотрудники могут работать в комфортных условиях.
При выборе колористики мы вдохновлялись несколькими картинами в серо-бежевой гамме. Серый – цвет бетона – связал интерьер офиса с архитектурой всего здания, а бежевый оттенок, на наш взгляд, привнес в пространство индивидуальность и ощущение комфорта. Мы использовали его, варьируя материалы и фактуры, чтобы акцентировать центральный планировочный блок, коммуникационный короб и другие массивные элементы, формирующие образ офиса. Исключением стали металлические стеллажи, которые добавляют пространству графичность и брутальность, контрастируя со скругленными формами комнаты отдыха и мягкими складками драпировок. Эти драпировки отделяют мини-кухню, кофе-поинт и принтерную от основного коридора, по которому ходят как сотрудники, так и гости.

 Описание предоставлено архитекторами История проекта Заказ поступил от дирекции частного музея «Коллекция», размещенного в музейно-выставочном центре на территории жилого комплекса «ЗилАрт». Архитекторам поступил запрос на проектирование офисных помещений для дирекции и департаментов музея.
 Описание Архитектурное бюро .dpt спроектировало офис музея «Коллекция», расположенный в музейно-выставочном центре на территории жилого комплекса «ЗилАрт». Интерьер занимает два уровня – третий этаж и антресоль – общей площадью 300 м². Проект был запущен в августе 2023 года, а завершен летом 2025-го.
 Пространство зонировано на рабочие зоны, кабинеты дирекции, кухню и переговорную. Основным пожеланием заказчика стало полное исключение меди в отделке. В ответ на это архитекторы выстроили сдержанную палитру серых и бежевых оттенков, проходящих через проект в отделке, мебели и стеклянных деталях. Бетонные стены и наливной пол остались нетронутыми.
 Большое внимание уделено инженерным системам: из-за невысоких потолков все основные коммуникации собраны в лаконичный потолочный короб. Центральным элементом стал объемный куб с лаунж-зоной, обшитый акустическими панелями. Почти вся мебель создана по индивидуальному проекту – включая рабочие столы со съемными крышками для коммуникаций и металлические стеллажи, разделяющие open space. Это первый офисный проект бюро в подобном формате, ставший важным опытом работы с корпоративным заказом.
 Офис музея «Коллекция» в ЗилАртеФотография © Сергей Красюк / предоставлена Бюро .dpt
Офис музея «Коллекция» в ЗилАртеФотография © Сергей Красюк / предоставлена Бюро .dpt
Предоставлено .dptПредоставлено .dptПредоставлено .dptОфис музея «Коллекция» в ЗилАртеФотография © Сергей Красюк / предоставлена Бюро .dptОфис музея «Коллекция» в ЗилАртеФотография © Сергей Красюк / предоставлена Бюро .dptОфис музея «Коллекция» в ЗилАртеФотография © Сергей Красюк / предоставлена Бюро .dptОфис музея «Коллекция» в ЗилАртеФотография © Сергей Красюк / предоставлена Бюро .dptОфис музея «Коллекция» в ЗилАртеФотография © Сергей Красюк / предоставлена Бюро .dptОфис музея «Коллекция» в ЗилАртеФотография © Сергей Красюк / предоставлена Бюро .dptОфис музея «Коллекция» в ЗилАртеФотография © Сергей Красюк / предоставлена Бюро .dptОфис музея «Коллекция» в ЗилАртеФотография © Сергей Красюк / предоставлена Бюро .dptОфис музея «Коллекция» в ЗилАртеФотография © Сергей Красюк / предоставлена Бюро .dptОфис музея «Коллекция» в ЗилАртеФотография © Сергей Красюк / предоставлена Бюро .dpt
Офис музея «Коллекция» в ЗилАртеФотография © Сергей Красюк / предоставлена Бюро .dptОфис музея «Коллекция» в ЗилАртеФотография © Сергей Красюк / предоставлена Бюро .dptОфис музея «Коллекция» в ЗилАртеФотография © Сергей Красюк / предоставлена Бюро .dptОфис музея «Коллекция» в ЗилАртеФотография © Сергей Красюк / предоставлена Бюро .dptОфис музея «Коллекция» в ЗилАртеФотография © Сергей Красюк / предоставлена Бюро .dptОфис музея «Коллекция» в ЗилАртеФотография © Сергей Красюк / предоставлена Бюро .dptОфис музея «Коллекция» в ЗилАртеФотография © Сергей Красюк / предоставлена Бюро .dptОфис музея «Коллекция» в ЗилАртеФотография © Сергей Красюк / предоставлена Бюро .dptОфис музея «Коллекция» в ЗилАртеФотография © Сергей Красюк / предоставлена Бюро .dptОфис музея «Коллекция» в ЗилАртеФотография © Сергей Красюк / предоставлена Бюро .dptОфис музея «Коллекция» в ЗилАртеФотография © Сергей Красюк / предоставлена Бюро .dptОфис музея «Коллекция» в ЗилАртеФотография © Сергей Красюк / предоставлена Бюро .dptОфис музея «Коллекция» в ЗилАртеФотография © Сергей Красюк / предоставлена Бюро .dptОфис музея «Коллекция» в ЗилАртеФотография © Сергей Красюк / предоставлена Бюро .dptОфис музея «Коллекция» в ЗилАртеФотография © Сергей Красюк / предоставлена Бюро .dptОфис музея «Коллекция» в ЗилАртеФотография © Сергей Красюк / предоставлена Бюро .dptОфис музея «Коллекция» в ЗилАртеФотография © Сергей Красюк / предоставлена Бюро .dptОфис музея «Коллекция» в ЗилАртеФотография © Сергей Красюк / предоставлена Бюро .dptОфис музея «Коллекция» в ЗилАртеФотография © Сергей Красюк / предоставлена Бюро .dptОфис музея «Коллекция» в ЗилАртеФотография © Сергей Красюк / предоставлена Бюро .dptОфис музея «Коллекция» в ЗилАртеФотография © Сергей Красюк / предоставлена Бюро .dptОфис музея «Коллекция» в ЗилАртеФотография © Сергей Красюк / предоставлена Бюро .dptОфис музея «Коллекция» в ЗилАртеФотография © Сергей Красюк / предоставлена Бюро .dptОфис музея «Коллекция» в ЗилАрте© Бюро .dptОфис музея «Коллекция» в ЗилАрте© Бюро .dpt
|