|
Дом в Переделкино, построенный по проекту мастерской АРХИВУД, представляет собой вариацию на тему современной дачи. Лаконичное по архитектуре здание вписано в пространство между соснами, соответствует классу энергоэффективности «А» и предназначено как для уединения, так и совместного досуга большой семьи.
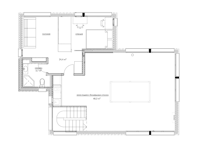
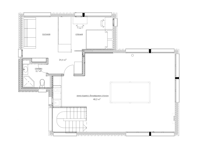
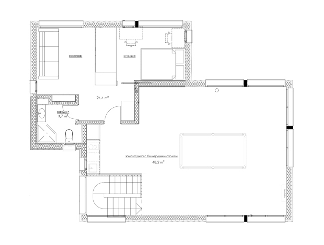
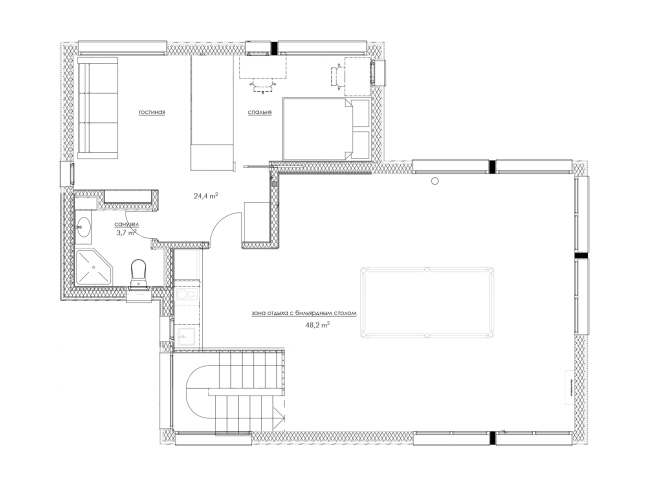
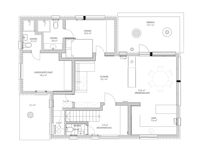
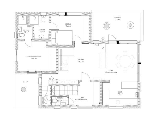
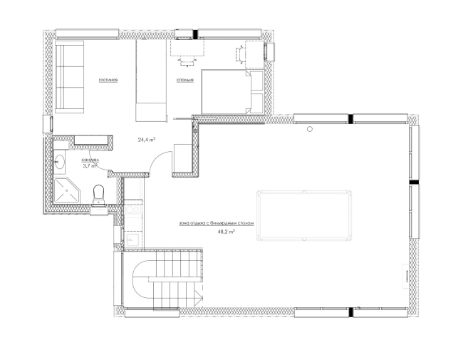
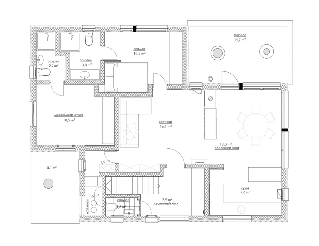
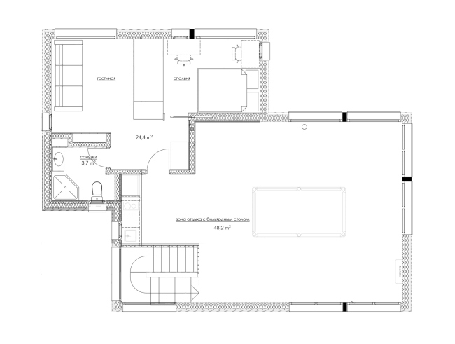
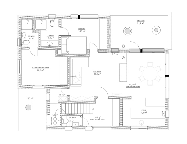
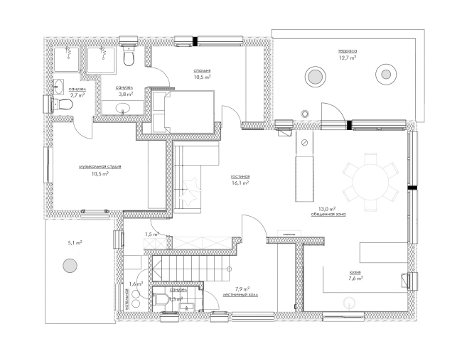
Описание предоставлено архитекторами Дом построен для семьи с пятью детьми как дополнительный «флигель»: он объединяет кухню, бильярдную, спальню и музыкальную студию, отвечая главному пожеланию владельцев – жить в гармонии с природой, сохраняя комфорт и уют для всей семьи. Бережное отношение к природе отразилось в сохранению деревьев на участке, использовании натуральных материалов, природных оттенков и лаконичных форм. Легкую деревянную конструкцию накрывает металлическая скатная кровля с минимальным уклоном в 7 градусов, скрытая высоким парапетом. Этот архитектурный элемент формирует современный силуэт и выполняет практическую функцию – предотвращает сход снега на террасы. Экоминимализм сочетается с энергосбережением: дом соответствует высокому классу энергоэффективности «А».  Интерьер продолжает архитектурную концепцию. Спокойная палитра природных оттенков, дерево, камень и простые формы создают атмосферу легкости и уюта. В то же время интерьер не лишен индивидуальности: теплые акценты внесены за счет авторской мебели и лестницы из фанеры, устланной ковром с традиционным орнаментом.  На первом этаже расположены гостиная-кинозал, кухня и столовая. Центральный элемент пространства – камин с двусторонней стеклянной дверцей, позволяющей любоваться огнем из гостиной и столовой. Кухня с окном, открывающим вид на лес, соединена с террасой. Ее изюминка – фермерская мойка, изготовленная в столярном ателье АРХИWOOD, глубокая и функциональная, с бортиком, выступающим за фасад мебели. Бильярдная проектировалась под массивный игровой стол из ясеня –жесткость этой древесины превосходит дуб. Бильярдная объединена с игровой зоной, кухней и домашним кинотеатром, создавая пространство для общения и отдыха.    GREENФотография © Маргарита Федина / предоставлена АРХИВУД
GREENФотография © Маргарита Федина / предоставлена АРХИВУД
GREENФотография © Маргарита Федина / предоставлена АРХИВУДGREENФотография © Маргарита Федина / предоставлена АРХИВУДGREENФотография © Маргарита Федина / предоставлена АРХИВУДGREENФотография © Маргарита Федина / предоставлена АРХИВУДGREENФотография © Маргарита Федина / предоставлена АРХИВУДGREENФотография © Маргарита Федина / предоставлена АРХИВУДGREENФотография © Маргарита Федина / предоставлена АРХИВУДGREENФотография © Маргарита Федина / предоставлена АРХИВУДGREENФотография © Маргарита Федина / предоставлена АРХИВУДGREEN. План 1 этажа© АРХИВУД
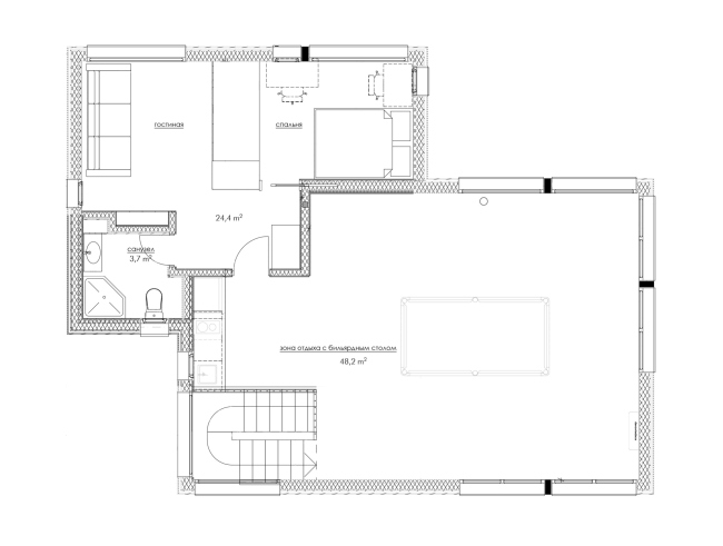
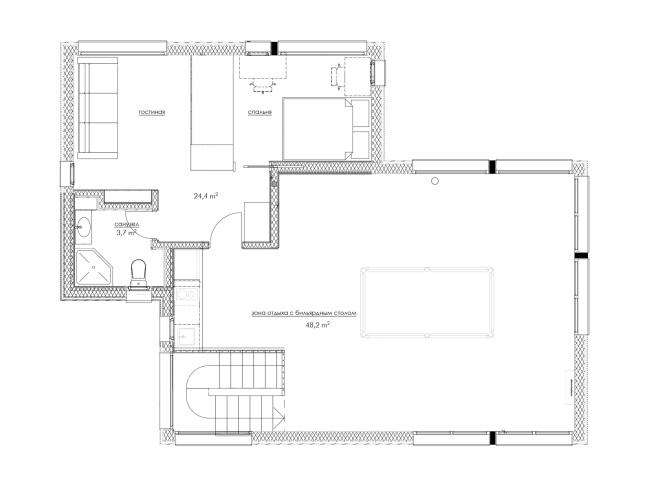
GREEN. План 2 этажа© АРХИВУД
|