|
Бюро Mast разработало интерьер кафе для сети кафе-пекарен «Лицей», как будто исследуя выразительные возможности самых простых, самых сдержанных дизайнерских средств, чтобы у посетителей была возможность насладиться ароматом свежеиспеченной сдобы и хлеба.
От редакции Человек обладает пятью сокровищами, которые редко ценит по достоинству. Наши пять чувств – зрение, слух, вкус, осязание и обоняние – дарят нам бесконечные возможности для восприятия и, чего уж греха таить, наслаждения окружающим миром. В быту нам редко удается найти возможность отдаться одному или нескольким чувствам и окунуться в глубины нюансов запахов, звуков, оттенков цвета или вкуса. Лишь немногие счастливчики ухитряются сделать их частью своей жизни и получать от них удовольствие по-настоящему. Но каждому доступна возможность сходить в концертный зал, чтобы послушать музыку, в картинную галерею – чтобы полюбоваться на живописные шедевры, или в бар – чтобы выпить бокал прекрасного вина. Но куда можно сходить, чтобы побаловать свои вкусовые и обонятельные рецепторы? Кто-то скажет – в элитный ресторан, но этот совет вряд ли будет востребован. А вот сходить в кафе-пекарню, чтобы посидеть в тишине и покое, давая запахам десертов и выпечки завоевать всё твое внимание, и в качестве апофеоза получить награду в виде кусочка пирога или изысканного десерта – это вполне доступный вариант. Всё, что для этого нужно, – запретить себе торопиться, выключить звук и убрать подальше телефон. И, да, самое главное – найти правильную пекарню, например, одну из кафе-пекарен сети «Лицей», ведь в них уже создан интерьер, в котором всё сделано для того, чтобы вознаградить большую часть чувств посетителей.
 Сам интерьер очень прост – белые стены, белый кафель, простая деревянная мебель, но не без харизмы, за которую тут отвечают кафельный пол карминного цвета, ярко-красная витрина и как бы «вскрытый» потолок, зашитый старым деревом. Финализирующими штрихами в этом пространстве «почти ничего» выглядят несколько аксессуаров в виде функциональных арт-объектов (вешалка при входе, светильник на стене, стоящий в углу шкаф с разноцветными обложками книг).
 Всё настолько сбалансировано и гармонизировано, что хочется ограничить доступ в интерьер и продавать сюда билеты на сеанс релаксации, заставляющей особенно остро ощутить смесь из запахов кофе, выпечки и дубовых балок.
Но это лишь мечты. Кафе-пекарня пользуется большой популярностью, и в часы пик здесь приходится резервировать место, чтобы получить свой шанс приобщиться к числу чувственных эстетов.ЕП  Описание предоставлено архитекторами Еще одно кафе «Лицей» появилось на Остоженке, но уже в другом формате. Здесь всё та же вкусная выпечка и кофе, однако более просторный зал, расширенное меню и обновленная концепция бистро. Теперь сюда можно не только забежать за капучино, но и провести неспешный вечер с друзьями за бокалом вина.
 Основатели «Лицея» действительно лицеисты – дружба Дмитрия Янченко и Евгения Чечеткина началась со времен учебы в Брянске, а Никита Румянцев жил в Москве. Трех товарищей объединила любовь к кофе, благодаря которой в столице появилось уже два проекта их авторства. Первый «Лицей» открылся в Лялином переулке в формате пекарни, где особую популярность завоевали сосиски в тесте.
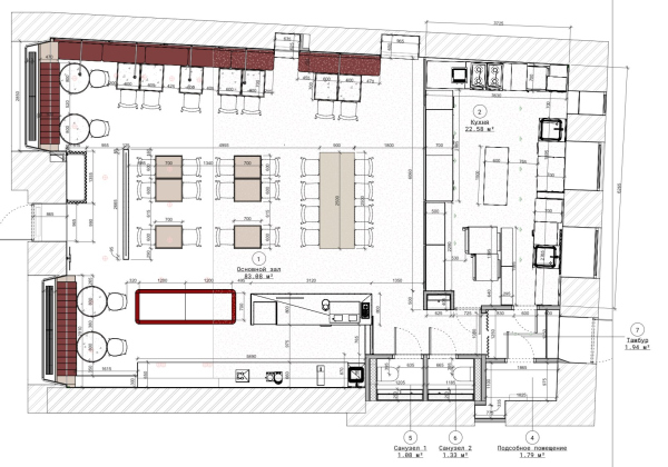
Второй – появился на Остоженке недавно и создавался в сотрудничестве с архитектурным бюро Mast уже с обновленной концепцией.
 «До ремонта это было небольшое пространство, разделенное на два помещения: магазин и кофейню. После демонтажа остался неровный квадрат с кривыми стенами, но зато с высокими потолками и потенциалом для создания открытого, светлого интерьера, – вспоминают архитекторы. – Мы хотели, чтобы пространство было уютным, таким, где хочется не просто выпить кофе, а провести время».
Этому благоволят и расширенное меню, и интерьер в спокойных и теплых тонах. Исключение – ярко-красная столешница, привлекающая внимание гостей к главному элементу пространства – выпечке.
«Подрядчики долго отказывались делать столешницу, сомневались, – говорят авторы проекта. – В итоге, когда увидели результат, признали, что получилось именно так, как задумывалось».
 Мебель в кафе сложно соотнести с лицейской – здесь нет прямых отсылок к классическим учебным партам. Стулья были привезены из Европы, а освещение подобрано у брендов Vibia и Aledo. Остальные элементы выполнены на заказ, в том числе символичная деталь на входе – дверная ручка, созданная в форме канцелярской скрепки.
 В новом «Лицее», по словам основателей, станет чуть легче получить свободный столик. Кроме того, по будням работает бронь. «Теперь ничто не помешает гостям занять заветное место у окна и провести время в компании друзей», – говорят они. Кроме того, в пространстве будет чем заняться и на свидании с собой – на стеллаже у окна можно найти коллекцию книг, подобранную галереей Гарри Татинцяна.
 Пекарня «Лицей»Фотография © Инна Каблукова / предоставлена MAST buro
Пекарня «Лицей»Фотография © Инна Каблукова / предоставлена MAST buro
Пекарня «Лицей»Фотография © Инна Каблукова / предоставлена MAST buro
Пекарня «Лицей»Фотография © Инна Каблукова / предоставлена MAST buroПекарня «Лицей»Фотография © Инна Каблукова / предоставлена MAST buroПекарня «Лицей»Фотография © Инна Каблукова / предоставлена MAST buroПекарня «Лицей»Фотография © Инна Каблукова / предоставлена MAST buroПекарня «Лицей»Фотография © Инна Каблукова / предоставлена MAST buro
Пекарня «Лицей»Фотография © Инна Каблукова / предоставлена MAST buro
Пекарня «Лицей»Фотография © Инна Каблукова / предоставлена MAST buro
Пекарня «Лицей»Фотография © Инна Каблукова / предоставлена MAST buro
Пекарня «Лицей»Фотография © Инна Каблукова / предоставлена MAST buroПекарня «Лицей»Фотография © Инна Каблукова / предоставлена MAST buroПекарня «Лицей»Фотография © Инна Каблукова / предоставлена MAST buroПекарня «Лицей»© MAST buroПекарня «Лицей»© MAST buroПекарня «Лицей»© MAST buroПекарня «Лицей»© MAST buro
|