|
В калифорнийском Клермонтском колледже открылось первое из запланированных зданий по проекту BIG: Научный центр имени Роберта Дея, где масштабные стальные фермы снаружи обшиты стеклофибробетоном, а внутри – древесиной.
Это первый проект BIG в округе Лос-Анджелес, причем архитекторы надеются закрепиться в Калифорнии в целом. Для частного Клермонтского колледжа имени Маккенны мастерская разработала мастерплан и спроектировала серию построек: основной бульвар кампуса теперь дополнится диагональным, и эта «развилка» обыграна в первом реализованном здании.

Колледж, основанный в городе Клермонт сразу после Второй мировой войны, считается одним из самых престижных и «разборчивых» среди вузов США. Здесь почти исключительно предлагаются программы бакалавриата (магистратура появилась лишь недавно), куда стремится поступить обеспеченная молодежь – 58 % студентов происходят из наиболее состоятельных 10 % американских семей.

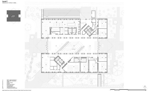
Поэтому и новое строительство идет с размахом: здание BIG общей площадью 12,5 тыс. м2 организовано вокруг большого атриума с кафе, широкой лестницей-трибунами и местами для самостоятельных занятий, которое напоминает по сложности устройства и перспектив гравюры Джованни Баттиста Пиранези. Так, по крайней мере, уверены архитекторы.

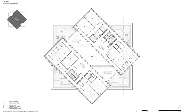
В атриуме яснее всего считывается сложное устройство здания. Оно составлено из пар «брусков», продольные стороны которых ограничивают стальные фермы. «Бруски» каждого уровня расположены под углом 45 градусов к лежащим ниже: эта диагональность дает старт для будущей, второй, оси кампуса, которой заняты BIG.

Снаружи фермы обшиты фактурным стеклофибробетоном со следами фанерной опалубки, а в интерьере – древесиной Дугласовой пихты. Один из «брусков» образует эффектный консольный вынос над главным входом, а все восемь выносов стали основой для озелененных террас, где можно проводить занятия или просто отдыхать или общаться. В интерьере сделаны красные и золотые «акценты» – это официальные цвета колледжа.

Центр имени Роберта Дея на 1400 студентов посвящен информатике, исследованию данных и естественным наукам. На первом этаже расположены большая семинарская аудитория и лаборатории визуализации, выше – библиотека, «сухие» и «мокрые» лаборатории, мастерская типа makerspace. Обычные аудитории размещены по периметру: в результате из них открываются виды на город и горы Сан-Габриэль и возникает необходимая для эффективной учебы удаленность от атриума с его общественными пространствами.

Планировка достаточно гибка, чтобы в будущем можно было изменить размеры и назначение каждого из учебных помещений.

На кровле здания размещены более 1000 м2 солнечных батарей общей мощностью 342 МВт⋅ч/год. Центр естественных и точных наук имени Роберта ДеяФото © Laurian Ghinitoiu
Центр естественных и точных наук имени Роберта ДеяФото © Laurian Ghinitoiu
Центр естественных и точных наук имени Роберта ДеяФото © Laurian Ghinitoiu
Центр естественных и точных наук имени Роберта ДеяФото © Laurian Ghinitoiu
Центр естественных и точных наук имени Роберта ДеяФото © Laurian GhinitoiuЦентр естественных и точных наук имени Роберта ДеяФото © Laurian GhinitoiuЦентр естественных и точных наук имени Роберта ДеяФото © Laurian GhinitoiuЦентр естественных и точных наук имени Роберта ДеяФото © Laurian GhinitoiuЦентр естественных и точных наук имени Роберта ДеяФото © Laurian GhinitoiuЦентр естественных и точных наук имени Роберта ДеяФото © Laurian GhinitoiuЦентр естественных и точных наук имени Роберта ДеяФото © Laurian GhinitoiuЦентр естественных и точных наук имени Роберта ДеяФото © Laurian GhinitoiuЦентр естественных и точных наук имени Роберта ДеяФото © Laurian GhinitoiuЦентр естественных и точных наук имени Роберта ДеяФото © Laurian GhinitoiuЦентр естественных и точных наук имени Роберта ДеяФото © Laurian GhinitoiuЦентр естественных и точных наук имени Роберта ДеяФото © Laurian Ghinitoiu
Центр естественных и точных наук имени Роберта ДеяФото © Laurian Ghinitoiu
Центр естественных и точных наук имени Роберта ДеяФото © Laurian Ghinitoiu
Центр естественных и точных наук имени Роберта ДеяФото © Laurian GhinitoiuЦентр естественных и точных наук имени Роберта ДеяФото © Laurian GhinitoiuЦентр естественных и точных наук имени Роберта ДеяФото © Laurian GhinitoiuЦентр естественных и точных наук имени Роберта ДеяФото © Laurian GhinitoiuЦентр естественных и точных наук имени Роберта ДеяФото © Laurian GhinitoiuЦентр естественных и точных наук имени Роберта ДеяФото © Laurian GhinitoiuЦентр естественных и точных наук имени Роберта ДеяФото © Laurian Ghinitoiu
Центр естественных и точных наук имени Роберта ДеяФото © Laurian GhinitoiuЦентр естественных и точных наук имени Роберта ДеяФото © Laurian GhinitoiuЦентр естественных и точных наук имени Роберта ДеяФото © Laurian GhinitoiuЦентр естественных и точных наук имени Роберта ДеяФото © Laurian GhinitoiuЦентр естественных и точных наук имени Роберта ДеяФото © Laurian GhinitoiuЦентр естественных и точных наук имени Роберта ДеяФото © Laurian GhinitoiuЦентр естественных и точных наук имени Роберта Дея© BIG
Центр естественных и точных наук имени Роберта Дея© BIGЦентр естественных и точных наук имени Роберта Дея© BIGЦентр естественных и точных наук имени Роберта Дея© BIGЦентр естественных и точных наук имени Роберта Дея© BIGЦентр естественных и точных наук имени Роберта Дея© BIGЦентр естественных и точных наук имени Роберта Дея© BIGЦентр естественных и точных наук имени Роберта Дея© BIGЦентр естественных и точных наук имени Роберта Дея© BIGЦентр естественных и точных наук имени Роберта Дея© BIGЦентр естественных и точных наук имени Роберта Дея© BIGЦентр естественных и точных наук имени Роберта Дея© BIGЦентр естественных и точных наук имени Роберта Дея© BIGЦентр естественных и точных наук имени Роберта Дея© BIGЦентр естественных и точных наук имени Роберта Дея© BIGЦентр естественных и точных наук имени Роберта Дея© BIGЦентр естественных и точных наук имени Роберта Дея© BIGЦентр естественных и точных наук имени Роберта Дея© BIGЦентр естественных и точных наук имени Роберта Дея© BIG
|