|
Сетевые рестораны обычно – не самая креативная типология. Но ESENINS design studio опровергает эту точку зрения интерьером уже четвертого кафе сети True Cost, в котором архитекторы вновь находят оригинальное прочтение ее дизайн-кода.
От редакции Современное городское кафе – это не только место, куда приходят, чтобы вкусно поесть и пообщаться с друзьями. Сейчас в кафе или ресторане можно вести переговоры и совещания, можно устроить квиз или вечеринку с «настолками», можно «генерировать контент» – особенно если дизайн подходящий, – а некоторые, самые отчаянные, ухитряются работать прямо за столиком.
Для того чтобы удовлетворить столь широкий запрос аудитории, в составе одного интерьера нужно создать как можно больше его производных, отличающихся друг от друга оформлением, эргономикой и форматом посадочных мест, арт-объектами и светом. Как будто внутри одного пространства нужно сделать несколько интерьеров, создавая дизайн-аналог мультивселенных. А если представить, что такие мультиинтерьеры приходится реализовывать в четырех разных кафе одной сети, то количество дизайнерских идей и «фишек» увеличивается в геометрической прогрессии.
 Именно такую аномальную задачу решают архитекторы ESENINS design studio на протяжении нескольких последних лет, разрабатывая интерьеры для ресторанов сети True Cost и соревнуясь в изобретательности сами с собой. В отличие от сетевых ресторанов с сотнями филиалов, которые вынуждены жестко придерживаться дизайн-кода и стандартов оформления своих точек, что с одной стороны повышает узнаваемость, а с другой – закрывает вопрос креатива, сеть True Cost не стремится к количеству. Вместо этого ее владельцы вместе с архитекторами создают коллекцию вариаций на свой фирменный стиль и формат заведения.
 Очередной ресторан True Cost на Преображенке представляет собой жизнерадостный микс из разноцветной мебели и драпировок, разномастных светильников и стен, декорированных множеством способов – от росписей до рельефных панно. Разумеется, стены тоже разноцветные. Буйство фактур и цветов поначалу ошеломляет, словно карнавал, но потом в нем отчетливо проступает уверенная рука архитектурного режиссера, удерживающего хаос в границах разумного и эстетичного.ЕП 
 Михаил Есенин, руководитель студии дизайна ESENINS В последовательной работе с одним брендом, а мы сделали для сети True cost уже четыре ресторана, главной задачей является найти оригинальное прочтение, сохраняя преемственность и узнаваемость, бренда True cost.
Перед началом каждого нового проекта мы подробно обсуждаем все с заказчиками, чтобы лучше понять их видение, ведь от проекта к проекту их отношение и предпочтения меняются. Кроме того, поскольку все рестораны расположены в разных районах Москвы, мы учитываем локальную идентичность и специфику потенциальной аудитории. Наши заказчики подбирают помещение и разрабатывают концепцию нового True cost, думая о том, как он будет работать, какое новое качество привнесет в жизнь района и что даст людям, которые будут приходить сюда.
В ресторане на Осеннем бульваре мы развивали велосипедную тему, а в проекте на Преображенской площади мы предложили заказчикам исследовать тему праздника, с немного интригующим, но позитивным настроением. Мы хотели создать интерьер, который бы воспринимался одинаково радостным и эффектным и днем, с естественным светом, и вечером с искусственным освещением. Куда любой человек мог бы прийти и пригласить друзей, чтобы отметить какой-то свой праздник, какое-то свое достижение. Не важно большое или маленькое. И как нам кажется, мы смогли добиться этого результата, даже с учетом финансовых ограничений, присущих этой сети кафе, которая относится к не самой дорогой категории.
Сильная сторона True Cost – ориентация на молодежь, поэтому в меблировке отдается предпочтение рассадке на стульях, а не на диванах, хотя радиусные диваны с перегородками с круглыми столами стали отличительной особенностью интерьеров всех четырех кафе сети. Мы обязательно включаем в интерьер логотип сети, каждый раз придумывая, как его обыграть в оформлении стен или в форме светильников. Вообще мы стараемся использовать самые разные типы светильников, превращая их в своеобразные арт-объекты. В организации пространства для True Cost важна трансформируемость и возможность организовать место для отдыха и застолья большой компании. Колористика всех сетевых кафе строится преимущественно на ярких, открытых цветах, и в случае с рестораном на Преображенке, это было особенно уместно для создания позитивного вайба.
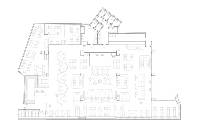
 Описание предоставлено архитекторами Задача: Создать праздничную атмосферу, чтобы пространство было местом притяжения, местом, где можно отметить день рождения или другое радостное событие. Зонировать, вместить большое число гостей и компаний, предусмотреть трансформируемые зоны, обыграть подиумы и санузлы, оставшиеся от предыдущего ресторана, интегрировать их в дизайн, создать яркую и праздничную атмосферу.
Сложность: Работа с существующей геометрией пространства, подиумами, небольшим количеством окон и ограниченным доступом дневного света.
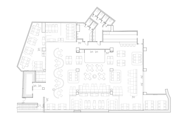
Решение: Ресторан находится на втором этаже. Поднявшись, гость попадает в зону входа. Здесь его встречает стойка ресепшн, выполненная из музыкальных колонок, а за ней – металлическое панно с логотипом.
 Пространство имеет большую площадь, поэтому было поделено на зоны. Слева располагаются трансформируемые VIP-зоны на подиумах. На одном подиуме зонирование реализовано шторами, на другом – деревянными перегородками с надписью True Cost. Стены здесь выполнены из гипсового декора с подсветкой. Еще один подиум расположен около окна, над ним – инсталляция из сетки и стеклянных светильников. Эту композицию хорошо видно с улицы, поэтому зону решили обыграть в декоративном ключе.
 По центру помещения расположена сцена, задник которой представляет собой объемную панель, собранную из букв, входящих в название ресторана (True Cost), с подсветкой. Здесь также есть приватные зоны, отделяемые шторами.
Во входной части установлено несколько полукруглых диванов, зонируемых металлической ширмой. Такое решение позволяет создать уютные места даже в проходной зоне.
 В дальнем от входа углу находится бар, который выделяется за счет необычного потолка с отделкой под дерево – благодаря этому места здесь становятся привлекательными и уютными для гостей. Фасад бара лаконичен, отделан синей плиткой, а задник представляет собой комбинацию деревянных шкафов, зеркальных поверхностей и молдингов, начинающихся на барных полках и простирающихся до самого потолка. В этом ресторане окно раздачи выходит прямо в зал, приоткрывая гостю происходящее на кухне.
 Общая цветовая гамма ресторана – переход от теплого к прохладному: теплые деревянные полы красно-коричневого оттенка через растяжку на шторах сменяются темно-синим потолком. Аналогичное цветовое решение используется на стенах в зоне подиума.
Стена за сценой имеет второе назначение – она отделяет зону входа в санузлы, которые получились камерными и выполнены в сине-зелёных тонах. Здесь также присутствует игра теплого и холодного: холодный низ из сине-зеленой плитки с подсветкой того же оттенка и теплый оранжевый верх с аналогичной подсветкой.
Цветовая палитра мебели включает в себя зеленый, синий и рыжий оттенки, вовлекая гостя в эмоциональную игру. В помещении установлены светильники различных форм, большинство из них – стеклянные, благодаря чему они создают блики. За подиумами и в зоне лестницы размещены металлические светильники, олицетворяющие салют и праздник.
 TRUECOST на Преображенской площадиФотография © Волокитин Сергей / предоставлена ESENINS design studio
TRUECOST на Преображенской площадиФотография © Волокитин Сергей / предоставлена ESENINS design studio
TRUECOST на Преображенской площадиФотография © Волокитин Сергей / предоставлена ESENINS design studio
TRUECOST на Преображенской площадиФотография © Волокитин Сергей / предоставлена ESENINS design studioTRUECOST на Преображенской площадиФотография © Волокитин Сергей / предоставлена ESENINS design studioTRUECOST на Преображенской площадиФотография © Волокитин Сергей / предоставлена ESENINS design studioTRUECOST на Преображенской площадиФотография © Волокитин Сергей / предоставлена ESENINS design studioTRUECOST на Преображенской площадиФотография © Волокитин Сергей / предоставлена ESENINS design studioTRUECOST на Преображенской площадиФотография © Волокитин Сергей / предоставлена ESENINS design studio
TRUECOST на Преображенской площадиФотография © Волокитин Сергей / предоставлена ESENINS design studioTRUECOST на Преображенской площадиФотография © Волокитин Сергей / предоставлена ESENINS design studioTRUECOST на Преображенской площадиФотография © Волокитин Сергей / предоставлена ESENINS design studioTRUECOST на Преображенской площадиФотография © Волокитин Сергей / предоставлена ESENINS design studioTRUECOST на Преображенской площадиФотография © Волокитин Сергей / предоставлена ESENINS design studioTRUECOST на Преображенской площадиФотография © Волокитин Сергей / предоставлена ESENINS design studioTRUECOST на Преображенской площадиФотография © Волокитин Сергей / предоставлена ESENINS design studioTRUECOST на Преображенской площадиФотография © Волокитин Сергей / предоставлена ESENINS design studioTRUECOST на Преображенской площадиФотография © Волокитин Сергей / предоставлена ESENINS design studioTRUECOST на Преображенской площадиФотография © Волокитин Сергей / предоставлена ESENINS design studioTRUECOST на Преображенской площадиФотография © Волокитин Сергей / предоставлена ESENINS design studioTRUECOST на Преображенской площадиФотография © Волокитин Сергей / предоставлена ESENINS design studioTRUECOST на Преображенской площадиФотография © Волокитин Сергей / предоставлена ESENINS design studioTRUECOST на Преображенской площадиФотография © Волокитин Сергей / предоставлена ESENINS design studioTRUECOST на Преображенской площади© ESENINS design studio
|