|
В Иннополисе под Казанью открылся первый 4-звездочный отель, спроектированный бюро MAD Architects. Интерьеры отеля сочетают элегантность и иронию, технологичность и комфорт, напоминая декорации компьютерной игры или фантастического фильма о недалеком будущем.
От редакции Люди, сегодня создающие новые технологии, способные завтра изменить мир, живут и мыслят иначе. Сознание начинает определять бытие, в том числе интерьерный дизайн пространств, в которых инноваторы работают и отдыхают. Их потребности, вкусы и привычки не сильно отличаются от наших в том, что касается базовой эргономики, но понятие о красоте формируется на основе образов, заимствованных из компьютерных игр и цифровой среды. Этот процесс – возвращение в реальность того, что было придумано для виртуального мира, – дает огромные возможности для творческого поиска, может быть, даже для формирования нового стиля. Прекрасным примером поисков нового визуального языка может служить интерьер отеля Muse of Tech Innopolis в Иннополисе под Казанью, созданный бюро MAD Architects.
 Описание предоставлено архитекторами Muse of Tech Innopolis 4* – первый 4-звездочный отель в особой экономической зоне Иннополиса, созданный для технологичных путешественников и профессионалов IT-индустрии. Архитектурную концепцию разработали MAD Architects, вдохновившись ритмами цифрового мира и эстетикой функционального минимализма.
 Бизнес-задача. Отель ориентирован на прием IT-специалистов, командировочных гостей и участников деловых мероприятий. Пространства поддерживают ключевые процессы: бронирование, заселение, обслуживание номеров, организацию мероприятий и питание. Важное значение уделено удобству работы и отдыха резидентов, что отражается в продуманной инфраструктуре.
Проект сочетает комфорт, передовые технологии и адаптивность: все здесь подстроено под ритм жизни современных профессионалов. Пространства – от архитектуры до цифровой инфраструктуры – интуитивны, гибки и эргономичны. Muse of Tech Innopolis 4* – не просто место для сна, а полноценная экосистема для работы, общения и жизни среди резидентов и гостей IT-сообщества.
 Дизайн-идея. Концепция дизайна Muse of Tech Innopolis 4* строится на технологичности, эргономике и визуальной чистоте. Архитекторы опирались на характер Иннополиса как цифрового города и разработали интерьер, где минимализм встречается с футуризмом, а каждый элемент продуман до детали. Отель рассчитан на цифровых кочевников и профессионалов: в номерах и общественных зонах предусмотрены адаптивное освещение, системы скрытого хранения, розетки у каждого посадочного места и быстрые зарядные точки для устройств. Футуристическая атмосфера создается за счет металлизированных поверхностей, лаконичных форм и точечных цветовых акцентов. Общественные зоны – от многофункциональных конференц-залов до гастрономических пространств с авторским рестораном и пивоварней – превращают отель в новую городскую точку притяжения.
Интерьеры номеров продуманы с прицелом на длительное проживание: зонирование способствует спокойному, уединенному пребыванию, а материалы и планировочные решения подчеркивают идею практичного комфорта.
В основе проектной логики – стремление к чистоте восприятия и эргономике. Все системы хранения выполнены в формате скрытых модулей: ручки интегрированы в плоскости фасадов, ничто не выступает за пределы геометрии объемов, благодаря чему создается ощущение визуальной тишины.
Сценарии освещения также адаптированы под разные потребности: наряду с основным рассеянным светом в каждом номере предусмотрено точечное и акцентное освещение. Такая конфигурация позволяет гостю самостоятельно выстраивать комфортную световую среду – будь то работа, отдых или вечернее чтение.
В проекте использовано множество оригинальных изделий, выполненных на заказ, включая светильники, мебель и декоративные конструкции, которые были специально разработаны для этого проекта. Эти элементы размещены в ключевых зонах гостиничного комплекса, создавая уникальную атмосферу и подчеркивая индивидуальность интерьера.
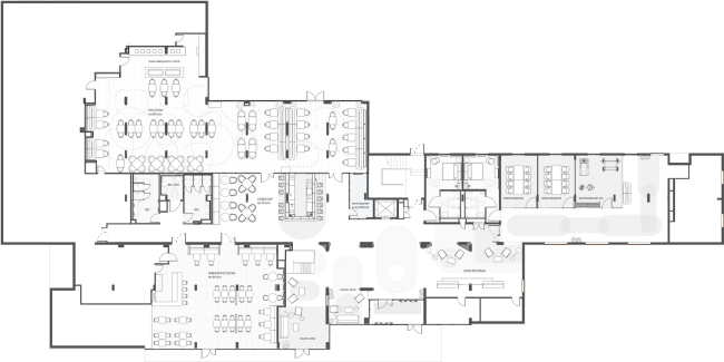
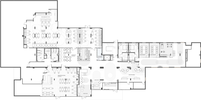
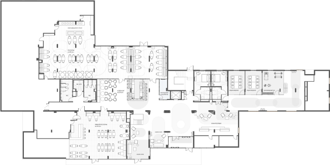
 Организация пространства. Пространственная логика Muse of Tech Innopolis 4* опирается на технологические стандарты и операционные принципы Kravt Hotels & Homes, обеспечивая безупречную поддержку ключевых гостиничных процессов – от размещения гостей до проведения деловых мероприятий.
Лобби и входная зона оформлены в духе технологичного минимализма – сдержанного, но выразительного. Пространство построено на контрасте фактур: колонны облицованы шлифованной нержавеющей сталью, отражающей свет мягкими отблесками, в то время как стены окрашены в матовые приглушенные оттенки, создавая спокойный визуальный ритм. Поверхности приятно тактильны, что усиливает ощущение комфорта и продуманности. Четкие линии архитектурных элементов подчеркивают структуру пространства, а зонирование выполнено лаконично и ненавязчиво – без перегрузки визуального поля. Это место, где форма служит функции, а каждая деталь – продолжение общей концепции технологичного уюта.
 Номерной фонд отеля насчитывает 44 номера, рассчитанных на 88 гостей с возможностью размещения еще трех человек. Пространство распределено между 24 комнатами категории «стандарт», 15 номерами формата «улучшенный стандарт», тремя двухкомнатными люксами и двумя специально оборудованными номерами для маломобильных гостей.
Рабочие пространства адаптированы для деловых встреч, хакатонов, воркшопов и технологических мероприятий, создавая удобную среду для командной работы. Включают конференц-зал площадью 197 кв. м с интерактивной видеостеной для презентаций, а также несколько переговорных комнат. Дополнительно рестораны отеля оснащены мультимедийным оборудованием и могут использоваться как площадки для презентаций и неформальных деловых встреч.
 Гастрономические пространства отеля включают лобби-бар, ресторан на 86 мест в концепции all day dining, а также инновационный ресторан с собственной пивоварней – будущую точку притяжения как для гостей, так и для жителей города. Открытие ресторана запланировано на 2025 год. Развитую инфраструктуру отеля дополняют тренажерный зал и вместительная парковка. Таким образом, зонирование отеля подчинено функциональности и потребностям целевой аудитории, сочетая технологичность, комфорт и удобство для различных бизнес-процессов.
 Технологии и материалы. В интерьерах активно используются фибролитовые панели и металлические акустические элементы, которые создают комфортную акустическую среду и вносят современную текстуру в пространство. Объемные элементы со светопрозрачной тканью и подсветкой добавляют динамичности и создают интересный световой эффект, который плавно меняется в зависимости от времени суток.
Интеллектуальные системы освещения, встроенные решения для скрытого хранения и использование инновационных материалов формируют гармоничную и технологическую атмосферу, идеально подходящую для работы и отдыха IT-специалистов.
Отель интегрирует адаптивные световые сценарии, используя разнообразие световых источников (разные типы светильников, ламп, регулировка интенсивности), что позволяет оптимизировать освещенность в зависимости от времени суток и функционального назначения пространства. В рабочих зонах предусмотрено яркое направленное освещение, способствующее концентрации и продуктивности, в то время как в зонах отдыха преобладает мягкий рассеянный свет, создающий атмосферу уюта и расслабления. Такой подход к освещению подчеркивает гибкость и функциональность интерьера, соответствующую разнообразным потребностям гостей.
Для минимизации фонового шума в интерьере использованы передовые шумопоглощающие материалы: акустические натяжные потолки, фибролит, металлокассеты с перфорацией и акустическим флисом, а также стеновые панели со сложной геометрией, эффективно гасящие эхо. Комбинирование звукопоглощающих поверхностей с яркими акцентами в дизайне создает не только комфортную акустическую среду, но и визуально выразительный интерьер. Особое внимание уделяется звукоизоляции номеров и конференц-залов, что особенно важно для обеспечения продуктивной работы и качественного отдыха гостей.
  Muse of Tech Innopolis 4*Фотография © Андрей Артис /предоставлена MAD architects
Muse of Tech Innopolis 4*Фотография © Андрей Артис /предоставлена MAD architects
Muse of Tech Innopolis 4*Фотография © Андрей Артис /предоставлена MAD architects
Muse of Tech Innopolis 4*Фотография © Андрей Артис /предоставлена MAD architectsMuse of Tech Innopolis 4*Фотография © Андрей Артис /предоставлена MAD architectsMuse of Tech Innopolis 4*Фотография © Андрей Артис /предоставлена MAD architectsMuse of Tech Innopolis 4*Фотография © Андрей Артис /предоставлена MAD architectsMuse of Tech Innopolis 4*. План вестибюля первого этажа© MAD architects
Muse of Tech Innopolis 4*Фотография © Андрей Артис /предоставлена MAD architectsMuse of Tech Innopolis 4*Фотография © Андрей Артис /предоставлена MAD architectsMuse of Tech Innopolis 4*Фотография © Андрей Артис /предоставлена MAD architectsMuse of Tech Innopolis 4*Фотография © Андрей Артис /предоставлена MAD architectsMuse of Tech Innopolis 4*Фотография © Андрей Артис /предоставлена MAD architectsMuse of Tech Innopolis 4*Фотография © Андрей Артис /предоставлена MAD architectsMuse of Tech Innopolis 4*Фотография © Андрей Артис /предоставлена MAD architectsMuse of Tech Innopolis 4*Фотография © Андрей Артис /предоставлена MAD architectsMuse of Tech Innopolis 4*Фотография © Андрей Артис /предоставлена MAD architectsMuse of Tech Innopolis 4*Фотография © Андрей Артис /предоставлена MAD architectsMuse of Tech Innopolis 4*Фотография © Андрей Артис /предоставлена MAD architectsMuse of Tech Innopolis 4*Фотография © Андрей Артис /предоставлена MAD architects
|