|
В интерьерах лобби жилого комплекса FØRST бюро WALL смогло развернуть общую концепцию в неожиданном направлении: через соединение брутальных ортогональных форм с природными материалами, создав ассоциации с северной природой, скалами и сосновым лесом.
От редакции Каждый случай, когда архитекторы, проектировавшие большой жилой комплекс, получают возможность сделать также интерьеры общественных зон, – это уникальная возможность развить замысел и представить его во всей полноте, от макромасштаба генерального плана и объемно-пространственной композиции до решения фасада и планировок, вплоть до наиболее гуманистичного формата, приближенного к человеку, будущему жителю ЖК или гостю. И благодаря этой многогранности и мультимасштабности архитектурный язык обретает максимальную выразительность и глубину.
Бюро WALL известное лаконичным и элегантным стилем и особым вниманием к объемам, пластике форм и их взаимодействию со светом, разработало проект ЖК FØRST для крайне сложного участка, зажатого между Третьим транспортным кольцом и набережной Москва‑реки. В этой гиперурбанизированной среде сантименты неуместны. Архитектура жилого комплекса подчеркнуто брутальна и вызывает ассоциации со скальным массивом, что неудивительно, ведь название жилого комплекса FØRST переводится со шведского как «первый, изначальный».
 Северному характеру присущи не только суровость и сдержанность. Благодаря популярности термина «хюгге» все знают, что за внешней холодностью может скрываться теплота, поэтичность и стремление к естественной красоте. Раскрыть эти качества внутри архитектуры ЖК FØRST призваны интерьеры главного лобби, спроектированные архитекторами WALL в развитие общей концепции.
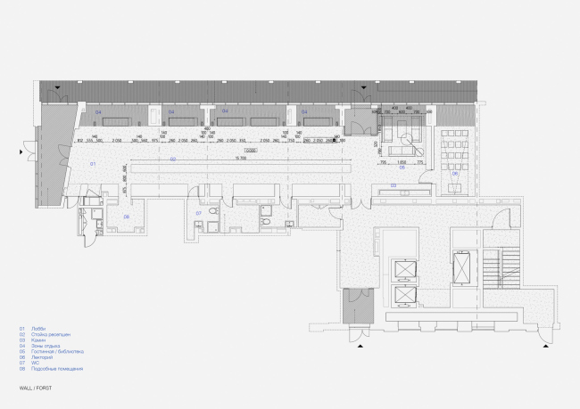
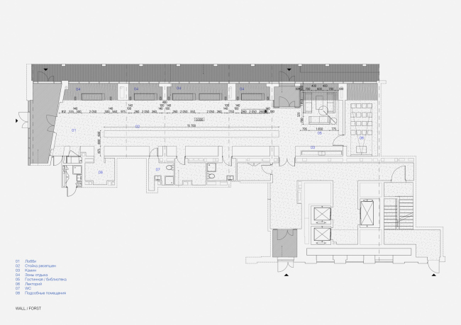
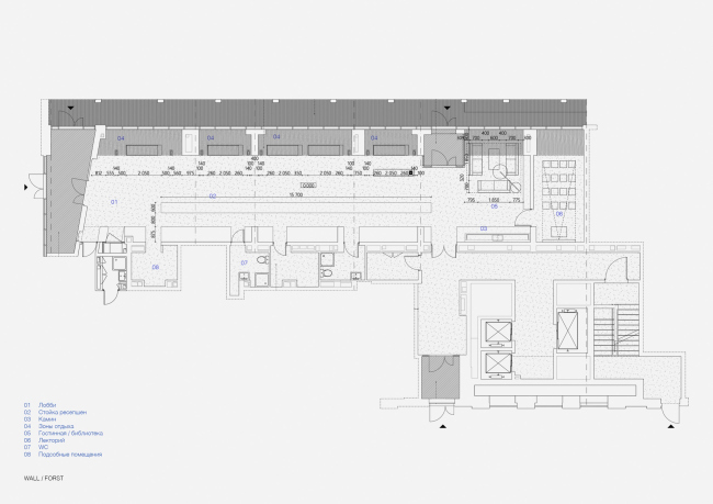
Высокое двусветное помещение решено не как утилитарная часть планировки, необходимое преддверие лифтового холла или место, где должны висеть почтовые ящики, а как гостеприимное пространство, одинаково подходящее и для встреч с друзьями, и для проведения собрания жильцов. За уют здесь отвечают камин, библиотека и несколько комфортных диванов и кресел. В отделке используются серый камень (стены, пол и стойка ресепшн) и деревянные панели (стены, мебель, облицовка колонн). Благодаря дереву удалось привнести нужную степень теплоты и естественности, которая хоть и с некоторым трудом, но побеждает глобальную брутальность.
 Еще одна особенность интерьера лобби считывается не сразу. В нем преобладают вертикальные формы и фактуры. Узкие вытянутые вверх секции библиотеки и схожие с ними по пропорциям пилоны возле внешнего витража, нарезанные на узкие ламели стеновые панели и вертикальные дверные проемы поначалу не бросаются в глаза и лишь под влиянием солнечного или искусственного света проявляется ощущение, что ты находишься в сосновом лесу, где освещенные и затененные деревья образуют прихотливые, все время меняющиеся комбинации.ЕП Описание предоставлено архитекторами Архитектурное бюро WALL выступило и автором архитектурного решения жилого комплекса FØRST, и автором интерьеров общественных зон. Сюжетная линия строится на контрасте внешнего и внутреннего восприятия. Снаружи образ отсылает к скандинавским фьордам, внутри создается атмосфера традиционного загородного дома с камином и библиотекой.
Главное лобби высотой 8 метров по своей природе и пропорциям отсылает скорее к крытой площади. Эффект усиливается окнами второго этажа, выходящими в сторону лобби. Тем самым создается визуальный диалог на разных уровнях.
В отделке применены натуральные материалы – в частности, дерево и натуральный сланец.
 FØRST. Главное лоббиФотография © Никита Субботин / предоставлена WALL
FØRST. Главное лоббиФотография © Анастасия Самойлова / предоставлена WALLFØRST. Главное лоббиФотография © Даниил Анненков / предоставлена WALLFØRST. Главное лоббиФотография © Анастасия Самойлова / предоставлена WALLFØRST. Главное лоббиФотография © Никита Субботин / предоставлена WALLFØRST. Главное лоббиФотография © Никита Субботин / предоставлена WALLFØRST. Главное лоббиФотография © Никита Субботин / предоставлена WALLFØRST. Главное лоббиФотография © Даниил Анненков / предоставлена WALLFØRST. Главное лоббиФотография © Даниил Анненков / предоставлена WALLFØRST. Главное лоббиФотография © Даниил Анненков / предоставлена WALLFØRST. Главное лоббиФотография © Анастасия Самойлова / предоставлена WALLFØRST. Главное лобби© WALL
FØRST. Главное лобби© WALL
FØRST. Главное лобби© WALL
|