|
Интерьер ресторана «Сайар» от бюро Merilo Design, расположенного в здании театра имени Галиасгара Камала, поражает воображение феерическим разнообразием и качеством реализации различных элементов, тем и приемов, перефразирующих на современный лад мотивы татарской культуры и образы театра.
От редакции Наверное, главное отличие интерьерного дизайна от объемной архитектуры – непосредственный контакт потребителя с объектом. Каждое интерьерное решение должно быть рассчитано на то, что человек может подойти вплотную, пристально рассмотреть и даже дотронуться до любого элемента. Тут уж никакие оправдания и кивания на криворуких строителей не сработают. Нужно все доводить до идеала и делать по-настоящему. Даже если это ресторан, изображающий театральное закулисье, его убранство не должно напоминать декорации, собранные из картона, фанеры и крашеной марли, а обязано соответствовать статусу одного из самых престижных и роскошных заведений города. И в ресторане «Сайар» все именно так – на самом высшем уровне, максимально качественно, пышно и даже экстравагантно.
 Интерьер ресторана «Сайар» поражает воображение. В оформлении современных ресторанов часто используется один из двух подходов: «пещерный» или экологичный. Первый строится на общем приглушенном свете с подсветкой столиков, второй – на минималистичном дизайне с отделкой из натуральных материалов и сдержанной гамме. Оба подхода гарантируют посетителям расслабленную атмосферу, приватность и концентрацию на гастрономии и общении.
 «Сайар» в эти тенденции не вписывается совершенно. Он им радикально противостоит. И делает это с такой лихостью, изобретательностью и последовательностью, что впору задуматься о запуске нового тренда, который можно будет назвать «театральный», потому что в нем каждый элемент, каждый предмет не только производит свое драматическое впечатление, но и присутствует не просто так. Как знаменитое «ружье на стене», которое должно выстрелить в последнем акте, каждая деталь в «Сайар» имеет свою «легенду», связь с наследием татарского театра, а также непростую историю разработки дизайна и изготовления. Возможно, кто-то в этом ресторане будет чувствовать себя нервозно из-за обилия акцентов, но для остальных само посещение этого пространства и знакомство с сотнями его «экспонатов» станет отдельным приключением, возможно, даже отодвигающим на второй план качество кухни.
По крайней мере, в этом ресторане вам точно не грозит тягостное молчание за столом. Даже если вы исчерпаете все возможные темы для обсуждения, вам будет достаточно оглянуться, чтобы найти новый повод для дискуссии. ЕП 
 Олег Троицкий, руководитель Merilo Design Главная идея нашего интерьера – закулисье во всей полноте смыслов и образов, которое рождает это понятие. Расположение ресторана в здании театра, хоть планировочно и дизайнерски они никак не связаны, вместе с богатой историей театра в Татарстане, дало нам возможность использовать широкий диапазон выразительных средств: оригинальные элементы интерьера, необычные фактуры, затейливые драпировки, изысканные светильники и так далее. Мы изучали историю первой профессиональной татарской театральной труппы «Сайяр», что в переводе с татарского – «странствующий», традиции сценического оформления, дизайн и орнаментику исторических костюмов, все богатство и разнообразие этого особенного, волшебного мира мы постарались включить в наш интерьер. Посещение нашего ресторана при желании может стать экскурсией в историю татарского театра, из которой мы черпали вдохновение.
Заказчик поддержал нас в реализации этой идеи, для которой понадобилось разработать и изготовить сотни элементов интерьера, включая предметы мебели, витражи, декоративные стеновые панно, облицовку колонн и карнизов, светильники, драпировки и текстильные аксессуары, например веера на лестнице.
Особая сложность в работе над интерьером заключалась в том, что параллельно со строительством и отделкой театра Камала в Казани шло возведение ее нескольких статусных и масштабных объектов, из-за чего некоторые отделочные материалы было невозможно купить, так как партии выкупались со складов целиком. Но мы справились, и интерьер ресторана получился именно таким, каким мы хотели – пространством, где магия театра соединяется с кулинарным волшебством.
 Описание предоставлено архитекторами Ресторан получил свое название в честь первой профессиональной татарской театральной труппы «Сайяр». Это слово с историей, которое имеет «театральный» подтекст и отсылает к самой концепции заведения. Ресторан представляет собой уникальное сочетание гастрономического удовольствия и культурного просвещения. Пространство общей площадью 2000 кв. м расположено на территории нового Татарского театра имени Галиасгара Камала: два этажа, 396 посадочных мест и роскошный, стильный, продуманный до мельчайших деталей интерьер.
 Закулисье, где начинается волшебство С первого шага вы становитесь частью представления. Входная группа – как увертюра к спектаклю: вы словно заглядываете за кулисы, где рождаются истории. Поднявшись на лифте, вы попадаете в «первый акт» – зал, где мерцающая люстра над арочным ресепшеном, лепнина на стенах, расписные вручную вазы и тонкие акценты создают ощущение театральных декораций.
 «Голубая шаль»: любовь в каждом штрихе Шагните дальше – и вы часть спектакля «Голубая шаль». Стены оживают рисунками, рассказывающими историю страстной любви, а в центре зала возвышается двенадцатиметровый бар – завораживающий своим глубоким синим цветом, переливающимся в свете солнца. Это не просто бар, а символ, который притягивает взгляд и задает центр зала.
«Когда цветет черемуха»: романтика в витражах Следующий зал переносит вас в нежную историю спектакля «Когда цветет черемуха». Витражи расцветают алыми маками, а состаренные зеркала отражают игру старого и нового – как вечное чувство влюбленности.
 «Банкрот»: путешествие в движении Продолжите путь – и вы окажетесь в зоне, вдохновленной пьесой «Банкрот». Разделенные ниши, напоминающие вагоны поезда, уносят вас в путешествие пьесы вместе с московским купцом. Панорамные виды за окнами создают иллюзию движения, а вы становитесь частью этой истории.
 Зал Сахи Джамала: дань величию Дальний зал посвящен Сахи Джамал – женщине, чей талант заложил основы татарского театра. Величественные колонны, словно деревья, устремленные к небу, символизируют ее безграничное вдохновение. Витражи, посвященные ее труду, мерцают, рассказывая о наследии, которое живет и по сей день.
 Второй этаж: финальный аккорд Поднимитесь на второй этаж – и вас встретит сияние роскошных хрустальных люстр, словно звезды сказочной ночи. Тканевые композиции с бусинами напоминают театральный занавес, готовый опуститься в финале спектакля. Здесь каждый элемент – это завершающий штрих грандиозного представления.
 «Сайяр» – больше, чем ресторан Это место, где гастрономия становится искусством, а каждый гость – участником театра. Здесь вы не просто хорошо проводите время, а погружаетесь в мир татарской культуры, вдыхаете дух сцены и наслаждаетесь магией творчества.
 Ресторан «Сайар»Фотография © Андрей Ефимов / предоставлена Merilo Design
Ресторан «Сайар»Фотография © Андрей Ефимов / предоставлена Merilo Design
Ресторан «Сайар»Фотография © Андрей Ефимов / предоставлена Merilo Design
Ресторан «Сайар»Фотография © Андрей Ефимов / предоставлена Merilo DesignРесторан «Сайар»Фотография © Андрей Ефимов / предоставлена Merilo DesignРесторан «Сайар»Фотография © Андрей Ефимов / предоставлена Merilo DesignРесторан «Сайар»© Merilo DesignРесторан «Сайар»© Merilo DesignРесторан «Сайар»© Merilo DesignРесторан «Сайар»Фотография © Андрей Ефимов / предоставлена Merilo DesignРесторан «Сайар»Фотография © Андрей Ефимов / предоставлена Merilo DesignРесторан «Сайар»Фотография © Андрей Ефимов / предоставлена Merilo DesignРесторан «Сайар»Фотография © Андрей Ефимов / предоставлена Merilo DesignРесторан «Сайар»Фотография © Андрей Ефимов / предоставлена Merilo DesignРесторан «Сайар»Фотография © Андрей Ефимов / предоставлена Merilo DesignРесторан «Сайар»© Merilo DesignРесторан «Сайар»Фотография © Андрей Ефимов / предоставлена Merilo DesignРесторан «Сайар»© Merilo DesignРесторан «Сайар»Фотография © Андрей Ефимов / предоставлена Merilo DesignРесторан «Сайар»© Merilo DesignРесторан «Сайар»Фотография © Андрей Ефимов / предоставлена Merilo DesignРесторан «Сайар»Фотография © Андрей Ефимов / предоставлена Merilo DesignРесторан «Сайар»Фотография © Андрей Ефимов / предоставлена Merilo DesignРесторан «Сайар»Фотография © Андрей Ефимов / предоставлена Merilo DesignРесторан «Сайар»© Merilo DesignРесторан «Сайар»© Merilo DesignРесторан «Сайар»Фотография © Андрей Ефимов / предоставлена Merilo DesignРесторан «Сайар»Фотография © Андрей Ефимов / предоставлена Merilo DesignРесторан «Сайар»Фотография © Андрей Ефимов / предоставлена Merilo DesignРесторан «Сайар»Фотография © Андрей Ефимов / предоставлена Merilo DesignРесторан «Сайар»Фотография © Андрей Ефимов / предоставлена Merilo Design
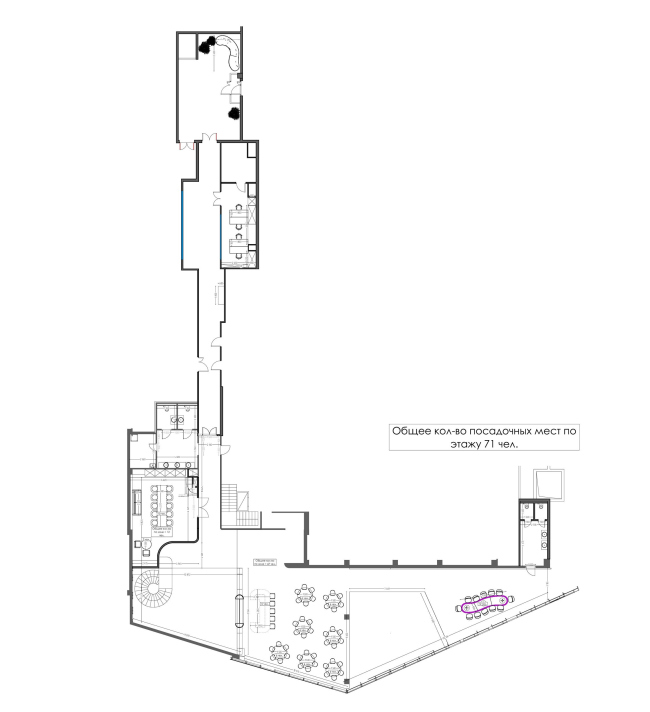
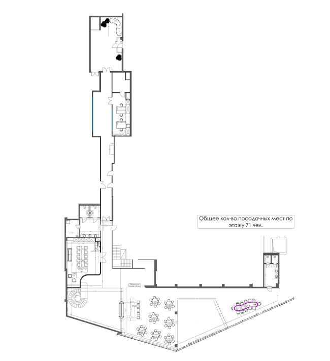
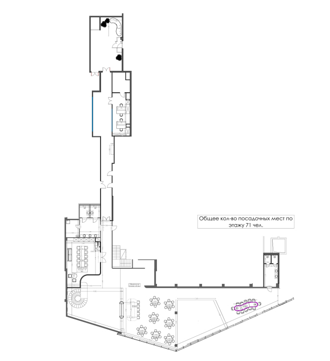
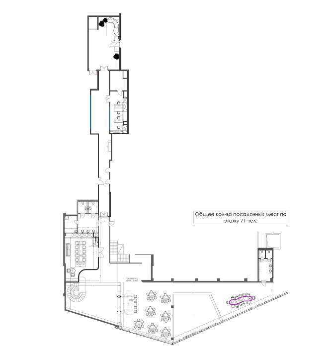
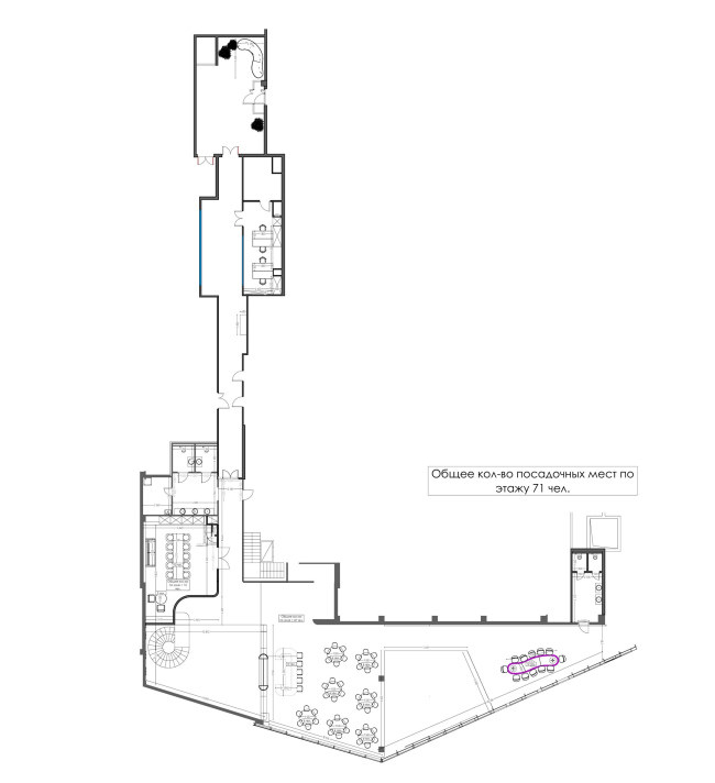
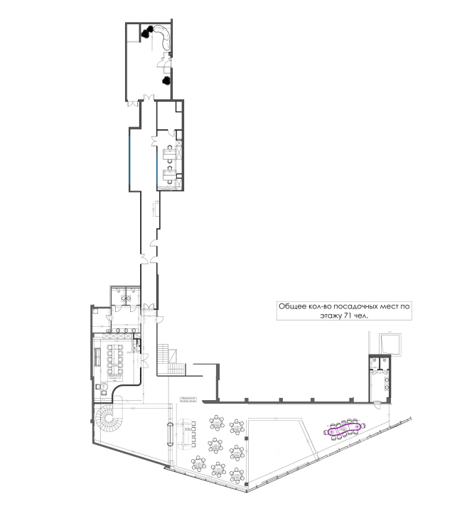
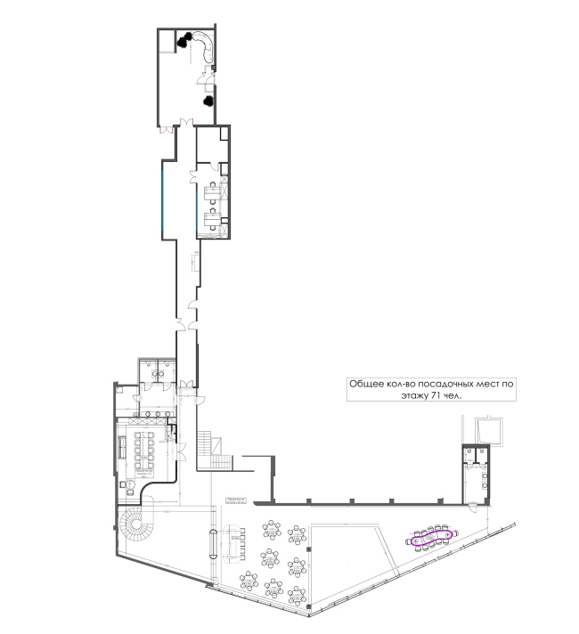
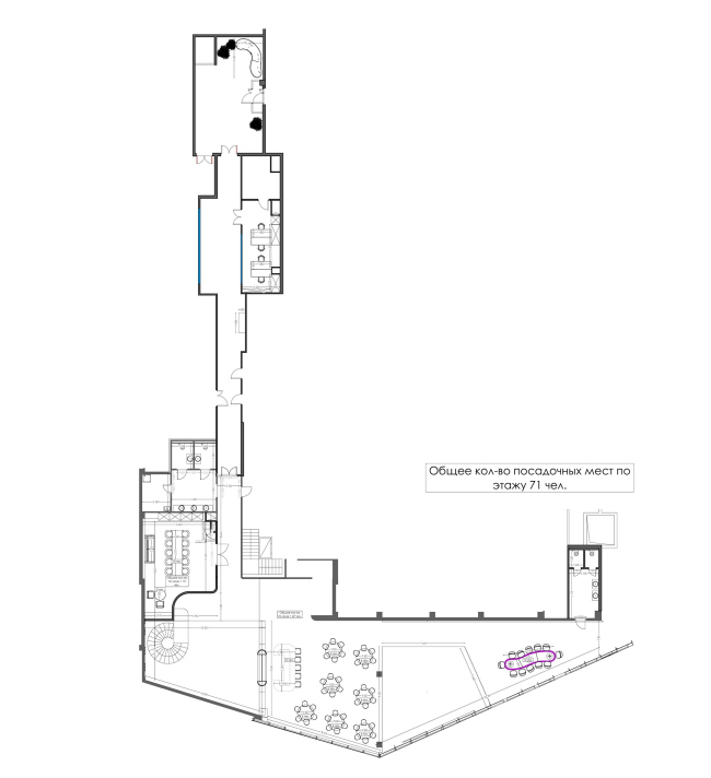
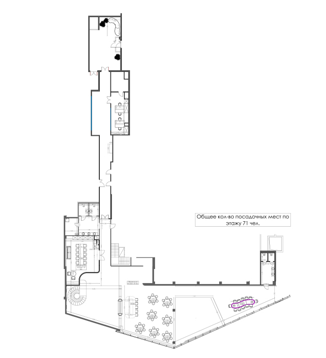
Ресторан «Сайар»Фотография © Андрей Ефимов / предоставлена Merilo DesignРесторан «Сайар»Фотография © Андрей Ефимов / предоставлена Merilo DesignРесторан «Сайар»Фотография © Андрей Ефимов / предоставлена Merilo DesignРесторан «Сайар»Фотография © Андрей Ефимов / предоставлена Merilo Designпредоставлено Merilo DesignРесторан «Сайар»предоставлено Merilo DesignРесторан «Сайар»Фотография © Андрей Ефимов / предоставлена Merilo DesignРесторан «Сайар»Фотография © Андрей Ефимов / предоставлена Merilo DesignРесторан «Сайар»© Merilo DesignРесторан «Сайар»Фотография © Андрей Ефимов / предоставлена Merilo DesignРесторан «Сайар»© Merilo DesignРесторан «Сайар»Фотография © Андрей Ефимов / предоставлена Merilo DesignРесторан «Сайар»Фотография © Андрей Ефимов / предоставлена Merilo DesignРесторан «Сайар»Фотография © Андрей Ефимов / предоставлена Merilo DesignРесторан «Сайар». План 4 этажа© Merilo Design
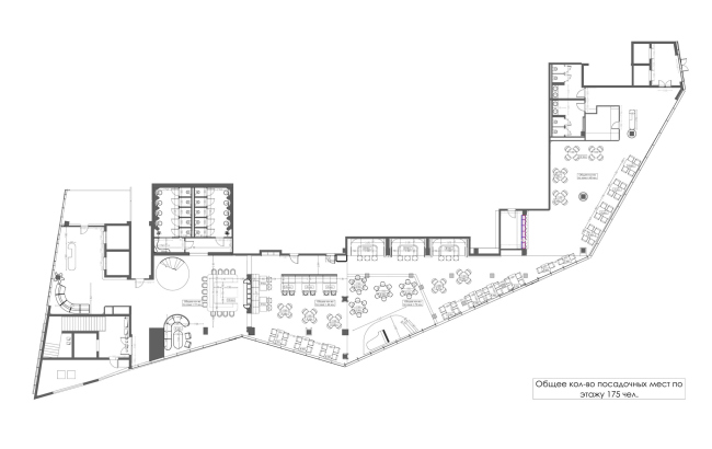
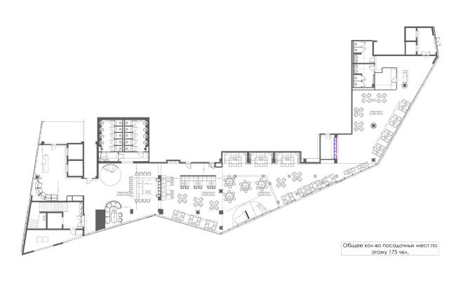
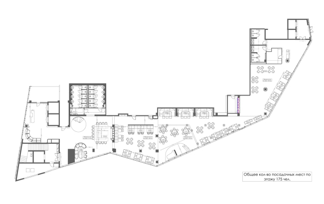
Ресторан «Сайар». План 5 этажа© Merilo Design
Ресторан «Сайар»© Merilo DesignРесторан «Сайар»© Merilo DesignРесторан «Сайар»© Merilo DesignРесторан «Сайар»© Merilo DesignРесторан «Сайар»© Merilo DesignРесторан «Сайар»© Merilo DesignРесторан «Сайар»© Merilo DesignРесторан «Сайар»© Merilo DesignРесторан «Сайар»© Merilo DesignРесторан «Сайар»© Merilo DesignРесторан «Сайар»© Merilo DesignРесторан «Сайар»© Merilo Design
|