|
Бюро Artel architects спроектировало для московского жилого комплекса «Сидней Сити» квартал, который сочетает застройку башенного и секционного типа. Любопытны фасады: клинкерный кирпич сочетается с полимербетоном и латунью, пилоны в виде хвоста ласточки формируют ритм и глубокие оконные откосы, аттик выделен белым цветом.
Описание предоставлено архитекторами Участок расположен на улице Шеногина и входит в комплексную застройку с коммерческим названием «Сидней Сити». С севера к нему примыкает территория ЖК «Фридом» и проходит Звенигородское шоссе, с юга – Москва-река и Шелепихинская набережная. Участок представляет собой две близкие к прямоугольнику площадки, разделенные внутриквартальным проездом. Расположение участка на первой береговой линии и действующие градостроительные ограничения определяют объемно-пространственные решения застройки.
  Расположение участка на первой береговой линии и факторы влияния окружающей застройки определили объемно-пространственные решения. Конфигурация корпусов и их взаимное расположение обеспечивает вид на реку из окон всех квартир и приватный внутренний двор-сад. Секционный и башенный тип корпусов обеспечивает большую гибкость и возможности планировочных решений для выполнения заданной квартирографии. Конфигурация корпусов и их взаимное расположение обеспечивает вид на реку из окон всех квартир и исключает эффект «окна в окна». Дома не перекрывают друг друга и расставлены на максимально возможном удалении.
 Фасады, нейтральные композиционно, акцентированы аттиком в верхней части зданий. Выразительность фасадам придают вертикальные пилоны в форме галочки, выполненные из красного кирпича и белых панелей декоративного бетона, и образующие спокойный, повторяющийся ритмичный ряд оконных простенков.
 На обоих участках применен одинаковый принцип застройки, зеркальный относительно проезда, их разделяющего. Благодаря этому застройка воспринимается целостно как единый комплекс, где расставленные по краям башни фиксируют углы, а расположенные между ними корпуса с одноэтажными пристроенными коммерческими помещениями визуально связывают отдельно стоящие корпуса в один объем, как бы помещая его на общее основание. Два верхних этажа имеют подсечку в плане и образуют аттик. Образовавшийся уступ занимают индивидуальные террасы для двухуровневых квартир, расположенных на верхних этажах. Все террасы сориентированы на воду.
 Фасады решены в современном стиле. В качестве материала облицовки используется клинкерный кирпич и панели из полимербетона с отделкой под белый камень. Также в отделке фасада применены металлические панели с фактурой латуни, которые добавляют фасадам декоративности. Из них выполнены вставки в виде «чешуи», закрывающие межэтажные пояса и декоративный венчающий фриз, опоясывающий здания. Форма вертикальных чередующихся пилонов в плане напоминает букву М или «ласточкин хвост». Пилоны формируют глубокие оконные откосы. Это придает фасадам скульптурную выразительность и пластику. Фасады получают респектабельное звучание. Для придания более стройного вида и укрупнения масштаба восприятия применено горизонтальное членение через два этажа изящными карнизами из «белого камня».
 Остекление в квартирах выполнено в пол. Все окна имеют высокие распашные створки – французские балконы. Для соблюдения требований по обеспечению безопасной эксплуатации перед окнами со стороны фасада устанавливается защитный стеклянный экран. При высоте этажа в 3,6 метров высота окон составляет 3,3 метра, а открывающихся створок – 2,7 метров.
 На двух подземных уровнях запроектирована автостоянка манежного типа с группой технических помещений и блоком индивидуальных кладовых для хранения имущества жителей. Также на первом подземном уровне предусмотрена мойка. Въезд-выезд осуществляется по изолированным однопутным рампам. Высота проезда в рампах, а также первого подземного этажа составляет 3 метра до низа коммуникаций, для обеспечения возможности заезда грузового транспорта и осуществления погрузки-разгрузки строительных материалов и крупногабаритных грузов. Для этого предусмотрены выделенные зоны разгрузки. Сообщение с наземной частью осуществляется с помощью лифтов. Все лифты спускаются в автостоянку. Для эвакуации предусмотрены лестничные клетки, ведущие наружу.
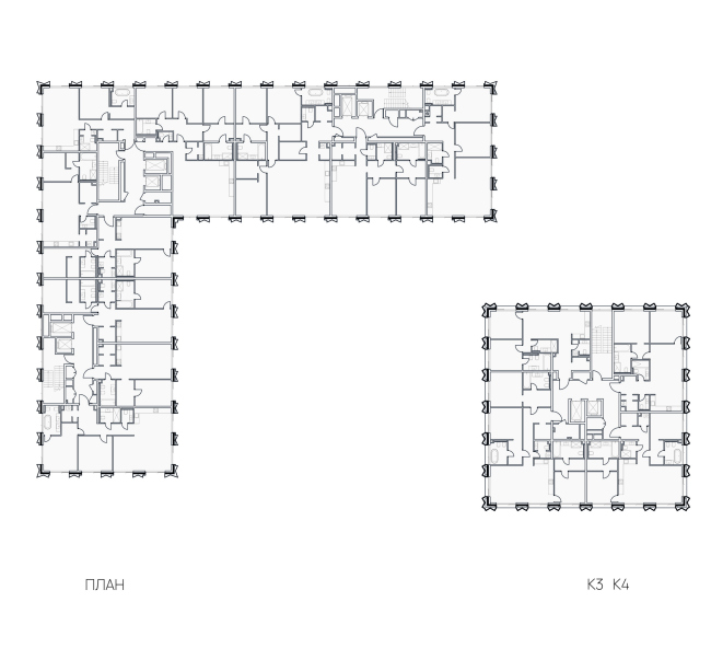
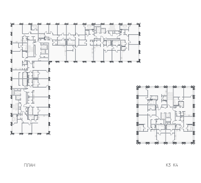
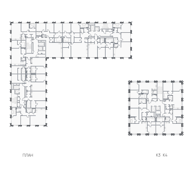
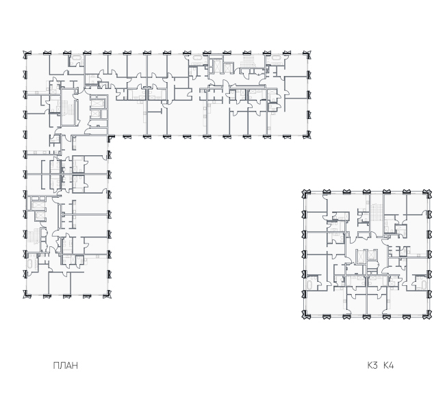
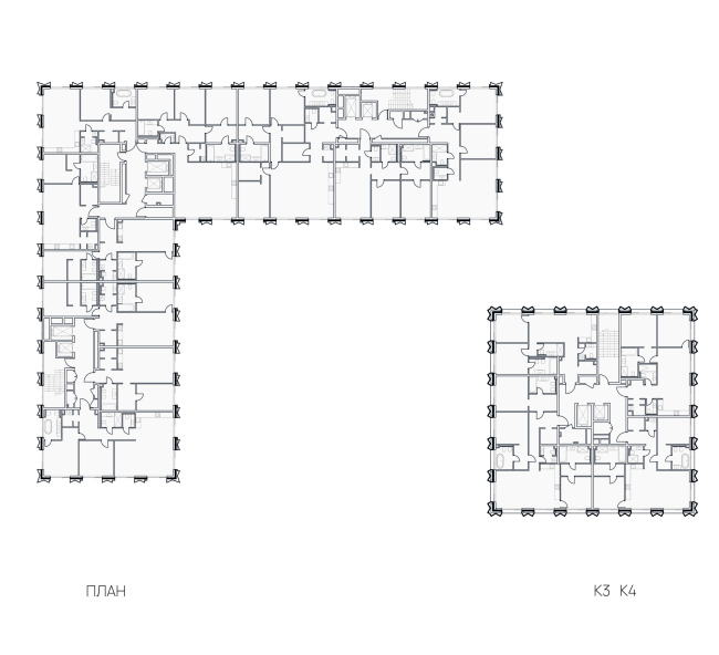
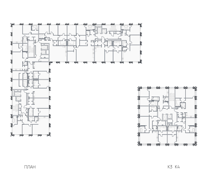
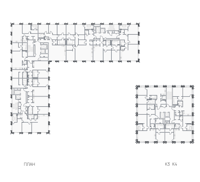
 На первых этажах располагаются входные группы в жилую часть, а также помещения коммерческого назначения. В состав входных групп входят: вестибюль с ресепшен и зоной ожидания, почтовая, колясочная и санузел. Также предусмотрены помещения с дополнительным функциональным назначением, такие как переговорная, детская зона, зал для тренировок и активного отдыха. Вестибюли запроектированы сквозными, просторными и светлыми. Для трех секций предусмотрена единая входная группа с проходом через общий ресепшен ко всем лестнично-лифтовым узлам разных секций.
 Начиная со второго этажа размещаются квартиры, состав и площади которых продиктованы квартирографией и коммерческим заданием. Квартиры большей площади имеют лучшие виды и двух- или трехстороннюю ориентацию. По форме пятна квартиры максимально простые и прямоугольные. Все коммуникационные шахты прижаты к внутренним стенам, а вертикальные несущие конструкции расставлены по периметру, так чтобы не ограничивать будущих владельцев в вариантах возможных планировок. На верхних этажах расположены двухуровневые квартиры с антресолями, имеющие собственные террасы. В квартирах предусмотрены двухсветные гостиные и зоны антресоли со спальными комнатами и санузлами.
 ЖК SIDNEY PRIME© Artel architects
ЖК SIDNEY PRIMEФотография © Даниил Анненков / предоставлена компанией КИРИЛЛ
ЖК SIDNEY PRIME© Artel architectsЖК SIDNEY PRIME© Artel architectsЖК SIDNEY PRIMEФотография © Даниил Анненков / предоставлена компанией КИРИЛЛ
ЖК SIDNEY PRIMEФотография © Даниил Анненков / предоставлена компанией КИРИЛЛ
ЖК SIDNEY PRIMEФотография © Даниил Анненков / предоставлена компанией КИРИЛЛЖК SIDNEY PRIMEФотография © Даниил Анненков / предоставлена компанией КИРИЛЛЖК SIDNEY PRIMEФотография © Даниил Анненков / предоставлена компанией КИРИЛЛЖК SIDNEY PRIMEФотография © Даниил Анненков / предоставлена компанией КИРИЛЛЖК SIDNEY PRIMEФотография © Даниил Анненков / предоставлена компанией КИРИЛЛЖК SIDNEY PRIMEФотография © Даниил Анненков / предоставлена компанией КИРИЛЛЖК SIDNEY PRIMEФотография © Даниил Анненков / предоставлена компанией КИРИЛЛЖК SIDNEY PRIMEФотография © Даниил Анненков / предоставлена компанией КИРИЛЛЖК SIDNEY PRIMEФотография © Даниил Анненков / предоставлена компанией КИРИЛЛЖК SIDNEY PRIMEФотография © Даниил Анненков / предоставлена компанией КИРИЛЛ
ЖК SIDNEY PRIMEФотография © Даниил Анненков / предоставлена компанией КИРИЛЛ
ЖК SIDNEY PRIME© Artel architects
|