Размещено на портале Архи.ру (www.archi.ru)

17.07.2025

Пей. Твори. Исследуй

Объект:
Кафе PIMS в Dubai Hills
Адрес:
ОАЭ, Дубай. Al Khail Rd
PIMS кафе
Адрес:
ОАЭ, Дубай. 1410, Roxy Cinema Building
Мастерская:
KIDZ
Авторский коллектив:
Архитекторы: Егор Богомолов, Виктор Ауров, Екатерина Тарасова, Иван Горбунов, Юлия Цуглёнок, Соня Плюснина, Руслан Майков, Татьяна Курочкина

Российские архитекторы уверенно расширяют географию своих проектов. Например, бюро KIDZ уже реализовало несколько проектов в Дубае и, судя по всему, не собирается останавливаться. Представляем еще одно их кафе, спроектированное для сети PIMS. В компактном пространстве авторы смогли собрать все свои фирменные приемы: сочетание контрастных материалов, нетривиальную колористику и авторские предметы мебели, создав запоминающийся микс архаики и hi-tech.

Описание предоставлено архитекторами

Этот проект представляет собой эволюцию флагманской концепции PIMS из Dubai Mall, адаптированной для меньшего и более уютного пространства в Dubai Hills. Основная дизайнерская цель заключалась в том, чтобы подчеркнуть бренд, повысить его узнаваемость и создать комфортное, гостеприимное место, где сотрудники близлежащих офисов могут насладиться освежающим напитком в окружении уютного интерьера.
Кафе PIMS в Dubai Hills
Кафе PIMS в Dubai Hills
Фотография @ Рубен Мовсисян / предоставлена KIDZ

Ключевым элементом идентичности PIMS является плавность и гармоничность форм интерьера, которая была тщательно сохранена в этом новом пространстве. Острые углы заменены на мягкие, закругленные переходы, размывающие границы между стенами, потолком и фасадами. Такой подход создает ощущение мягкости и гармонии, воплощая фирменную атмосферу бренда PIMS.
 
Кафе PIMS в Dubai Hills
Кафе PIMS в Dubai Hills
Фотография @ Рубен Мовсисян / предоставлена KIDZ

Вдохновением для дизайна послужила пустыня, и проект включает в себя натуральные тона и текстуры, отражающие её уникальный характер. Стены с горизонтальными бороздами, покрытые текстурной штукатуркой, напоминают песчаные дюны, сформированные ветром, а теплая нейтральная палитра передает жизнь и культурное наследие пустыни – не как безжизненного пространства, а как тёплого и знакомого источника идентичности. Тщательно подобранные материалы усиливают эту связь, добавляя пространству органичности и тактильности.
Кафе PIMS в Dubai Hills Фотография @ Рубен Мовсисян / предоставлена KIDZ
Кафе PIMS в Dubai Hills
Фотография @ Рубен Мовсисян / предоставлена KIDZ
Кафе PIMS в Dubai Hills Фотография @ Рубен Мовсисян / предоставлена KIDZ
Кафе PIMS в Dubai Hills
Фотография @ Рубен Мовсисян / предоставлена KIDZ
Кафе PIMS в Dubai Hills Фотография @ Рубен Мовсисян / предоставлена KIDZ
Кафе PIMS в Dubai Hills
Фотография @ Рубен Мовсисян / предоставлена KIDZ
Кафе PIMS в Dubai Hills Фотография @ Рубен Мовсисян / предоставлена KIDZ
Кафе PIMS в Dubai Hills
Фотография @ Рубен Мовсисян / предоставлена KIDZ
Кафе PIMS в Dubai Hills Фотография @ Рубен Мовсисян / предоставлена KIDZ
Кафе PIMS в Dubai Hills
Фотография @ Рубен Мовсисян / предоставлена KIDZ
Кафе PIMS в Dubai Hills Фотография @ Рубен Мовсисян / предоставлена KIDZ
Кафе PIMS в Dubai Hills
Фотография @ Рубен Мовсисян / предоставлена KIDZ

Локация в Dubai Hills использует естественный свет, который проникает через большие окна, создавая яркую и воздушную атмосферу. Этот поток солнечного света подчеркивает игру текстур, усиливая восприятие пространства и углубляя связь с окружающей средой. В результате получается органичная, но утончённая атмосфера, которая полностью соответствует философии бренда PIMS.
 
Кафе PIMS в Dubai Hills
Кафе PIMS в Dubai Hills
Фотография @ Рубен Мовсисян / предоставлена KIDZ

Несмотря на меньшую площадь, локация PIMS в Dubai Hills сохраняет фирменные элементы, такие как песчаные текстуры и утончённый контраст матовых металлических панелей. Итогом стал дизайн, который остаётся верен ДНК бренда, предлагая свежий, адаптированный опыт, идеально подходящий для нового окружения.
Кафе PIMS в Dubai Hills Фотография @ Рубен Мовсисян / предоставлена KIDZ
Кафе PIMS в Dubai Hills
Фотография @ Рубен Мовсисян / предоставлена KIDZ
Кафе PIMS в Dubai Hills Фотография @ Рубен Мовсисян / предоставлена KIDZ
Кафе PIMS в Dubai Hills
Фотография @ Рубен Мовсисян / предоставлена KIDZ
Кафе PIMS в Dubai Hills Фотография @ Рубен Мовсисян / предоставлена KIDZ
Кафе PIMS в Dubai Hills
Фотография @ Рубен Мовсисян / предоставлена KIDZ
Кафе PIMS в Dubai Hills Фотография @ Рубен Мовсисян / предоставлена KIDZ
Кафе PIMS в Dubai Hills
Фотография @ Рубен Мовсисян / предоставлена KIDZ

 
Егор Богомолов, KIDZ
Проект в Dubai Hills стал для нас возможностью продолжить работу с узнаваемым визуальным языком PIMS, но в новых масштабах и с другими акцентами. Если флагман в Dubai Mall был про вау-эффект, яркую презентацию бренда и высокий трафик, то новая точка ориентирована скорее на локальную аудиторию – жителей района и сотрудников соседних офисов. Здесь важнее была атмосфера уюта и повседневного комфорта, но при этом без потери фирменной пластики и характера.

Работа в ОАЭ требует особого подхода – здесь многое устроено иначе, и это влияет на каждое проектное решение. Первое, с чем сталкиваешься, – это специфика доступных материалов и логика их применения. Материалы, которые в других странах считаются базовыми и легко доступными, здесь могут оказаться редкими или экономически нецелесообразными. Например, в одном из наших проектов в качестве конструктивного слоя в мебели мы заложили фанеру, поскольку она проверена в работе, прочная и технологичная. Однако в процессе реализации выяснилось, что фанера в Дубае стоит заметно дороже привычного МДФ – вероятно, из-за особенностей производства: склеивать древесную пыль здесь дешевле, чем работать с натуральным листом дерева. Даже такие на первый взгляд простые вещи, как однотонная плитка малого формата, не так просто найти: локальный рынок нацелен на декоративные, выразительные материалы, и чтобы получить «простой» результат, приходится приложить дополнительные усилия.

Есть и культурные различия, которые напрямую влияют на проектирование. Так, при разработке ресторанов с полноценной посадкой (50–80 гостей и более), заказчики иногда не предусматривают в планировке собственные туалетные комнаты. Оказалось, что во многих зданиях в ОАЭ туалеты размещаются централизованно и доступны всем посетителям на территории, включая гостей соседних кафе или просто проходящих мимо. С точки зрения европейского проектирования это может казаться спорным, но здесь это воспринимается как норма – и это необходимо учитывать.

Климат также играет важную роль. В зимний период погода комфортная, и многие заведения стремятся максимально открыть пространство наружу, тогда как летом все перемещаются внутрь под кондиционеры. Это влияет на подбор инженерных решений, систему открывания окон, тип входной группы. Например, если фасад открывается полностью, важно предусмотреть наличие обычной распашной двери – ею будут пользоваться летом, чтобы минимизировать потери прохладного воздуха. Отдельное внимание требует уличная мебель: акриловые элементы могут деформироваться под солнцем, а металл – сильно нагреваться и обжигать кожу. Всё это влияет на выбор материалов и конструктивов на самых ранних стадиях проектирования.

Большую роль в успешной реализации проекта играет подрядчик. В Дубае это не просто строитель, а полноценный партнёр, берущий на себя множество задач: от адаптации чертежей под локальные нормы до подачи документов на получение разрешения на строительство. После передачи проектной документации клиент связывает нас с подрядчиком, который, в свою очередь, изучает материалы, задаёт уточняющие вопросы, разрабатывает инженерные планы (не входящие в нашу зону ответственности) и подготавливает всю документацию для согласований. Он же занимается подбором отделочных материалов, тканей, шпона, формирует общую доску с образцами и выкрасами. Архитектор на этом этапе выезжает на объект для согласования, проверки исполнения и финальной настройки решений. Важно быть готовым к тому, что некоторые элементы потребуют адаптации уже в процессе – и именно благодаря плотной работе с подрядчиком и вниманию к деталям удаётся сохранить целостность замысла, несмотря на все внешние ограничения.

Аксонометрия. Кафе PIMS в Dubai Hills
Аксонометрия. Кафе PIMS в Dubai Hills
предоставлено KIDZ

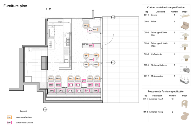
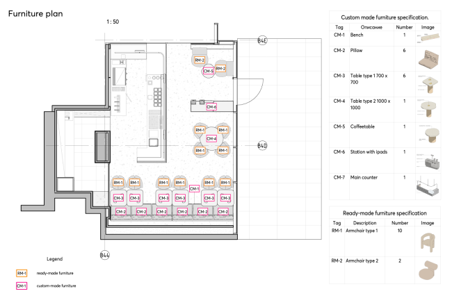
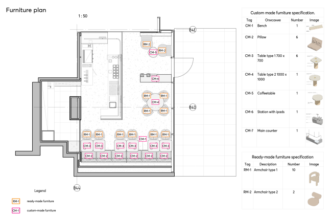
План кафе PIMS в Dubai Hills
План кафе PIMS в Dubai Hills
предоставлено KIDZ