|
Современные общественные пространства все чаще сочетают несколько функций, и на первый план выходит их планировочная гибкость и продуманность зонирования. В новом мультипространстве LOOK UP & UPSKILL, разработанном Pergaev Bureau, объединены кафе, ресторан, библиотека, университет и даже магазин шоколада, решенные в едином стиле, создающем спокойную и одновременно вдохновляющую атмосферу.
Проект LOOK UP Cafe&Shop площадью 560 м² разместился в историческом здании на Садовнической улице на острове Балчуг, буквально в десяти минутах ходьбы от Московского Кремля. Бывший доходный дом купца Привалова, построенный в конце XIX – начале XX века по проекту архитектора Эрнста-Рихарда Нирнзее, несколько лет назад был реконструирован под современный бизнес-центр «Новый Балчуг». Крупнейшие российские корпорации занимают офисы в этом здании, и именно их сотрудники являются целевой аудиторией мультипространства LOOK UP & UPSKILL, расположенного на первом этаже комплекса.
Новое мультипространство в центре Москвы: LOOK UP & UPSKILLФотография © Никита Крючков / предоставлена Pergaev Bureau
Согласно концепции, каждый из посетителей сможет найти здесь для себя что-то свое: кому-то нужен будет вкусный кофе, кому-то – бизнес-ланч, кто-то захочет провести здесь встречу или получить бизнес-консультацию, а кто-то после работы решит посетить семинар, лекцию или мастер-класс. В этой многофункциональности и ориентированности на нужды и интересы конкретного бизнес-сообщества можно увидеть параллель с традиционными английскими клубами, где джентльмены могли проводить время с пользой и удовольствием. Только современные «клубы» открыты для всех, и вместо резных дубовых панелей на стенах и тяжелых портьер щеголяют элегантным дизайном в скандинавском стиле.
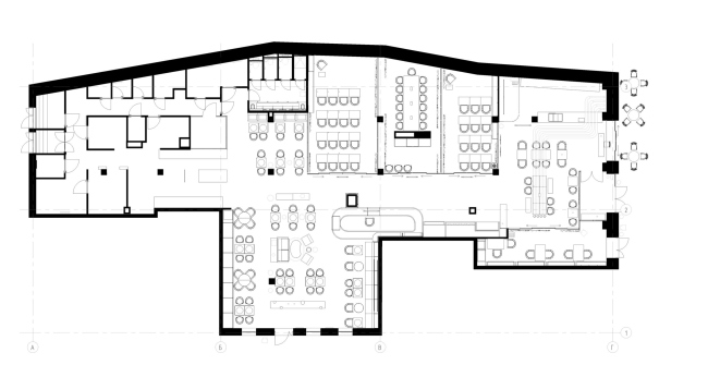
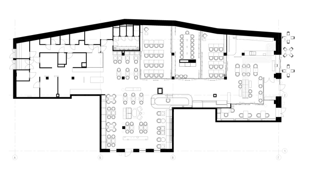
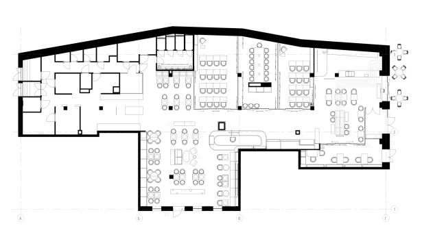
Новое мультипространство в центре Москвы: LOOK UP & UPSKILLФотография © Никита Крючков / предоставлена Pergaev BureauНовое мультипространство в центре Москвы: LOOK UP & UPSKILLФотография © Никита Крючков / предоставлена Pergaev BureauНовое мультипространство в центре Москвы: LOOK UP & UPSKILLФотография © Никита Крючков / предоставлена Pergaev BureauНовое мультипространство в центре Москвы: LOOK UP & UPSKILLФотография © Никита Крючков / предоставлена Pergaev Bureau В одном пространстве разместились кафетерий на 16 мест с открытым баром, библиотека Амины Фатуллаевой и университет UPSKILL, ателье шоколада с десертной витриной и ресторан LOOK UP на 46 посадочных мест. В ресторан выходит открытая кухня и рабочая зона для шоколатье, где можно увидеть, как он создаёт авторские кондитерские изделия. Разные функциональные зоны сосуществуют и взаимодополняют друг друга.
Новое мультипространство в центре Москвы: LOOK UP & UPSKILL© Pergaev Bureau
Планировочное решение пространства достаточно нестандартно. Прежде всего, обращает на себя внимание минимальное количество окон. Татьяна Бессонова, главный архитектор проектов Pergaev Bureau, так описывает стоявшую перед архитекторами задачу
 Татьяна Бессонова, главный архитектор проектов Pergaev Bureau Помещение площадью чуть больше пятисот квадратов имело всего две стены с окнами: стену, где расположен главный вход в пространство и вход в консалтинговый офис, и еще одну небольшую стену в зоне ресторана с выходом во двор. Нам пришлось компенсировать нехватку естественного света при помощи дизайна. Мы минимизировали количество глухих перегородок, заменив их прозрачными витражными конструкциями, так чтобы свет мог проникать на всю глубину помещения. Кроме того, мы использовали преимущественно светлые, тепло-белые оттенки для стен, перегородок и оборудования, которые превращаются в светящиеся золотисто-медовые тона благодаря включению в пространство акцентов насыщенного терракотового и бежеватого цветов. В результате в пространстве создается ощущение наполненности солнечным светом. Например, тамбур отделен от кафетерия стеклянной перегородкой медового с оранжевыми нотками оттенка, которая при определенном освещении создает эффект закатных лучей. В консалтинговом офисе мы сделали авторский стеллаж оранжевого цвета, а в магазине – терракотовую стену за полками с товарами.
 Новое мультипространство в центре Москвы: LOOK UP & UPSKILLФотография © Никита Крючков / предоставлена Pergaev BureauНовое мультипространство в центре Москвы: LOOK UP & UPSKILLФотография © Никита Крючков / предоставлена Pergaev BureauНовое мультипространство в центре Москвы: LOOK UP & UPSKILLФотография © Никита Крючков / предоставлена Pergaev BureauНовое мультипространство в центре Москвы: LOOK UP & UPSKILLФотография © Никита Крючков / предоставлена Pergaev BureauНовое мультипространство в центре Москвы: LOOK UP & UPSKILLФотография © Никита Крючков / предоставлена Pergaev Bureau Дизайн, в котором сочетаются различные материалы – дерево, травертин, штукатурка, шлифованный бетон – служит объединяющим фактором. Дереву красивого золотистого оттенка с выраженной текстурой отдана одна из ключевых ролей: из него сделана мебель, им отделаны стены ресторана и пол в трёх университетских аудиториях на 16 человек каждая. Важный момент – аудитории легко можно объединить в одну благодаря раздвижным тканевым перегородкам.
Новое мультипространство в центре Москвы: LOOK UP & UPSKILLФотография © Никита Крючков / предоставлена Pergaev BureauНовое мультипространство в центре Москвы: LOOK UP & UPSKILLФотография © Никита Крючков / предоставлена Pergaev BureauНовое мультипространство в центре Москвы: LOOK UP & UPSKILLФотография © Никита Крючков / предоставлена Pergaev BureauНовое мультипространство в центре Москвы: LOOK UP & UPSKILLФотография © Никита Крючков / предоставлена Pergaev Bureau В качестве дополнительного цвета в интерьере выступает шоколадный (как же обойтись без него в магазине шоколада?). Он используется в «шахматных колоннах», напоминающих также структуру плитки шоколада. Сам магазин, расположенный между кафетерием и рестораном, состоит из эффектной стойки, сделанной из гнутой фанеры, покрашенной несколькими слоями глянцевой эмали, и открытых стеллажей, на которых посетители могут самостоятельно изучать ассортимент: литературу для развития, мерч с вдохновляющими цитатами, шоколад ручной работы и другие товары.
Интерьер передаёт основную идею проекта – осознанное, позитивное и открытое отношение к себе, обществу и миру. Спокойное оформление, без резких акцентов и агрессивных по форме и цвету элементов, позволяет гостям сосредоточиться на общении, обмене опытом и знаниями. Неудивительно, что пространство называется LOOK UP. Эта надпись встречает гостей при входе и приглашает каждого посмотреть на мир с другого ракурса, отказавшись от рутины.
Новое мультипространство в центре Москвы: LOOK UP & UPSKILLФотография © Никита Крючков / предоставлена Pergaev BureauНовое мультипространство в центре Москвы: LOOK UP & UPSKILLФотография © Никита Крючков / предоставлена Pergaev BureauНовое мультипространство в центре Москвы: LOOK UP & UPSKILLФотография © Никита Крючков / предоставлена Pergaev BureauНовое мультипространство в центре Москвы: LOOK UP & UPSKILLФотография © Никита Крючков / предоставлена Pergaev Bureau
Новое мультипространство в центре Москвы: LOOK UP & UPSKILL© Pergaev Bureau
Новое мультипространство в центре Москвы: LOOK UP & UPSKILL© Pergaev Bureau
Новое мультипространство в центре Москвы: LOOK UP & UPSKILL© Pergaev Bureau
|