Размещено на портале Архи.ру (www.archi.ru)

01.07.2025

Респектабельная неформальность

Объект:
Офис компании Albione и MezzaTorre
Адрес:
Россия, Москва. ул. Рочдельская, дом 15, строение 23
Мастерская:
MNdesign
Авторский коллектив:

Михаил Новинский, Полина Литомина, Марк Гришин, Елизавета Подуст

Как скомбинировать шоурум и рабочее пространство? Как объединить гедонизм и нонконформизмом? Как превратить меньше 200 м2 в целый мир фешн-индустрии? Архитекторы студии MNdesign справились с этими непростыми задачами, создав интерьер офиса компании Albione и MezzaTorre.

От редакции

Множество старых промышленных объектов получили «счастливый билет» и пропуск в новую жизнь благодаря креативным индустриям. Это классический сценарий преображения каких-нибудь обветшавших кирпичных корпусов: сначала в пристанище художников и музыкантов, затем, после небольших инвестиций, – в пространства для фешн-дизайнеров, архитекторов и IT-шников, и, наконец, в финале, после серьезной реконструкции, – превращаются в жилье и офисы для элиты. Трехгорная мануфактура застряла во второй фазе. За последние 15–20 лет было разработано немало планов по её спасению и реновации, но дело пока притормозилось на этапе «модное место» с множеством магазинов и офисов для людей, «желающих странного», занимающихся созданием красоты, придумывающих и создающих нечто уникальное и любящих вкусно поесть – если судить по количеству баров и кафе на квадратный километр. Вот в таком более чем правильном месте производители премиальной одежды Albione и MezzaTorre решили обосноваться и заказали интерьер студии MNdesign.

Расположение на территории бывшей мануфактуры и характерная архитектура краснокирпичного здания упрощали выбор главной темы интерьера. Классические элементы стиля лофт – крашеные стены, высокие потолки с оставленными на виду коммуникациями и черные металлические акценты – гарантировали атмосферу в духе нью-йоркского Сохо или лондонского Шордича. Но чистый лофт не в полной мере отражал характер брендов Albione и MezzaTorre.

Нужен был коктейль из стилей, способный передать дух нонконформизма и даже, отчасти, бунтарства – но без эпатажа и китча. Нужной степени раскрепощения удалось достичь, смешав две части этники – с яркими картинами и экзотическими коврами – с одной частью классического дизайна английских клубов с кожаными диванами и коваными ограждениями лестницы на антресольный этаж. В результате получился fusion-интерьер, в котором одинаково классно работать, встречаться с клиентами и партнерами и просто тусоваться в режиме 24/7. А что еще нужно для правильного рабочего места?
ЕП
Офис компании Albione и MezzaTorre
Офис компании Albione и MezzaTorre
Фотография © Василий Буланов / предоставлена MNdesign
Описание предоставлено архитекторами

В интерьере офиса производителя премиальной одежды Albione и MezzaTorre мы хотели передать свободолюбивый и несколько хулиганский дух мира моды. Офисное пространство представляет собой open space с антресолью, на которой размещена зона отдыха. Отдельными помещениями выполнены только кабинет руководителя и переговорная, а внутреннее зонирование происходит за счёт специально разработанной нами модульной мебельной системы.
Офис компании Albione и MezzaTorre Фотография © Василий Буланов / предоставлена MNdesign
Офис компании Albione и MezzaTorre
Фотография © Василий Буланов / предоставлена MNdesign
Офис компании Albione и MezzaTorre Фотография © Василий Буланов / предоставлена MNdesign
Офис компании Albione и MezzaTorre
Фотография © Василий Буланов / предоставлена MNdesign
Офис компании Albione и MezzaTorre Фотография © Василий Буланов / предоставлена MNdesign
Офис компании Albione и MezzaTorre
Фотография © Василий Буланов / предоставлена MNdesign
Офис компании Albione и MezzaTorre Фотография © Василий Буланов / предоставлена MNdesign
Офис компании Albione и MezzaTorre
Фотография © Василий Буланов / предоставлена MNdesign
Офис компании Albione и MezzaTorre Фотография © Василий Буланов / предоставлена MNdesign
Офис компании Albione и MezzaTorre
Фотография © Василий Буланов / предоставлена MNdesign
Офис компании Albione и MezzaTorre Фотография © Василий Буланов / предоставлена MNdesign
Офис компании Albione и MezzaTorre
Фотография © Василий Буланов / предоставлена MNdesign

Яркий декор «на грани фола» завершает «панковскую» атмосферу офиса. В этом офисе мало рабочих мест, много света и живых растений. Сдержанная цветовая гамма и красный кирпич создают атмосферу, а яркие картины, ковры и подушки разбавляют интерьер.
Офис компании Albione и MezzaTorre
Офис компании Albione и MezzaTorre
Фотография © Василий Буланов / предоставлена MNdesign

Albione – бренд мужских костюмов, появившийся на рынке около 20 лет назад. Сейчас в ассортименте есть и джинсы с футболками, но на первой странице сайта в основном представлены образы в стиле smart casual.
Офис компании Albione и MezzaTorre Фотография © Василий Буланов / предоставлена MNdesign
Офис компании Albione и MezzaTorre
Фотография © Василий Буланов / предоставлена MNdesign
Офис компании Albione и MezzaTorre Фотография © Василий Буланов / предоставлена MNdesign
Офис компании Albione и MezzaTorre
Фотография © Василий Буланов / предоставлена MNdesign
Офис компании Albione и MezzaTorre Фотография © Василий Буланов / предоставлена MNdesign
Офис компании Albione и MezzaTorre
Фотография © Василий Буланов / предоставлена MNdesign
Офис компании Albione и MezzaTorre Фотография © Василий Буланов / предоставлена MNdesign
Офис компании Albione и MezzaTorre
Фотография © Василий Буланов / предоставлена MNdesign

MezzaTorre – бренд женской одежды в стилях smart и smart casual, существующий на рынке уже 10 лет. В 2023 году оба бренда сотрудничали со студентами Национального исследовательского университета «Высшая школа экономики», которые придумывали принты для футболок.
Офис компании Albione и MezzaTorre Фотография © Василий Буланов / предоставлена MNdesign
Офис компании Albione и MezzaTorre
Фотография © Василий Буланов / предоставлена MNdesign
Офис компании Albione и MezzaTorre Фотография © Василий Буланов / предоставлена MNdesign
Офис компании Albione и MezzaTorre
Фотография © Василий Буланов / предоставлена MNdesign
Офис компании Albione и MezzaTorre Фотография © Василий Буланов / предоставлена MNdesign
Офис компании Albione и MezzaTorre
Фотография © Василий Буланов / предоставлена MNdesign
Офис компании Albione и MezzaTorre Фотография © Василий Буланов / предоставлена MNdesign
Офис компании Albione и MezzaTorre
Фотография © Василий Буланов / предоставлена MNdesign
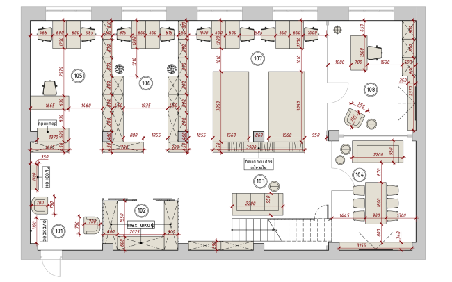
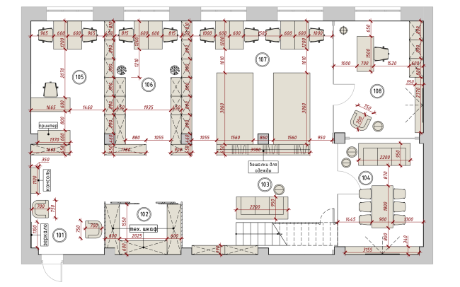
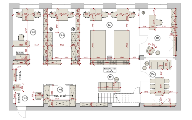
План офиса компании Albione и MezzaTorre
План офиса компании Albione и MezzaTorre
© MNdesign
Офис компании Albione и MezzaTorre Фотография © Василий Буланов / предоставлена MNdesign
Офис компании Albione и MezzaTorre
Фотография © Василий Буланов / предоставлена MNdesign
Офис компании Albione и MezzaTorre Фотография © Василий Буланов / предоставлена MNdesign
Офис компании Albione и MezzaTorre
Фотография © Василий Буланов / предоставлена MNdesign
Офис компании Albione и MezzaTorre Фотография © Василий Буланов / предоставлена MNdesign
Офис компании Albione и MezzaTorre
Фотография © Василий Буланов / предоставлена MNdesign
Офис компании Albione и MezzaTorre Фотография © Василий Буланов / предоставлена MNdesign
Офис компании Albione и MezzaTorre
Фотография © Василий Буланов / предоставлена MNdesign
Офис компании Albione и MezzaTorre Фотография © Василий Буланов / предоставлена MNdesign
Офис компании Albione и MezzaTorre
Фотография © Василий Буланов / предоставлена MNdesign
Офис компании Albione и MezzaTorre Фотография © Василий Буланов / предоставлена MNdesign
Офис компании Albione и MezzaTorre
Фотография © Василий Буланов / предоставлена MNdesign
Офис компании Albione и MezzaTorre Фотография © Василий Буланов / предоставлена MNdesign
Офис компании Albione и MezzaTorre
Фотография © Василий Буланов / предоставлена MNdesign