Размещено на портале Архи.ру (www.archi.ru)

02.07.2025

Ворота в геопарк

Объект:
Архитектурно-планировочная концепция этнографического комплекса «Караван-Сарай»
Адрес:
Россия, Республика Башкортостан, Новые Каратавлы.
Мастерская:
КБ-11
Авторский коллектив:
Лейсян Азнабаева,
ведущие архитекторы: Екатерина Кондрова, Элина Сахаутдинова 
Визуализатор: Юлия Федяева 

Бюро «КБ-11» разработало концепцию этнографического комплекса для геопарка «Янган-Тау», расположенного в Республике Башкортостан. Природные объекты и ландшафты этой территории имеют международное геологическое значение и включены в список ЮНЕСКО, не менее значительны расположенные здесь памятники истории и культуры. Комплекс должен сделать место более привлекательным для туристов, местного населения и ученых.

Описание предоставлено архитекторами

Заказчиком архитектурно-планировочной концепции этнографического комплекса «Караван-Сарай» выступил Геопарк Янгантау в Республике Башкортостан. На его территории расположены объекты международного значения: геологические разрезы Мечетлино, Большая Лука, Лаклы и гора Янгантау. Для заказчика важно сформировать на своей территории объекты, привлекательные для научной общественности, туристов и местного населения. 

Объектом-аттрактором в мастер-плане геопарка становится этнографический комплекс «Караван-Сарай», включающий визит-центр, этнопарк и жилую зону.
 
Архитектор Элина Сахаутдинова
Концепция планировочного решения этнографического комплекса продолжает планировочную структуру деревни Новые Каратавлы. Таким образом, комплекс становится органическим продолжением уже сложившегося поселения. Функциональные зоны четко выделяются, но при этом взаимно увязаны.

Архитектурно-планировочная концепция этнографического комплекса «Караван-Сарай». Генплан
Архитектурно-планировочная концепция этнографического комплекса «Караван-Сарай». Генплан
© КБ-11
Архитектурно-планировочная концепция этнографического комплекса «Караван-Сарай». Выявление идентичности. Исторические образы
Архитектурно-планировочная концепция этнографического комплекса «Караван-Сарай». Выявление идентичности. Исторические образы
© КБ-11
Архитектурно-планировочная концепция этнографического комплекса «Караван-Сарай». Концепция формирования этнопарка. Визуальные образы
Архитектурно-планировочная концепция этнографического комплекса «Караван-Сарай». Концепция формирования этнопарка. Визуальные образы
© КБ-11
Визит-центр 
В концепции визит-центра рассмотрены три основных слоя, которые читаются в объемно-пространственной композиции и планировочной организации центра:
  • природные богатства геопарка;
  • маршруты и направления геопарка;
  • этнические особенности народа, исторически населявшего Салаватский район.
Архитектурно-планировочная концепция этнографического комплекса «Караван-Сарай». Визит-центр
Архитектурно-планировочная концепция этнографического комплекса «Караван-Сарай». Визит-центр
© КБ-11
Архитектурно-планировочная концепция этнографического комплекса «Караван-Сарай». Визит-центр. Визуализация внутреннего двора
Архитектурно-планировочная концепция этнографического комплекса «Караван-Сарай». Визит-центр. Визуализация внутреннего двора
© КБ-11
Архитектурно-планировочная концепция этнографического комплекса «Караван-Сарай». Визит-центр
Архитектурно-планировочная концепция этнографического комплекса «Караван-Сарай». Визит-центр
© КБ-11

Образ природы транслируется через метафорическое изображение горных вершин в форме кровли (хребет Каратау становится визуальной основой концепции) и через применение природных, экологичных материалов и текстур.
Архитектурно-планировочная концепция этнографического комплекса «Караван-Сарай». Визит-центр. Аксонометрия
Архитектурно-планировочная концепция этнографического комплекса «Караван-Сарай». Визит-центр. Аксонометрия
© КБ-11
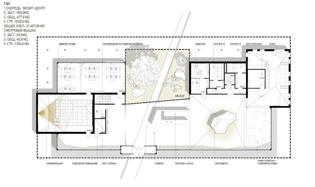
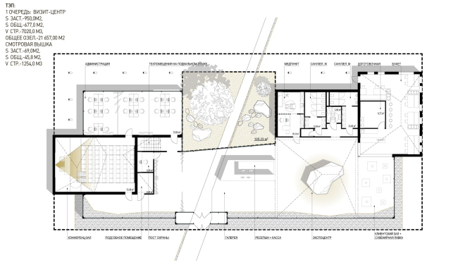
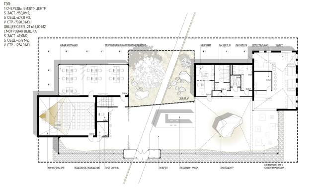
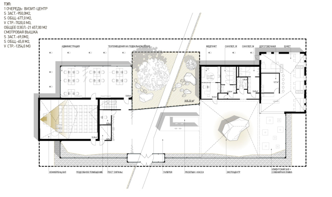
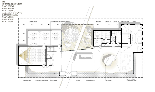
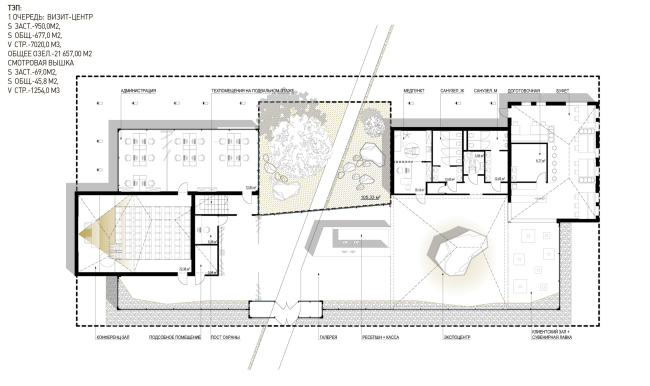
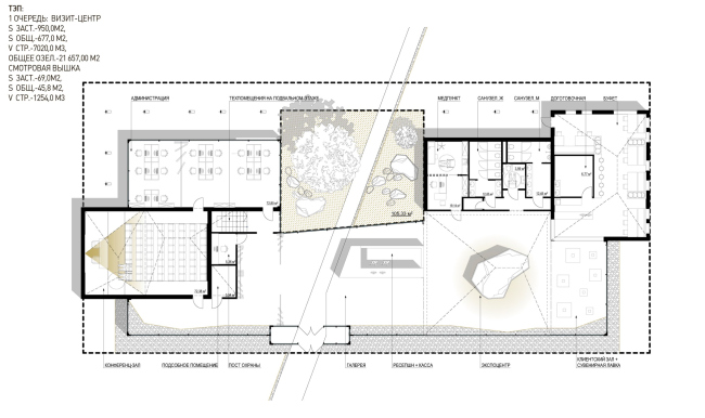
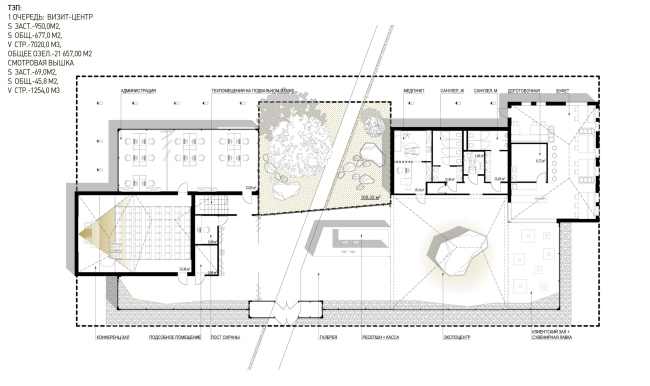
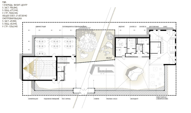
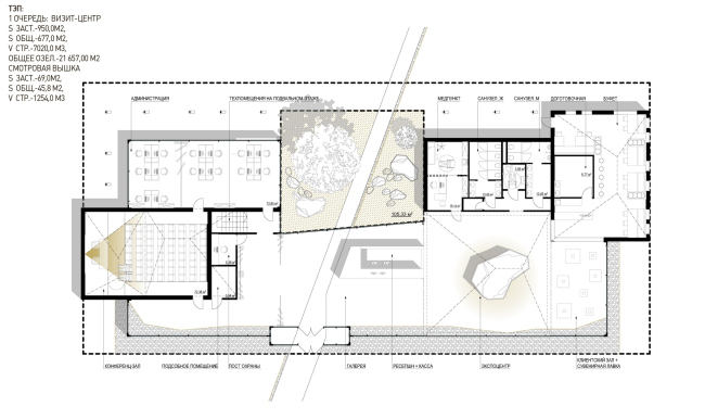
Архитектурно-планировочная концепция этнографического комплекса «Караван-Сарай». Визит-центр. План
Архитектурно-планировочная концепция этнографического комплекса «Караван-Сарай». Визит-центр. План
© КБ-11
Архитектурно-планировочная концепция этнографического комплекса «Караван-Сарай». Концепция формирования визит-центра
Архитектурно-планировочная концепция этнографического комплекса «Караван-Сарай». Концепция формирования визит-центра
© КБ-11

 
Архитектор Екатерина Кондрова
Многообразие маршрутов геопарка отражено в сложной, но при этом открытой во все стороны света планировочной структуре визит-центра. Этнические мотивы включены в отделку стен. В планировочной организации центра читается устройство деревенских дворов.

Архитектурно-планировочная концепция этнографического комплекса «Караван-Сарай». Визит-центр
Архитектурно-планировочная концепция этнографического комплекса «Караван-Сарай». Визит-центр
© КБ-11

Арт-сооружение в виде смотровой вышки рядом с визит-центром станет одним из знаковых объектов этнопарка. Оно символизирует гору Караул-Тау, рядом с хребтом Каратау. В старину местные жители использовали ее для сигнальных костров, предупреждая о приближении опасности; по этой причине одна из скал хребта называется Маяком. Смотровая вышка Караул-Тау является архитектурной доминантой комплекса и заметна со стороны дороги.
Архитектурно-планировочная концепция этнографического комплекса «Караван-Сарай». Визит-центр
Архитектурно-планировочная концепция этнографического комплекса «Караван-Сарай». Визит-центр
© КБ-11
Архитектурно-планировочная концепция этнографического комплекса «Караван-Сарай». Визит-центр. Визуализация смотровой вышки
Архитектурно-планировочная концепция этнографического комплекса «Караван-Сарай». Визит-центр. Визуализация смотровой вышки
© КБ-11

Функциональное наполнение визит-центра включает следующие зоны: галерея, конференц-зал, буфет с доготовочной зоной, санузлы, медпункт, административный офис, внутренний двор, технические помещения. На территории также располагаются автостоянка, пункт проката (вело-, роллеры, турснаряжение). 

Этнопарк

Из внутреннего двора визит-центра посетители попадают в зону этнопарка – мир истории, легенд и быта башкирского народа. В буферной зоне размещены детская площадка, зона отдыха для родителей, напротив – инсталляция с пасущимся табуном лошадей.
Архитектурно-планировочная концепция этнографического комплекса «Караван-Сарай». Инсталляция Табун лошадей. Концепция
Архитектурно-планировочная концепция этнографического комплекса «Караван-Сарай». Инсталляция Табун лошадей. Концепция
© КБ-11

Тематическая детская площадка – мини-версия всего геопарка: есть имитация природного ландшафта с тактильными поверхностями (разные географические зоны), зона раскопок с увеличенными археологическими находками (аммониты и другие окаменелости), есть этнографический слой, рассказывающий легенду о племени Айле. Род Айле делился на группы Алтмыш-Колак и Кумый. Легенда гласит, что один из внуков Айле, Сайдаш, подстрелил тридцать оленей, а его сын Тиниш похитил уши этих оленей. Поэтому потомков стали называть «айлинец – Алтмыш-Колак (шестьдесят ушей)». На площадке установят «коряги-лазалки» в виде оленьих рогов – интерактивный игровой элемент для средней возрастной группы. Для младших детей предусмотрен навес с песочницей.
Архитектурно-планировочная концепция этнографического комплекса «Караван-Сарай». Детская площадка Олень
Архитектурно-планировочная концепция этнографического комплекса «Караван-Сарай». Детская площадка Олень
© КБ-11
Архитектурно-планировочная концепция этнографического комплекса «Караван-Сарай». Детская площадка Олень. Концепция
Архитектурно-планировочная концепция этнографического комплекса «Караван-Сарай». Детская площадка Олень. Концепция
© КБ-11

Вход в следующую зону этнопарка обозначается металлическими воротами, на которых вырезаны тамги родов: «Род – Ырыу, Клич – Оран, Птица – Ҡош, Агас – Дерево». Ворота – символическая граница между обыденным и миром истории, преданий, фольклора.
Архитектурно-планировочная концепция этнографического комплекса «Караван-Сарай». Ворота
Архитектурно-планировочная концепция этнографического комплекса «Караван-Сарай». Ворота
© КБ-11

Посетитель попадает на торгово-ремесленную улицу: ресторан национальной кухни, музей истории ремесел (ремесленные мастерские и лавки), музей башкирской национальной культуры и быта, променад с ярмарочной площадью, в конце улицы – музей истории религии (мечеть).
Архитектурно-планировочная концепция этнографического комплекса «Караван-Сарай». Функциональная схема
Архитектурно-планировочная концепция этнографического комплекса «Караван-Сарай». Функциональная схема
© КБ-11

Музей истории ремесел – музей под открытым небом. По обеим сторонам улицы – стилизованные деревянные павильоны с ремесленными мастерскими. Для архитектора Элины Сахаутдиновой было важно совместить традиционную национальную архитектуру и модернистские принципы: в деревянном каркасе появляются стеклянные двери с алюминиевой рамой, кровля – конструкция из отесанных бревен и монолитного поликарбоната.
Архитектурно-планировочная концепция этнографического комплекса «Караван-Сарай». Музей истории ремесел
Архитектурно-планировочная концепция этнографического комплекса «Караван-Сарай». Музей истории ремесел
© КБ-11
Архитектурно-планировочная концепция этнографического комплекса «Караван-Сарай». Музей истории ремесел. Аксонометрия
Архитектурно-планировочная концепция этнографического комплекса «Караван-Сарай». Музей истории ремесел. Аксонометрия
© КБ-11
Архитектурно-планировочная концепция этнографического комплекса «Караван-Сарай». Фестивальная зона
Архитектурно-планировочная концепция этнографического комплекса «Караван-Сарай». Фестивальная зона
© КБ-11
Архитектурно-планировочная концепция этнографического комплекса «Караван-Сарай». Ремесленная мастерская. Схема
Архитектурно-планировочная концепция этнографического комплекса «Караван-Сарай». Ремесленная мастерская. Схема
© КБ-11

Музей башкирской национальной культуры и быта располагается сразу после ремесленных мастерских слева по улице. Это традиционное башкирское подворье с домом и кумысодельней, двором, сараем с кроликами и овцами, конюшней с манежем. Подворье воспроизводит традиционную деревянную архитектуру Салаватского района и погружает посетителей в традиционный уклад башкирской семьи. Кузня выполнена из камня.
Архитектурно-планировочная концепция этнографического комплекса «Караван-Сарай». Этнопарк. Гостевые дома
Архитектурно-планировочная концепция этнографического комплекса «Караван-Сарай». Этнопарк. Гостевые дома
© КБ-11
Жилая зона
На основе анализа традиционных жилищ башкир и натурных исследований здания 1759 года в Салаватском районе сформирована планировочная ячейка – подворье, включающее два типа гостевых домов на два и четыре места.
 
Архитектор Элина Сахаутдинова
Композиция дома – собирательный образ традиционного башкирского деревянного дома, элементы юрты и модернистские включения. Необычная кровля двойной формы отсылает к четырехскатной кровле района и метафорически к горным вершинам визит‑центра.

Архитектурно-планировочная концепция этнографического комплекса «Караван-Сарай». Гостевые дома. Аксонометрия
Архитектурно-планировочная концепция этнографического комплекса «Караван-Сарай». Гостевые дома. Аксонометрия
© КБ-11
Архитектурно-планировочная концепция этнографического комплекса «Караван-Сарай». Гостевой дом. Схема
Архитектурно-планировочная концепция этнографического комплекса «Караван-Сарай». Гостевой дом. Схема
© КБ-11
Архитектурно-планировочная концепция этнографического комплекса «Караван-Сарай». Этнопарк. Гостевые дома
Архитектурно-планировочная концепция этнографического комплекса «Караван-Сарай». Этнопарк. Гостевые дома
© КБ-11
Архитектурно-планировочная концепция этнографического комплекса «Караван-Сарай». Этнохостел
Архитектурно-планировочная концепция этнографического комплекса «Караван-Сарай». Этнохостел
© КБ-11

Альтернативный вариант проживания – гостиничный блок «этнохостел». Его архитектура продиктована сельской утилитарной архитектурой. В основе – базиликальная форма, аналогичная коровьей ферме. Такой архетип встречается в культовой архитектуре Древнего Египта и средневековой Западной Европы. Такая форма расширяет внутреннее пространство и сохраняет естественное освещение.
Архитектурно-планировочная концепция этнографического комплекса «Караван-Сарай». Этнохостел
Архитектурно-планировочная концепция этнографического комплекса «Караван-Сарай». Этнохостел
© КБ-11
Архитектурно-планировочная концепция этнографического комплекса «Караван-Сарай». Этнохостел. Аксонометрия
Архитектурно-планировочная концепция этнографического комплекса «Караван-Сарай». Этнохостел. Аксонометрия
© КБ-11
Архитектурно-планировочная концепция этнографического комплекса «Караван-Сарай». Этнохостел. Планы
Архитектурно-планировочная концепция этнографического комплекса «Караван-Сарай». Этнохостел. Планы
© КБ-11

Важным аспектом проектирования является экологическая устойчивость. В покрытиях используются гравийные отсевы разных фракций, лиственничные досчатые настилы, отсыпки, мульча и другие натуральные материалы. Отделка объектов – дерево как возобновляемый и вернакулярный материал. Также используются металл и стекло.

В проекте уделено большое внимание озеленению: в этнопарке и визит-центре предусмотрены сады с плодово-ягодными и декоративными культурами, характерными для Салаватского района.

Фирменная навигация может привлечь посетителей, проезжающих мимо. Приветственная стела и навигационные знаки могут быть фоном для фотографий или видео и способствовать распространению брендированного контента.
Архитектурно-планировочная концепция этнографического комплекса «Караван-Сарай». Концепция формирования этнопарка. Навигация
Архитектурно-планировочная концепция этнографического комплекса «Караван-Сарай». Концепция формирования этнопарка. Навигация
© КБ-11