Размещено на портале Архи.ру (www.archi.ru)

12.06.2025

Московский K-pop

Елена Петухова
Объект:
Hollyshop на Сущевской
Адрес:
Россия, Москва. БЦ Атмосфера, 27 ст2, Сущевская ул
Мастерская:
Sinitsa Buro
Авторский коллектив:
ГАП Анастасия Колчина, руководитель проекта Дарья Крайнова, ведущий архитектор Варвара Сереброва, технический архитектор Алена Шурыгина

Магазин корейской косметики Hollyshop от Sinitsa Buro предлагает посетителям окунуться не только в широкий ассортимент средств для здоровья и красоты, но и в K-pop эстетику, слегка адаптированную с учетом московских трендов.

Открытие второго магазина сети Hollyshop дало возможность бюро SINITSA развить идеи, разработанные для первого проекта и уже доказавшие свою эффективность. Шаг за шагом, предлагая заказчику различные варианты, адаптированные к новым условиям и задачам, архитекторы не только продолжили формирование узнаваемого дизайна для магазинов одного бренда, но и оптимизировали процесс утверждения проекта и сроки его реализации.
Hollyshop на Сущевской
Hollyshop на Сущевской
Фотография © Полина Полудкина / предоставлена Sinitsa Buro

Второй магазин расположился в БЦ Атмосфера на ул. Сущевская, в помещении немного меньшей площади, что отразилось на дизайне и выборе цветового решения. Вместо ярких цветов предпочтение было отдано более пастельным, мягким оттенкам, благодаря которым пространство кажется просторнее и визуально более комфортным.

Общее впечатление от интерьера вызывает ассоциации с современной поп-культурой стран Юго-Восточной Азии – Южной Кореи и Японии – с их увлечением кавайностью, аниме-антуражем и супер-вниманием к эргономике. Попадая в магазин, трудно отделаться от ощущения, что это скорее какая-то виртуальная симуляция, чем реальный мир – настолько все элегантно и продумано. Даже в чередовании цветных элементов, резко выделяющихся на фоне светло-серого фона, можно увидеть ассоциации с компьютерной реальностью, где каждый полезный объект подсвечивается, чтобы привлечь внимание игрока.

Для комфорта покупателей – не только визуального, но и тактильного – в отделке помещения и для изготовления оригинальной мебели был использован матовый пластик, который в сочетании с подсветкой позволяет создавать интересные цветовые переходы.

Для магазина были спроектированы несколько видов отдельно стоящих стеллажей и шкафов для различных видов товаров, а также станции для макияжа, где можно сесть и спокойно всё попробовать. Она выполнена в виде большого стола светло-серого цвета, в центре которого установлены два специальных зеркала с подсветкой, гарантирующие оптимальный режим освещенности и цветопередачи.
Hollyshop на Сущевской
Hollyshop на Сущевской
Фотография © Полина Полудкина / предоставлена Sinitsa Buro

Основное пространство зала разделено на несколько зон при помощи рядов стеллажей, выполненных в двух разных дизайнах, но установленных на одинаковые основания в виде белых массивных подиумов, используемых как дополнительные места хранения благодаря выдвигающимся ящикам.
Верхние части стеллажей различаются по конструкциям и по цвету. Есть стеллажи в виде легкого металлического каркаса с полками из матового полупрозрачного оргстекла. Причем часть из них решена в белом, а часть – в розовом цвете.
Hollyshop на Сущевской
Hollyshop на Сущевской
Фотография © Полина Полудкина / предоставлена Sinitsa Buro

Другие стеллажи имеют более массивный вид благодаря использованию невысоких розовых перегородок со скругленными торцами, на которые опираются белые полки. Из-за округлости форм этих стеллажей, напоминающих жвачку, получили от команды архитекторов шуточное название «Orbit».

Работа над дизайном стеллажей продолжалась довольно долго. На самом деле, магазин в БЦ Атмосфера должен был открыться намного раньше, но авторы не были довольны промежуточными результатами работы над торговым оборудованием и, по согласованию с заказчиком, продолжили поиски.  Открытие магазина было отложено, но итогом стал результат, которым и владельцы Hollyshop, и команда Sinitsa Buro по праву могут гордиться.
Hollyshop на Сущевской Фотография © Полина Полудкина / предоставлена Sinitsa Buro
Hollyshop на Сущевской
Фотография © Полина Полудкина / предоставлена Sinitsa Buro
Hollyshop на Сущевской Фотография © Полина Полудкина / предоставлена Sinitsa Buro
Hollyshop на Сущевской
Фотография © Полина Полудкина / предоставлена Sinitsa Buro
Hollyshop на Сущевской Фотография © Полина Полудкина / предоставлена Sinitsa Buro
Hollyshop на Сущевской
Фотография © Полина Полудкина / предоставлена Sinitsa Buro
Hollyshop на Сущевской Фотография © Полина Полудкина / предоставлена Sinitsa Buro
Hollyshop на Сущевской
Фотография © Полина Полудкина / предоставлена Sinitsa Buro

Протяженные стены разделены на несколько частей при помощи открытых шкафов. Сами авторы называют их «леденцы», но они скорее напоминают огромные порталы, переливающиеся различными оттенками розовых и сиреневых цветов. Благодаря масштабу и яркости цвета эти стеллажи притягивают внимание к тем или иным группам товаров, расположенных в них.
Hollyshop на Сущевской Фотография © Полина Полудкина / предоставлена Sinitsa Buro
Hollyshop на Сущевской
Фотография © Полина Полудкина / предоставлена Sinitsa Buro
Hollyshop на Сущевской Фотография © Полина Полудкина / предоставлена Sinitsa Buro
Hollyshop на Сущевской
Фотография © Полина Полудкина / предоставлена Sinitsa Buro
Hollyshop на Сущевской Фотография © Полина Полудкина / предоставлена Sinitsa Buro
Hollyshop на Сущевской
Фотография © Полина Полудкина / предоставлена Sinitsa Buro
Hollyshop на Сущевской Фотография © Полина Полудкина / предоставлена Sinitsa Buro
Hollyshop на Сущевской
Фотография © Полина Полудкина / предоставлена Sinitsa Buro
Hollyshop на Сущевской Фотография © Полина Полудкина / предоставлена Sinitsa Buro
Hollyshop на Сущевской
Фотография © Полина Полудкина / предоставлена Sinitsa Buro
Hollyshop на Сущевской Фотография © Полина Полудкина / предоставлена Sinitsa Buro
Hollyshop на Сущевской
Фотография © Полина Полудкина / предоставлена Sinitsa Buro

Тему «пухлости» развивает диван (divan.ru), хотя соседство с ярко-розовым столиком в форме кляксы не дает ему перейти в категорию акцентов. Тем не менее, свою роль в создании комфортной и расслабленной атмосферы он выполняет с легкостью.
Hollyshop на Сущевской Фотография © Полина Полудкина / предоставлена Sinitsa Buro
Hollyshop на Сущевской
Фотография © Полина Полудкина / предоставлена Sinitsa Buro
Hollyshop на Сущевской Фотография © Полина Полудкина / предоставлена Sinitsa Buro
Hollyshop на Сущевской
Фотография © Полина Полудкина / предоставлена Sinitsa Buro
Hollyshop на Сущевской Фотография © Полина Полудкина / предоставлена Sinitsa Buro
Hollyshop на Сущевской
Фотография © Полина Полудкина / предоставлена Sinitsa Buro
Hollyshop на Сущевской Фотография © Полина Полудкина / предоставлена Sinitsa Buro
Hollyshop на Сущевской
Фотография © Полина Полудкина / предоставлена Sinitsa Buro

В интерьере много интересных деталей, каждая из которых не случайна и тщательно продумана. Рядом с кассой оборудована оригинальная upsell-зона для множества мелочей, которые обычно все забывают купить. А здесь, благодаря удобству расположения и эргономичной раскладке, они всегда на виду и под рукой.
Сама кассовая стойка также спроектирована специально для этого магазина. Так же, как и в стеллажах, в ней сочетаются устойчивость и невесомость. Отвечает за сочетание несочетаемых качеств массивная опора с зеркальной облицовкой, из-за которой она буквально растворяется в пространстве. Если говорить о способах камуфляжа, нельзя не упомянуть о драпировках, которые архитекторы использовали, чтобы закрыть внутренние коммуникации – различные трубы и электрическую проводку. В этом сочетании восточной поэтичности и столичного прагматизма рождается московская версия K-pop культуры.
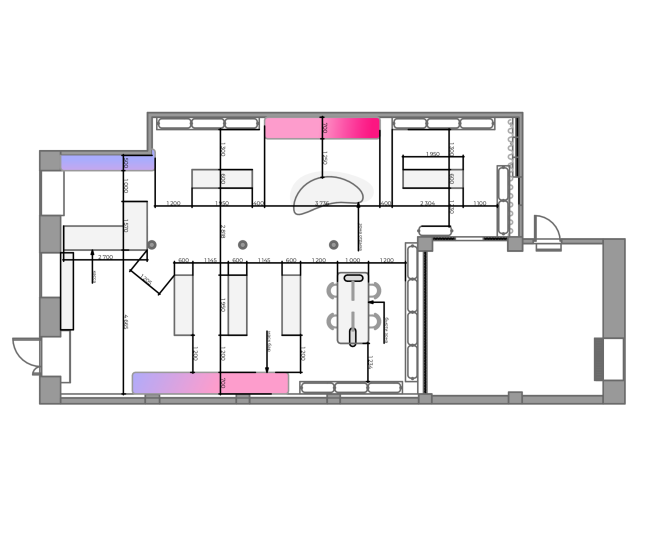
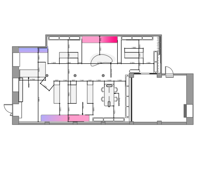
План
План
предоставлено Sinitsa Buro
Аксонометрия
Аксонометрия
предоставлено Sinitsa Buro
Аксонометрия