Размещено на портале Архи.ру (www.archi.ru)

10.06.2025

Модная сценография

Елена Петухова
Объект:
Бутик женской одежды «Sashaskvo»
Адрес:
Россия, Москва. ул. 2-я Звенигородская 14 (квартал «Lucky»)
Мастерская:
RMMSH
Авторский коллектив:
Руководитель, сооснователь, главный архитектор: Роман Гуляев
Сооснователь, главный дизайнер: Мария Цахариас 
Дизайнер: Полина Ильина

Интерьер бутика женской одежды Sashaskvo представляет нестандартный взгляд на эстетику ретейла. Взяв за основу концепцию бренда, его айдентику и фирменный стиль, архитекторы бюро RMMSH создали яркое, эмоционально насыщенное пространство с аллюзиями на театральный антураж, в котором экстравагантные детали и свет сочетаются с лаконизмом крупных форм.

 
Помещение для магазина одежды расположено на первом этаже одного из самых модных жилых комплексов Москвы – квартала LUCKY. Главный вход в бутик ориентирован на транзитную внутриквартальную улицу. С боковой стороны из магазина можно выйти в уютный двор с местом для небольшой летней террасы со столиками и креслами.
Бутик женской одежды «Sashaskvo»
Бутик женской одежды «Sashaskvo»
Фотография © Даниил Анненков / предоставлена RMMSH

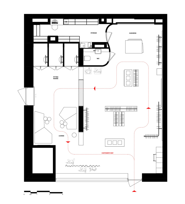
На площади чуть более ста квадратных метров авторам нужно было разместить бутиковую зону с тремя примерочными, склад и небольшой лаунж, что выглядело как нереальная задача, ведь в современных магазинах каждая из этих зон должна была бы занять не меньшую площадь, чем все имеющееся пространство в целом.

Дополнительным усложняющим задачу архитекторов фактором стали несущие конструкции: две стены и колонна с коммуникациями, которые нельзя было трогать. Но, как это нередко бывает, борьба с объективными сложностями стимулирует креативность и подталкивает к новым, нетривиальным решениям.
Бутик женской одежды «Sashaskvo»
Бутик женской одежды «Sashaskvo»
© RMMSH

Архитекторы бюро RMMSH предложили вместо жесткого зонирования сделать все пространство многофункциональным, лишь выделив в качестве ключевых элементов перетекающие друг в друга торговую и лаунж-зоны. Благодаря мобильной мебели магазин может быть легко трансформирован в место для вечерних мероприятий и даже в лекторий. От обычного склада было решено отказаться, оборудовав места хранения при помощи высоких трехметровых шкафов в небольшой комнате в задней части магазина. В результате архитекторы организовали эргономичное пространство с продуманным на основе принципов мерчандайзинга маршрутом для покупателей от входа направо в основную торговую зону с вешалками и подиумами, потом налево вокруг центральной декоративной перегородки, дополненной огромным стеллажом с арочным проемом к примерочным и дальше в лаунж-зону с диванными группами. А в случае проведения вечерних мероприятий диван и столики могут перемещаться в зону с экраном, где можно показывать презентации, фильмы или проводить лекции.

Прагматизм планировки с лихвой компенсируется эмоциональностью оформления интерьера, погружающего гостей в мир театра, красоты. Покупатель, входя в бутик, должен испытать легкое волнение и с радостью предвкушать встречу с прекрасным, как если бы он входил в двери оперного театра перед вечерним спектаклем. Элегантность и пышность, торжественность и ирония сочетаются здесь в гармоничных пропорциях.
Бутик женской одежды «Sashaskvo»
Бутик женской одежды «Sashaskvo»
Фотография © Даниил Анненков / предоставлена RMMSH

Основной цвет интерьера – красный, который оттеняется теплым белым оттенком, придающим пространству легкое свечение. Вполне в театральном духе выполнено панно в торговой зоне и огромный стеллаж с арочным проемом, окрашенными по специальной технологии под «красный мрамор». Светлые стены отделаны штукатуркой и окрашены матовой краской. Третьим цветом, скорее нейтральным, чем акцентным, был выбран темный графитовый оттенок, которым окрашены примерочные и санузел. Основные цвета чередуются, давая возможность посетителю совершить колористическое путешествие из одной зоны в другую, например, из черной примерочной в светлый торговый зал. В результате выстраивается настоящая театральная сценография, основанная на контрастной смене цвета и света.
Бутик женской одежды «Sashaskvo» Фотография © Даниил Анненков / предоставлена RMMSH
Бутик женской одежды «Sashaskvo»
Фотография © Даниил Анненков / предоставлена RMMSH
Бутик женской одежды «Sashaskvo» Фотография © Даниил Анненков / предоставлена RMMSH
Бутик женской одежды «Sashaskvo»
Фотография © Даниил Анненков / предоставлена RMMSH
Бутик женской одежды «Sashaskvo» Фотография © Даниил Анненков / предоставлена RMMSH
Бутик женской одежды «Sashaskvo»
Фотография © Даниил Анненков / предоставлена RMMSH
Бутик женской одежды «Sashaskvo» Фотография © Даниил Анненков / предоставлена RMMSH
Бутик женской одежды «Sashaskvo»
Фотография © Даниил Анненков / предоставлена RMMSH
Бутик женской одежды «Sashaskvo» Фотография © Даниил Анненков / предоставлена RMMSH
Бутик женской одежды «Sashaskvo»
Фотография © Даниил Анненков / предоставлена RMMSH

Спроектированная специально для данного интерьера мебель также делится на белую, красную и темно-серую, почти черную. Аналогично с общим подходом к колористике, темные предметы носят либо акцентный, как небольшие столики в форме перевернутых конусов, либо прагматический, как торговые стойки с рейлами из металла, характер.
Бутик женской одежды «Sashaskvo» Фотография © Даниил Анненков / предоставлена RMMSH
Бутик женской одежды «Sashaskvo»
Фотография © Даниил Анненков / предоставлена RMMSH
Бутик женской одежды «Sashaskvo» Фотография © Даниил Анненков / предоставлена RMMSH
Бутик женской одежды «Sashaskvo»
Фотография © Даниил Анненков / предоставлена RMMSH
Бутик женской одежды «Sashaskvo» Фотография © Даниил Анненков / предоставлена RMMSH
Бутик женской одежды «Sashaskvo»
Фотография © Даниил Анненков / предоставлена RMMSH
Бутик женской одежды «Sashaskvo» Фотография © Даниил Анненков / предоставлена RMMSH
Бутик женской одежды «Sashaskvo»
Фотография © Даниил Анненков / предоставлена RMMSH
Бутик женской одежды «Sashaskvo» Фотография © Даниил Анненков / предоставлена RMMSH
Бутик женской одежды «Sashaskvo»
Фотография © Даниил Анненков / предоставлена RMMSH
Бутик женской одежды «Sashaskvo» Фотография © Даниил Анненков / предоставлена RMMSH
Бутик женской одежды «Sashaskvo»
Фотография © Даниил Анненков / предоставлена RMMSH
Бутик женской одежды «Sashaskvo» Фотография © Даниил Анненков / предоставлена RMMSH
Бутик женской одежды «Sashaskvo»
Фотография © Даниил Анненков / предоставлена RMMSH

Потенциал театральной темы был бы не раскрыт, если бы в интерьер не были включены кинетический занавес в огромной, шириной 5 метров витрине магазина и кинетическая люстра, чья форма и конструкция отдаленно напоминают люстры на станции метро «Курская кольцевая». Такие элементы, придающие динамику статичному пространству, всегда привлекают внимание посетителей.

Люстра, проектирование и изготовление которой заняло больше 4 месяцев, все время находится в движении и имеет несколько цветовых режимов, включая красный свет, который кардинально меняет пространство. Из других медиа элементов нужно отметить большой LED-экран, формирующий digital-зону для съемки контента.
Бутик женской одежды «Sashaskvo»
Бутик женской одежды «Sashaskvo»
Фотография © Даниил Анненков / предоставлена RMMSH
Бутик женской одежды «Sashaskvo»
Бутик женской одежды «Sashaskvo»
Фотография © Даниил Анненков / предоставлена RMMSH