Размещено на портале Архи.ру (www.archi.ru)

30.05.2025

Искусство в доступе

Анна Старостина
Объект:
Фондохранилище Музея Виктории и Альберта
Адрес:
Великобритания, None, Лондон.
Мастерская:
Diller Scofidio + Renfro

В Лондоне сооружено фондохранилище для Музея Виктории и Альберта по проекту Diller Scofidio + Renfro: экспонаты здесь выставлены без привычного стекла.

В Олимпийском парке имени Елизаветы II, на берегу реки-канала Уотеруокс идет строительство культурного квартала East Bank согласно мастерплану бюро Allies + Morrison. Весной 2026 года здесь должен открыться филиал Музея Виктории и Альберта V&A East по проекту O'Donnell and Tuomey. А уже завтра, 31 мая, совсем рядом, в части гигантского ангара бывшего Олимпийского медиацентра открывается V&A East Storehouse – принадлежащее Музею Виктории и Альберта инновационное фондохранилище, где экспонаты можно рассмотреть совсем близко, а по заказу можно детально изучить почти любую из сотен тысяч единиц хранения в специальной комнате. Проектированием «склада мирового культурного наследия» занимались американцы Diller Scofidio + Renfro, выигравшие международный конкурс еще в 2018 году (совместно с английским бюро Austin-Smith:Lord).

Фондохранилище Музея Виктории и Альберта
Фондохранилище Музея Виктории и Альберта
Фотография © Hufton+Crow / предоставлена V&A Museum
Фондохранилище Музея Виктории и Альберта
Фондохранилище Музея Виктории и Альберта
Фотография © Hufton+Crow / предоставлена V&A Museum

Всего в фондохранилище находится 250 тыс. предметов, 350 тыс. книг и 1000 архивов. Оно напоминает современный склад со стеллажами и погрузчиками, но промышленная эстетика все же соединяется в этом проекте с хрупкими произведениями искусства и узнаваемыми и торжественными приемами современной музейной архитектуры. Главная цель состояла не только в том, чтобы облегчить доступ непрофессионалов к как можно большему количеству экспонатов. Важным было открыть всем изнанку, нутро музея, показать, как он устроен и как работает, сделать его будни тоже предметом экспозиции. Соответствующую концепцию разработал операционный директор V&A Тим Рив.
Фондохранилище Музея Виктории и Альберта
Фондохранилище Музея Виктории и Альберта
Фотография © Hufton+Crow / предоставлена V&A Museum
Фондохранилище Музея Виктории и Альберта
Фондохранилище Музея Виктории и Альберта
Фотография © Hufton+Crow / предоставлена V&A Museum

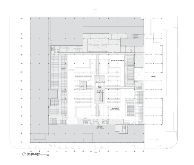
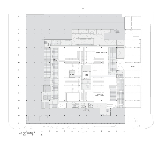
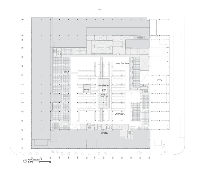
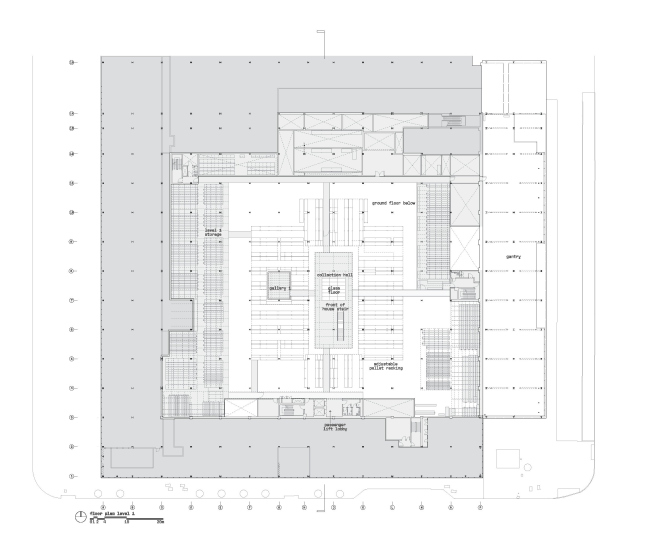
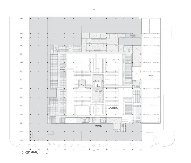
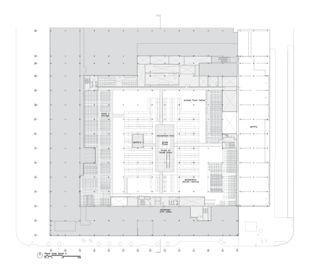
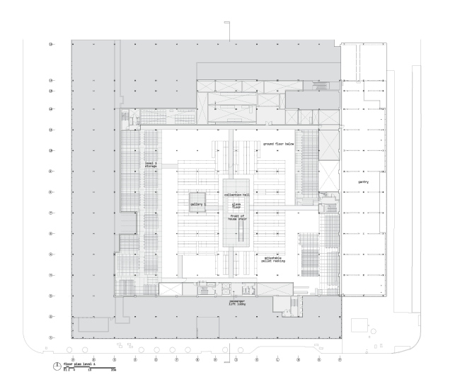
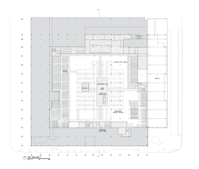
С одной стороны протяженного входного вестибюля расположено кафе, с другой находится образовательная зона, а прямо по центру – гигантская лестница, по которой через узкий проход посетитель поднимается на один уровень выше и попадает в светлый центральный атриум высотой 20 м. Поскольку солнечный свет губителен для ценных предметов, световой фонарь имитируется искусственным освещением. Именно сюда выходят стеллажи, торцы и боковые части которых превращены в экспозиционные витрины. Всего таких витрин более сотни; благодаря разработанной лондонская студией IDK гибкой модульной системе экспонаты в них планируется часто менять.
Фондохранилище Музея Виктории и Альберта
Фондохранилище Музея Виктории и Альберта
Фотография © Hufton+Crow / предоставлена V&A Museum
Фондохранилище Музея Виктории и Альберта Фотография © Hufton+Crow / предоставлена V&A Museum
Фондохранилище Музея Виктории и Альберта
Фотография © Hufton+Crow / предоставлена V&A Museum
Фондохранилище Музея Виктории и Альберта Фотография © Hufton+Crow / предоставлена V&A Museum
Фондохранилище Музея Виктории и Альберта
Фотография © Hufton+Crow / предоставлена V&A Museum
Фондохранилище Музея Виктории и Альберта Фотография © Hufton+Crow / предоставлена V&A Museum
Фондохранилище Музея Виктории и Альберта
Фотография © Hufton+Crow / предоставлена V&A Museum
Фондохранилище Музея Виктории и Альберта Фотография © Hufton+Crow / предоставлена V&A Museum
Фондохранилище Музея Виктории и Альберта
Фотография © Hufton+Crow / предоставлена V&A Museum
Фондохранилище Музея Виктории и Альберта
Фондохранилище Музея Виктории и Альберта
Фотография © Hufton+Crow / предоставлена V&A Museum

Также атриум стал местом для демонстрации самых крупных объектов. Например, в нем подвешен фрагмент фасада бруталистского комплекса социального жилья «Робин Гуд Гарденс» по проекту Питера и Элисон Смитсон (о печальной истории их сооружения и этом вызвавшем толки приобретении мы писали здесь; прежде чем поместить этот объект в фондохранилище, музей успел показать его на Венецианской архитектурной биеннале в 2018). Выставлен здесь и кабинет Кауфмана Фрэнка Ллойда Райта, стены которого покрыты 240 фанерными панелями из кипариса (в него можно даже войти и по-настоящему ощутить это пространство), и «франкфуртская кухня» Маргарете Шютте-Лихоцки. Ну а через прозрачные стеклянные перекрытия в полу атриума можно понаблюдать за работой реставрационных мастерских, расположенных на нижнем уровне.
Фондохранилище Музея Виктории и Альберта
Фондохранилище Музея Виктории и Альберта
Фотография © Hufton+Crow / предоставлена V&A Museum
Фондохранилище Музея Виктории и Альберта
Фондохранилище Музея Виктории и Альберта
Фотография © Hufton+Crow / предоставлена V&A Museum
Фондохранилище Музея Виктории и Альберта
Фондохранилище Музея Виктории и Альберта
Фотография © Hufton+Crow / предоставлена V&A Museum
Фондохранилище Музея Виктории и Альберта
Фондохранилище Музея Виктории и Альберта
Фотография © Hufton+Crow / предоставлена V&A Museum

Среди других заметных экспонатов – самая большая театральная работа Пикассо, выполненная им для балета «Голубой поезд» в рамках парижских Русских сезонов Сергея Дягилева (из-за своего размера ранее она почти не выставлялась) и 18-тонная колоннада XVII века из Агры – примечательный образец архитектуры эпохи Великих Моголов.
Фондохранилище Музея Виктории и Альберта Фотография © Hufton+Crow / предоставлена V&A Museum
Фондохранилище Музея Виктории и Альберта
Фотография © Hufton+Crow / предоставлена V&A Museum
Фондохранилище Музея Виктории и Альберта Фотография © Hufton+Crow / предоставлена V&A Museum
Фондохранилище Музея Виктории и Альберта
Фотография © Hufton+Crow / предоставлена V&A Museum
Фондохранилище Музея Виктории и Альберта
Фондохранилище Музея Виктории и Альберта
Фотография © Hufton+Crow / предоставлена V&A Museum
Фондохранилище Музея Виктории и Альберта
Фондохранилище Музея Виктории и Альберта
Фотография © Hufton+Crow / предоставлена V&A Museum

В новом фондохранилище действительно можно увидеть самые разные предметы мировой материальной культуры: от образцов древнеегипетских тканей до уникального платья Баленсиага, от керамики XIV века до кубка, придуманного Томасом Хезервиком для Олимпийских игр-2012 в Лондоне. Конечно, все это отсылает к традиции кабинетов редкостей, существовавшей в Европе с XVI века, причем в ее изначальном виде, до того, как подобные коллекции стали приобретать ту или иную специализацию. Собственно, Элизабет Диллер и называет свой проект «иммерсивным кабинетом редкостей».
Вид на территорию Олимпийского парка в Лондоне
Вид на территорию Олимпийского парка в Лондоне
Фотография © Jason Hawkes / предоставлена V&A Museum
Фондохранилище Музея Виктории и Альберта
Фондохранилище Музея Виктории и Альберта
© Diller Scofidio + Renfro / предоставлена V&A Museum
Фондохранилище Музея Виктории и Альберта
Фондохранилище Музея Виктории и Альберта
© Diller Scofidio + Renfro / предоставлена V&A Museum