Размещено на портале Архи.ру (www.archi.ru)

13.05.2025

Лемех, лес и небеса

Объект:
Бутик-отель Заонежье
Адрес:
Россия, Кажма.
Мастерская:
Rhizome
Авторский коллектив:
Ведущие архитекторы: Татьяна Синельникова, Евгений Решетов
Команда проекта: Екатерина Ростова, Яна Демина, Илья Беляков, Валерия Левщанкина

Посещение комплекса «Кижи» теперь можно совместить с осмотром современного деревянного зодчества: по проекту бюро Rhizome в карельской деревне Кажма построен бутик-отель «Заонежье». Архитекторы демонстрируют разнообразие и красоту дерева как строительного материала, используя традиционные и современные способы его обработки. Также примечательна интеграция гостиницы в ландшафт: с помощью зеленых кровель, геопластики и пышных многолетников.

Описание предоставлено архитекторами

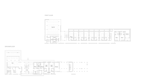
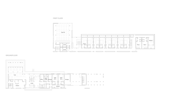
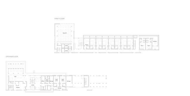
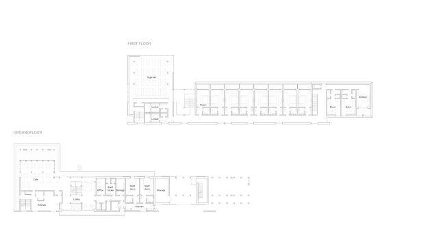
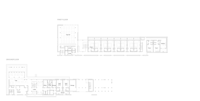
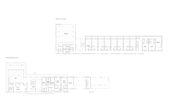
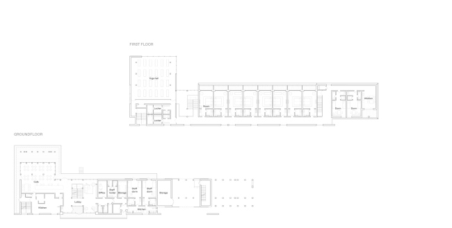
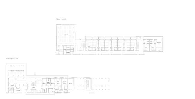
Древность и самобытность русского севера располагают к созерцательному отдыху – именно этой цели служит отельный комплекс на берегу Онежского озера. На небольшом участке у воды скомпонованы два гостевых дома, баня и здание отеля с просторным залом для йоги и тематических мероприятий. Существующие на территории дом и сауна интегрируются в проект и решаются в общем ключе.
Бутик-отель Заонежье
Бутик-отель Заонежье
Фотография © Дмитрий Чебаненко / предоставлена Rhizome
Бутик-отель Заонежье
Бутик-отель Заонежье
© Rhizome

Расположение всех объектов определяет природная панорама: она просматривается из окон прибрежных домов и отельных номеров, размещенных на второй линии. Промежутки между гостевыми домами, равно как и разворот одного из них на 90 градусов по отношению к берегу, позволяют любоваться озером из ресторана и холла на первом этаже отеля.
Бутик-отель Заонежье
Бутик-отель Заонежье
Фотография © Дмитрий Чебаненко / предоставлена Rhizome
Бутик-отель Заонежье
Бутик-отель Заонежье
Фотография © Дмитрий Чебаненко / предоставлена Rhizome

Архитектура комплекса вбирает приемы, характерные для северного зодчества – расположенных поблизости Кижей и вернакулярных построек деревни Кажма. Как и в карельской архитектуре, главным материалом здесь становится дерево: темное и фактурное, оно используется в облицовке фасадов. Некоторые из них набраны из небольших деревянных элементов в традиционной технике «лемех», позволяющей получить детализированную и эффектную поверхность.
Бутик-отель Заонежье
Бутик-отель Заонежье
Фотография © Дмитрий Чебаненко / предоставлена Rhizome
Бутик-отель Заонежье
Бутик-отель Заонежье
Фотография © Дмитрий Чебаненко / предоставлена Rhizome
Бутик-отель Заонежье
Бутик-отель Заонежье
Фотография © Дмитрий Чебаненко / предоставлена Rhizome

Отвечая общей эстетике, каждое здание обладает своим силуэтом. Так, гостевой дом на краю участка выделяется четырехскатной вальмовой кровлей, завершенной световым фонарем. Вытянутый и вынесенный вперед, он сохраняет видовые характеристики за счет двух остекленных фасадов, за которыми скрываются светлые спальни, гостиная и транзитный коридор.
Бутик-отель Заонежье
Бутик-отель Заонежье
Фотография © Дмитрий Чебаненко / предоставлена Rhizome
Бутик-отель Заонежье
Бутик-отель Заонежье
Фотография © Дмитрий Чебаненко / предоставлена Rhizome
Бутик-отель Заонежье
Бутик-отель Заонежье
Фотография © Дмитрий Чебаненко / предоставлена Rhizome

Гостевой дом в центре участка отличает плоская и озелененная кровля – она не перекрывает вид из номеров на втором этаже отеля. Дома объединены схожей планировкой, наличием крыльца-гульбища и решением фасадов: чередование плотных и разряженных деревянных поверхностей позволяет выдержать баланс между приватными и открытыми пространствами.
Бутик-отель Заонежье
Бутик-отель Заонежье
Фотография © Дмитрий Чебаненко / предоставлена Rhizome
Бутик-отель Заонежье
Бутик-отель Заонежье
Фотография © Дмитрий Чебаненко / предоставлена Rhizome
Бутик-отель Заонежье
Бутик-отель Заонежье
Фотография © Дмитрий Чебаненко / предоставлена Rhizome

Монолитное здание отеля сформировано тремя объемами – консольным выносом многофункционального зала, номерным фондом и блоком, где протекает внутренняя жизнь отеля. Зал становится смысловым центром комплекса, рассчитанного на оздоровительные практики и другие массовые активности. Его внутреннее пространство совмещает открытые конструкции ферм и камерные ниши, оставаясь при этом связным и вместительным. Панорамное остекление на северо-восточной и южной стенах впускает в зал естественный свет, а возможность проветривания – свежий онежский воздух.
Бутик-отель Заонежье
Бутик-отель Заонежье
Фотография © Дмитрий Чебаненко / предоставлена Rhizome
Бутик-отель Заонежье
Бутик-отель Заонежье
Фотография © Дмитрий Чебаненко / предоставлена Rhizome
Бутик-отель Заонежье
Бутик-отель Заонежье
Фотография © Дмитрий Чебаненко / предоставлена Rhizome
Бутик-отель Заонежье
Бутик-отель Заонежье
Фотография © Дмитрий Чебаненко / предоставлена Rhizome
Бутик-отель Заонежье
Бутик-отель Заонежье
Фотография © Дмитрий Чебаненко / предоставлена Rhizome
Бутик-отель Заонежье
Бутик-отель Заонежье
Фотография © Дмитрий Чебаненко / предоставлена Rhizome

Первый этаж отеля вмещает холл, объединенную с баром стойку ресепшн, а также ресторан и общую зону библиотеки-гостиной. На первом уровне расположены и служебные помещения: места для проживания персонала, кухня и склад, типологически напоминающий северные поморские избы. На втором уровне – гостевые номера с возможностью бюджетного размещения.
Бутик-отель Заонежье
Бутик-отель Заонежье
Фотография © Дмитрий Чебаненко / предоставлена Rhizome
Бутик-отель Заонежье
Бутик-отель Заонежье
Фотография © Дмитрий Чебаненко / предоставлена Rhizome
Бутик-отель Заонежье
Бутик-отель Заонежье
© Rhizome

Прибрежная зона также оснащена всем необходимым для отдыха: протяженный деревянный пирс предназначен для занятий йогой, а баня по-черному – для аутентичного парения с купанием в озере. Ландшафт гармонично вписывается в общую эстетику и дополняет ее. Образовавшиеся в процессе строительных работ «холмы» покрылись травами и луговыми цветами, которые было решено сохранить и дополнить светильниками. Контраст с буйной растительностью создают аккуратно подстриженные газоны, украшенные несколькими валунами, найденными на территории и расставленными так, словно они всегда здесь находились. Пешеходные дорожки выполнены в виде деревянных настилов, естественно посеревших со временем, что придает им природную органичность.

Бутик-отель Заонежье Фотография © Дмитрий Чебаненко / предоставлена Rhizome
Бутик-отель Заонежье
Фотография © Дмитрий Чебаненко / предоставлена Rhizome
Бутик-отель Заонежье Фотография © Дмитрий Чебаненко / предоставлена Rhizome
Бутик-отель Заонежье
Фотография © Дмитрий Чебаненко / предоставлена Rhizome
Бутик-отель Заонежье Фотография © Дмитрий Чебаненко / предоставлена Rhizome
Бутик-отель Заонежье
Фотография © Дмитрий Чебаненко / предоставлена Rhizome
Бутик-отель Заонежье Фотография © Дмитрий Чебаненко / предоставлена Rhizome
Бутик-отель Заонежье
Фотография © Дмитрий Чебаненко / предоставлена Rhizome
Бутик-отель Заонежье Фотография © Дмитрий Чебаненко / предоставлена Rhizome
Бутик-отель Заонежье
Фотография © Дмитрий Чебаненко / предоставлена Rhizome
Бутик-отель Заонежье Фотография © Дмитрий Чебаненко / предоставлена Rhizome
Бутик-отель Заонежье
Фотография © Дмитрий Чебаненко / предоставлена Rhizome
Бутик-отель Заонежье Фотография © Дмитрий Чебаненко / предоставлена Rhizome
Бутик-отель Заонежье
Фотография © Дмитрий Чебаненко / предоставлена Rhizome
Бутик-отель Заонежье Фотография © Дмитрий Чебаненко / предоставлена Rhizome
Бутик-отель Заонежье
Фотография © Дмитрий Чебаненко / предоставлена Rhizome
Бутик-отель Заонежье Фотография © Дмитрий Чебаненко / предоставлена Rhizome
Бутик-отель Заонежье
Фотография © Дмитрий Чебаненко / предоставлена Rhizome
Бутик-отель Заонежье Фотография © Дмитрий Чебаненко / предоставлена Rhizome
Бутик-отель Заонежье
Фотография © Дмитрий Чебаненко / предоставлена Rhizome
Бутик-отель Заонежье Фотография © Дмитрий Чебаненко / предоставлена Rhizome
Бутик-отель Заонежье
Фотография © Дмитрий Чебаненко / предоставлена Rhizome
Бутик-отель Заонежье Фотография © Дмитрий Чебаненко / предоставлена Rhizome
Бутик-отель Заонежье
Фотография © Дмитрий Чебаненко / предоставлена Rhizome
Бутик-отель Заонежье © Rhizome
Бутик-отель Заонежье
© Rhizome
Бутик-отель Заонежье © Rhizome
Бутик-отель Заонежье
© Rhizome
Бутик-отель Заонежье © Rhizome
Бутик-отель Заонежье
© Rhizome
Бутик-отель Заонежье © Rhizome
Бутик-отель Заонежье
© Rhizome
Бутик-отель Заонежье © Rhizome
Бутик-отель Заонежье
© Rhizome