Размещено на портале Архи.ру (www.archi.ru)

21.04.2025

Славянский мотив

Объект:
«Slavic» bakery
Адрес:
Россия, Старый Оскол. микрорайон Космос, 1Д
Мастерская:
Архитектурное бюро «Лепо»
Авторский коллектив:
Руководитель: Андреев Михаил
Руководитель: Аржанов Артем
Дизайнер: Сердюк Яна

По проекту бюро «Лепо» в Старом Осколе открылась пекарня, которая оживила советский микрорайон: за стенами обычного торгового павильона скрывается интерьер с декоративными подзорами, мозаичными стенами и сочным терракотовым цветом.

Описание предоставлено архитекторами


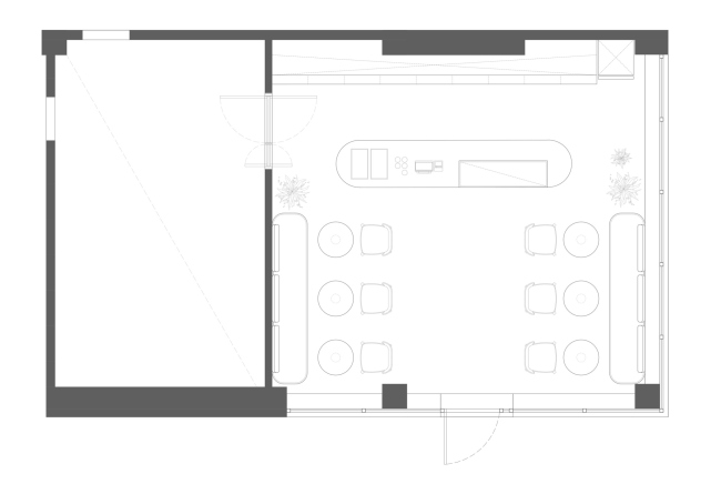
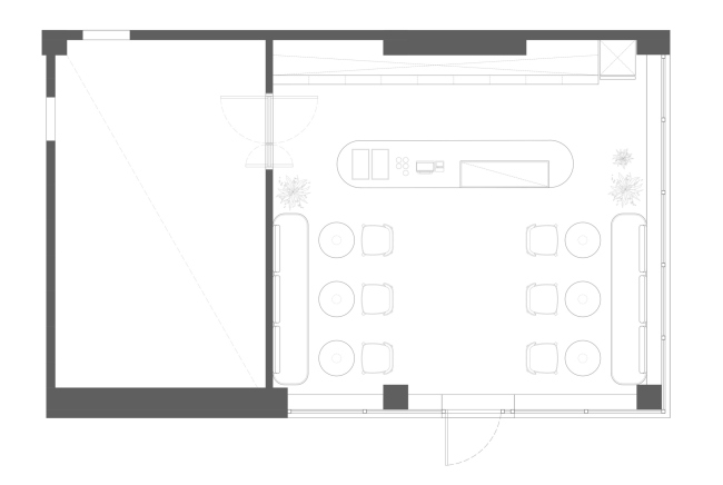
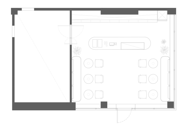
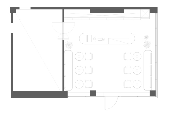
Пекарня открылась в небольшом павильоне, построенном рядом с жилым районом советской застройки и двумя парками. Уютный интерьер побуждает задержаться внутри чуть дольше, чем обычно.

«Slavic» bakery
«Slavic» bakery
Фотография © Анастасия Кобелева / предоставлена Архитектурное бюро «Лепо»
«Slavic» bakery
«Slavic» bakery
© Архитектурное бюро «Лепо»

Основным покрытием стен служит фактурная штукатурка цвета свежего льна, которую дополняет легкий узор настенного «ковра» из мозаики. Спокойное пространство оживляет терракотовый оттенок жженой глины. Объемные элементы славянского орнамента выполнены в виде декоративного подзора. Компаньоном выступают деревянные детали и предметы интерьера, дополняющие общее настроение пекарни.
«Slavic» bakery
«Slavic» bakery
Фотография © Анастасия Кобелева / предоставлена Архитектурное бюро «Лепо»
«Slavic» bakery
«Slavic» bakery
Фотография © Анастасия Кобелева / предоставлена Архитектурное бюро «Лепо»
«Slavic» bakery Фотография © Анастасия Кобелева / предоставлена Архитектурное бюро «Лепо»
«Slavic» bakery
Фотография © Анастасия Кобелева / предоставлена Архитектурное бюро «Лепо»
«Slavic» bakery Фотография © Анастасия Кобелева / предоставлена Архитектурное бюро «Лепо»
«Slavic» bakery
Фотография © Анастасия Кобелева / предоставлена Архитектурное бюро «Лепо»
«Slavic» bakery Фотография © Анастасия Кобелева / предоставлена Архитектурное бюро «Лепо»
«Slavic» bakery
Фотография © Анастасия Кобелева / предоставлена Архитектурное бюро «Лепо»