Размещено на портале Архи.ру (www.archi.ru)

15.05.2025

Место ожидания

Объект:
Концепт модульной автостанции
Адрес:
Россия,
Мастерская:
Архитектурная студия GRAD
Авторский коллектив:
Руководитель проектов: Николай Покровский 
Архитектор: Ангелина Пархаева 

Архитектурная студия GRAD совместно с НПО «Новая конструкция» разработала концепцию автостанции, которую можно использовать для развития внутреннего туризма. За счет модульных алюминиевых фасадов и стального несущего каркаса здание строится быстро, вмещает необходимый набор функциональных помещений, а также предлагает запоминающийся образ, который при этом может вписаться почти в любой контекст.

Описание предоставлено архитекторами

Популярность внутреннего туризма набирает обороты, а повышение качества дорожного сервиса требует новых подходов к организации доступных, комфортных и современных транспортных объектов. Архитектурная студия GRAD задумалась над вопросом – какими должны быть современные автостанции в городах России – и предложили свое видение развития транспортной инфраструктуры, основываясь на передовых инженерных решениях и технологиях. Одним из перспективных направлений такого строительства является внедрение модульных решений быстровозводимых зданий вокзалов и автостанций.

Концепт модульной автостанции
Концепт модульной автостанции
© Архитектурная студия GRAD

Здание автостанции разработано совместно с НПО «Новая конструкция» на базе технологии быстровозводимых модульных конструкций Panablock. Эта технология, следуя принципам устойчивого развития, позволяет собирать здания по принципу LEGO, используя элементы модульного фасада на основе алюминия и стального несущего каркаса.
Концепт модульной автостанции. Конструктивная схема здания
Концепт модульной автостанции. Конструктивная схема здания
© Архитектурная студия GRAD
Концепт модульной автостанции. Общий вид автостанции
Концепт модульной автостанции. Общий вид автостанции
© Архитектурная студия GRAD
Концепт модульной автостанции. Схема размещения навесного сетчатого фасада
Концепт модульной автостанции. Схема размещения навесного сетчатого фасада
© Архитектурная студия GRAD
Концепт модульной автостанции. Схема размещения навесного сетчатого фасада
Концепт модульной автостанции. Схема размещения навесного сетчатого фасада
© Архитектурная студия GRAD

Форма здания, отсылая к образу транспортных контейнеров и монументальности общественных учреждений, создает динамичный и запоминающийся облик, формируя силуэт современного транспортного узла. Внешняя оболочка подчеркивает функциональность каждого этажа: входная группа с залом ожидания максимально остеклена и открыта городу, а второй этаж, доминируя и консольно нависая над перроном, создает яркий акцент и точку общественного притяжения. Плотный сетчатый фасад скрывает административные и технологические помещения.
Концепт модульной автостанции
Концепт модульной автостанции
© Архитектурная студия GRAD
Концепт модульной автостанции
Концепт модульной автостанции
© Архитектурная студия GRAD
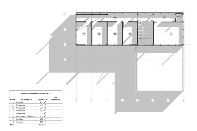
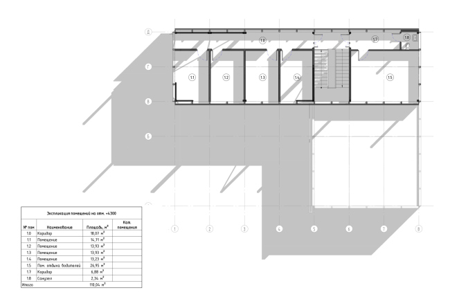
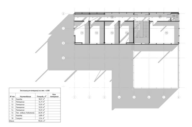
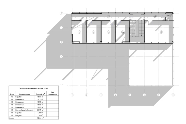
Концепт модульной автостанции. План на отметке +4.300
Концепт модульной автостанции. План на отметке +4.300
© Архитектурная студия GRAD
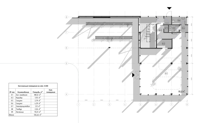
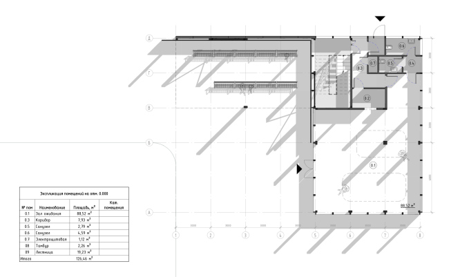
Концепт модульной автостанции. План на отметке 0.000
Концепт модульной автостанции. План на отметке 0.000
© Архитектурная студия GRAD

Фактурность стен и оболочек дополнена уникальным принтом, нанесенным на поверхность здания в виде сквозной перфорации. При необходимости дизайн и рисунок узоров могут быть изменены, отражая дизайн-код и характер конкретной локации.
Концепт модульной автостанции
Концепт модульной автостанции
© Архитектурная студия GRAD

История проекта началась с финала и третьей премии в Алюминиевом конкурсе, проводившемся под эгидой Алюминиевой ассоциации и САР в 2023 году. В дальнейшем, взаимодействуя с компанией «Русал» и ее партнерами, в частности, с НПО «Новая конструкция», на основе исходных данных и технического задания Министерства транспорта РФ был разработан этот концептуальный проект.