Размещено на портале Архи.ру (www.archi.ru)

14.04.2025

Убежище архитектора

Объект:
Дом Большое Гнездо
Адрес:
Россия, Московская Область ,
Мастерская:
Quatrobase
Авторский коллектив:
Илья Хомяков, Света Хомякова 

Отделка интерьеров: Роман Виталюев
Столярные изделия: Александр Новиков

Собственный дом архитекторов студии Quatrobase в Московской области изобретателен и включает множество нестандартных решений: двусветную гостиную при каркасной технологии строительства, темный фасад и контрастные окна, а также целый ряд интерьерных и технических находок.

Описание предоставлено архитекторами

Работа с архитектурой и конфигурацией пространства дает большую свободу в создании интерьера. Проект этого дома определили такие элементы интерьера как второй свет в гостиной и акцентный камин. 
Дом Большое Гнездо
Дом Большое Гнездо
Фотография © Сергей Ананьев, стилист: Наталья Онуфрейчук / предоставлена Quatrobase
Дом Большое Гнездо
Дом Большое Гнездо
Фотография © Сергей Ананьев, стилист: Наталья Онуфрейчук / предоставлена Quatrobase
Дом каркасный и предназначен для круглогодичного проживания. Толщина утеплителя в стенах – 250 мм, на крыше – 500 мм. Сочный темный цвет фасадов в сочетании с лимонными рамами выделяет дом на фоне остальных. 
Дом Большое Гнездо
Дом Большое Гнездо
Фотография © Сергей Ананьев, стилист: Наталья Онуфрейчук / предоставлена Quatrobase

Главный фасад обращен на юго-восток так, чтобы с утра солнце ярко освещало веранду, а после обеда она оставалась в ажурной тени: солнце подсвечивает ее по касательной через перголу. Перед террасой – ровная площадка для игр на свежем воздухе. Внутри остекления этого фасада расположен большой экран домашнего кинотеатра, который закрывает нижние окна в развернутом виде. Проектор прячется в одном из верхних шкафчиков кухни.
Дом Большое Гнездо Фотография © Сергей Ананьев, стилист: Наталья Онуфрейчук / предоставлена Quatrobase
Дом Большое Гнездо
Фотография © Сергей Ананьев, стилист: Наталья Онуфрейчук / предоставлена Quatrobase
Дом Большое Гнездо Фотография © Сергей Ананьев, стилист: Наталья Онуфрейчук / предоставлена Quatrobase
Дом Большое Гнездо
Фотография © Сергей Ананьев, стилист: Наталья Онуфрейчук / предоставлена Quatrobase

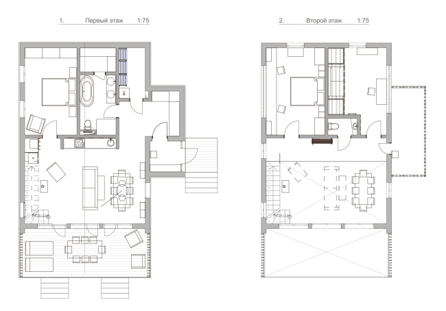
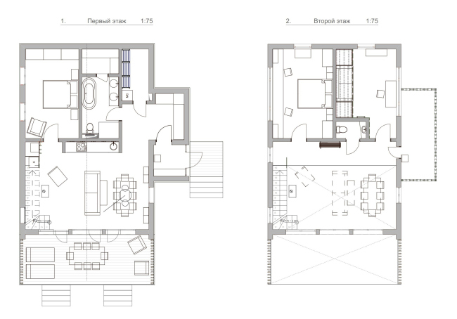
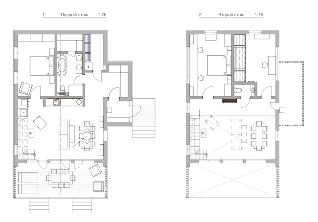
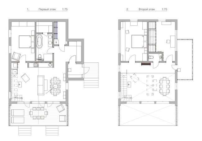
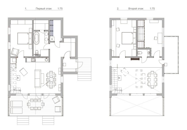
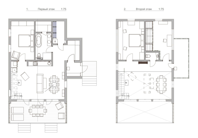
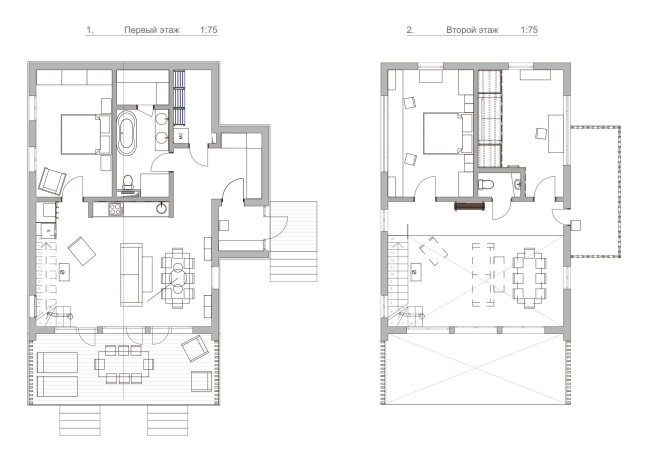
Общая площадь дома – 140 м2. На двух этажах умещаются три спальни, два санузла, большая двусветная кухня-гостиная, сауна и бойлерная. Практически вся мебель сделана по эскизам архитекторов и специально для проекта. Лестница со встроенной системой хранения и большая рабочая столешница в мастер-спальне были придуманы в момент проектирования дома и стали продолжением архитектуры. На фасадах серийных шкафов в технике УФ-печати нанесли различные изображения. Цилиндры из картона на потолке кухни – декоративный элемент, который поддерживает ритм, заданный и в архитектуре. Этой же задаче служит перфорация в мебели. ​Люстру на потолке гостиной украшают стабилизированные растения.
Дом Большое Гнездо
Дом Большое Гнездо
© Quatrobase

Дом Большое Гнездо Фотография © Сергей Ананьев, стилист: Наталья Онуфрейчук / предоставлена Quatrobase
Дом Большое Гнездо
Фотография © Сергей Ананьев, стилист: Наталья Онуфрейчук / предоставлена Quatrobase
Дом Большое Гнездо Фотография © Сергей Ананьев, стилист: Наталья Онуфрейчук / предоставлена Quatrobase
Дом Большое Гнездо
Фотография © Сергей Ананьев, стилист: Наталья Онуфрейчук / предоставлена Quatrobase
Дом Большое Гнездо Фотография © Сергей Ананьев, стилист: Наталья Онуфрейчук / предоставлена Quatrobase
Дом Большое Гнездо
Фотография © Сергей Ананьев, стилист: Наталья Онуфрейчук / предоставлена Quatrobase
Дом Большое Гнездо Фотография © Сергей Ананьев, стилист: Наталья Онуфрейчук / предоставлена Quatrobase
Дом Большое Гнездо
Фотография © Сергей Ананьев, стилист: Наталья Онуфрейчук / предоставлена Quatrobase
Дом Большое Гнездо Фотография © Сергей Ананьев, стилист: Наталья Онуфрейчук / предоставлена Quatrobase
Дом Большое Гнездо
Фотография © Сергей Ананьев, стилист: Наталья Онуфрейчук / предоставлена Quatrobase
Дом Большое Гнездо Фотография © Сергей Ананьев, стилист: Наталья Онуфрейчук / предоставлена Quatrobase
Дом Большое Гнездо
Фотография © Сергей Ананьев, стилист: Наталья Онуфрейчук / предоставлена Quatrobase
Дом Большое Гнездо Фотография © Сергей Ананьев, стилист: Наталья Онуфрейчук / предоставлена Quatrobase
Дом Большое Гнездо
Фотография © Сергей Ананьев, стилист: Наталья Онуфрейчук / предоставлена Quatrobase
Дом Большое Гнездо Фотография © Сергей Ананьев, стилист: Наталья Онуфрейчук / предоставлена Quatrobase
Дом Большое Гнездо
Фотография © Сергей Ананьев, стилист: Наталья Онуфрейчук / предоставлена Quatrobase
Дом Большое Гнездо Фотография © Сергей Ананьев, стилист: Наталья Онуфрейчук / предоставлена Quatrobase
Дом Большое Гнездо
Фотография © Сергей Ананьев, стилист: Наталья Онуфрейчук / предоставлена Quatrobase
Дом Большое Гнездо Фотография © Сергей Ананьев, стилист: Наталья Онуфрейчук / предоставлена Quatrobase
Дом Большое Гнездо
Фотография © Сергей Ананьев, стилист: Наталья Онуфрейчук / предоставлена Quatrobase
Дом Большое Гнездо Фотография © Сергей Ананьев, стилист: Наталья Онуфрейчук / предоставлена Quatrobase
Дом Большое Гнездо
Фотография © Сергей Ананьев, стилист: Наталья Онуфрейчук / предоставлена Quatrobase
Дом Большое Гнездо Фотография © Сергей Ананьев, стилист: Наталья Онуфрейчук / предоставлена Quatrobase
Дом Большое Гнездо
Фотография © Сергей Ананьев, стилист: Наталья Онуфрейчук / предоставлена Quatrobase
 
Большой по площади участок, прилегающий к дому, разделили на несколько зон: огород, лужайки и декоративный сад с хвойными и кустами. Также на участке есть две скульптуры из кортена: вторая сделана из вырезанной части первой. 

Дом Большое Гнездо Фотография © Сергей Ананьев, стилист: Наталья Онуфрейчук / предоставлена Quatrobase
Дом Большое Гнездо
Фотография © Сергей Ананьев, стилист: Наталья Онуфрейчук / предоставлена Quatrobase
Дом Большое Гнездо Фотография © Сергей Ананьев, стилист: Наталья Онуфрейчук / предоставлена Quatrobase
Дом Большое Гнездо
Фотография © Сергей Ананьев, стилист: Наталья Онуфрейчук / предоставлена Quatrobase