Размещено на портале Архи.ру (www.archi.ru)

28.02.2025

Долгожданный герой

Анна Старостина
Объект:
Публичная библиотека NoBo в Боулдере
Адрес:
США, None, Боулдер.
Мастерская:
WORKac

Открытия библиотеки в своем районе жители Северного Боулдера в штате Колорадо ждали больше 25 лет. Архитекторы WORKac создали для них удобный и гостеприимный общественный центр.

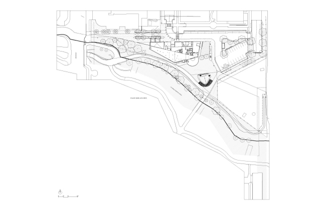
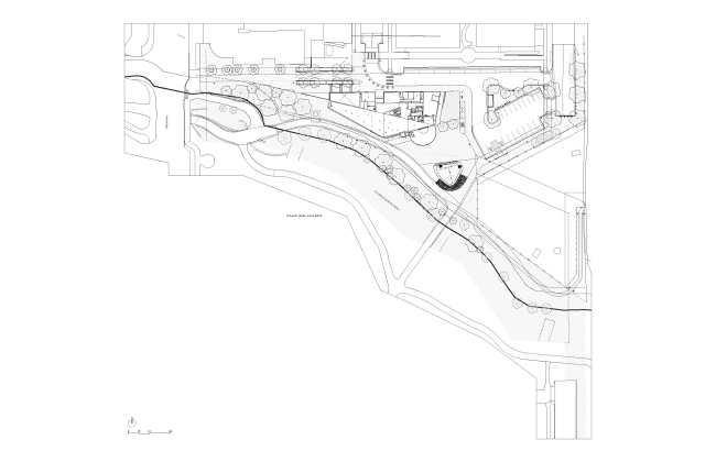
Город Боулдер находится недалеко от Денвера – административного центра штата Колорадо. Именно здесь сближаются две знаковые для североамериканского континента географические зоны: плато Великие равнины и горная система Скалистых гор. Расположение на отметке около 1600 м над уровнем моря, обилие солнечных дней, разнообразные трекинговые маршруты и широкие возможности для отдыха и занятий спортом на природе, наличие крупного университета и прогрессивно настроенное население помогли Боулдеру заработать репутацию благополучного, динамично развивающегося и весьма комфортного для жизни города.

Публичная библиотека NoBo в Боулдере
Публичная библиотека NoBo в Боулдере
Фотография © Bruce Damonte / предоставлена агентством The Architecture Curator
Публичная библиотека NoBo в Боулдере
Публичная библиотека NoBo в Боулдере
Фотография © Bruce Damonte / предоставлена агентством The Architecture Curator
Публичная библиотека NoBo в Боулдере
Публичная библиотека NoBo в Боулдере
Фотография © Bruce Damonte / предоставлена агентством The Architecture Curator
Публичная библиотека NoBo в Боулдере
Публичная библиотека NoBo в Боулдере
Фотография © Bruce Damonte / предоставлена агентством The Architecture Curator

Именно поэтому архитекторы нью-йоркского бюро WORKac, с 2018 года работавшие здесь над проектом нового филиала городской публичной библиотеки, начали с внимательного изучения пожеланий и потребностей активного местного сообщества. Процесс занял около 3 лет и состоял из множества дискуссий, консультаций, презентаций, воркшопов и других публичных мероприятий.
Публичная библиотека NoBo в Боулдере
Публичная библиотека NoBo в Боулдере
Фотография © Bruce Damonte / предоставлена агентством The Architecture Curator
Публичная библиотека NoBo в Боулдере
Публичная библиотека NoBo в Боулдере
Фотография © Bruce Damonte / предоставлена агентством The Architecture Curator
Публичная библиотека NoBo в Боулдере
Публичная библиотека NoBo в Боулдере
Фотография © Bruce Damonte / предоставлена агентством The Architecture Curator
Публичная библиотека NoBo в Боулдере
Публичная библиотека NoBo в Боулдере
Фотография © Bruce Damonte / предоставлена агентством The Architecture Curator

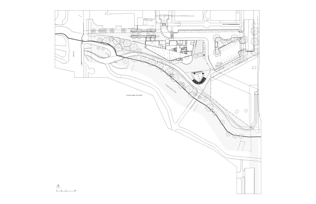
Городские власти выделили под новое учреждение участок почти треугольной формы, который соединяет несколько жилых кварталов и обладает хорошей транспортной доступностью. Рядом обширная зеленая зона, а также живописный ручей, пересыхающий в жаркий сезон; в качестве бонуса – эффектные виды на горную гряду. Сам двухэтажный объем библиотеки гармонично вписан в ландшафт и следует форме участка. Многократно повторяющийся мотив треугольника делает относительно небольшое здание (чуть менее 1200 м2 общей площади) чрезвычайно динамичным.
Публичная библиотека NoBo в Боулдере
Публичная библиотека NoBo в Боулдере
Фотография © Bruce Damonte / предоставлена агентством The Architecture Curator
Публичная библиотека NoBo в Боулдере
Публичная библиотека NoBo в Боулдере
Фотография © Bruce Damonte / предоставлена агентством The Architecture Curator
Публичная библиотека NoBo в Боулдере
Публичная библиотека NoBo в Боулдере
Фотография © Bruce Damonte / предоставлена агентством The Architecture Curator

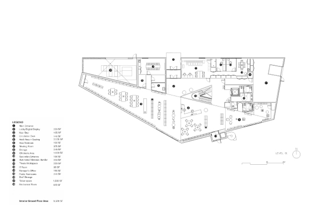
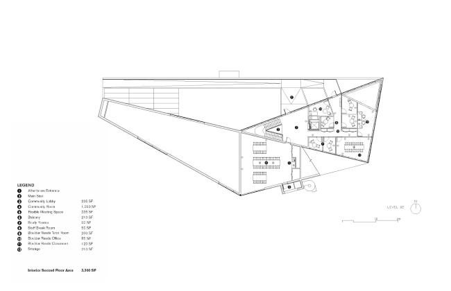
На втором этаже сосредоточены в основном общественные помещения (библиотека служит базой для муниципальной программы поддержки и развития у горожан навыков и привычки к чтению, а также для различных практических занятий, включая ремесла, шитье, дизайн и т. д.), а еще специальные классы для изучения английского языка как иностранного, предназначенные для большого испаноязычного сообщества района Северный Боулдер. Сюда прямо с улицы можно попасть по специальному пандусу, так что общественные пространства «работают» и в вечернее время, когда сама библиотека закрыта.
Публичная библиотека NoBo в Боулдере
Публичная библиотека NoBo в Боулдере
Фотография © Bruce Damonte / предоставлена агентством The Architecture Curator
Публичная библиотека NoBo в Боулдере
Публичная библиотека NoBo в Боулдере
Фотография © Bruce Damonte / предоставлена агентством The Architecture Curator
Публичная библиотека NoBo в Боулдере
Публичная библиотека NoBo в Боулдере
Фотография © Bruce Damonte / предоставлена агентством The Architecture Curator

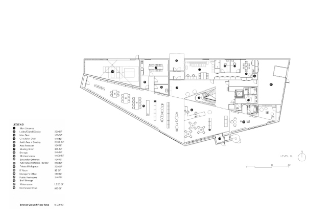
Отдельных входов предусмотрено целых четыре, что обеспечивает гибкость использования здания и тесную связь с окружением. Читальный зал расположен на нижнем уровне: вдоль южного фасада, выходящего на горы и ручей. Зал разделен на взрослую и детскую зоны, в последней архитекторы установили канат для лазанья и внешнюю горку, по которой можно скатиться вниз. А в северо-западном углу устроили специальное пространство для кулинарных мастер-классов и самостоятельной готовки с использованием овощей и трав, выращенных в собственном огородике рядом.
Публичная библиотека NoBo в Боулдере Фотография © Bruce Damonte / предоставлена агентством The Architecture Curator
Публичная библиотека NoBo в Боулдере
Фотография © Bruce Damonte / предоставлена агентством The Architecture Curator
Публичная библиотека NoBo в Боулдере Фотография © Bruce Damonte / предоставлена агентством The Architecture Curator
Публичная библиотека NoBo в Боулдере
Фотография © Bruce Damonte / предоставлена агентством The Architecture Curator
Публичная библиотека NoBo в Боулдере Фотография © Bruce Damonte / предоставлена агентством The Architecture Curator
Публичная библиотека NoBo в Боулдере
Фотография © Bruce Damonte / предоставлена агентством The Architecture Curator
Публичная библиотека NoBo в Боулдере
Публичная библиотека NoBo в Боулдере
Фотография © Bruce Damonte / предоставлена агентством The Architecture Curator

Большое внимание уделили современному искусству: на пандусе установили звуковую инсталляцию «Облака» монреальской студии Daily tous les jours. Это произведение чутко реагирует на движение поднимающегося или спускающегося посетителя. А внутри использованы обои дизайнера Эндрю Фримана, для которых он подобрал старые фотографии из городского архива. Яркие цветовые акценты, в частности, любимый архитекторами WORKac травянистый зеленый, который они применили и в своей библиотеке района Кью-Гарденс-Хиллс в Квинсе, уравновешиваются нейтральным и спокойным общим фоном.
Публичная библиотека NoBo в Боулдере
Публичная библиотека NoBo в Боулдере
© WORKac / предоставлено агентством The Architecture Curator
Публичная библиотека NoBo в Боулдере
Публичная библиотека NoBo в Боулдере
© WORKac / предоставлено агентством The Architecture Curator
Публичная библиотека NoBo в Боулдере
Публичная библиотека NoBo в Боулдере
© WORKac / предоставлено агентством The Architecture Curator
Публичная библиотека NoBo в Боулдере © WORKac / предоставлено агентством The Architecture Curator
Публичная библиотека NoBo в Боулдере
© WORKac / предоставлено агентством The Architecture Curator
Публичная библиотека NoBo в Боулдере © WORKac / предоставлено агентством The Architecture Curator
Публичная библиотека NoBo в Боулдере
© WORKac / предоставлено агентством The Architecture Curator
Публичная библиотека NoBo в Боулдере © WORKac / предоставлено агентством The Architecture Curator
Публичная библиотека NoBo в Боулдере
© WORKac / предоставлено агентством The Architecture Curator
Публичная библиотека NoBo в Боулдере © WORKac / предоставлено агентством The Architecture Curator
Публичная библиотека NoBo в Боулдере
© WORKac / предоставлено агентством The Architecture Curator
Публичная библиотека NoBo в Боулдере © WORKac / предоставлено агентством The Architecture Curator
Публичная библиотека NoBo в Боулдере
© WORKac / предоставлено агентством The Architecture Curator
Публичная библиотека NoBo в Боулдере © WORKac / предоставлено агентством The Architecture Curator
Публичная библиотека NoBo в Боулдере
© WORKac / предоставлено агентством The Architecture Curator
Публичная библиотека NoBo в Боулдере © WORKac / предоставлено агентством The Architecture Curator
Публичная библиотека NoBo в Боулдере
© WORKac / предоставлено агентством The Architecture Curator