Размещено на портале Архи.ру (www.archi.ru)

04.03.2025

Проектирование доступной среды: 3 бесплатных способа облегчить себе работу

Мастерская:
Доступная страна

Создание доступной среды для маломобильных групп населения – обязательная задача при проектировании объектов. Однако сложности с нормативными требованиями и отсутствие опыта могут стать серьезным препятствием. Как справиться с этими вызовами? Компания «Доступная страна» предлагает проектировщикам и дизайнерам целый ряд решений.

Все вновь проектируемые объекты социальной инфраструктуры должны быть доступны для маломобильных посетителей. Разработка доступной среды обязательна при проектировании:
 
объектов здравоохранения, образования, культуры, отдыха, спорта, социально-культурного и коммунально-бытового назначения; 
объектов транспорта, торговли, общественного питания; 
объектов делового, административного, финансового, религиозного назначения; 
объектов жилищного фонда.
Что делать, если проектирование доступной среды представляет трудности?
 
Лучший способ решения любой проблемы – обратиться к экспертам. Обычно их консультации дорогостоящи, однако именно в отрасли доступной среды на данный момент сформировался феномен: консультацию ведущих экспертов можно получить совершенно бесплатно. Это стало возможным из-за того, что данная сфера имеет острую социальную значимость. 
 
Один из самых экспертных участников рынка доступной среды в России – компания «Доступная страна». Организация имеет статус социального предприятия и уже более 12 лет безвозмездно занимается популяризацией темы правильного обеспечения доступности. На сегодня любой проектировщик или дизайнер интерьера может обратиться в компанию «Доступная страна» и существенно облегчить себе выполнение задач по проектированию доступной среды.  
 
Эксперты компании «Доступная страна» работают с проектирующими организациями по трем направлениям. Вы можете выбрать что-то одно, а можете воспользоваться всеми имеющимися возможностями.
Изображение предоставлено компанией «Доступная страна»
 
1. Закажите бесплатный проект по доступной среде 
 
Вы можете на регулярной основе обращаться к экспертам компании «Доступная страна» и бесплатно получать индивидуальные чертежи с правильной расстановкой оборудования по доступной среде для каждого своего объекта.
 
Также вы можете отдавать собственные проекты на проверку соответствия нормам по доступной среде и получать обратную связь и рекомендации по устранению недочетов.
 
За 2024 год экспертами компании «Доступная страна» было реализовано более 1000 бесплатных проектов для самых разных объектов социальной инфраструктуры. Наиболее популярны запросы на проектирование санузлов для МГН и расстановку тактильного оборудования.
 Изображение предоставлено компанией «Доступная страна»
Изображение предоставлено компанией «Доступная страна»
 Изображение предоставлено компанией «Доступная страна»
Изображение предоставлено компанией «Доступная страна»
 Изображение предоставлено компанией «Доступная страна»
Изображение предоставлено компанией «Доступная страна»
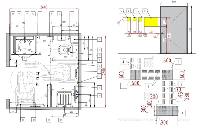
2. Воспользуйтесь готовыми DWG-чертежами 
 
Ряд нормативов по доступной среде регламентированы настолько, что их можно выделить в типовые сценарии оснащения. Так, в санузлах для МГН при определенном расположении унитаза необходимо выбирать соответствующий набор поручней. 
 
На сайте компании «Доступная страна» размещена бесплатная Библиотека проектировщика. Здесь собраны DWG чертежи нормативного оборудования для МГН и готовые планировочные решения для типовых сценариев адаптации. Их можно встроить в свой проект, внеся, при необходимости, коррективы. Библиотека регулярно пополняется новыми чертежами.
 
Помимо чертежей здесь также представлены ссылки на методические пособия, ссылки на записи вебинаров, актуальные версии нормативных актов и другая полезная информация. 
Изображение предоставлено компанией «Доступная страна»
3. Повышайте свою квалификацию с помощью понятных и наглядных материалов

В нашей стране, к сожалению, отсутствует системная и глубокая подготовка специалистов по доступной среде. Предполагается, что архитектор сам разберется со всеми нормативными требованиями и включит их в свой проект. Однако практика показывает, что сориентироваться в множестве законодательных актов, написанных тяжелым канцелярским языком, бывает очень непросто. И еще тяжелее – перенести типовые требования на реальные объекты. 
 
Компания «Доступная страна» регулярно помогает проектировщикам и дизайнерам интерьеров повышать свою квалификацию. При этом вы можете выбрать наиболее удобный формат взаимодействия:  
 
Обучающие мероприятия.  Эксперты компании регулярно проводят как онлайн-вебинары, так и офлайн-семинары. Участникам мероприятий выдаются именные сертификаты. Обратитесь в компанию за консультацией и оставьте свои контактные данные с пометкой о том, что занимаетесь проектированием. Вас обязательно пригласят на очередное обучающее мероприятие для проектировщиков.
 
Методические пособия. Главное их отличие в том, что они построены по принципу «единого пространства». Так, например, отдельные элементы оснащения санузлов для МГН регулируются нормами из СП 59.13330.2020, ГОСТ Р 51261-2022, ГОСТ Р 52131-2019, ГОСТ Р 51671-2020, СП 136.13330.2012, СП 118.13330.2022. В методических материалах по санузлам для МГН все эти нормы объединены, упорядочены, проиллюстрированы и даны со ссылками на нужные пункты нормативных актов.
 
В настоящее время в свободном доступе имеются следующие методические пособия от компании «Доступная страна»:

Изображение предоставлено компанией «Доступная страна»

Кейсы для проектировщиков. Разбор примеров из практики помогает понять принципы обустройства доступной среды, способствует развитию насмотренности и формирует базу приемов адаптации, которую в дальнейшем можно использовать в собственных проектах. Кейсы от компании «Доступная страна» регулярно рассылаются проектировщикам и публикуются на сайте. Это отличный способ перенять экспертный опыт и повысить собственную компетентность в области проектирования доступной среды. 
 Изображение предоставлено компанией «Доступная страна»
Изображение предоставлено компанией «Доступная страна»
 Изображение предоставлено компанией «Доступная страна»
Изображение предоставлено компанией «Доступная страна»
 Изображение предоставлено компанией «Доступная страна»
Изображение предоставлено компанией «Доступная страна»
Каких трудностей можно избежать, обратившись к экспертам
 
Вам не придется изучать множество нормативов. Законодательная база по доступной среде обширна и рассредоточена по множеству документов. Так, например, ГОСТ Р 52875 устанавливает общие правила обустройства тактильных наземных указателей (ТНУ), но только в ГОСТ Р 59812 рассмотрен частный случай размещения ТНУ при наличии нескольких дверей на входе. Проанализировав ваш проект, эксперт поможет разработать меры адаптации, которые точно нужны на вашем объекте. 
 
Вам не придется разбирать противоречивые данные. Современные стандарты доступной среды стали разрабатывать с 2012 года, и за это время нормативная база несколько раз менялась. Однако изменения происходят неравномерно, вследствие чего в документах встречаются противоречия. Так, например, при оснащении квартир для людей с инвалидностью используют действующее Постановление Правительства РФ от 09.07.2016 №649. Однако в данном документе приведены требования из устаревшего СП 59.13330.2016, поэтому применять его можно только с поправкой на новый СП 59.13330.2020. Чтобы соотнести данные из разных источников, отсечь устаревшие нормативы и установить приоритетность использования правил адаптации, требуется их глубокое понимание, поэтому лучше привлечь к этому специалистов.  
 
Вам не придется тратить время на поиск подходящего оборудования для МГН. Чтобы правильно заложить в проект оборудование по доступной среде, необходимо понимать его специфику и особенности. Для проектировщиков и дизайнеров интерьера эта область непрофильная, поэтому ошибки при выборе оборудования встречаются достаточно часто. Обращение к экспертам компании «Доступная страна» полностью их исключит и сэкономит вам массу времени.  
Изображение предоставлено компанией «Доступная страна»
Почему «Доступная страна» – это лучший выбор для проектировщиков
 
Компания «Доступная страна» имеет богатейший практический опыт обустройства доступной среды – более 17 600 оснащенных объектов в 89 регионах РФ.  
Руководители компании – эксперты по доступной среде, сертифицированные Всероссийским Обществом Инвалидов (ВОИ). Специалисты компании также прошли обучение и аттестацию по программе ВОИ и регулярно подтверждают свои знания.
Понимание нормативной документации здесь органично сочетается со знанием оборудования для МГН. Эксперты компании не только скажут «как правильно», но и помогут это реализовать, подобрав перечень необходимого оборудования.
Социальная деятельность компании и ее заслуги по развитию доступной среды признаны на самом высоком уровне. «Доступная страна» является обладателем ряда престижных наград, а генеральный директор и соучредитель компании Надежда Чередниченко вошла в Федеральный экспертный Совет по вопросам формирования доступной среды.
 
Уважаемые коллеги, от вашей работы во многом зависит то, как будет выглядеть социальная инфраструктура в будущем. Хочется верить, что она будет открытой и дружелюбной для всех категорий населения независимо от наличия физических ограничений. Теперь вы знаете, как можно реализовать эту задачу минимальными усилиями. 
 
Что бы вы ни выбрали – заказ бесплатного проекта, самостоятельное использование готовых чертежей или повышение собственных компетенций – этот выбор будет правильным и сделает окружающий мир немного доступнее. Эксперты компании «Доступная страна» будут рады поддержать вас на этом пути. Обращайтесь.