Размещено на портале Архи.ру (www.archi.ru)

28.02.2025

Тяга к ремеслу

Объект:
GAIJIN izakaya
Адрес:
Израиль, Тель-Авив. Lilienblum Street 29
Мастерская:
KIDZ
Авторский коллектив:
Архитекторы: Екатерина Тарасова, Валерия Джигиль, Татьяна Курочкина

По проекту бюро KIDZ в Тель-Авиве открылась нео-изакая. Учитывая равнодушие горожан к сложным дизайнерским решениям, архитекторы сосредоточились на материалах, освещении и мебели. Такой подход соотносится с японскими понятиями «шокунин» и «коадавари», означающими искусного мастера и внимание к деталям. Единственным предметом декора стала лаковая миниатюра, найденная на блошином рынке.

Описание предоставлено архитекторами
 
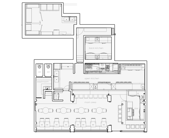
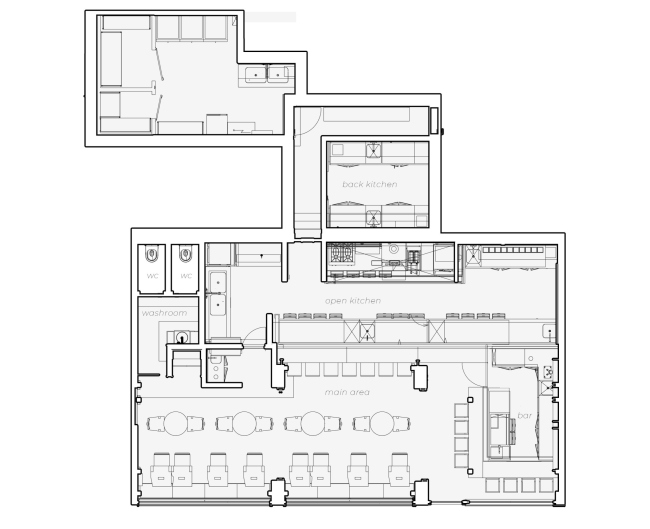
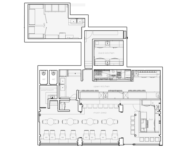
Концепция ресторана Gijin в Тель-Авиве – нео-изакая с японской кухней. Название переводится с японского как «иностранец». 
GAIJIN izakaya
GAIJIN izakaya
Фотография @ Ido Adan / предоставлена KIDZ
GAIJIN izakaya
GAIJIN izakaya
@ KIDZ
GAIJIN izakaya
GAIJIN izakaya
@ KIDZ

Чтобы проникнуться атмосферой Тель-Авива и понять его, команда KIDZ отправилась в город. Исследование показало, что дизайн зачастую играет второстепенную роль, уступая месту процессу. Это дало студии понимание, что интерьер должен гармонично дополнять кухню и не отвлекать внимание от блюд. Поэтому акцент был сделан на освещении, фактурах и естественных материалах, создающих спокойную и ненавязчивую атмосферу.
GAIJIN izakaya
GAIJIN izakaya
Фотография @ Ido Adan / предоставлена KIDZ
GAIJIN izakaya
GAIJIN izakaya
Фотография @ Ido Adan / предоставлена KIDZ

Вдохновением для дизайна стали японские понятия шокунин (искусный мастер) и коадавари (внимание к деталям). В основе интерьера – натуральные материалы и текстуры: каменная плитка, фактурная штукатурка, выполненные с нарочитой грубостью. Эти элементы передают ремесленность, недосказанность и эффект ручной работы, отражая идею шокунина.
GAIJIN izakaya
GAIJIN izakaya
Фотография @ Ido Adan / предоставлена KIDZ
GAIJIN izakaya
GAIJIN izakaya
Фотография @ Ido Adan / предоставлена KIDZ

Концепция коадавари, в свою очередь, воплотилась в общей гармонии и минимализме: ортогональные линии, стоечно-балочная конструкция и лаконичная мебель подчеркивают простоту и чистоту интерьера. Команда KIDZ также разработала оригинальную двухуровневую конструкцию с продуманными соединениями, а всю мебель создала специально для этого проекта. Завершающим акцентом стали найденные на барахолке лаковые миниатюры, которые, хотя и не имели азиатских мотивов, добавили аутентичности и ремесленной глубины. Для усиления брутального эффекта были использованы металлические колонны из старых швеллеров с подсветкой, что придало интерьеру особый характер и завершенность.
 
GAIJIN izakaya Фотография @ Ido Adan / предоставлена KIDZ
GAIJIN izakaya
Фотография @ Ido Adan / предоставлена KIDZ
GAIJIN izakaya Фотография @ Ido Adan / предоставлена KIDZ
GAIJIN izakaya
Фотография @ Ido Adan / предоставлена KIDZ
GAIJIN izakaya Фотография @ Ido Adan / предоставлена KIDZ
GAIJIN izakaya
Фотография @ Ido Adan / предоставлена KIDZ
GAIJIN izakaya Фотография @ Ido Adan / предоставлена KIDZ
GAIJIN izakaya
Фотография @ Ido Adan / предоставлена KIDZ
GAIJIN izakaya Фотография @ Ido Adan / предоставлена KIDZ
GAIJIN izakaya
Фотография @ Ido Adan / предоставлена KIDZ
GAIJIN izakaya Фотография @ Ido Adan / предоставлена KIDZ
GAIJIN izakaya
Фотография @ Ido Adan / предоставлена KIDZ

Команда спроектировала мебель и конструкции дистанционно, предусмотрев возможные сложности монтажа. 
 
GAIJIN izakaya
GAIJIN izakaya
Фотография @ Ido Adan / предоставлена KIDZ
GAIJIN izakaya
GAIJIN izakaya
Фотография @ Ido Adan / предоставлена KIDZ