Размещено на портале Архи.ру (www.archi.ru)

03.02.2025

Нить Тесея

Объект:
Лобби клубного дома в Хамовниках
Адрес:
Россия, Москва. Ул Фрунзе
Мастерская:
IDEOLOGIST
Авторский коллектив:
Руководитель авторского коллектива: Станислав Москаленский
Ведущий архитектор: Юсукэ Такахаси –
Архитекторы: Елена Хрестич, Алексей Яковец
Концепция проекта: Марина Добринчук
Менеджер проекта: Елизавета Сахарова
Визуализации: София Степанова

В проекте интерьера лобби небольшого клубного дома в Хамовниках бюро Ideologist использует разнообразные отсылки к текстилю, тем самым напоминая о фабричном прошлом района. При этом ткань кроме как в обивке мебели не используется: ассоциативный ряд запускают формы, фактуры и цвета.

Описание предоставлено архитекторами

Ядром концепции стал образ нити и ткани – этот выбор подсказал исторический контекст района Хамовники, ведь на протяжении столетий здесь находился центр текстильного производства. В районе жили ткачи, располагались шелкоткацкие фабрики, создававшие шелк и бархат для дворцовых нужд. Нить – это и метафора жизненного пути: она указывает Тесею путь в лабиринте, сплетается в полотно жизни, напоминает о беге времени. Считывая код ткани в интерьере общественных пространств, жильцы и гости дома будут иметь возможность прикоснуться к истории места и ощутить себя вне времени, замедлиться и насладиться каждой деталью.
Лобби клубного дома в Хамовниках
Лобби клубного дома в Хамовниках
Визуализации © София Степанова / IDEOLOGIST
Лобби клубного дома в Хамовниках
Лобби клубного дома в Хамовниках
Визуализации © София Степанова / IDEOLOGIST

Воплотить идею ткани в дизайне было решено при помощи комбинации разноуровневых планок и параллельных линий, имитирующих плетение. Текстуру поверхностей подчеркивает приглушенный свет, который помогает создать ощущение гладкого блеска и мягкости на материалах, совершенно отличных от собственно ткани и отвечающих всем требованиям пожарной безопасности.
Лобби клубного дома в Хамовниках
Лобби клубного дома в Хамовниках
Визуализации © София Степанова / IDEOLOGIST
Лобби клубного дома в Хамовниках
Лобби клубного дома в Хамовниках
Визуализации © София Степанова / IDEOLOGIST
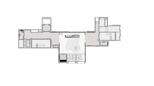
Лобби клубного дома в Хамовниках
Лобби клубного дома в Хамовниках
© IDEOLOGIST

Главным акцентом и украшением лобби является колонна и завершающая ее потолочная композиция, которые по форме напоминают разворачивающийся витками холст в рулоне. Настенное панно за стойкой ресепшн также напоминает натянутые в ткацком станке нити. Оформление лобби сочетает в себе классическую чистоту линий и обтекаемые формы отдельных декоративных элементов.
 
Лобби клубного дома в Хамовниках Визуализации © София Степанова / IDEOLOGIST
Лобби клубного дома в Хамовниках
Визуализации © София Степанова / IDEOLOGIST
Лобби клубного дома в Хамовниках Визуализации © София Степанова / IDEOLOGIST
Лобби клубного дома в Хамовниках
Визуализации © София Степанова / IDEOLOGIST
Лобби клубного дома в Хамовниках Визуализации © София Степанова / IDEOLOGIST
Лобби клубного дома в Хамовниках
Визуализации © София Степанова / IDEOLOGIST
Лобби клубного дома в Хамовниках Визуализации © София Степанова / IDEOLOGIST
Лобби клубного дома в Хамовниках
Визуализации © София Степанова / IDEOLOGIST
Лобби клубного дома в Хамовниках Визуализации © София Степанова / IDEOLOGIST
Лобби клубного дома в Хамовниках
Визуализации © София Степанова / IDEOLOGIST
Лобби клубного дома в Хамовниках Визуализации © София Степанова / IDEOLOGIST
Лобби клубного дома в Хамовниках
Визуализации © София Степанова / IDEOLOGIST
Лобби клубного дома в Хамовниках Визуализации © София Степанова / IDEOLOGIST
Лобби клубного дома в Хамовниках
Визуализации © София Степанова / IDEOLOGIST
Лобби клубного дома в Хамовниках Визуализации © София Степанова / IDEOLOGIST
Лобби клубного дома в Хамовниках
Визуализации © София Степанова / IDEOLOGIST
Лобби клубного дома в Хамовниках Визуализации © София Степанова / IDEOLOGIST
Лобби клубного дома в Хамовниках
Визуализации © София Степанова / IDEOLOGIST