Размещено на портале Архи.ру (www.archi.ru)

24.01.2025

Перевернутая лестница Нового Юга

Анна Старостина
Объект:
Жилой комплекс Scheldehof
Адрес:
Бельгия, None, Антверпен.

Жилой комплекс Scheldehof по проекту Макса Дудлера в Антверпене получил жесткую сетку фасадов из уникального дитфуртского известняка.

Еще с начала 2010-х значимый бельгийский застройщик – семейная компания Triple Living – реализует в Антверпене, на живописном берегу реки Шельды, амбициозный проект жилого квартала Nieuw Zuid – Новый Юг. Свою задачу девелоперы видят не просто в формировании суперсовременной и комфортной среды, а буквально в трансформации «алмазной столицы» в столицу современной архитектуры (достаточно лишь дополнить столь же громкими именами уже имеющиеся в городе здания Захи Хадид и Ричарда Роджерса). Для достижения этой цели заказы по возможности поручаются лауреатам Притцкеровской премии: свои объекты для Nieuw Zuid разрабатывают Сигэру Бан и Дэвид Чипперфильд, шли переговоры с Питером Цумтором и SANAA.

Строятся также здания по проекту бюро Robbrecht en Daem architecten и Винсента ван Дёйсена. Генеральный план всего участка придуман Studio Secchi-Viganò в сотрудничестве с ландшафтными архитекторами BAS Smets.

Жилой комплекс Scheldehof в Антверпене
Жилой комплекс Scheldehof в Антверпене
Фотография © Max Dudler / предоставлено Max Dudler GmbH
Жилой комплекс Scheldehof в Антверпене
Жилой комплекс Scheldehof в Антверпене
Фотография © Max Dudler / предоставлено Max Dudler GmbH
Жилой комплекс Scheldehof в Антверпене Фотография © Max Dudler / предоставлено Max Dudler GmbH
Жилой комплекс Scheldehof в Антверпене
Фотография © Max Dudler / предоставлено Max Dudler GmbH
Жилой комплекс Scheldehof в Антверпене Фотография © Max Dudler / предоставлено Max Dudler GmbH
Жилой комплекс Scheldehof в Антверпене
Фотография © Max Dudler / предоставлено Max Dudler GmbH

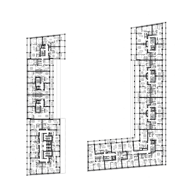
Одним из первых завершенных объектов стал жилой комплекс Scheldehof Макса Дудлера, чей проект сопровождало местное бюро Jaspers-Eyers Architects. ЖК, хотя и не имеет высокого «звездного» статуса, расположен в самом центре района и ясно демонстрирует все основные идеи и устремления масштабной инициативы. Два его среднеэтажных корпуса возведены вокруг просторного и зеленого внутреннего двора, плавно понижающегося и раскрывающегося в сторону набережной. Высотной доминантой служит 80-метровая башня, поставленная на вытянутый прямоугольный объем одного из корпусов.
Жилой комплекс Scheldehof в Антверпене
Жилой комплекс Scheldehof в Антверпене
Фотография © Max Dudler / предоставлено Max Dudler GmbH
Жилой комплекс Scheldehof в Антверпене Фотография © Max Dudler / предоставлено Max Dudler GmbH
Жилой комплекс Scheldehof в Антверпене
Фотография © Max Dudler / предоставлено Max Dudler GmbH
Жилой комплекс Scheldehof в Антверпене Фотография © Max Dudler / предоставлено Max Dudler GmbH
Жилой комплекс Scheldehof в Антверпене
Фотография © Max Dudler / предоставлено Max Dudler GmbH
Жилой комплекс Scheldehof в Антверпене Фотография © Max Dudler / предоставлено Max Dudler GmbH
Жилой комплекс Scheldehof в Антверпене
Фотография © Max Dudler / предоставлено Max Dudler GmbH

Всего здесь 300 квартир, причем каждая снабжена лоджией, балконом или выходом в зимний сад. На нижних этажах размещена офисная зона площадью 2300 м2, магазины и кафе. Все максимально открыто и проницаемо, так что комплекс не отрезает город от Шельды, одной из главных его достопримечательностей.
Жилой комплекс Scheldehof в Антверпене Фотография © Max Dudler / предоставлено Max Dudler GmbH
Жилой комплекс Scheldehof в Антверпене
Фотография © Max Dudler / предоставлено Max Dudler GmbH
Жилой комплекс Scheldehof в Антверпене Фотография © Max Dudler / предоставлено Max Dudler GmbH
Жилой комплекс Scheldehof в Антверпене
Фотография © Max Dudler / предоставлено Max Dudler GmbH
Жилой комплекс Scheldehof в Антверпене
Жилой комплекс Scheldehof в Антверпене
Фотография © Max Dudler / предоставлено Max Dudler GmbH

Главным и по сути единственным дизайнерским решением стала отделка из особого дитфуртского известняка. Светло-серый довольно мягкий камень добывается всего лишь в одном месторождении в Германии и отличается легкостью обработки и однородностью мелкой текстуры. Именно жесткая сетка облицованных камнем фасадов и создает визуальный образ, формируя балконы, лоджии и открытые общественные зоны. Но чтобы дополнительно выделить и подчеркнуть значимость своей работы в масштабе всего города, Дудлер придал башне расширяющуюся форму, которую сам называет «перевернутой лестницей».
Жилой комплекс Scheldehof в Антверпене
Жилой комплекс Scheldehof в Антверпене
Фотография © Max Dudler / предоставлено Max Dudler GmbH
Жилой комплекс Scheldehof в Антверпене
Жилой комплекс Scheldehof в Антверпене
Фотография © Max Dudler / предоставлено Max Dudler GmbH
Жилой комплекс Scheldehof в Антверпене
Жилой комплекс Scheldehof в Антверпене
© Max Dudler GmbH
Жилой комплекс Scheldehof в Антверпене
Жилой комплекс Scheldehof в Антверпене
© Max Dudler GmbH