Размещено на портале Архи.ру (www.archi.ru)

09.01.2025

Алхимия семян

Объект:
Slovno в Мае
Адрес:
Россия, Владимир. ул. Батурина, 20
Мастерская:
Raimer Bureau
Авторский коллектив:
Главный архитектор: Кирилл Раймер 
Дизайнер: Алена Забродина 
Ведущий дизайнер: Виктория Евсеева 
Архитектор: Ангелина Голубева 

Для кофейни Slovno в Мае во Владимире Raimer Bureau сочинило фантазийную лабораторию, которую не ожидаешь встретить в обычном торговом центре: с травами и картотекой специй, колбами и склянками, фактурными поверхностями и винтажной мебелью.

Описание предоставлено архитекторами

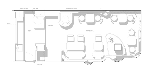
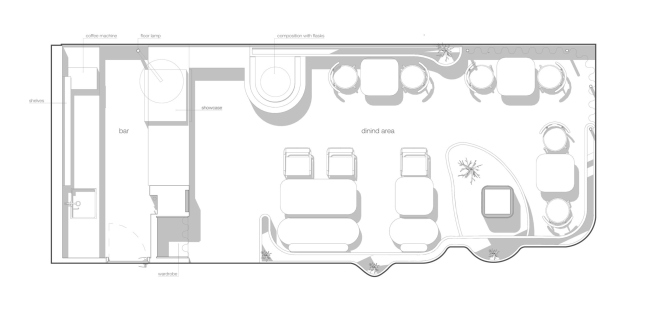
Камерное кафе рассчитано на 12 посетителей. Каждая деталь пространства подчеркивает связь с природой и производственным процессом. Дизайн основан на концепции «лаборатории в полях».
Slovno в Мае
Slovno в Мае
@ Raimer Bureau
Slovno в Мае
Slovno в Мае
@ Raimer Bureau

Остров и барная стойка выполнены из нержавеющей стали, минималистичные линии подчеркивают архитектуру конструкции. Турецкий мрамор с легким жилкованием добавляет устойчивости. В центральной части острова в виде инсталляции размещены стеклянные колбы, мягко подсвеченные и заполненные ярким ликером. 
Slovno в Мае
Slovno в Мае
Фотография @ Мария Войнова / предоставлена Raimer Bureau
Slovno в Мае Фотография @ Мария Войнова / предоставлена Raimer Bureau
Slovno в Мае
Фотография @ Мария Войнова / предоставлена Raimer Bureau
Slovno в Мае Фотография @ Мария Войнова / предоставлена Raimer Bureau
Slovno в Мае
Фотография @ Мария Войнова / предоставлена Raimer Bureau

В конструкцию колонны интегрированы коробочки со специями, оформленные в едином стиле с лаконичными этикетками и описанием. Каждая ниша представляет аромат или вкус, соответствующий кондитерскими изделиями. Это создает интерактивный элемент, открывая гостям доступ к рецептуре.
Slovno в Мае Фотография @ Мария Войнова / предоставлена Raimer Bureau
Slovno в Мае
Фотография @ Мария Войнова / предоставлена Raimer Bureau
Slovno в Мае Фотография @ Мария Войнова / предоставлена Raimer Bureau
Slovno в Мае
Фотография @ Мария Войнова / предоставлена Raimer Bureau

Большинство лесных и луговых растений не выживает в условиях торгового центра. Их удалось удачно заменить фикусами Бенджамина и овсом в виде сухостоя. 
Slovno в Мае Фотография @ Мария Войнова / предоставлена Raimer Bureau
Slovno в Мае
Фотография @ Мария Войнова / предоставлена Raimer Bureau
Slovno в Мае Фотография @ Мария Войнова / предоставлена Raimer Bureau
Slovno в Мае
Фотография @ Мария Войнова / предоставлена Raimer Bureau

​Яйца – важный ингредиент десертов. Авторам было важно сделать так, чтобы яичная скорлупа визуально угадывалась в поверхности стен, но избежать излишней рельефности. Стены зала покрыты каменной штукатуркой, созданной специально для проекта на основе яичной скорлупы и мрамора.

Slovno в Мае Фотография @ Мария Войнова / предоставлена Raimer Bureau
Slovno в Мае
Фотография @ Мария Войнова / предоставлена Raimer Bureau
Slovno в Мае Фотография @ Мария Войнова / предоставлена Raimer Bureau
Slovno в Мае
Фотография @ Мария Войнова / предоставлена Raimer Bureau
Slovno в Мае Фотография @ Мария Войнова / предоставлена Raimer Bureau
Slovno в Мае
Фотография @ Мария Войнова / предоставлена Raimer Bureau
Slovno в Мае Фотография @ Мария Войнова / предоставлена Raimer Bureau
Slovno в Мае
Фотография @ Мария Войнова / предоставлена Raimer Bureau
Slovno в Мае Фотография @ Мария Войнова / предоставлена Raimer Bureau
Slovno в Мае
Фотография @ Мария Войнова / предоставлена Raimer Bureau
Slovno в Мае Фотография @ Мария Войнова / предоставлена Raimer Bureau
Slovno в Мае
Фотография @ Мария Войнова / предоставлена Raimer Bureau

При поиске мебели архитекторы стремились к чему-то исключительному. Каждый выбранный экземпляр несет в себе дух времени, стиль и индивидуальность. Столы изготовлены под проект из шпона тополя, камня и нержавеющей стали. Травертин используется для прочной и стильной опоры, которая добавляет элемент природной эстетики.

Slovno в Мае Фотография @ Мария Войнова / предоставлена Raimer Bureau
Slovno в Мае
Фотография @ Мария Войнова / предоставлена Raimer Bureau
Slovno в Мае Фотография @ Мария Войнова / предоставлена Raimer Bureau
Slovno в Мае
Фотография @ Мария Войнова / предоставлена Raimer Bureau
Slovno в Мае Фотография @ Мария Войнова / предоставлена Raimer Bureau
Slovno в Мае
Фотография @ Мария Войнова / предоставлена Raimer Bureau

«Лаборатория в поле» направлена на создание уютного и в то же время сильного пространства, где нежность натурального льна гармонично сочетается с брутальностью нержавеющей стали и текстурой камня.
Slovno в Мае
Slovno в Мае
Фотография @ Мария Войнова / предоставлена Raimer Bureau