Размещено на портале Архи.ру (www.archi.ru)

26.12.2024

Дом прощания

Объект:
Дом прощания
Адрес:
Россия, Свердловская обл.,
Мастерская:
DIALECT Architects
Авторский коллектив:
Денис Шурыгин, Андрей Коротаев, Анна Шурыгина 

Бюро DIALECT Architects спроектировало для кладбища недалеко от Екатеринбурга комплекс построек, который помогает провести ритуал прощания. Авторы стремились найти подходящий функции тон, для чего обратились к образу неугасающего пламени, использовали светлые материалы, а также силу воздействия ландшафта и зеркала воды.

Описание предоставлено архитекторами

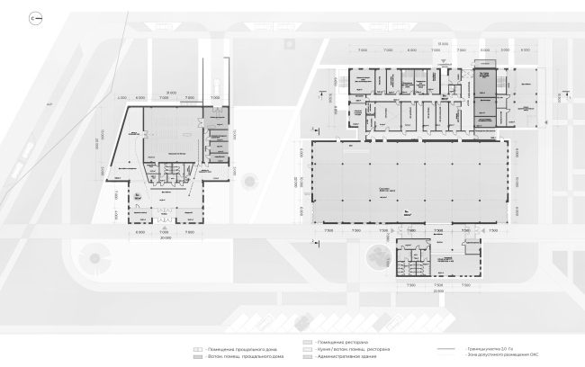
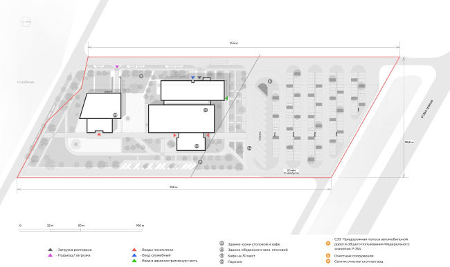
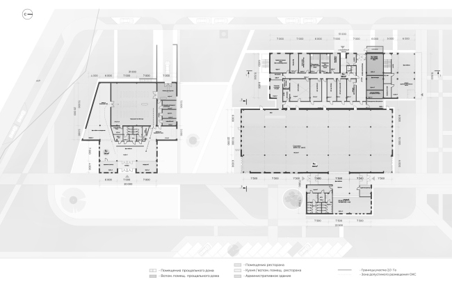
Участок проектирования находится в Свердловской
области, в Белоярском городском округе, в 40 километрах от Екатеринбурга, рядом с Большебруснянским кладбищем. Половина участка попадает под ограничение от придорожной полосы автомобильной дороги общего пользования Федерального значения Р-354. Поэтому в северной части появляется парковка, а в южной – проектируемые здания: дом прощания, а также ресторан с кухней и административным блоком.
Дом прощания
Дом прощания
© DIALECT Architects
Дом прощания
Дом прощания
© DIALECT Architects

После анализа существующих домов прощания в стране на первых же эскизах к архитекторам пришло понимание, что ландшафт должен дополнять и поддерживать формируемую среду. Всю территорию пронизывает парк с искусственными водоемами. Вода, отражая небо и здания, делает их невесомыми и символизирует переход из одного мира в другой.
Дом прощания
Дом прощания
© DIALECT Architects
Дом прощания
Дом прощания
© DIALECT Architects
 
Главное здание – скульптура. Внешняя оболочка слегка приоткрыта и напоминает пламя свечи, которая горит непрерывно, символизируя вечность жизни. Теплый терракотовый оттенок фасада из тактильного камня создает атмосферу спокойствия и уважения к памяти усопших.
Дом прощания © DIALECT Architects
Дом прощания
© DIALECT Architects
Дом прощания © DIALECT Architects
Дом прощания
© DIALECT Architects
Дом прощания © DIALECT Architects
Дом прощания
© DIALECT Architects
Дом прощания © DIALECT Architects
Дом прощания
© DIALECT Architects
Дом прощания © DIALECT Architects
Дом прощания
© DIALECT Architects

Внутри здания потоки людей разделены, чтобы избежать пересечения различных процессий. В вестибюле есть спокойные места с закрытым внешним фронтом для адаптации родственников, и с открытым – витражом который перетекает в окружающий ландшафт.

Здание ресторана и административный блок состоят из трех белых лаконичных объемов со сдвижкой относительно друг друга, образуя многоплановую композицию. Комплекс формирует гуманную, тихую среду.

Дом прощания © DIALECT Architects
Дом прощания
© DIALECT Architects
Дом прощания © DIALECT Architects
Дом прощания
© DIALECT Architects
Дом прощания © DIALECT Architects
Дом прощания
© DIALECT Architects
Дом прощания © DIALECT Architects
Дом прощания
© DIALECT Architects
Дом прощания © DIALECT Architects
Дом прощания
© DIALECT Architects
Дом прощания © DIALECT Architects
Дом прощания
© DIALECT Architects
Дом прощания © DIALECT Architects
Дом прощания
© DIALECT Architects
Дом прощания © DIALECT Architects
Дом прощания
© DIALECT Architects
Дом прощания © DIALECT Architects
Дом прощания
© DIALECT Architects