Размещено на портале Архи.ру (www.archi.ru)

28.10.2024

Казус Нового

Мария Элькина
Объект:
DNS Сити
Адрес:
Россия, поселок Новый в Надеждинском районе Приморского края, ТОР
Мастерская:
Open Urban
Авторский коллектив:
Мастер план: Тимур Богданенко, Екатерина Белоусова, Олег Коновалов, Полина Лызлова, Елена Гонсалес, Мария Морено, Нгуен Чанг, Дмитрий Долготер, Александр Кистанов. УДС, Инженерные сети: «Начало Координат». Визуализации: VERO Digital

Для крупного жилого района DNS City был разработан мастер-план, но с началом реализации его произвольно переформатировали, заменили на внешне похожий, однако другой. Так бывает, но всякий раз обидно. С разрешения автора перепубликовываем пост Марии Элькиной.

DNS Сити планируется на территории 125 га в 40 км к северу от Владивостока, в поселке Новое. Сейчас на его месте нет застройки, а запланированы кварталы на 25 000 жителей.

DNS Сити. Ситуационная схема
DNS Сити. Ситуационная схема
© Open Urban

Все бы ничего, но с началом реализации мастер-план, разработанный бюро Open Urban, начал произвольно трансформироваться. Об этом сообщила Мария Элькина в своем ТГ-канале и других соцсетях.

Ее поддержала Елена Гонсалес,
участвовавшая в работе над мастер-планом Open Urban:

«Я редко пишу про работу, потому что если писать – то надо много и с подробностями, а времени жалко. Но это тот случай, когда жалко не времени, а проект. Я не скажу, что первый проект идеальный, (или близко к тому), но он продуманный, испанцы серьезно поработали, да и потом многие вещи детально прорабатывались, уточнялись и адаптировались к существующему рельефу. И вот вдруг новый план. Меня трудно заподозрить в нелюбви к микрорайонам, но дело здесь совсем не в этом. Вспоминается советский анекдот, как иностранец долго и со вкусом объясняет официанту, какой бы он хотел бифштекс – степень прожарки медиум рэр, но больше медиум, и поперчить, но не солить... Официант терпеливо слушает, кивает, потом идет на кухню и кричит повару «Антрекот раз!» Ну вот примерно так».
 
Надо сказать, тут артистично описана очень знакомая ситуация, которая повторяется из раза в раз. Сколько таких проектов пропало, вроде бы сделали похоже, но очень отдаленно. 

Мы попросили комментарий также у руководителя авторского коллектива мастер-плана. 
 
Тимур Богданенко, Open Urban
«Основная цель Мастер плана – сформировать основополагающий гайд лайн, стандарт, который будет гарантировать высокое качество жизни и целевые показатели эффективности проекта. Эти правила включают не только зонирование и тип застройки, но и требования архитектурным параметрам, благоустройству. Реализация проекта займет продолжительное время, и мы понимали, как важно установить регламенты для проектировщиков уличной сети, архитекторов и разработчиков ландшафтных решений. Дальнейший отказ от системного подхода имеет серьезный негативный потенциал реализации проекта.

Важно обратить внимание на реализацию квартальной структуры застройки (формирование границ между частным и общественным), создание оживленных городских улиц с активными коммерческими фронтами, работу с рельефом, позволяющую формировать именно городские улицы с прямым доступом на первый этаж, сохранение «зеленых пальцев»  с доступом к объектам образования без пересечения с автомобильным потоками, создание альтернативных пешеходных маршрутов, решение вопроса хранения автотранспорта уже в начале реализации проекта».

Сейчас, судя по всему, вещи, упомянутые во 2 части комментария, заказчик реализовывать больше не планирует. 

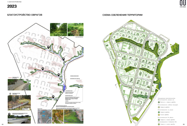
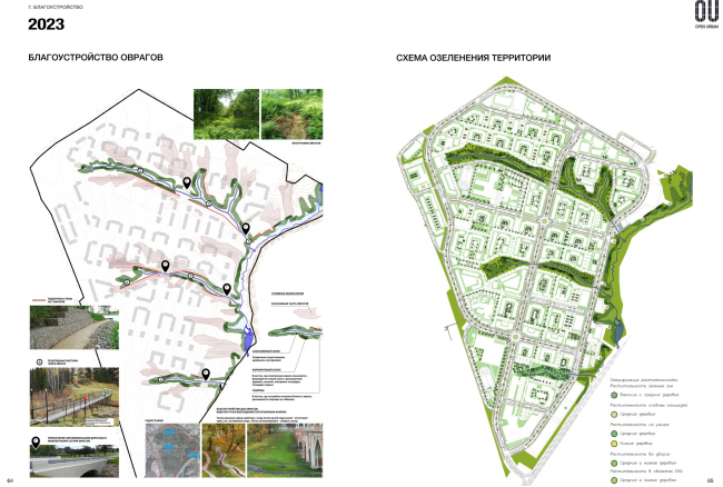
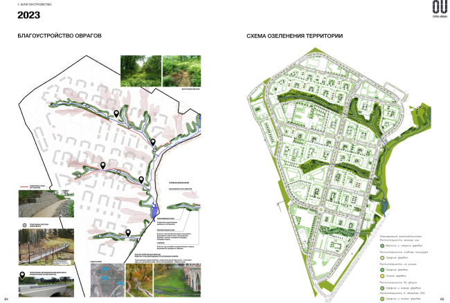
Ниже два листа из альбома, демонстрирующие основные решения благоустройства. Их суть была в том, что только часть оврагов засыпали, а остальную использовали как основу для парковых пространств. Рельеф в мастер-плане сохраняли, через овраги перебрасывали пешеходные мостики. В последней версии линии оврагов сохранились, а мосты исчезли. 
DNS Сити. Листы из альбома мастер-плана, иллюстрирующие основные решения благоустройства
DNS Сити. Листы из альбома мастер-плана, иллюстрирующие основные решения благоустройства
© Open Urban
DNS Сити 2022 и 2024 года
DNS Сити 2022 и 2024 года
Слева макет последней версии мастер-плана от Open Urban, справа фрагмент ролика с сайта проекта DNS City, 2024

Дальше публикуем сообщение Марии Элькиной целиком: 

«Еще одно разочарование, на этот раз в Приморье и в ситуации, когда ничего не предвещало совсем уж беды. Компания DNS зачем-то прямо по ходу заменила вполне удачный мастер план своего «города будущего» на откровенно неудачный, почти что на условное «кудрово».

Уже несколько лет назад они задумали строить примерно в 40 километрах от Владивостока проект города на «территории опережающего развития». Частный заказчик, у которого строительство жилья эконом-класса не является основным профилем деятельности – это уже многообещающая ситуация. Другой хороший симптом – очень дельный проектировщик. Им изначально было русское подразделение испанского урбанистического бюро Citythinking, а в 2022 году стало самостоятельной командой Open Urban (то есть и через этот ухаб как будто бы перевалили).
 
Вообще Citythinking, а вслед за ним и Open urban занимаются параметрическим градостроительным проектированием. Они, исходя из конфигурации дорожной сети, соотношения функций в помещениях, плотности застройки и других важных вещей могут заранее более или менее точно просчитать, насколько среда окажется насыщенной и как будет функционировать. То есть они не изобретают и не обещают шедевр, но гарантируют, что проект не провалится – люди будут жить и гулять, коммерческие помещения заполнятся, дети будут играть на площадках, парочки обниматься в парке и так далее.
 
И для DNS city они нашли такое крепкое решение. Сделали довольно плотную среду, изящно сохранили естественный ландшафт – так, что он стал органичной частью местности. Удачно расположили общественные места, просчитав заранее удобство маршрутов. Я видела, как это работает в Подмосковье – вполне себе эффективно.
DNS Сити. Мастер-план
DNS Сити. Мастер-план
© Open Urban

В Приморье самая главная структурная основа решения заключалась в создании квартальной сетки, которая обеспечивала, в первую очередь, удобство и оживленность улиц. Если очень грубо это описывать, то принцип устройства города был такой же, как в старом Петербурге, Вене или Париже, с поправкой на ландшафт и более масштабные и современные общественные сооружения.
DNS Сити. Мастер-план
DNS Сити. Мастер-план
© Open Urban
DNS Сити. Мастер-план
DNS Сити. Мастер-план
© Open Urban
DNS Сити. Мастер-план
DNS Сити. Мастер-план
© Open Urban
DNS Сити. Мастер-план
DNS Сити. Мастер-план
© Open Urban

Проект согласовали – вот вам и третий, казалось бы, последний из необходимых, счастливый знак.
 
А дальше – очень важно понять, почему – случился какой-то сбой, и компания DNS переделала проект несколько диковато на свой лад. Расположение общественных построек поменяли. Предполагаемое качество архитектуры судя по опубликованным рендерам заметно ухудшилось. Главное же, квартальную систему нарушили, так что, по сути, все стало больше похоже на микрорайоны 1970-х годов.

Я вообще не считаю, как многие, что микрорайон в СССР – это однозначно плохо, а кварталы – всегда непременно лучше. Я скорее думаю, что хороший микрорайон спроектировать куда сложнее удачного квартала. Кварталы – это такое универсальное решение, которое всегда работает. Проблема с DNS city вообще в том, что структуру застройки изменили частично и точечно, то есть получилась смесь, в которой и нет нормальных городских улиц, но и больших продуманных пешеходных пространств тоже нет.
 
Мне бы очень хотелось, чтобы вокруг этого случая родилась полноценная профессиональная дискуссия. Мне кажется, что нужно не надавить на заказчика, а убедить его и других участников процесса в том, что очень важно реализовать проект так, как его задумали – не ради архитекторов, а ради себя и людей, которые будут там жить и вообще живут в Приморье. Для начала нужно, наверное, просто привлечь внимание к ситуации.
 
Потом, DNS city – еще один важный повод говорить о том, что у нас вот сейчас закон никак не поддерживает качество реализуемых проектов, а очень бы хотелось. И как будто бы никто, кроме самих архитекторов и урбанистов, не приблизит нас в этом вопросе к светлому будущему.
 
В общем, я вижу здесь повод для публичного обсуждения – оно точно никому не навредит, и с большой вероятностью принесет пользу.
 
Посмотреть на предпоследнюю версию DNS city можно здесь, а вот здесь – увидеть, к чему все пришло».
мнение редакции может совпадать,
а может и не совпадать с позицией автора