Размещено на портале Архи.ру (www.archi.ru)

24.10.2024

От Канонерки до Териберки

Публикуем лучшие дипломные работы Санкт-Петербургской академии художеств имени Ильи Репина, подготовленные в мастерских Феликса Буянова и Вячеслава Ухова в 2024 году: парк у Финского залива, крематорий на Канонерском острове, застройка территории ЛенЭКСПО и Музей китов в Териберке.

После второго курса студенты факультета Архитектуры Санкт-Петербургской академии художеств имени Ильи Репина традиционно обучаются в персональных мастерских. В этой публикации – лучшие работы бакалавров 2024 года, подготовленные под руководством Феликса Буянова и Вячеслава Ухова. 

Все работы, за исключением одной, посвящены Петербургу: авторы тренируются в построении градостроительных композиций на примере территории ЛенЭкспо, планируют пейзажный парк с доступом к Финскому заливу, пробуют себя в проектировании мемориальной архитектуры. Еще одна работа стоит особняком – это Музей китов в Териберке, выполненный в духе здания-аттракциона, привлекающего внимание к экологическим проблемам.
  

Приморский парк в Санкт-Петербурге

Арина Гумирова
Руководители: Феликс Буянов, Андрей Трощиненко, Андрей Парфенов, Полина Светозарова
 
Проектируемый в Кировском районе парк может стать важным рекреационным пространством для жителей Санкт-Петербурга. Он отделяет промышленные сооружения ТЭЦ от жилых кварталов, а также является частью панорамы города с воды.
Приморский парк в Кировском районе Санкт-Петербурга
Приморский парк в Кировском районе Санкт-Петербурга
© Арина Гумирова / Санкт-Петербургская академия художеств имени Ильи Репина

Парк тянется вдоль улицы Маршала Казакова. Его формируют различные волнообразные маршруты, криволинейный характер которых задает спиралевидный объем центра экологии, расположенный на холме, а также причал, решенный в том же ключе.
Приморский парк в Кировском районе Санкт-Петербурга
Приморский парк в Кировском районе Санкт-Петербурга
© Арина Гумирова / Санкт-Петербургская академия художеств имени Ильи Репина

Рекреационная территория представляет собой комплекс садов с регулярными посадками деревьев, кустарников и цветов. Поляны с пейзажными группами также создают необходимое зонирование. На участке продумано размещение теплиц, в которых местные жители смогут выращивать овощи и фрукты. В левой части парка основные пути сформированы волнообразными набережными. Чтобы вид на промышленные сооружения не смущал местных жителей и посетителей, вдоль реки Красненькой создан искусственный рельеф из трех холмов.
 
Приморский парк в Кировском районе Санкт-Петербурга / Санкт-Петербургская академия художеств имени Ильи Репина
Приморский парк в Кировском районе Санкт-Петербурга
/ Санкт-Петербургская академия художеств имени Ильи Репина
Приморский парк в Кировском районе Санкт-Петербурга / Санкт-Петербургская академия художеств имени Ильи Репина
Приморский парк в Кировском районе Санкт-Петербурга
/ Санкт-Петербургская академия художеств имени Ильи Репина
Приморский парк в Кировском районе Санкт-Петербурга / Санкт-Петербургская академия художеств имени Ильи Репина
Приморский парк в Кировском районе Санкт-Петербурга
/ Санкт-Петербургская академия художеств имени Ильи Репина
Приморский парк в Кировском районе Санкт-Петербурга / Санкт-Петербургская академия художеств имени Ильи Репина
Приморский парк в Кировском районе Санкт-Петербурга
/ Санкт-Петербургская академия художеств имени Ильи Репина
Приморский парк в Кировском районе Санкт-Петербурга / Санкт-Петербургская академия художеств имени Ильи Репина
Приморский парк в Кировском районе Санкт-Петербурга
/ Санкт-Петербургская академия художеств имени Ильи Репина
Приморский парк в Кировском районе Санкт-Петербурга / Санкт-Петербургская академия художеств имени Ильи Репина
Приморский парк в Кировском районе Санкт-Петербурга
/ Санкт-Петербургская академия художеств имени Ильи Репина
Приморский парк в Кировском районе Санкт-Петербурга / Санкт-Петербургская академия художеств имени Ильи Репина
Приморский парк в Кировском районе Санкт-Петербурга
/ Санкт-Петербургская академия художеств имени Ильи Репина

 

Музей китов в Териберке

Кирилл Вострецов
Руководители: Вячеслав Ухов, Святослав Гайкович, Антон Головин, Максим Батаев
 
Архитектура и функциональное наполнение досугово-просветительского центра привлекают внимание общественности к проблемам, связанным с сокращением популяции китов, а также меняет отношение людей к природе. 

Посетители попадают на участок с автомобильной парковки через тоннель, ведущий к акватории Лодейной губы, направленному к Баренцеву морю пирсу и зданию музея. Альтернативный путь – по дороге вдоль берега, с осмотром экспозиции под открытым небом. Также проектом предлагается создание искусственного залива с мостом, где можно наблюдать приливы и отливы.
Музей китов в Териберке © Кирилл Вострецов
Музей китов в Териберке
© Кирилл Вострецов
Музей китов в Териберке © Кирилл Вострецов
Музей китов в Териберке
© Кирилл Вострецов
Музей китов в Териберке © Кирилл Вострецов
Музей китов в Териберке
© Кирилл Вострецов
Музей китов в Териберке © Кирилл Вострецов
Музей китов в Териберке
© Кирилл Вострецов
Музей китов в Териберке © Кирилл Вострецов
Музей китов в Териберке
© Кирилл Вострецов

Сам Музей китов – монументальный объем, вписанный в окружающий ландшафт словно гигантский морской обитатель, выброшенный на песок. Особую задачу в формировании образа выполняют световые фонари. Плавные линии фасадов, напоминающие очертания китов и других морских обитателей, создают ощущение движения и жизни.
Музей китов в Териберке © Кирилл Вострецов
Музей китов в Териберке
© Кирилл Вострецов
Музей китов в Териберке © Кирилл Вострецов
Музей китов в Териберке
© Кирилл Вострецов
Музей китов в Териберке © Кирилл Вострецов
Музей китов в Териберке
© Кирилл Вострецов
Музей китов в Териберке © Кирилл Вострецов
Музей китов в Териберке
© Кирилл Вострецов
Музей китов в Териберке © Кирилл Вострецов
Музей китов в Териберке
© Кирилл Вострецов

Внутреннее пространство музея решено так, что посетители могут почувствовать себя участниками морских путешествий. Экспозиция состоит из нескольких тематических зон, каждая из которых посвящена различным аспектам жизни и изучения китов. Проектом предусмотрены также ресторан, образовательный и научный блоки.
Музей китов в Териберке
Музей китов в Териберке
© Кирилл Вострецов
Музей китов в Териберке
Музей китов в Териберке
© Кирилл Вострецов
Музей китов в Териберке
Музей китов в Териберке
© Кирилл Вострецов


Жилой квартал на территории ЛенЭКСПО 

Алина Бородина
Руководители: Вячеслав Ухов, Святослав Гайкович, Антон Головин, Максим Батаев
 
Главная идея объемно-пространственного решения планировки данного квартала: расположение жилой застройки по фронту Наличной улицы и организация вокруг ковша Галерной гавани общественного пространства со школой, детским садом, парком, благоустроенной набережной.

Идея проникновения трех артерий Васильевского острова – Среднего, Среднегаванского и Большого проспекта – сквозь пространство ковша к морю выражается планировочным решением и организацией дорожно-транспортной сети внутри квартала.
Жилой квартал на территории ЛенЭКСПО в Санкт-Петербурге
Жилой квартал на территории ЛенЭКСПО в Санкт-Петербурге
© Алина Бородина

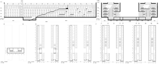
Жилая застройка представлена многоквартирными домами с благоустроенными дворами, вытянутыми по оси север-юг и раскрытыми на воду. Удалось выстроить трёхчастную композицию по фронту Наличной улицы с акцентом в виде гостиничного комплекса, а также поддержать существующую доминанту Галерной гавани – Морской вокзал. Сложное объемно-пространственное решение домов создает живописный ступенчатый силуэт застройки со стороны парка.
Жилой квартал на территории ЛенЭКСПО в Санкт-Петербурге © Алина Бородина
Жилой квартал на территории ЛенЭКСПО в Санкт-Петербурге
© Алина Бородина
Жилой квартал на территории ЛенЭКСПО в Санкт-Петербурге © Алина Бородина
Жилой квартал на территории ЛенЭКСПО в Санкт-Петербурге
© Алина Бородина
Жилой квартал на территории ЛенЭКСПО в Санкт-Петербурге © Алина Бородина
Жилой квартал на территории ЛенЭКСПО в Санкт-Петербурге
© Алина Бородина
Жилой квартал на территории ЛенЭКСПО в Санкт-Петербурге © Алина Бородина
Жилой квартал на территории ЛенЭКСПО в Санкт-Петербурге
© Алина Бородина
Жилой квартал на территории ЛенЭКСПО в Санкт-Петербурге © Алина Бородина
Жилой квартал на территории ЛенЭКСПО в Санкт-Петербурге
© Алина Бородина
Жилой квартал на территории ЛенЭКСПО в Санкт-Петербурге
Жилой квартал на территории ЛенЭКСПО в Санкт-Петербурге
© Алина Бородина
Жилой квартал на территории ЛенЭКСПО в Санкт-Петербурге
Жилой квартал на территории ЛенЭКСПО в Санкт-Петербурге
© Алина Бородина

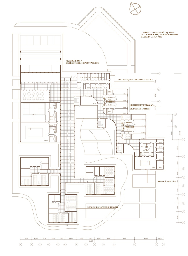
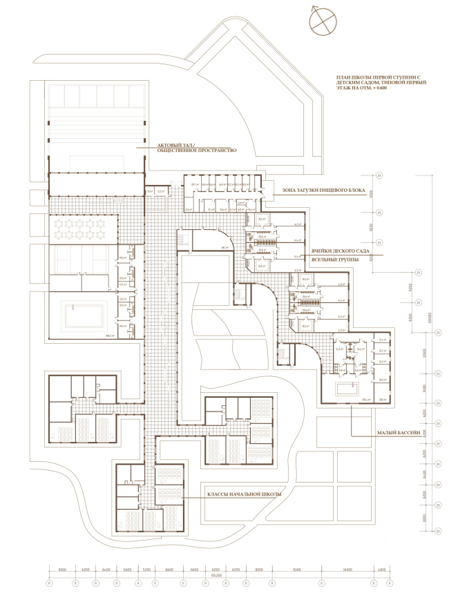
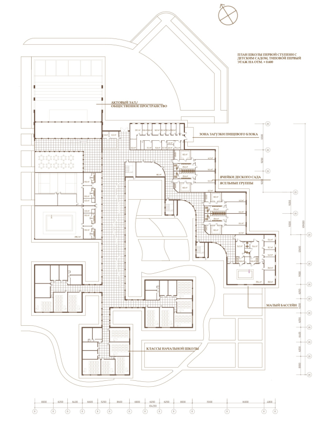
Школа с детским садом – также сложные объемы, организованные вокруг внутреннего двора с амфитеатром, поднятым на второй этаж. Помещения школы сгруппированы в ячейки с учетом норм инсоляции, связаны крытыми переходами галерейного типа. Сгруппированные помещения детского сада образуют двухэтажный трехчастный ступенчатый в плане объем с доминантами в виде отдельно вынесенных вертикальных коммуникаций.
Жилой квартал на территории ЛенЭКСПО в Санкт-Петербурге
Жилой квартал на территории ЛенЭКСПО в Санкт-Петербурге
© Алина Бородина
Жилой квартал на территории ЛенЭКСПО в Санкт-Петербурге
Жилой квартал на территории ЛенЭКСПО в Санкт-Петербурге
© Алина Бородина

 

Жилой квартал на территории ЛенЭКСПО 

Елена Кошкарова
Руководители: Вячеслав Ухов, Святослав Гайкович, Антон Головин, Максим Батаев
 
Основное внимание в проекте уделялось созданию композиции, которая подчеркнет уникальную форму участка, а также созданию высотной архитектурной доминанты, завершающей ось Среднего проспекта Васильевского острова. 
Жилой квартал на территории ЛенЭКСПО в Санкт-Петербурге
Жилой квартал на территории ЛенЭКСПО в Санкт-Петербурге
© Елена Кошкарова

В центральной части расположены три многоквартирных дома. На севере – вестибюль метрополитена, на юге – школа с детским садом. Напротив Морского вокзала разработан комплекс, состоящий из гостиницы и апартаментов. Территория, свободная от застройки – общественный парк.
Жилой квартал на территории ЛенЭКСПО в Санкт-Петербурге
Жилой квартал на территории ЛенЭКСПО в Санкт-Петербурге
© Елена Кошкарова
Жилой квартал на территории ЛенЭКСПО в Санкт-Петербурге
Жилой квартал на территории ЛенЭКСПО в Санкт-Петербурге
© Елена Кошкарова

Дом на мысу состоит из восьми радиально расположенных секций, напоминая солнечные часы. Пейзаж двора постоянно меняется в течение дня из-за игры света и тени. Освещение постоянно меняется, как и Финский залив, с которым граничит участок проектирования. Благоустройство во всех домах предусмотрено на отметке второго этажа, а заезд в паркинги осуществляется с уровня земли. Во дворы можно попасть через парадные и амфитеатры, размещенные между секциями. Дома вдоль Наличной улицы имеют периметральную структуру, подобную уже сформировавшейся застройке, раскрываются к Финскому заливу и выступают в качестве «пропилеев» к дому на мысу.
Жилой квартал на территории ЛенЭКСПО в Санкт-Петербурге © Елена Кошкарова
Жилой квартал на территории ЛенЭКСПО в Санкт-Петербурге
© Елена Кошкарова
Жилой квартал на территории ЛенЭКСПО в Санкт-Петербурге © Елена Кошкарова
Жилой квартал на территории ЛенЭКСПО в Санкт-Петербурге
© Елена Кошкарова
Жилой квартал на территории ЛенЭКСПО в Санкт-Петербурге © Елена Кошкарова
Жилой квартал на территории ЛенЭКСПО в Санкт-Петербурге
© Елена Кошкарова
Жилой квартал на территории ЛенЭКСПО в Санкт-Петербурге © Елена Кошкарова
Жилой квартал на территории ЛенЭКСПО в Санкт-Петербурге
© Елена Кошкарова
Жилой квартал на территории ЛенЭКСПО в Санкт-Петербурге © Елена Кошкарова
Жилой квартал на территории ЛенЭКСПО в Санкт-Петербурге
© Елена Кошкарова

Парк сформирован двумя живописными маршрутами, вдоль которых размещены площадки с разными функциями. Предполагается разделение шумных и тихих видов деятельности. На всей территории предусмотрены вело-маршруты и вело-парковки. Проектом предполагается реконструкция существующей набережной. Планируется создание общего пешеходного пути по всему периметру Галерного ковша.
Жилой квартал на территории ЛенЭКСПО в Санкт-Петербурге © Елена Кошкарова
Жилой квартал на территории ЛенЭКСПО в Санкт-Петербурге
© Елена Кошкарова
Жилой квартал на территории ЛенЭКСПО в Санкт-Петербурге © Елена Кошкарова
Жилой квартал на территории ЛенЭКСПО в Санкт-Петербурге
© Елена Кошкарова
Жилой квартал на территории ЛенЭКСПО в Санкт-Петербурге © Елена Кошкарова
Жилой квартал на территории ЛенЭКСПО в Санкт-Петербурге
© Елена Кошкарова
Жилой квартал на территории ЛенЭКСПО в Санкт-Петербурге © Елена Кошкарова
Жилой квартал на территории ЛенЭКСПО в Санкт-Петербурге
© Елена Кошкарова

 

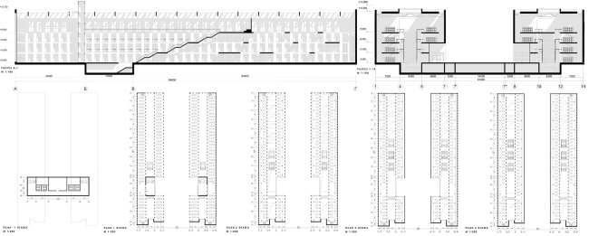
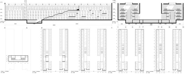
Архитектурно-ландшафтный комплекс крематория и колумбария на Канонерском острове 

Инзиль Фаткуллин
Руководители: Вячеслав Ухов, Святослав Гайкович, Антон Головин, Максим Батаев
 
Основой для проекта послужила симметричная осевая композиция, характерная для петербургской архитектурной школы, а также эмоциональное состояние участников траурной процессии.
Архитектурно-ландшафтный комплекс крематория и колумбария на Канонерском острове в Санкт-Петербурге
Архитектурно-ландшафтный комплекс крематория и колумбария на Канонерском острове в Санкт-Петербурге
© Инзиль Фаткуллин

Участок делится на три части: основная с комплексом крематория, кладбище с тремя храмами и общественно-парковая зона с двухуровневым променадом вдоль берега Финского залива, заканчивающимся лестницей «в никуда». Траурный комплекс включает в себя крытый колумбарий, крематорий, здание судебно-медицинской экспертизы с администрацией, центр поддержки, цветочное хозяйство в регулярном парке и водоем в центре композиции. 

Архитектурно-ландшафтный комплекс крематория и колумбария на Канонерском острове в Санкт-Петербурге © Инзиль Фаткуллин
Архитектурно-ландшафтный комплекс крематория и колумбария на Канонерском острове в Санкт-Петербурге
© Инзиль Фаткуллин
Архитектурно-ландшафтный комплекс крематория и колумбария на Канонерском острове в Санкт-Петербурге © Инзиль Фаткуллин
Архитектурно-ландшафтный комплекс крематория и колумбария на Канонерском острове в Санкт-Петербурге
© Инзиль Фаткуллин
Архитектурно-ландшафтный комплекс крематория и колумбария на Канонерском острове в Санкт-Петербурге © Инзиль Фаткуллин
Архитектурно-ландшафтный комплекс крематория и колумбария на Канонерском острове в Санкт-Петербурге
© Инзиль Фаткуллин
Архитектурно-ландшафтный комплекс крематория и колумбария на Канонерском острове в Санкт-Петербурге © Инзиль Фаткуллин
Архитектурно-ландшафтный комплекс крематория и колумбария на Канонерском острове в Санкт-Петербурге
© Инзиль Фаткуллин
Архитектурно-ландшафтный комплекс крематория и колумбария на Канонерском острове в Санкт-Петербурге © Инзиль Фаткуллин
Архитектурно-ландшафтный комплекс крематория и колумбария на Канонерском острове в Санкт-Петербурге
© Инзиль Фаткуллин
Архитектурно-ландшафтный комплекс крематория и колумбария на Канонерском острове в Санкт-Петербурге © Инзиль Фаткуллин
Архитектурно-ландшафтный комплекс крематория и колумбария на Канонерском острове в Санкт-Петербурге
© Инзиль Фаткуллин
Архитектурно-ландшафтный комплекс крематория и колумбария на Канонерском острове в Санкт-Петербурге © Инзиль Фаткуллин
Архитектурно-ландшафтный комплекс крематория и колумбария на Канонерском острове в Санкт-Петербурге
© Инзиль Фаткуллин
Архитектурно-ландшафтный комплекс крематория и колумбария на Канонерском острове в Санкт-Петербурге © Инзиль Фаткуллин
Архитектурно-ландшафтный комплекс крематория и колумбария на Канонерском острове в Санкт-Петербурге
© Инзиль Фаткуллин

Мосты, соединяющие части комплекса, образуют крест на воде. Маршрут траурной процессии начинается с большого колумбария, который является как бы пропилеями и задает эмоциональный фон дальнейшего пути. Пересекая водоем можно попасть в симметричное здание в виде креста, внутри разбитое на разные функциональные блоки, предназначенные как для посетителей, так и для сотрудников. Монументальность данной постройки подчеркнута также насыпным холмом с открытым колумбарием.
Архитектурно-ландшафтный комплекс крематория и колумбария на Канонерском острове в Санкт-Петербурге
Архитектурно-ландшафтный комплекс крематория и колумбария на Канонерском острове в Санкт-Петербурге
© Инзиль Фаткуллин
Архитектурно-ландшафтный комплекс крематория и колумбария на Канонерском острове в Санкт-Петербурге
Архитектурно-ландшафтный комплекс крематория и колумбария на Канонерском острове в Санкт-Петербурге
© Инзиль Фаткуллин
Архитектурно-ландшафтный комплекс крематория и колумбария на Канонерском острове в Санкт-Петербурге
Архитектурно-ландшафтный комплекс крематория и колумбария на Канонерском острове в Санкт-Петербурге
© Инзиль Фаткуллин
Архитектурно-ландшафтный комплекс крематория и колумбария на Канонерском острове в Санкт-Петербурге
Архитектурно-ландшафтный комплекс крематория и колумбария на Канонерском острове в Санкт-Петербурге
© Инзиль Фаткуллин
Архитектурно-ландшафтный комплекс крематория и колумбария на Канонерском острове в Санкт-Петербурге
Архитектурно-ландшафтный комплекс крематория и колумбария на Канонерском острове в Санкт-Петербурге
© Инзиль Фаткуллин
Архитектурно-ландшафтный комплекс крематория и колумбария на Канонерском острове в Санкт-Петербурге
Архитектурно-ландшафтный комплекс крематория и колумбария на Канонерском острове в Санкт-Петербурге
© Инзиль Фаткуллин