Размещено на портале Архи.ру (www.archi.ru)

16.10.2024

Осмысление острова

Публикуем лучшие дипломные работы бакалавров Санкт-Петербургской академии художеств имени Ильи Репина, подготовленные в мастерской Владимира Григорьева в 2024 году. Две из них посвящены включению комплекса крематория и колумбария в пейзаж Канонерского острова, а третья – океанариуму как якорному объекту западной оконечности Безымянного полуострова.


После второго курса студенты факультета Архитектуры Санкт-Петербургской академии художеств имени Ильи Репина традиционно обучаются в персональных мастерских. В этой публикации – лучшие работы бакалавров 2024 года, подготовленные под руководством Владимира Григорьева, Константина Щербина, Дмитрия Мелентьева, Алены Половинкиной и Ирины Барто.

Две из представленных работ посвящены проекту крематория и колумбария на Канонерском острове. В них студенты не только ищут уместный образ, соединяя мемориальную территорию с общественной, но и продумывают непростую технологию сооружения, учитывая такие помещения как, например, лаборатории судмедэкспертизы. Автор третьей работы предлагает яркий образ для океанариума, способный привлечь посетителей в не самую оживленную часть города.

 

Архитектурно-ландшафтный комплекс крематория и колумбария на Канонерском острове

Мария Снежко

Сейчас облик территории формируют пустынные пространства, заросли деревьев, пруд и живописные набережные. Жители Петербурга давно полюбили это место. Хотелось сохранить его уникальный ландшафт и природные характеристики, поэтому была поставлена задача – максимально ненавязчиво вписать в существующую среду комплекс крематория и колумбария, создав при этом самодостаточное пространство памяти и скорби.
Архитектурно-ландшафтный комплекс крематория и колумбария на Канонерском острове в Санкт-Петербурге
Архитектурно-ландшафтный комплекс крематория и колумбария на Канонерском острове в Санкт-Петербурге
© Мария Снежко / Санкт-Петербургская академия художеств имени Ильи Репина
Архитектурно-ландшафтный комплекс крематория и колумбария на Канонерском острове в Санкт-Петербурге
Архитектурно-ландшафтный комплекс крематория и колумбария на Канонерском острове в Санкт-Петербурге
© Мария Снежко / Санкт-Петербургская академия художеств имени Ильи Репина

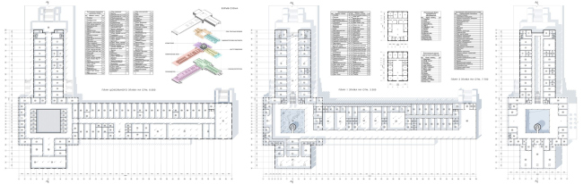
Территория крематория окружена стеной-мембраной, во внутренних контурах которой располагаются ячейки колумбария. Прием усиливает цветочный холм, сквозь который тянутся входы и выходы. У его подножия – лес памяти, где любой желающий может посадить дерево, приобретенное в оранжерее за пределами комплекса. Спрятанный за холмом двор – сад, где среди вечнозеленых мхов и кустарников появляются отдельно стоящие стелы – ячейки колумбария. Его регулярное благоустройство контрастно пейзажам существующего парка.

Центр композиции – зеркало бассейна и распределительная площадь, сформированные колоннадой трехэтажного здания. Подземный этаж – технический. На отметке уровня земли располагаются помещения обслуживающего персонала, лаборатории судмедэкспертизы, заготовочные цеха и паркинг с зоной загрузки. На втором этаже – траурные и поминальные залы, администрация и безусловная доминанта – конусообразный вестибюль залов выдачи праха. 
Архитектурно-ландшафтный комплекс крематория и колумбария на Канонерском острове в Санкт-Петербурге © Мария Снежко / Санкт-Петербургская академия художеств имени Ильи Репина
Архитектурно-ландшафтный комплекс крематория и колумбария на Канонерском острове в Санкт-Петербурге
© Мария Снежко / Санкт-Петербургская академия художеств имени Ильи Репина
Архитектурно-ландшафтный комплекс крематория и колумбария на Канонерском острове в Санкт-Петербурге © Мария Снежко / Санкт-Петербургская академия художеств имени Ильи Репина
Архитектурно-ландшафтный комплекс крематория и колумбария на Канонерском острове в Санкт-Петербурге
© Мария Снежко / Санкт-Петербургская академия художеств имени Ильи Репина
Архитектурно-ландшафтный комплекс крематория и колумбария на Канонерском острове в Санкт-Петербурге © Мария Снежко / Санкт-Петербургская академия художеств имени Ильи Репина
Архитектурно-ландшафтный комплекс крематория и колумбария на Канонерском острове в Санкт-Петербурге
© Мария Снежко / Санкт-Петербургская академия художеств имени Ильи Репина
Архитектурно-ландшафтный комплекс крематория и колумбария на Канонерском острове в Санкт-Петербурге © Мария Снежко / Санкт-Петербургская академия художеств имени Ильи Репина
Архитектурно-ландшафтный комплекс крематория и колумбария на Канонерском острове в Санкт-Петербурге
© Мария Снежко / Санкт-Петербургская академия художеств имени Ильи Репина
Архитектурно-ландшафтный комплекс крематория и колумбария на Канонерском острове в Санкт-Петербурге © Мария Снежко / Санкт-Петербургская академия художеств имени Ильи Репина
Архитектурно-ландшафтный комплекс крематория и колумбария на Канонерском острове в Санкт-Петербурге
© Мария Снежко / Санкт-Петербургская академия художеств имени Ильи Репина
Архитектурно-ландшафтный комплекс крематория и колумбария на Канонерском острове в Санкт-Петербурге © Мария Снежко / Санкт-Петербургская академия художеств имени Ильи Репина
Архитектурно-ландшафтный комплекс крематория и колумбария на Канонерском острове в Санкт-Петербурге
© Мария Снежко / Санкт-Петербургская академия художеств имени Ильи Репина
Архитектурно-ландшафтный комплекс крематория и колумбария на Канонерском острове в Санкт-Петербурге © Мария Снежко / Санкт-Петербургская академия художеств имени Ильи Репина
Архитектурно-ландшафтный комплекс крематория и колумбария на Канонерском острове в Санкт-Петербурге
© Мария Снежко / Санкт-Петербургская академия художеств имени Ильи Репина

После окончания различных траурных процедур посетители крематория могут спуститься в открытый колумбарий, а потом выйти в парк и к набережной Финского залива, на простор, к жизни.
Архитектурно-ландшафтный комплекс крематория и колумбария на Канонерском острове в Санкт-Петербурге
Архитектурно-ландшафтный комплекс крематория и колумбария на Канонерском острове в Санкт-Петербурге
© Мария Снежко / Санкт-Петербургская академия художеств имени Ильи Репина

 

Архитектурно-ландшафтный комплекс крематория и колумбария на Канонерском острове 

Радимир Тюлькин
 
Канонерский остров – один из наиболее живописных районов Санкт-Петербурга. Множество растений, искусственный пруд и просторы Финского залива создают особенное настроение и, безусловно, влияют на архитектурно-ландшафтные решения представленного проекта. Главной задачей было создать цельную композицию, гармонично соединив друг с другом две функционально разные зоны: погребальный комплекс и общественный парк.
Архитектурно-ландшафтный комплекс крематория и колумбария на Канонерском острове в Санкт-Петербурге
Архитектурно-ландшафтный комплекс крематория и колумбария на Канонерском острове в Санкт-Петербурге
© Радимир Тюлькин / Санкт-Петербургская академия художеств имени Ильи Репина

Все необходимые функции комплекса размещены внутри квадратного холма, вырастающего вокруг существующего пруда. Хотелось создать монументальный образ и собрать все важное в одном большом здании, что помогло визуально скрыть технические помещения, упростить перемещение сотрудников и посетителей по территории, закольцевать основной траурный маршрут.
Архитектурно-ландшафтный комплекс крематория и колумбария на Канонерском острове в Санкт-Петербурге
Архитектурно-ландшафтный комплекс крематория и колумбария на Канонерском острове в Санкт-Петербурге
© Радимир Тюлькин / Санкт-Петербургская академия художеств имени Ильи Репина

Несмотря на сложное технологическое наполнение, здание выглядит достаточно сдержанным и простым: состоит из двух вытянутых объемов, соединенных большим общим пространством с открытым двором и коммуникациями внутри. Особенное внимание уделялось естественному освещению. Разный ритм и объем оконных проемов, наличие световых фонарей помогли создать необходимые для погребального комплекса эффекты.
Архитектурно-ландшафтный комплекс крематория и колумбария на Канонерском острове в Санкт-Петербурге © Радимир Тюлькин / Санкт-Петербургская академия художеств имени Ильи Репина
Архитектурно-ландшафтный комплекс крематория и колумбария на Канонерском острове в Санкт-Петербурге
© Радимир Тюлькин / Санкт-Петербургская академия художеств имени Ильи Репина
Архитектурно-ландшафтный комплекс крематория и колумбария на Канонерском острове в Санкт-Петербурге © Радимир Тюлькин / Санкт-Петербургская академия художеств имени Ильи Репина
Архитектурно-ландшафтный комплекс крематория и колумбария на Канонерском острове в Санкт-Петербурге
© Радимир Тюлькин / Санкт-Петербургская академия художеств имени Ильи Репина
Архитектурно-ландшафтный комплекс крематория и колумбария на Канонерском острове в Санкт-Петербурге © Радимир Тюлькин / Санкт-Петербургская академия художеств имени Ильи Репина
Архитектурно-ландшафтный комплекс крематория и колумбария на Канонерском острове в Санкт-Петербурге
© Радимир Тюлькин / Санкт-Петербургская академия художеств имени Ильи Репина
Архитектурно-ландшафтный комплекс крематория и колумбария на Канонерском острове в Санкт-Петербурге © Радимир Тюлькин / Санкт-Петербургская академия художеств имени Ильи Репина
Архитектурно-ландшафтный комплекс крематория и колумбария на Канонерском острове в Санкт-Петербурге
© Радимир Тюлькин / Санкт-Петербургская академия художеств имени Ильи Репина
Архитектурно-ландшафтный комплекс крематория и колумбария на Канонерском острове в Санкт-Петербурге © Радимир Тюлькин / Санкт-Петербургская академия художеств имени Ильи Репина
Архитектурно-ландшафтный комплекс крематория и колумбария на Канонерском острове в Санкт-Петербурге
© Радимир Тюлькин / Санкт-Петербургская академия художеств имени Ильи Репина
Архитектурно-ландшафтный комплекс крематория и колумбария на Канонерском острове в Санкт-Петербурге © Радимир Тюлькин / Санкт-Петербургская академия художеств имени Ильи Репина
Архитектурно-ландшафтный комплекс крематория и колумбария на Канонерском острове в Санкт-Петербурге
© Радимир Тюлькин / Санкт-Петербургская академия художеств имени Ильи Репина
Архитектурно-ландшафтный комплекс крематория и колумбария на Канонерском острове в Санкт-Петербурге © Радимир Тюлькин / Санкт-Петербургская академия художеств имени Ильи Репина
Архитектурно-ландшафтный комплекс крематория и колумбария на Канонерском острове в Санкт-Петербурге
© Радимир Тюлькин / Санкт-Петербургская академия художеств имени Ильи Репина
Архитектурно-ландшафтный комплекс крематория и колумбария на Канонерском острове в Санкт-Петербурге © Радимир Тюлькин / Санкт-Петербургская академия художеств имени Ильи Репина
Архитектурно-ландшафтный комплекс крематория и колумбария на Канонерском острове в Санкт-Петербурге
© Радимир Тюлькин / Санкт-Петербургская академия художеств имени Ильи Репина
Архитектурно-ландшафтный комплекс крематория и колумбария на Канонерском острове в Санкт-Петербурге © Радимир Тюлькин / Санкт-Петербургская академия художеств имени Ильи Репина
Архитектурно-ландшафтный комплекс крематория и колумбария на Канонерском острове в Санкт-Петербурге
© Радимир Тюлькин / Санкт-Петербургская академия художеств имени Ильи Репина

Пейзажный парк вокруг предназначен для отдыха местных жителей, за счет разницы в высотных отметках и зеленых насаждений создается разделение траурных процессов и общественных прогулочных зон.
Архитектурно-ландшафтный комплекс крематория и колумбария на Канонерском острове в Санкт-Петербурге
Архитектурно-ландшафтный комплекс крематория и колумбария на Канонерском острове в Санкт-Петербурге
© Радимир Тюлькин / Санкт-Петербургская академия художеств имени Ильи Репина

 

Океанариум на Безымянном полуострове

Анастасия Соколова
 
Проектирование океанариума осуществлялось в комплексе с разработкой парка и прогулочной набережной со спусками к воде, а также сохранением существующей функции обслуживания яхт.
Океанариум в Санкт-Петербурге
Океанариум в Санкт-Петербурге
© Анастасия Соколова / Санкт-Петербургская академия художеств имени Ильи Репина

Поиски наиболее удачной композиционной схемы здания привели к появлению дугообразной стены – ширмы, которая задает движение посетителей по парку и выставочной экспозиции Океанариума, а также формирует его образ снаружи. Важный элемент композиции – зеркальный шар, внутри которого расположен аквариум с акулами, – находится на мысу и окружен амфитеатром. Данный объем может стать точкой притяжения всего полуострова. Его металлические поверхности, отражая небо и ландшафт, создают визуальный эффект «растворения» в пространстве.
Океанариум в Санкт-Петербурге © Анастасия Соколова /  Санкт-Петербургская академия художеств имени Ильи Репина
Океанариум в Санкт-Петербурге
© Анастасия Соколова / Санкт-Петербургская академия художеств имени Ильи Репина
Океанариум в Санкт-Петербурге © Анастасия Соколова /  Санкт-Петербургская академия художеств имени Ильи Репина
Океанариум в Санкт-Петербурге
© Анастасия Соколова / Санкт-Петербургская академия художеств имени Ильи Репина
Океанариум в Санкт-Петербурге © Анастасия Соколова /  Санкт-Петербургская академия художеств имени Ильи Репина
Океанариум в Санкт-Петербурге
© Анастасия Соколова / Санкт-Петербургская академия художеств имени Ильи Репина
Океанариум в Санкт-Петербурге © Анастасия Соколова /  Санкт-Петербургская академия художеств имени Ильи Репина
Океанариум в Санкт-Петербурге
© Анастасия Соколова / Санкт-Петербургская академия художеств имени Ильи Репина
Океанариум в Санкт-Петербурге © Анастасия Соколова /  Санкт-Петербургская академия художеств имени Ильи Репина
Океанариум в Санкт-Петербурге
© Анастасия Соколова / Санкт-Петербургская академия художеств имени Ильи Репина
Океанариум в Санкт-Петербурге © Анастасия Соколова /  Санкт-Петербургская академия художеств имени Ильи Репина
Океанариум в Санкт-Петербурге
© Анастасия Соколова / Санкт-Петербургская академия художеств имени Ильи Репина
Океанариум в Санкт-Петербурге © Анастасия Соколова /  Санкт-Петербургская академия художеств имени Ильи Репина
Океанариум в Санкт-Петербурге
© Анастасия Соколова / Санкт-Петербургская академия художеств имени Ильи Репина
Океанариум в Санкт-Петербурге © Анастасия Соколова /  Санкт-Петербургская академия художеств имени Ильи Репина
Океанариум в Санкт-Петербурге
© Анастасия Соколова / Санкт-Петербургская академия художеств имени Ильи Репина
Океанариум в Санкт-Петербурге © Анастасия Соколова /  Санкт-Петербургская академия художеств имени Ильи Репина
Океанариум в Санкт-Петербурге
© Анастасия Соколова / Санкт-Петербургская академия художеств имени Ильи Репина
Океанариум в Санкт-Петербурге © Анастасия Соколова /  Санкт-Петербургская академия художеств имени Ильи Репина
Океанариум в Санкт-Петербурге
© Анастасия Соколова / Санкт-Петербургская академия художеств имени Ильи Репина

Маршрут внутри имеет четкую последовательность и представляет собой путешествие по разнообразным тематическим залам. Один из наиболее интересных объектов находится в центральном зале – это амфитеатр, с которого открываются виды на большой панорамный аквариум.
Океанариум в Санкт-Петербурге
Океанариум в Санкт-Петербурге
© Анастасия Соколова / Санкт-Петербургская академия художеств имени Ильи Репина