Размещено на портале Архи.ру (www.archi.ru)

15.10.2024

Сейфы и дюны

Объект:
ALFA BANK
Адрес:
Беларусь, Минск. пер. Веснинка, 16
Мастерская:
ZROBIM architects
Авторский коллектив:
Архитекторы: Марк Гурда, Анна Куцко

Один из минских офисов Alfa Bank располагается в здании бизнес-центра на берегу водохранилища Дрозды. Работая с интерьером, бюро ZROBIM architects откликнулось на пейзаж за окном и соединило айдентику банковского учреждения с природными мотивами.

Описание предоставлено архитекторами

Офисное здание располагается вдоль живописного водохранилища, что и определило весь проект. Планировочная структура, материалы отделки и дизайнерские решения соотносятся с обилием панорамных окон и открывающимся из них видом.
ALFA BANK
ALFA BANK
Фотография © Ксения Варавко / предоставлена ZROBIM architects
ALFA BANK
ALFA BANK
Фотография © Ксения Варавко / предоставлена ZROBIM architects

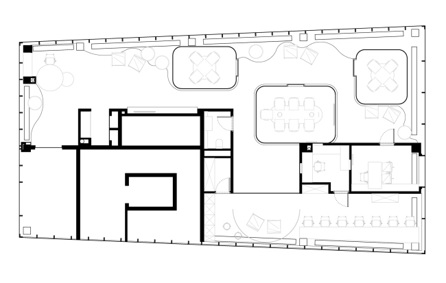
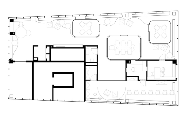
Планировочное решение сочетает коридорную структуру и формат open space. С одной стороны четко выделены кабинеты, переговорные и зоны отдыха, с другой – все они являются частью общего пространства, которое мягко и интуитивно зонировано.
ALFA BANK
ALFA BANK
© ZROBIM architects

Вдоль панорамных окон расположена криволинейная структура с песчаными «дюнами», отсылающими к побережью и пляжу. Природность прослеживается и в айдентике, которая нюансно отражается в дизайне: каменной букве «А» на входе, напоминающих сейф дверных ручках, интегрированных в мебель зарядных станциях.
 
ALFA BANK Фотография © Ксения Варавко / предоставлена ZROBIM architects
ALFA BANK
Фотография © Ксения Варавко / предоставлена ZROBIM architects
ALFA BANK Фотография © Ксения Варавко / предоставлена ZROBIM architects
ALFA BANK
Фотография © Ксения Варавко / предоставлена ZROBIM architects
ALFA BANK Фотография © Ксения Варавко / предоставлена ZROBIM architects
ALFA BANK
Фотография © Ксения Варавко / предоставлена ZROBIM architects
ALFA BANK Фотография © Ксения Варавко / предоставлена ZROBIM architects
ALFA BANK
Фотография © Ксения Варавко / предоставлена ZROBIM architects
ALFA BANK Фотография © Ксения Варавко / предоставлена ZROBIM architects
ALFA BANK
Фотография © Ксения Варавко / предоставлена ZROBIM architects
ALFA BANK Фотография © Ксения Варавко / предоставлена ZROBIM architects
ALFA BANK
Фотография © Ксения Варавко / предоставлена ZROBIM architects
ALFA BANK Фотография © Ксения Варавко / предоставлена ZROBIM architects
ALFA BANK
Фотография © Ксения Варавко / предоставлена ZROBIM architects
ALFA BANK Фотография © Ксения Варавко / предоставлена ZROBIM architects
ALFA BANK
Фотография © Ксения Варавко / предоставлена ZROBIM architects
ALFA BANK Фотография © Ксения Варавко / предоставлена ZROBIM architects
ALFA BANK
Фотография © Ксения Варавко / предоставлена ZROBIM architects
ALFA BANK Фотография © Ксения Варавко / предоставлена ZROBIM architects
ALFA BANK
Фотография © Ксения Варавко / предоставлена ZROBIM architects
ALFA BANK Фотография © Ксения Варавко / предоставлена ZROBIM architects
ALFA BANK
Фотография © Ксения Варавко / предоставлена ZROBIM architects
ALFA BANK Фотография © Ксения Варавко / предоставлена ZROBIM architects
ALFA BANK
Фотография © Ксения Варавко / предоставлена ZROBIM architects