Размещено на портале Архи.ру (www.archi.ru)

19.09.2024

Искусство без барьеров

Объект:
Интерьер инклюзивного пространства «Добрый музей»
Адрес:
Россия, Москва. Малый Толмачевский переулок, дом 6, стр. 1
Мастерская:
Архитектурно-дизайнерское бюро Олега Клодта
Авторский коллектив:
Архитектор: Олег Клодт
Стилист: Наталья Олиндер

Бюро Олега Клодта обновило интерьеры инклюзивного пространства Третьяковской галереи. В «Добром музее» учтены потребности посетителей с различными ограничениями, а также создана дружественная атмосфера, располагающая к общению и раскрытию творческого потенциала.

Описание предоставлено архитекторами
 
Архитектурное бюро Олега Клодта модернизировало пространства культурного центра Третьяковской галереи, расположенного в Малом Толмачевском переулке. Здесь в рамках проекта «Добрый музей» с 2016 года проходят выставки, мастер-классы, концерты и праздники для посетителей с особенностями развития.
 
Олег Клодт, Архитектурно-дизайнерское бюро Олега Клодта
Для нашего бюро проект стал первым в своем роде и очень значимым – редко какая работа приносит сравнимое моральное удовлетворение. Я уверен, что инклюзивный культурный центр, созданный на базе столь великого как Третьяковская галерея места, станет знаковым не только для Москвы, но и России. Именно сейчас эта замечательная гуманистическая история способна дать импульс развитию подобных проектов в разных уголках страны. Мы работали с большой любовью и вниманием, желая создать место, где всем будет хорошо! Доступная архитектурная среда – это будущее, необходимое для всех.

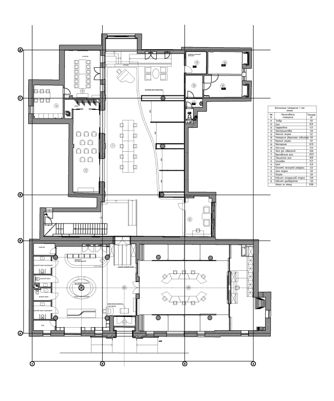
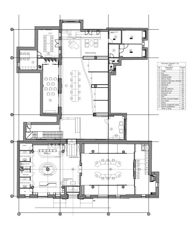
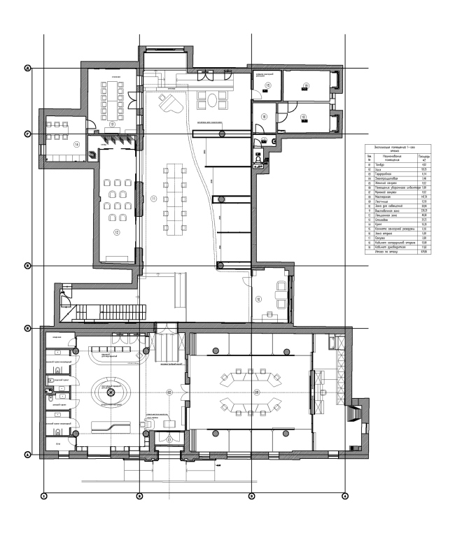
Планировочные решения центра предопределены его функциональными потребностями. В «Добром музее» есть три основные зоны: выставочное пространство, мастерская и просторный холл с гардеробом и туалетами. На первом этаже также расположена сенсорная комната с профессиональным оборудованием для релаксации и развития, мультимедийный зал, отдельные кабинеты, столовая и кухня. Несколько кабинетов для сотрудников находятся на втором этаже.
Интерьер инклюзивного пространства «Добрый музей»
Интерьер инклюзивного пространства «Добрый музей»
© архитектурно-дизайнерское бюро Олега Клодта

Наиболее сложной частью проекта стала необходимость учесть множество жестких требований к интерьеру для посетителей с различными ментальными и физическими особенностями: безбарьерная среда, нейтральная цветовая палитра и рассеянный свет, большие и хорошо читаемые указатели и навигация, удобные дверные ручки и безопасные розетки. Важно было не просто выполнить все необходимые технические требования, но и создать атмосферу, которая будет располагать людей к общению, раскрывать их потенциал.
Интерьер инклюзивного пространства «Добрый музей»
Интерьер инклюзивного пространства «Добрый музей»
Фотография © Роман Панкратов / предоставлена архитектурно-дизайнерское бюро Олега Клодта

Детям с особенностями развития очень важно, чтобы их визуальный канал не был перегружен, поэтому дизайнеры архитектурного бюро выбрали светлую палитру, построенную на нюансах, добавив цветовые акценты. Фирменный терракотовый цвет самой Третьяковской галереи встречается в отдельных элементах. Например, в выставочном зале одна из стен является историческим фасадом старого здания конюшен. Раньше кирпичная кладка пряталась за множеством слоев штукатурки и краски, но было принято решение отреставрировать ее, очистить от краски и сделать частью пространства, где будут проводиться выставки, встречи и спектакли.
Интерьер инклюзивного пространства «Добрый музей»
Интерьер инклюзивного пространства «Добрый музей»
Фотография © Роман Панкратов / предоставлена архитектурно-дизайнерское бюро Олега Клодта
Интерьер инклюзивного пространства «Добрый музей»
Интерьер инклюзивного пространства «Добрый музей»
Фотография © Роман Панкратов / предоставлена архитектурно-дизайнерское бюро Олега Клодта
Интерьер инклюзивного пространства «Добрый музей»
Интерьер инклюзивного пространства «Добрый музей»
Фотография © Роман Панкратов / предоставлена архитектурно-дизайнерское бюро Олега Клодта

Специально для проекта созданы мобильные панели для развески картин, а также столы в мастерской. Их можно легко перемещать и полностью трансформировать пространство в зависимости от задач. ​
Интерьер инклюзивного пространства «Добрый музей» Фотография © Роман Панкратов / предоставлена архитектурно-дизайнерское бюро Олега Клодта
Интерьер инклюзивного пространства «Добрый музей»
Фотография © Роман Панкратов / предоставлена архитектурно-дизайнерское бюро Олега Клодта
Интерьер инклюзивного пространства «Добрый музей» Фотография © Роман Панкратов / предоставлена архитектурно-дизайнерское бюро Олега Клодта
Интерьер инклюзивного пространства «Добрый музей»
Фотография © Роман Панкратов / предоставлена архитектурно-дизайнерское бюро Олега Клодта

В центре холла находится тактильный остров с макетом исторического здания музея Третьяковской галереи и музейного квартала. Это многофункциональный арт-объект, который дети смогут потрогать и узнать, что находится в музее.

Интерьер инклюзивного пространства «Добрый музей» Фотография © Роман Панкратов / предоставлена архитектурно-дизайнерское бюро Олега Клодта
Интерьер инклюзивного пространства «Добрый музей»
Фотография © Роман Панкратов / предоставлена архитектурно-дизайнерское бюро Олега Клодта
Интерьер инклюзивного пространства «Добрый музей» Фотография © Роман Панкратов / предоставлена архитектурно-дизайнерское бюро Олега Клодта
Интерьер инклюзивного пространства «Добрый музей»
Фотография © Роман Панкратов / предоставлена архитектурно-дизайнерское бюро Олега Клодта
Интерьер инклюзивного пространства «Добрый музей» Фотография © Роман Панкратов / предоставлена архитектурно-дизайнерское бюро Олега Клодта
Интерьер инклюзивного пространства «Добрый музей»
Фотография © Роман Панкратов / предоставлена архитектурно-дизайнерское бюро Олега Клодта
Интерьер инклюзивного пространства «Добрый музей» Фотография © Роман Панкратов / предоставлена архитектурно-дизайнерское бюро Олега Клодта
Интерьер инклюзивного пространства «Добрый музей»
Фотография © Роман Панкратов / предоставлена архитектурно-дизайнерское бюро Олега Клодта
Интерьер инклюзивного пространства «Добрый музей» Фотография © Роман Панкратов / предоставлена архитектурно-дизайнерское бюро Олега Клодта
Интерьер инклюзивного пространства «Добрый музей»
Фотография © Роман Панкратов / предоставлена архитектурно-дизайнерское бюро Олега Клодта
Интерьер инклюзивного пространства «Добрый музей» Фотография © Роман Панкратов / предоставлена архитектурно-дизайнерское бюро Олега Клодта
Интерьер инклюзивного пространства «Добрый музей»
Фотография © Роман Панкратов / предоставлена архитектурно-дизайнерское бюро Олега Клодта
Интерьер инклюзивного пространства «Добрый музей» Фотография © Роман Панкратов / предоставлена архитектурно-дизайнерское бюро Олега Клодта
Интерьер инклюзивного пространства «Добрый музей»
Фотография © Роман Панкратов / предоставлена архитектурно-дизайнерское бюро Олега Клодта
Интерьер инклюзивного пространства «Добрый музей» Фотография © Роман Панкратов / предоставлена архитектурно-дизайнерское бюро Олега Клодта
Интерьер инклюзивного пространства «Добрый музей»
Фотография © Роман Панкратов / предоставлена архитектурно-дизайнерское бюро Олега Клодта