Размещено на портале Архи.ру (www.archi.ru)

11.09.2024

Бермудский треугольник

Объект:
Дом «Бермуд»
Адрес:
Россия, Чебоксары. Гремячевский переулок , 1 «Д»
Мастерская:
House and Flat
Авторский коллектив:
​Руководитель авторского коллектива: Анастасия Степанова
ГИП: Мария Андреева 

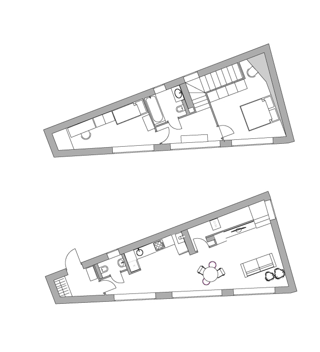
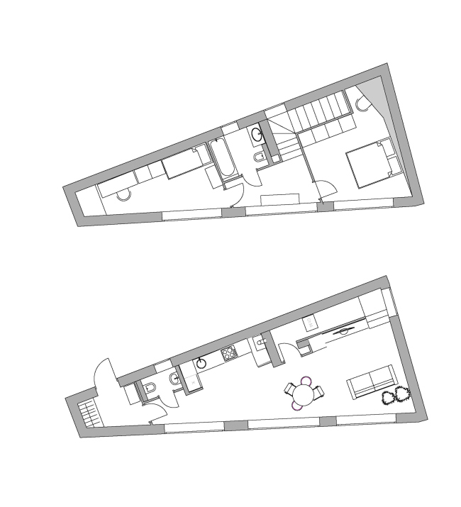
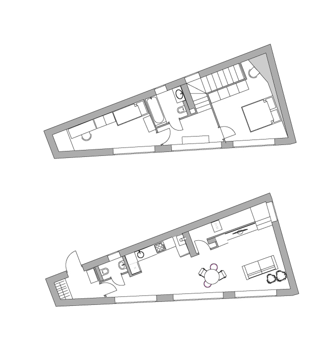
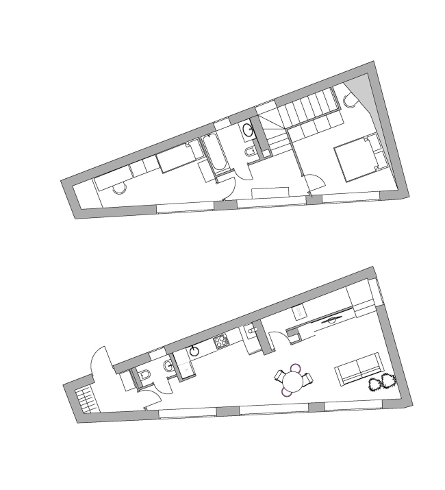
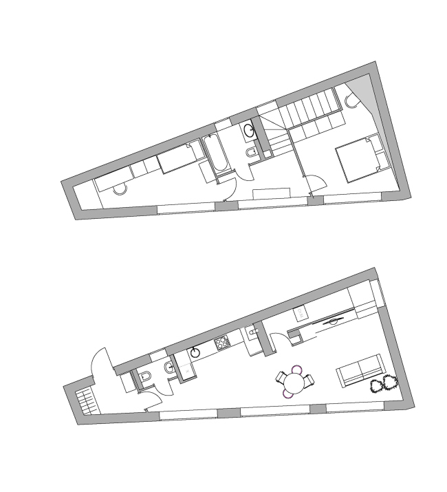
Дом в Чебоксарах, спроектированный бюро House and Flat, умещается на маленьком треугольном участке. Его площадь – 86 м2, план вписан в трапецию, а ширина одной из стен – всего полтора метра. Найти форму помог опыт японских архитекторов.

Описание предоставлено архитекторами

Основной вызов был в размещении дома на маленьком участке треугольной формы. Проанализирован опыт японских архитекторов и перебрав множество вариантов планировок, Анастасия Степанова нашла единственно возможный. 
Дом «Бермуд»
Дом «Бермуд»
© House and Flat

Форму дому задал участок: в нем почти нет прямых углов, а с одной стороны его ширина составляет всего полтора метра. В процессе реализации была увеличена ширина клумбы, которая служит в том числе и небольшим навесом у калитки. Решение оказалось вынужденным, но оказалось вполне удачным, так как со стороны двора удалось дополнительно разместить небольшое место для хранения инвентаря.  

Дом «Бермуд» Фотография © Анна Казанькова / предоставлена House and Flat
Дом «Бермуд»
Фотография © Анна Казанькова / предоставлена House and Flat
Дом «Бермуд» Фотография © Анна Казанькова / предоставлена House and Flat
Дом «Бермуд»
Фотография © Анна Казанькова / предоставлена House and Flat
Дом «Бермуд» Фотография © Анна Казанькова / предоставлена House and Flat
Дом «Бермуд»
Фотография © Анна Казанькова / предоставлена House and Flat
Дом «Бермуд» Фотография © Анна Казанькова / предоставлена House and Flat
Дом «Бермуд»
Фотография © Анна Казанькова / предоставлена House and Flat
Дом «Бермуд» Фотография © Анна Казанькова / предоставлена House and Flat
Дом «Бермуд»
Фотография © Анна Казанькова / предоставлена House and Flat
Дом «Бермуд» Фотография © Анна Казанькова / предоставлена House and Flat
Дом «Бермуд»
Фотография © Анна Казанькова / предоставлена House and Flat
Дом «Бермуд» Фотография © Анна Казанькова / предоставлена House and Flat
Дом «Бермуд»
Фотография © Анна Казанькова / предоставлена House and Flat
Дом «Бермуд» Фотография © Анна Казанькова / предоставлена House and Flat
Дом «Бермуд»
Фотография © Анна Казанькова / предоставлена House and Flat
Дом «Бермуд» Фотография © Анна Казанькова / предоставлена House and Flat
Дом «Бермуд»
Фотография © Анна Казанькова / предоставлена House and Flat
Дом «Бермуд» Фотография © Анна Казанькова / предоставлена House and Flat
Дом «Бермуд»
Фотография © Анна Казанькова / предоставлена House and Flat
Дом «Бермуд» Фотография © Анна Казанькова / предоставлена House and Flat
Дом «Бермуд»
Фотография © Анна Казанькова / предоставлена House and Flat
Дом «Бермуд» Фотография © Анна Казанькова / предоставлена House and Flat
Дом «Бермуд»
Фотография © Анна Казанькова / предоставлена House and Flat