Размещено на портале Архи.ру (www.archi.ru)

27.01.2025

Соль и вода

Анна Пискарева
Объект:
Царицынский источник: соль земли русской
Адрес:
Россия, Старая Русса.
Мастерская:
АНО «Центр развития городской среды Новгородской области»
Авторский коллектив:
Авторский коллектив Центра развития городской среды Новгородской области:
Генеральный директор: Константин Терентьев
Заместитель директора, начальник отдела социокультурных исследований и вовлечения: Анна Соколова
Начальник архитектурного отдела: Кирилл Кузьмичев
ГАП: Кирилл Никонов
Менеджер проекта: Александра Архипова
Ведущий архитектор: Яна Федотова
Архитекторы: Ксения Фрушенкова, Дмитрий Пекшин
Ландшафтный архитектор: Юлия Смирнова
Специалист по внешним коммуникациям и вовлечению: Наталия Хиврич, Ольга Рыжкова
Графический дизайнер: Илья Алексеев

В Старой Руссе на месте исторического солеваренного завода благодаря гранту конкурса Малых городов появился парк с признаками термального курорта. «Центр развития городской среды Новгородской области» открыл доступ к минеральным источникам, а элементы благоустройства использовал, чтобы рассказать историю солеваренного промысла.

Описание предоставлено архитекторами

Царицынский источник находится в Старой Руссе, окрестности которой известны своими целебными водами. С давних времен здесь процветал солеваренный промысел: из воды, богатой различными минералами, выпаривали соль. По указу императрицы Екатерины II в 1771 году в Старой Руссе началось строительство солеваренного завода, который просуществовал до 1869 года. В 1830-е годы на его территории были пробурены две скважины – Царицынский и Екатерининский источники. Построек, связанных с заводом, на территории не сохранилось, но из источников до сих пор бьет минеральная вода. Несмотря на то, что долгое время место оставалось неблагоустроенным, оно всегда привлекало жителей города и туристов, которые приходили посмотреть на источники, отдохнуть, искупаться.
Царицынский источник: соль земли русской
Царицынский источник: соль земли русской
Фотография © Центр развития городской среды Новгородской области

Концепция «Соль земли русской» была разработана в 2022 году Центром развития городской среды Новгородской области. Благодаря победе на VI Всероссийском конкурсе лучших проектов создания комфортной городской среды она была реализована в 2023 году.

Перед командой стояла задача не только создать на территории комфортные условия для прогулок и отдыха у воды, но и подчеркнуть уникальность места и дать посетителям возможность познакомиться с многовековыми традициями солеварения – значимой страницей в истории Старой Руссы.
Царицынский источник: соль земли русской. Функционально-планировочная организация территории
Царицынский источник: соль земли русской. Функционально-планировочная организация территории
© АНО «Центр развития городской среды Новгородской области»
Царицынский источник: соль земли русской. Смысловая концепция проекта
Царицынский источник: соль земли русской. Смысловая концепция проекта
© АНО «Центр развития городской среды Новгородской области»
Царицынский источник: соль земли русской. Смысловая концепция проекта. Исторический образ территори
Царицынский источник: соль земли русской. Смысловая концепция проекта. Исторический образ территори
© АНО «Центр развития городской среды Новгородской области»

В обсуждении решений концепции и онлайн-анкетированиях приняли участие более 1000 жителей города. Совместно с рушанами были определены основные запросы: максимальное сохранение существующего ландшафта, создание безопасных подходов к водоемам и условий для купания, оборудование мест для отдыха, размещение на территории источника игровых и спортивных элементов, арт-объектов. Концепцией предусмотрено создание всесезонного прогулочного маршрута. 
Царицынский источник: соль земли русской. Аксонометрия центральной части территории © АНО «Центр развития городской среды Новгородской области»
Царицынский источник: соль земли русской. Аксонометрия центральной части территории
© АНО «Центр развития городской среды Новгородской области»
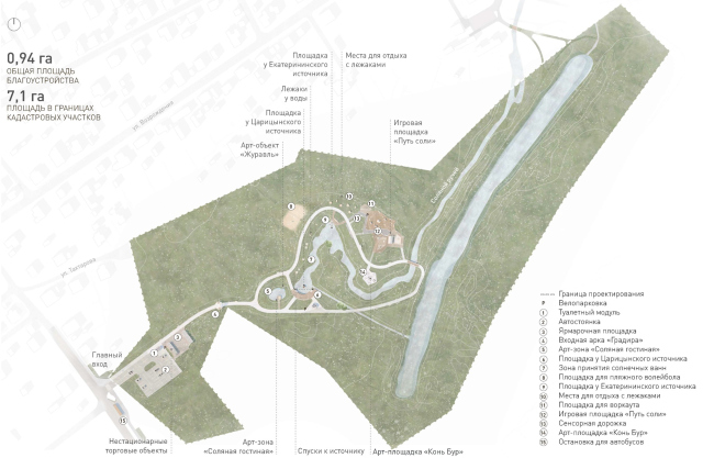
Царицынский источник: соль земли русской. Функциональное зонирование территоии © АНО «Центр развития городской среды Новгородской области»
Царицынский источник: соль земли русской. Функциональное зонирование территоии
© АНО «Центр развития городской среды Новгородской области»
Царицынский источник: соль земли русской. Транспортная и пешеходная организация © АНО «Центр развития городской среды Новгородской области»
Царицынский источник: соль земли русской. Транспортная и пешеходная организация
© АНО «Центр развития городской среды Новгородской области»
Царицынский источник: соль земли русской. Схема сценариев использования территории. Лето © АНО «Центр развития городской среды Новгородской области»
Царицынский источник: соль земли русской. Схема сценариев использования территории. Лето
© АНО «Центр развития городской среды Новгородской области»
Царицынский источник: соль земли русской. Схема сценариев использования территории. Зима © АНО «Центр развития городской среды Новгородской области»
Царицынский источник: соль земли русской. Схема сценариев использования территории. Зима
© АНО «Центр развития городской среды Новгородской области»
Царицынский источник: соль земли русской. проектные зоны активности © АНО «Центр развития городской среды Новгородской области»
Царицынский источник: соль земли русской. проектные зоны активности
© АНО «Центр развития городской среды Новгородской области»

Для любителей купания и оздоровительных процедур оборудованы спуски в воду с поручнями и кабинки для переодевания. Возле источников появились шезлонги и скамейки, включая опорные – для маломобильных отдыхающих, продумано освещение, установлены урны, туалет. Предусмотрены стенды с информацией об истории места и процессе солеварения.

Царицынский источник: соль земли русской Фотография © Центр развития городской среды Новгородской области
Царицынский источник: соль земли русской
Фотография © Центр развития городской среды Новгородской области
Царицынский источник: соль земли русской Фотография © Центр развития городской среды Новгородской области
Царицынский источник: соль земли русской
Фотография © Центр развития городской среды Новгородской области
Царицынский источник: соль земли русской Фотография © Центр развития городской среды Новгородской области
Царицынский источник: соль земли русской
Фотография © Центр развития городской среды Новгородской области
Царицынский источник: соль земли русской Фотография © Центр развития городской среды Новгородской области
Царицынский источник: соль земли русской
Фотография © Центр развития городской среды Новгородской области
Царицынский источник: соль земли русской Фотография © Центр развития городской среды Новгородской области
Царицынский источник: соль земли русской
Фотография © Центр развития городской среды Новгородской области
Царицынский источник: соль земли русской Фотография © Центр развития городской среды Новгородской области
Царицынский источник: соль земли русской
Фотография © Центр развития городской среды Новгородской области
Царицынский источник: соль земли русской Фотография © Центр развития городской среды Новгородской области
Царицынский источник: соль земли русской
Фотография © Центр развития городской среды Новгородской области
Царицынский источник: соль земли русской Фотография © Центр развития городской среды Новгородской области
Царицынский источник: соль земли русской
Фотография © Центр развития городской среды Новгородской области
Царицынский источник: соль земли русской Фотография © Центр развития городской среды Новгородской области
Царицынский источник: соль земли русской
Фотография © Центр развития городской среды Новгородской области

История солеваренного промысла нашла отражение в элементах благоустройства. Входная арка на территорию выполнена в виде градиры – специального деревянного сооружения при солеваренном заводе, где по веткам стекала минеральная вода, превращаясь в густой рассол: из такого рассола получалось быстрее выпаривать соль. Рисунок мощения и очертания площадок на территории напоминают кристаллы старорусской соли.
Царицынский источник: соль земли русской
Царицынский источник: соль земли русской
Фотография © Центр развития городской среды Новгородской области

Детская площадка «Город соли» знакомит посетителей с основными этапами солеварения: игровые элементы отсылают к сооружениям и приспособлениям, с помощью которых в разные века добывали и обрабатывали минеральную воду, чтобы получить соль.

Царицынский источник: соль земли русской Фотография © Центр развития городской среды Новгородской области
Царицынский источник: соль земли русской
Фотография © Центр развития городской среды Новгородской области
Царицынский источник: соль земли русской Фотография © Центр развития городской среды Новгородской области
Царицынский источник: соль земли русской
Фотография © Центр развития городской среды Новгородской области
Царицынский источник: соль земли русской Фотография © Центр развития городской среды Новгородской области
Царицынский источник: соль земли русской
Фотография © Центр развития городской среды Новгородской области
Царицынский источник: соль земли русской Фотография © Центр развития городской среды Новгородской области
Царицынский источник: соль земли русской
Фотография © Центр развития городской среды Новгородской области
Царицынский источник: соль земли русской Фотография © Центр развития городской среды Новгородской области
Царицынский источник: соль земли русской
Фотография © Центр развития городской среды Новгородской области
Царицынский источник: соль земли русской Фотография © Центр развития городской среды Новгородской области
Царицынский источник: соль земли русской
Фотография © Центр развития городской среды Новгородской области

Благоустройство выполнено с бережным отношением к сложившемуся ландшафту: работы не затронули русло ручья и уникальные источники, решения по озеленению поддерживают и тактично дополняют луговое разнотравье – на территории высадили кустарники и декоративные травянистые многолетники.
Царицынский источник: соль земли русской
Царицынский источник: соль земли русской
Фотография © Центр развития городской среды Новгородской области
Царицынский источник: соль земли русской
Царицынский источник: соль земли русской
Фотография © Центр развития городской среды Новгородской области
Царицынский источник: соль земли русской
Царицынский источник: соль земли русской
Фотография © Центр развития городской среды Новгородской области
Царицынский источник: соль земли русской
Царицынский источник: соль земли русской
Фотография © Центр развития городской среды Новгородской области

В результате обновления увеличилась посещаемость территории Царицынского источника, появились новые сценарии использования для разных групп посетителей, стали проводиться экскурсии, культурные и спортивные мероприятия. В течение всего года здесь можно гулять, дышать полезным воздухом, насыщенным соляными частицами, качаться на качелях, устраивать фотосессии. Пространство получило множество положительных отзывов: гости отмечают комфортные условия для прогулок и купания, разнообразие активностей и возможность познакомиться с историей этого уникального места.

Благодаря реализации концепции «Соль земли русской» Царицынский источник приобрел статус общедоступного городского спа-парка для отдыха и оздоровительных процедур, а также стал значимой точкой притяжения для жителей Старой Руссы и туристов.
Царицынский источник: соль земли русской
Царицынский источник: соль земли русской
Фотография © Центр развития городской среды Новгородской области