Размещено на портале Архи.ру (www.archi.ru)

04.09.2024

Палубы и кессоны

Объект:
Дом Палуба
Адрес:
Россия, Подольниха. КП Лазурный Берег, 32А
Мастерская:
Архитектурная мастерская Антона Литовского
Авторский коллектив:
ГАП: А. Литовский
Архитектор: И. Матвеев
Конструктор: Т. Гаврилова
ГИП: Е. Бурец

Архитектурная мастерская Антона Литовского спроектировала дом-палубу: линейное устройство позволяет ему отгородиться от соседей протяженным глухим фасадом, а со стороны сада – раскрыться проницаемыми объемами разной конфигурации, объединяет которые кессонированный потолок.

Описание предоставлено архитекторами
 
Участок прямоугольной формы располагается на краю элитного поселка на берегу водохранилища и канала имени Москвы и граничит с лесом. Работая над проектом, архитекторы учли характер заказчика: его любовь к уединению и созерцанию, а также обыграли ограничения, существующие в поселке. Дом ориентирован вдоль длинной стороны участка, обращаясь к соседям глухим фасадом, а к ландшафту – многочисленными террасами и окнами.
Дом Палуба
Дом Палуба
Фотография © Антон Литовский
Дом Палуба. Разрез
Дом Палуба. Разрез
© Архитектурная мастерская Антона Литовского

Основная часть первого этажа – открытые и отапливаемые пространства разной высоты, которые объединяет конструкция кессонированного потолка из лафета и панорамные окна. Весь второй этаж – также сруб из лафета, вырастающий из кессонов, которые опираются на бетонный каркас первого этажа. На втором этаже располагаются спальни с выходами на большую террасу-балкон.
Дом Палуба
Дом Палуба
Фотография © Антон Литовский
Дом Палуба
Дом Палуба
Фотография © Антон Литовский
Дом Палуба
Дом Палуба
Фотография © Антон Литовский
Дом Палуба Фотография 
© Антон Литовский
Дом Палуба
Фотография © Антон Литовский
Дом Палуба Фотография 
© Антон Литовский
Дом Палуба
Фотография © Антон Литовский
Дом Палуба Фотография 
© Антон Литовский
Дом Палуба
Фотография © Антон Литовский
Дом Палуба
Дом Палуба
Фотография © Антон Литовский
Дом Палуба
Дом Палуба
Фотография © Антон Литовский
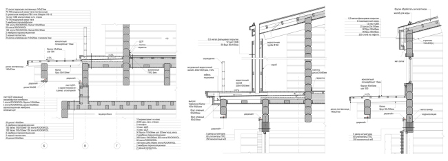
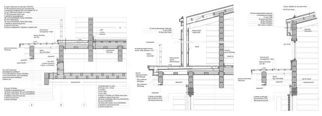
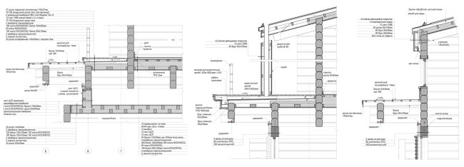
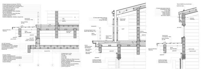
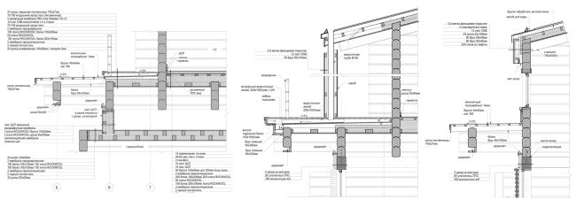
Дом Палуба. Узлы
Дом Палуба. Узлы
© Архитектурная мастерская Антона Литовского